| 1 | 06/30/2025 | SWD | STATUTORY WARRANTY DEED | METZ JOSEPH B & ELIZABETH A | ALEXANDRA AYER SHEPARD SCHULTE LIVING TRUST | | | $695,000.00 | 149601 | 2025-03684 |
| 2 | 06/30/2025 | QCD | QUIT CLAIM DEED | JOSEPH B & ELIZABETH A METZ 2004 RVCBL TRUST | METZ JOSEPH B & ELIZABETH A | | | | 149600 | 2025-03683 |
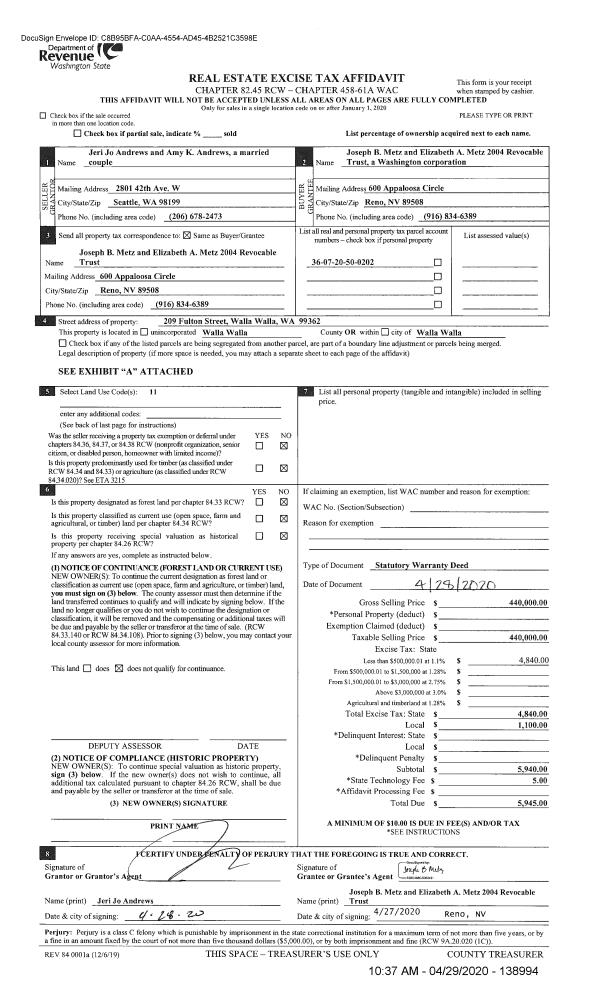
| 3 | 04/29/2020 | SWD | STATUTORY WARRANTY DEED | ANDREWS JERI JO | JOSEPH B & ELIZABETH A METZ 2004 RVCBL TRUST | | | $440,000.00 | 138994 | 2020-03653 |
| 4 | 03/28/2016 | SWD | STATUTORY WARRANTY DEED | KOFLER ERIK C | ANDREWS JERI JO | | | $350,000.00 | 129897 | 2016-02250 |
| 5 | 02/06/2012 | WARRANTY D | WARRANTY DEED | BATES, MICHAEL B & BARBARA J | KOFLER, ERIK C | | | $295,000.00 | 121363 | 2012-01037 |
| 6 | 08/29/2003 | WARRANTY D | WARRANTY DEED | RIORDAN, SUSAN R | BATES, MICHAEL B & BARBARA J | | | $175,000.00 | 102892 | 2003-13122 |
| 7 | 08/10/2001 | WARRANTY D | WARRANTY DEED | | | | | $118,500.00 | 97811 | 3180-108663 |