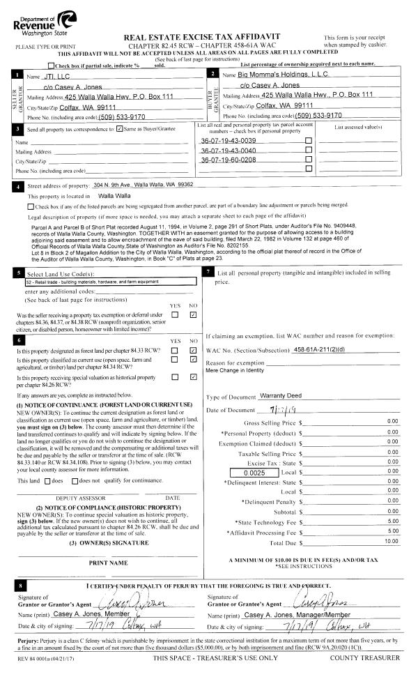
Property
Account |
| Property ID: | 7158 | Abbreviated Legal Description: | MAGALLONS LOT 8 BLK 2 |
| Parcel Number: | 360719600208 | Agent Code: | |
| Type: | Real | | |
| Tax Area: | 1 - OL-140-F | Land Use Code | 46 |
| Open Space: | N | DFL | N |
| Historic Property: | N | Remodel Property: | N |
| Multi-Family Redevelopment: | N | | |
| Township: | 7 | Section: | 19 |
| Range: | 36 |
Location |
| Address: | 318 N 9TH AVE WA 99362 | Mapsco: | |
| Neighborhood: | WW Downtown Core area #3 | Map ID: | |
| Neighborhood CD: | 5343 |
Owner |
| Name: | BIG MOMMAS HOLDINGS LLC | Owner ID: | 65529 |
| Mailing Address: | PO BOX 111 COLFAX, WA 99111 | % Ownership: | 100.0000000000% |
| | | Exemptions: | |
Taxes and Assessment Details
Property Tax Information as of
02/21/2026
Click on "Statement Details" to expand or collapse a tax statement.
* Please enter a valid date ** Please enter a valid date *
Statement Details |
| | TOTAL: | $0.00 | $0.00 | $0.00 | $0.00 | $0.00 | $0.00 |
|
| | $0.00 | $0.00 | $0.00 | $0.00 | $0.00 | $0.00 |
Values
| (+) Improvement Homesite Value: | + | $0 | |
| (+) Improvement Non-Homesite Value: | + | $20,900 | |
| (+) Land Homesite Value: | + | $0 | |
| (+) Land Non-Homesite Value: | + | $62,700 | |
| (+) Curr Use (HS): | + | $0 | $0 |
| (+) Curr Use (NHS): | + | $0 | $0 |
| | | -------------------------- | |
| (=) Market Value: | = | $83,600 | |
| (–) Productivity Loss: | – | $0 | |
| | | -------------------------- | |
| (=) Subtotal: | = | $83,600 | |
| (+) Senior Appraised Value: | + | $0 | |
| (+) Non-Senior Appraised Value: | + | $83,600 | |
| | | -------------------------- | |
| (=) Total Appraised Value: | = | $83,600 | |
| (–) Senior Exemption Loss: | – | $0 | |
| (–) Exemption Loss: | – | $0 | |
| | | -------------------------- | |
| (=) Taxable Value: | = | $83,600 | |
Taxing Jurisdiction
| Owner: | BIG MOMMAS HOLDINGS LLC | | |
| % Ownership: | 100.0000000000% | | |
| Total Value: | $83,600 | | |
| Tax Area: | 1 - OL-140-F |
| CERFD | CURRENT EXPENSE REFUND 010 | 0.0000000000 | $83,600 | $83,600 | $0.00 | | |
| CURREXP | CURRENT EXPENSE 010 | 1.0175366760 | $83,600 | $83,600 | $85.07 | | |
| HUMNSERV | HUMAN SERVICES 119 | 0.0250000000 | $83,600 | $83,600 | $2.09 | | |
| SLDREL | SOLDIERS RELIEF 121 | 0.0155990005 | $83,600 | $83,600 | $1.30 | | |
| EMERGSER | EMS 147 | 0.3792580840 | $83,600 | $83,600 | $31.71 | | |
| EMSRFD | EMS REFUND 147 | 0.0000000000 | $83,600 | $83,600 | $0.00 | | |
| PORTRFD | PORT REFUND 640 | 0.0000000000 | $83,600 | $83,600 | $0.00 | | |
| PORTWWGEN | PORT OF WW 640 | 0.2460186015 | $83,600 | $83,600 | $20.57 | | |
| SD140BOND | SD #140 BOND 764 | 0.8342371393 | $83,600 | $83,600 | $69.74 | | |
| SD140GEN | SD #140 GENERAL 760 | 2.0646500647 | $83,600 | $83,600 | $172.60 | | |
| ST2 | STATE SCHOOL PART 2 600 | 0.8131451643 | $83,600 | $83,600 | $67.98 | | |
| STATESCHL | STATE SCHOOL 600 | 1.5158548041 | $83,600 | $83,600 | $126.73 | | |
| STREFUND | STATE REFUND LEVY 603 | 0.0000000000 | $83,600 | $83,600 | $0.00 | | |
| CWWBOND | C OF WW BOND 643 | 0.2760494372 | $83,600 | $83,600 | $23.08 | | |
| CWWGEN | CITY OF WW 631 | 1.6100204973 | $83,600 | $83,600 | $134.60 | | |
| CWWRFD | CITY OF WALLA WALLA REFUND 631 | 0.0000000000 | $83,600 | $83,600 | $0.00 | | |
| | Total Tax Rate: | 8.7973694689 | | | | | |
| | | | | Taxes w/Current Exemptions: | $735.47 | | |
| | | | | Taxes w/o Exemptions: | $735.47 | | |
Improvement / Building
| Improvement #1: | COMMERCIAL | State Code: | 46 | 0.0 sqft | Value: | $20,900 |
Sketch
| No sketches available for this property. |
Property Image
Land
| 1 | COM 1 | Converted: Commercial | 0.1600 | 6970.00 | 0.00 | 0.00 | 1.00 | $62,700 | $0 |
Roll Value History
| 2026 | N/A | N/A | N/A | N/A | N/A |
| 2025 | $22,800 | $69,700 | $0 | $92,500 | $92,500 |
| 2024 | $22,800 | $69,700 | $0 | $92,500 | $92,500 |
| 2023 | $20,900 | $62,700 | $0 | $83,600 | $83,600 |
| 2022 | $20,900 | $62,700 | $0 | $83,600 | $83,600 |
| 2021 | $20,900 | $62,700 | $0 | $83,600 | $83,600 |
| 2020 | $20,900 | $62,700 | $0 | $83,600 | $83,600 |
| 2019 | $20,900 | $62,700 | $0 | $83,600 | $83,600 |
| 2018 | $20,900 | $62,700 | $0 | $83,600 | $83,600 |
| 2017 | $20,900 | $62,700 | $0 | $83,600 | $83,600 |
| 2016 | $0 | $62,700 | $0 | $62,700 | $62,700 |
| 2015 | $0 | $62,700 | $0 | $62,700 | $62,700 |
| 2014 | $0 | $62,700 | $0 | $62,700 | $62,700 |
| 2013 | $0 | $62,700 | $0 | $62,700 | $62,700 |
| 2012 | $9,900 | $20,700 | $0 | $0 | $0 |
| 2011 | $9,900 | $20,700 | $0 | $0 | $0 |
| 2010 | $9,900 | $20,700 | $0 | $0 | $0 |
| 2009 | $13,300 | $20,700 | $0 | $0 | $0 |
| 2008 | $13,800 | $12,100 | $0 | $0 | $0 |
| 2007 | $13,800 | $12,100 | $0 | $0 | $0 |
Deed and Sales History
| 1 | 07/17/2019 | WARRANTY D | WARRANTY DEED | JTI LLC | BIG MOMMAS HOLDINGS LLC | | | $0.00 | 137316 | 2019-05275 |
| 2 | 05/11/2007 | WARRANTY D | WARRANTY DEED | JTI LLC, A WA LLC | JTI LLC AN OREGON LLC | | | | 112790 | 2007-05298 |
| 3 | 05/26/2006 | WARRANTY D | WARRANTY DEED | BISSELL, LEWIS & CONNIE | JTI LLC | | | $35,000.00 | 110361 | 2006-06109 |
| 4 | 11/05/1997 | WARRANTY D | WARRANTY DEED | | | | | $8,000.00 | 89307 | 2599-710829 |
Payout Agreement
| No payout information available.. |