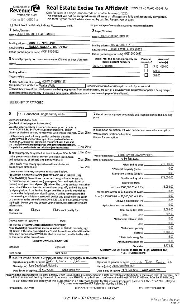
Property
Account |
| Property ID: | 7151 | Abbreviated Legal Description: | MAGALLONS LOT 2 AND W 1/2 OF LOT 3 BLK 1 |
| Parcel Number: | 360719600102 | Agent Code: | |
| Type: | Real | | |
| Tax Area: | 1 - OL-140-F | Land Use Code | 11 |
| Open Space: | N | DFL | N |
| Historic Property: | N | Remodel Property: | N |
| Multi-Family Redevelopment: | N | | |
| Township: | 7 | Section: | 19 |
| Range: | 36 |
Location |
| Address: | 409 W CHERRY ST WA 99362 | Mapsco: | |
| Neighborhood: | F SFR | Map ID: | |
| Neighborhood CD: | 512011 |
Owner |
| Name: | ROJERO JUAN JOSE JR | Owner ID: | 71925 |
| Mailing Address: | 409 W CHERRY ST WALLA WALLA, WA 99362 | % Ownership: | 100.0000000000% |
| | | Exemptions: | |
Taxes and Assessment Details
Values
| (+) Improvement Homesite Value: | + | $0 | |
| (+) Improvement Non-Homesite Value: | + | $218,850 | |
| (+) Land Homesite Value: | + | $0 | |
| (+) Land Non-Homesite Value: | + | $47,250 | |
| (+) Curr Use (HS): | + | $0 | $0 |
| (+) Curr Use (NHS): | + | $0 | $0 |
| | | -------------------------- | |
| (=) Market Value: | = | $266,100 | |
| (–) Productivity Loss: | – | $0 | |
| | | -------------------------- | |
| (=) Subtotal: | = | $266,100 | |
| (+) Senior Appraised Value: | + | $0 | |
| (+) Non-Senior Appraised Value: | + | $266,100 | |
| | | -------------------------- | |
| (=) Total Appraised Value: | = | $266,100 | |
| (–) Senior Exemption Loss: | – | $0 | |
| (–) Exemption Loss: | – | $0 | |
| | | -------------------------- | |
| (=) Taxable Value: | = | $266,100 | |
Taxing Jurisdiction
| Owner: | ROJERO JUAN JOSE JR | | |
| % Ownership: | 100.0000000000% | | |
| Total Value: | $266,100 | | |
| Tax Area: | 1 - OL-140-F |
| CERFD | CURRENT EXPENSE REFUND 010 | 0.0000000000 | $266,100 | $266,100 | $0.00 | | |
| CURREXP | CURRENT EXPENSE 010 | 1.0175366760 | $266,100 | $266,100 | $270.77 | | |
| HUMNSERV | HUMAN SERVICES 119 | 0.0250000000 | $266,100 | $266,100 | $6.65 | | |
| SLDREL | SOLDIERS RELIEF 121 | 0.0155990005 | $266,100 | $266,100 | $4.15 | | |
| EMERGSER | EMS 147 | 0.3792580840 | $266,100 | $266,100 | $100.92 | | |
| EMSRFD | EMS REFUND 147 | 0.0000000000 | $266,100 | $266,100 | $0.00 | | |
| PORTRFD | PORT REFUND 640 | 0.0000000000 | $266,100 | $266,100 | $0.00 | | |
| PORTWWGEN | PORT OF WW 640 | 0.2460186015 | $266,100 | $266,100 | $65.47 | | |
| SD140BOND | SD #140 BOND 764 | 0.8342371393 | $266,100 | $266,100 | $221.99 | | |
| SD140GEN | SD #140 GENERAL 760 | 2.0646500647 | $266,100 | $266,100 | $549.40 | | |
| ST2 | STATE SCHOOL PART 2 600 | 0.8131451643 | $266,100 | $266,100 | $216.38 | | |
| STATESCHL | STATE SCHOOL 600 | 1.5158548041 | $266,100 | $266,100 | $403.37 | | |
| STREFUND | STATE REFUND LEVY 603 | 0.0000000000 | $266,100 | $266,100 | $0.00 | | |
| CWWBOND | C OF WW BOND 643 | 0.2760494372 | $266,100 | $266,100 | $73.46 | | |
| CWWGEN | CITY OF WW 631 | 1.6100204973 | $266,100 | $266,100 | $428.43 | | |
| CWWRFD | CITY OF WALLA WALLA REFUND 631 | 0.0000000000 | $266,100 | $266,100 | $0.00 | | |
| | Total Tax Rate: | 8.7973694689 | | | | | |
| | | | | Taxes w/Current Exemptions: | $2,340.99 | | |
| | | | | Taxes w/o Exemptions: | $2,340.99 | | |
Improvement / Building
| Improvement #1: | RESIDENTIAL | State Code: | 11 | 1728.0 sqft | Value: | $218,850 |
| Exterior Wall: | SIDING | Heating/Cooling: | WARM & COOLED AIR | | Number of Bathrooms: | 2 | Number of Bedrooms: | 3 | | Plumbing: | 9 | Roof Covering: | COMP SHINGLE |
|
| | Type | Description | Class CD | Sub Class CD | Year Built | Area |
| | MA | Main Area | 4 | 30 | 1908 | 1728.0 |
| | SI1 | SITE IMPROVEMENT | 4 | 30 | 1908 | 2.0 |
| | BASE | BASEMENT | 4 | 30 | 1908 | 518.0 |
| | UPFL | Upper Floor (included in main area) | 4 | 30 | 1908 | 520.0 |
| | BPF | BASEMENT -PARTITIONED FINISH | 4 | 30 | 1908 | 520.0 |
| | DTG | Detached Garage | 4 | 30 | 1908 | 400.0 |
| | WDR | WOOD DECK W/ROOF | 4 | 30 | 1908 | 204.0 |
Sketch
Property Image
Land
| 1 | RES 1 | Converted: Residential | 0.2066 | 9000.00 | 0.00 | 0.00 | 1.00 | $47,250 | $0 |
Roll Value History
| 2026 | N/A | N/A | N/A | N/A | N/A |
| 2025 | $200,830 | $76,680 | $0 | $277,510 | $277,510 |
| 2024 | $200,830 | $76,680 | $0 | $277,510 | $277,510 |
| 2023 | $218,850 | $47,250 | $0 | $266,100 | $266,100 |
| 2022 | $208,430 | $47,250 | $0 | $255,680 | $255,680 |
| 2021 | $104,210 | $47,250 | $0 | $151,460 | $151,460 |
| 2020 | $104,210 | $47,250 | $0 | $151,460 | $151,460 |
| 2019 | $104,210 | $47,250 | $0 | $151,460 | $151,460 |
| 2018 | $99,250 | $47,250 | $0 | $146,500 | $146,500 |
| 2017 | $118,080 | $22,500 | $0 | $140,580 | $140,580 |
| 2016 | $118,080 | $22,500 | $0 | $140,580 | $140,580 |
| 2015 | $118,080 | $22,500 | $0 | $140,580 | $140,580 |
| 2014 | $98,400 | $22,500 | $0 | $120,900 | $120,900 |
| 2013 | $98,400 | $22,500 | $0 | $120,900 | $120,900 |
| 2012 | $98,400 | $22,500 | $0 | $0 | $0 |
| 2011 | $60,900 | $22,500 | $0 | $0 | $0 |
| 2010 | $50,000 | $22,500 | $0 | $0 | $0 |
| 2009 | $58,100 | $22,500 | $0 | $0 | $0 |
| 2008 | $55,100 | $13,500 | $0 | $0 | $0 |
| 2007 | $55,100 | $13,500 | $0 | $0 | $0 |
Deed and Sales History
| 1 | 07/07/2022 | SWD | STATUTORY WARRANTY DEED | ALEJANDRE JOSE GUADALUPE | ROJERO JUAN JOSE JR | | | $279,000.00 | 144262 | 2022-05751 |
| 2 | 10/11/2016 | QCD | QUIT CLAIM DEED | HARRIS RONALD L | ALEJANDRE JOSE GUADALUPE | | | $75,000.00 | 131233 | 2016-08385 |
| 3 | 10/10/2000 | WARRANTY D | WARRANTY DEED | | | | | $55,000.00 | 95976 | 3030-009718 |
Payout Agreement
| No payout information available.. |