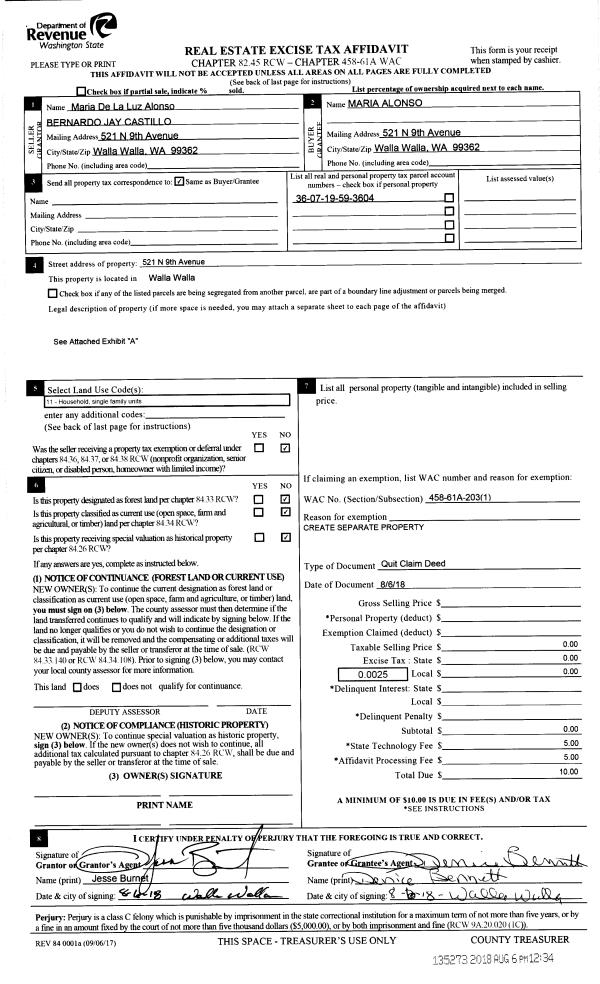
Property
Account |
| Property ID: | 7141 | Abbreviated Legal Description: | LANGFORDS LOT 4 BLK 36 |
| Parcel Number: | 360719593604 | Agent Code: | |
| Type: | Real | | |
| Tax Area: | 1 - OL-140-F | Land Use Code | 12 |
| Open Space: | N | DFL | N |
| Historic Property: | N | Remodel Property: | N |
| Multi-Family Redevelopment: | N | | |
| Township: | 7 | Section: | 19 |
| Range: | 36 |
Location |
| Address: | 521 N 9TH AVE WA 99362 | Mapsco: | |
| Neighborhood: | A-SFR | Map ID: | |
| Neighborhood CD: | 313011 |
Owner |
| Name: | ALONSO MARIA | Owner ID: | 63716 |
| Mailing Address: | 521 N 9TH AVE WALLA WALLA, WA 99362 | % Ownership: | 100.0000000000% |
| | | Exemptions: | |
Taxes and Assessment Details
Property Tax Information as of
02/21/2026
Click on "Statement Details" to expand or collapse a tax statement.
* Please enter a valid date ** Please enter a valid date *
Statement Details |
| | TOTAL: | $0.00 | $0.00 | $0.00 | $0.00 | $0.00 | $0.00 |
|
| | $0.00 | $0.00 | $0.00 | $0.00 | $0.00 | $0.00 |
Values
| (+) Improvement Homesite Value: | + | $0 | |
| (+) Improvement Non-Homesite Value: | + | $142,410 | |
| (+) Land Homesite Value: | + | $0 | |
| (+) Land Non-Homesite Value: | + | $52,180 | |
| (+) Curr Use (HS): | + | $0 | $0 |
| (+) Curr Use (NHS): | + | $0 | $0 |
| | | -------------------------- | |
| (=) Market Value: | = | $194,590 | |
| (–) Productivity Loss: | – | $0 | |
| | | -------------------------- | |
| (=) Subtotal: | = | $194,590 | |
| (+) Senior Appraised Value: | + | $0 | |
| (+) Non-Senior Appraised Value: | + | $194,590 | |
| | | -------------------------- | |
| (=) Total Appraised Value: | = | $194,590 | |
| (–) Senior Exemption Loss: | – | $0 | |
| (–) Exemption Loss: | – | $0 | |
| | | -------------------------- | |
| (=) Taxable Value: | = | $194,590 | |
Taxing Jurisdiction
| Owner: | ALONSO MARIA | | |
| % Ownership: | 100.0000000000% | | |
| Total Value: | $194,590 | | |
| Tax Area: | 1 - OL-140-F |
| CERFD | CURRENT EXPENSE REFUND 010 | 0.0000000000 | $194,590 | $194,590 | $0.00 | | |
| CURREXP | CURRENT EXPENSE 010 | 1.0175366760 | $194,590 | $194,590 | $198.00 | | |
| HUMNSERV | HUMAN SERVICES 119 | 0.0250000000 | $194,590 | $194,590 | $4.86 | | |
| SLDREL | SOLDIERS RELIEF 121 | 0.0155990005 | $194,590 | $194,590 | $3.04 | | |
| EMERGSER | EMS 147 | 0.3792580840 | $194,590 | $194,590 | $73.80 | | |
| EMSRFD | EMS REFUND 147 | 0.0000000000 | $194,590 | $194,590 | $0.00 | | |
| PORTRFD | PORT REFUND 640 | 0.0000000000 | $194,590 | $194,590 | $0.00 | | |
| PORTWWGEN | PORT OF WW 640 | 0.2460186015 | $194,590 | $194,590 | $47.87 | | |
| SD140BOND | SD #140 BOND 764 | 0.8342371393 | $194,590 | $194,590 | $162.33 | | |
| SD140GEN | SD #140 GENERAL 760 | 2.0646500647 | $194,590 | $194,590 | $401.76 | | |
| ST2 | STATE SCHOOL PART 2 600 | 0.8131451643 | $194,590 | $194,590 | $158.23 | | |
| STATESCHL | STATE SCHOOL 600 | 1.5158548041 | $194,590 | $194,590 | $294.97 | | |
| STREFUND | STATE REFUND LEVY 603 | 0.0000000000 | $194,590 | $194,590 | $0.00 | | |
| CWWBOND | C OF WW BOND 643 | 0.2760494372 | $194,590 | $194,590 | $53.72 | | |
| CWWGEN | CITY OF WW 631 | 1.6100204973 | $194,590 | $194,590 | $313.29 | | |
| CWWRFD | CITY OF WALLA WALLA REFUND 631 | 0.0000000000 | $194,590 | $194,590 | $0.00 | | |
| | Total Tax Rate: | 8.7973694689 | | | | | |
| | | | | Taxes w/Current Exemptions: | $1,711.87 | | |
| | | | | Taxes w/o Exemptions: | $1,711.87 | | |
Improvement / Building
| Improvement #1: | RESIDENTIAL | State Code: | 12 | 1021.0 sqft | Value: | $142,410 |
| Exterior Wall: | HARDBOARD | Heating/Cooling: | STOVE-NO HEAT | | Number of Bathrooms: | 1 | Number of Bedrooms: | 4 | | Plumbing: | 6 | Roof Covering: | COMP SHINGLE |
|
| | Type | Description | Class CD | Sub Class CD | Year Built | Area |
| | MA | Main Area | 1 | 25 | 1896 | 1021.0 |
| | ATIC | ATTIC ROOM | 1 | 25 | 1896 | 459.0 |
| | SI1 | SITE IMPROVEMENT | 1 | 25 | 1896 | 2.0 |
| | WDR | WOOD DECK W/ROOF | 1 | 25 | 2009 | 60.0 |
| | PRC | PORCH W STEPS, ROOF,CEILED | 1 | 25 | 2009 | 143.0 |
| | RPS | PORCH W/STEPS,ROOF | 1 | 25 | 1896 | 81.0 |
| | GUH | GUEST HOUSE | 1 | 25 | 2009 | 240.0 |
Sketch
Property Image
Land
| 1 | RES 1 | Converted: Residential | 0.1452 | 6325.00 | 0.00 | 0.00 | 1.00 | $52,180 | $0 |
Roll Value History
| 2026 | N/A | N/A | N/A | N/A | N/A |
| 2025 | $174,720 | $52,200 | $0 | $226,920 | $226,920 |
| 2024 | $145,600 | $52,200 | $0 | $197,800 | $197,800 |
| 2023 | $142,410 | $52,180 | $0 | $194,590 | $194,590 |
| 2022 | $142,410 | $52,180 | $0 | $194,590 | $194,590 |
| 2021 | $160,880 | $24,700 | $0 | $185,580 | $185,580 |
| 2020 | $128,700 | $24,700 | $0 | $153,400 | $153,400 |
| 2019 | $128,700 | $24,700 | $0 | $153,400 | $153,400 |
| 2018 | $117,000 | $24,700 | $0 | $141,700 | $141,700 |
| 2017 | $111,430 | $24,700 | $0 | $136,130 | $136,130 |
| 2016 | $101,300 | $24,700 | $0 | $126,000 | $126,000 |
| 2015 | $93,830 | $24,700 | $0 | $118,530 | $118,530 |
| 2014 | $85,300 | $24,700 | $0 | $110,000 | $110,000 |
| 2013 | $85,300 | $24,700 | $0 | $110,000 | $110,000 |
| 2012 | $85,300 | $24,700 | $0 | $0 | $0 |
| 2011 | $85,300 | $24,700 | $0 | $0 | $0 |
| 2010 | $71,300 | $24,700 | $0 | $0 | $0 |
| 2009 | $78,900 | $11,100 | $0 | $0 | $0 |
| 2008 | $38,900 | $11,100 | $0 | $0 | $0 |
| 2007 | $38,900 | $11,100 | $0 | $0 | $0 |
Deed and Sales History
| 1 | 08/06/2018 | QCD | QUIT CLAIM DEED | ALONSO MARIA DE LA LUZ | ALONSO MARIA | | | $0.00 | 135273 | 2018-06416 |
| 2 | 04/23/1999 | WARRANTY D | WARRANTY DEED | | | | | $50,000.00 | 92611 | 2839-904966 |
Payout Agreement
| No payout information available.. |