Property
Account |
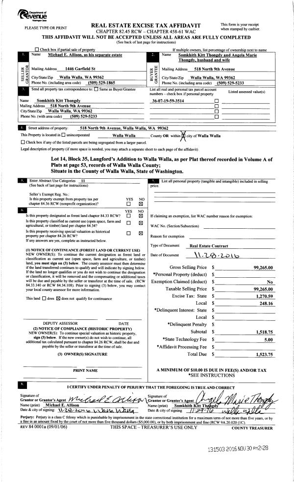
| Property ID: | 7133 | Abbreviated Legal Description: | LANGFORDS LOT 14 BLK 35 |
| Parcel Number: | 360719593514 | Agent Code: | |
| Type: | Real | | |
| Tax Area: | 1 - OL-140-F | Land Use Code | 11 |
| Open Space: | N | DFL | N |
| Historic Property: | N | Remodel Property: | N |
| Multi-Family Redevelopment: | N | | |
| Township: | 7 | Section: | 19 |
| Range: | 36 |
Location |
| Address: | 518 N 9TH AVE WA 99362 | Mapsco: | |
| Neighborhood: | F SFR | Map ID: | |
| Neighborhood CD: | 512011 |
Owner |
| Name: | THONGDY SOMKHITH KITT & ANGELA MARIE | Owner ID: | 60069 |
| Mailing Address: | 518 N 9TH AVE WALLA WALLA, WA 99362 | % Ownership: | 100.0000000000% |
| | | Exemptions: | |
Taxes and Assessment Details
Values
| (+) Improvement Homesite Value: | + | $0 | |
| (+) Improvement Non-Homesite Value: | + | $108,440 | |
| (+) Land Homesite Value: | + | $0 | |
| (+) Land Non-Homesite Value: | + | $33,810 | |
| (+) Curr Use (HS): | + | $0 | $0 |
| (+) Curr Use (NHS): | + | $0 | $0 |
| | | -------------------------- | |
| (=) Market Value: | = | $142,250 | |
| (–) Productivity Loss: | – | $0 | |
| | | -------------------------- | |
| (=) Subtotal: | = | $142,250 | |
| (+) Senior Appraised Value: | + | $0 | |
| (+) Non-Senior Appraised Value: | + | $142,250 | |
| | | -------------------------- | |
| (=) Total Appraised Value: | = | $142,250 | |
| (–) Senior Exemption Loss: | – | $0 | |
| (–) Exemption Loss: | – | $0 | |
| | | -------------------------- | |
| (=) Taxable Value: | = | $142,250 | |
Taxing Jurisdiction
| Owner: | THONGDY SOMKHITH KITT & ANGELA MARIE | | |
| % Ownership: | 100.0000000000% | | |
| Total Value: | $142,250 | | |
| Tax Area: | 1 - OL-140-F |
| CERFD | CURRENT EXPENSE REFUND 010 | 0.0000000000 | $142,250 | $142,250 | $0.00 | | |
| CURREXP | CURRENT EXPENSE 010 | 1.0175366760 | $142,250 | $142,250 | $144.74 | | |
| HUMNSERV | HUMAN SERVICES 119 | 0.0250000000 | $142,250 | $142,250 | $3.56 | | |
| SLDREL | SOLDIERS RELIEF 121 | 0.0155990005 | $142,250 | $142,250 | $2.22 | | |
| EMERGSER | EMS 147 | 0.3792580840 | $142,250 | $142,250 | $53.95 | | |
| EMSRFD | EMS REFUND 147 | 0.0000000000 | $142,250 | $142,250 | $0.00 | | |
| PORTRFD | PORT REFUND 640 | 0.0000000000 | $142,250 | $142,250 | $0.00 | | |
| PORTWWGEN | PORT OF WW 640 | 0.2460186015 | $142,250 | $142,250 | $35.00 | | |
| SD140BOND | SD #140 BOND 764 | 0.8342371393 | $142,250 | $142,250 | $118.67 | | |
| SD140GEN | SD #140 GENERAL 760 | 2.0646500647 | $142,250 | $142,250 | $293.70 | | |
| ST2 | STATE SCHOOL PART 2 600 | 0.8131451643 | $142,250 | $142,250 | $115.67 | | |
| STATESCHL | STATE SCHOOL 600 | 1.5158548041 | $142,250 | $142,250 | $215.63 | | |
| STREFUND | STATE REFUND LEVY 603 | 0.0000000000 | $142,250 | $142,250 | $0.00 | | |
| CWWBOND | C OF WW BOND 643 | 0.2760494372 | $142,250 | $142,250 | $39.27 | | |
| CWWGEN | CITY OF WW 631 | 1.6100204973 | $142,250 | $142,250 | $229.03 | | |
| CWWRFD | CITY OF WALLA WALLA REFUND 631 | 0.0000000000 | $142,250 | $142,250 | $0.00 | | |
| | Total Tax Rate: | 8.7973694689 | | | | | |
| | | | | Taxes w/Current Exemptions: | $1,251.44 | | |
| | | | | Taxes w/o Exemptions: | $1,251.44 | | |
Improvement / Building
| Improvement #1: | RESIDENTIAL | State Code: | 11 | 844.0 sqft | Value: | $108,440 |
| Exterior Wall: | SIDING | Heating/Cooling: | FORCED AIR | | Number of Bathrooms: | 1 | Number of Bedrooms: | 3 | | Plumbing: | 6 | Roof Covering: | COMP SHINGLE |
|
| | Type | Description | Class CD | Sub Class CD | Year Built | Area |
| | MA | Main Area | 1 | 20 | 1906 | 844.0 |
| | SI1 | SITE IMPROVEMENT | 1 | 20 | 1906 | 1.0 |
| | DTG | Detached Garage | 1 | 20 | 1906 | 400.0 |
| | SWP | Solid Wall Porch | 1 | 20 | 1906 | 102.0 |
| | RPO | OPEN PORCH W/ROOF | 1 | 20 | 1906 | 78.0 |
Sketch
Property Image
Land
| 1 | RES 1 | Converted: Residential | 0.1478 | 6440.00 | 0.00 | 0.00 | 1.00 | $33,810 | $0 |
Roll Value History
| 2026 | N/A | N/A | N/A | N/A | N/A |
| 2025 | $146,550 | $57,960 | $0 | $204,510 | $204,510 |
| 2024 | $146,550 | $57,960 | $0 | $204,510 | $204,510 |
| 2023 | $108,440 | $33,810 | $0 | $142,250 | $142,250 |
| 2022 | $98,580 | $33,810 | $0 | $132,390 | $132,390 |
| 2021 | $78,860 | $33,810 | $0 | $112,670 | $112,670 |
| 2020 | $65,720 | $33,810 | $0 | $99,530 | $99,530 |
| 2019 | $65,720 | $33,810 | $0 | $99,530 | $99,530 |
| 2018 | $62,590 | $33,810 | $0 | $96,400 | $96,400 |
| 2017 | $77,110 | $19,300 | $0 | $96,410 | $96,410 |
| 2016 | $73,440 | $19,300 | $0 | $92,740 | $92,740 |
| 2015 | $73,440 | $19,300 | $0 | $92,740 | $92,740 |
| 2014 | $77,300 | $19,300 | $0 | $96,600 | $96,600 |
| 2013 | $77,300 | $19,300 | $0 | $96,600 | $96,600 |
| 2012 | $82,400 | $19,300 | $0 | $0 | $0 |
| 2011 | $82,400 | $19,300 | $0 | $0 | $0 |
| 2010 | $82,400 | $19,300 | $0 | $0 | $0 |
| 2009 | $93,700 | $19,300 | $0 | $0 | $0 |
| 2008 | $45,600 | $11,300 | $0 | $0 | $0 |
| 2007 | $45,600 | $11,300 | $0 | $0 | $0 |
Deed and Sales History
| 1 | 11/30/2016 | REAL ESTAT | REAL ESTATE CONTRACT | ALLISON MICHAEL E | THONGDY SOMKHITH KITT & ANGELA MARIE | | | $99,265.00 | 131503 | 2016-09805 |
| 2 | 06/06/1983 | WARRANTY D | WARRANTY DEED | | | | | | 68341 | 1388-303879 |
Payout Agreement
| No payout information available.. |