Property
Account |
| Property ID: | 7122 | Abbreviated Legal Description: | LANGFORDS TAX 2 LOT 1 BLK 34 |
| Parcel Number: | 360719593406 | Agent Code: | |
| Type: | Real | | |
| Tax Area: | 1 - OL-140-F | Land Use Code | 11 |
| Open Space: | N | DFL | N |
| Historic Property: | N | Remodel Property: | N |
| Multi-Family Redevelopment: | N | | |
| Township: | 7 | Section: | 19 |
| Range: | 36 |
Location |
| Address: | 427 N 6TH AVE WA 99362 | Mapsco: | |
| Neighborhood: | F SFR | Map ID: | |
| Neighborhood CD: | 512011 |
Owner |
| Name: | ALEJANDRE CLAUDIA | Owner ID: | 34243 |
| Mailing Address: | PO BOX 2346 WALLA WALLA, WA 99362 | % Ownership: | 100.0000000000% |
| | | Exemptions: | |
Taxes and Assessment Details
Values
| (+) Improvement Homesite Value: | + | $0 | |
| (+) Improvement Non-Homesite Value: | + | $165,500 | |
| (+) Land Homesite Value: | + | $0 | |
| (+) Land Non-Homesite Value: | + | $57,920 | |
| (+) Curr Use (HS): | + | $0 | $0 |
| (+) Curr Use (NHS): | + | $0 | $0 |
| | | -------------------------- | |
| (=) Market Value: | = | $223,420 | |
| (–) Productivity Loss: | – | $0 | |
| | | -------------------------- | |
| (=) Subtotal: | = | $223,420 | |
| (+) Senior Appraised Value: | + | $0 | |
| (+) Non-Senior Appraised Value: | + | $223,420 | |
| | | -------------------------- | |
| (=) Total Appraised Value: | = | $223,420 | |
| (–) Senior Exemption Loss: | – | $0 | |
| (–) Exemption Loss: | – | $0 | |
| | | -------------------------- | |
| (=) Taxable Value: | = | $223,420 | |
Taxing Jurisdiction
| Owner: | ALEJANDRE CLAUDIA | | |
| % Ownership: | 100.0000000000% | | |
| Total Value: | $223,420 | | |
| Tax Area: | 1 - OL-140-F |
| CERFD | CURRENT EXPENSE REFUND 010 | 0.0000000000 | $223,420 | $223,420 | $0.00 | | |
| CURREXP | CURRENT EXPENSE 010 | 0.9851088983 | $223,420 | $223,420 | $220.09 | | |
| HUMNSERV | HUMAN SERVICES 119 | 0.0250000000 | $223,420 | $223,420 | $5.59 | | |
| SLDREL | SOLDIERS RELIEF 121 | 0.0155990000 | $223,420 | $223,420 | $3.49 | | |
| EMERGSER | EMS 147 | 0.3676811629 | $223,420 | $223,420 | $82.15 | | |
| EMSRFD | EMS REFUND 147 | 0.0000000000 | $223,420 | $223,420 | $0.00 | | |
| PORTRFD | PORT REFUND 640 | 0.0000000000 | $223,420 | $223,420 | $0.00 | | |
| PORTWWGEN | PORT OF WW 640 | 0.2344301070 | $223,420 | $223,420 | $52.38 | | |
| SD140BOND | SD #140 BOND 764 | 0.8032434458 | $223,420 | $223,420 | $179.46 | | |
| SD140CAP | SD #140 CAP 762 | 0.3840034221 | $223,420 | $223,420 | $85.79 | | |
| SD140GEN | SD #140 GENERAL 760 | 2.4999999996 | $223,420 | $223,420 | $558.55 | | |
| ST2 | STATE SCHOOL PART 2 600 | 0.8853714103 | $223,420 | $223,420 | $197.81 | | |
| STATESCHL | STATE SCHOOL 600 | 1.6424571473 | $223,420 | $223,420 | $366.96 | | |
| STREFUND | STATE REFUND LEVY 603 | 0.0000000000 | $223,420 | $223,420 | $0.00 | | |
| CWWBOND | C OF WW BOND 643 | 0.2642134255 | $223,420 | $223,420 | $59.03 | | |
| CWWGEN | CITY OF WW 631 | 1.6110494978 | $223,420 | $223,420 | $359.94 | | |
| CWWRFD | CITY OF WALLA WALLA REFUND 631 | 0.0000000000 | $223,420 | $223,420 | $0.00 | | |
| | Total Tax Rate: | 9.7181575166 | | | | | |
| | | | | Taxes w/Current Exemptions: | $2,171.24 | | |
| | | | | Taxes w/o Exemptions: | $2,171.24 | | |
Improvement / Building
| Improvement #1: | RESIDENTIAL | State Code: | 11 | 1056.0 sqft | Value: | $165,500 |
| Exterior Wall: | SIDING | Heating/Cooling: | FORCED AIR | | Number of Bathrooms: | 1 | Number of Bedrooms: | 2 | | Plumbing: | 6 | Roof Covering: | COMP SHINGLE |
|
| | Type | Description | Class CD | Sub Class CD | Year Built | Area |
| | MA | Main Area | 1 | 20 | 1898 | 1056.0 |
| | BASE | BASEMENT | 1 | 20 | 1898 | 168.0 |
| | BON4 | BONUS RM DET/REC OR APT FINISH | 1 | 20 | 1898 | 560.0 |
| | FBAT | FULL BATH | 1 | 20 | 1898 | 1.0 |
| | FIXT | AVERAGE FIXTURE | 1 | 20 | 1898 | 3.0 |
| | HVAC | HEAT/AC SYSTEM | 1 | 20 | 1898 | 560.0 |
| | DTG | Detached Garage | 1 | 20 | 1898 | 400.0 |
| | SWP | Solid Wall Porch | 1 | 20 | 1898 | 66.0 |
| | RPO | OPEN PORCH W/ROOF | 1 | 20 | 1898 | 132.0 |
| | SI1 | SITE IMPROVEMENT | 1 | 20 | 1898 | 1.0 |
Sketch
Property Image
Land
| 1 | RES 1 | Converted: Residential | 0.1477 | 6435.00 | 0.00 | 0.00 | 1.00 | $57,920 | $0 |
Roll Value History
| 2026 | N/A | N/A | N/A | N/A | N/A |
| 2025 | $165,500 | $57,920 | $0 | $223,420 | $223,420 |
| 2024 | $165,500 | $57,920 | $0 | $223,420 | $223,420 |
| 2023 | $155,350 | $33,780 | $0 | $189,130 | $189,130 |
| 2022 | $141,230 | $33,780 | $0 | $175,010 | $175,010 |
| 2021 | $112,980 | $33,780 | $0 | $146,760 | $146,760 |
| 2020 | $112,980 | $33,780 | $0 | $146,760 | $146,760 |
| 2019 | $112,980 | $33,780 | $0 | $146,760 | $146,760 |
| 2018 | $107,600 | $33,780 | $0 | $141,380 | $141,380 |
| 2017 | $105,450 | $19,300 | $0 | $124,750 | $124,750 |
| 2016 | $95,870 | $19,300 | $0 | $115,170 | $115,170 |
| 2015 | $95,870 | $19,300 | $0 | $115,170 | $115,170 |
| 2014 | $91,300 | $19,300 | $0 | $110,600 | $110,600 |
| 2013 | $91,300 | $19,300 | $0 | $110,600 | $110,600 |
| 2012 | $98,200 | $19,300 | $0 | $0 | $0 |
| 2011 | $98,200 | $19,300 | $0 | $0 | $0 |
| 2010 | $98,200 | $19,300 | $0 | $0 | $0 |
| 2009 | $111,200 | $19,300 | $0 | $0 | $0 |
| 2008 | $50,300 | $11,300 | $0 | $0 | $0 |
| 2007 | $50,300 | $11,300 | $0 | $0 | $0 |
Deed and Sales History
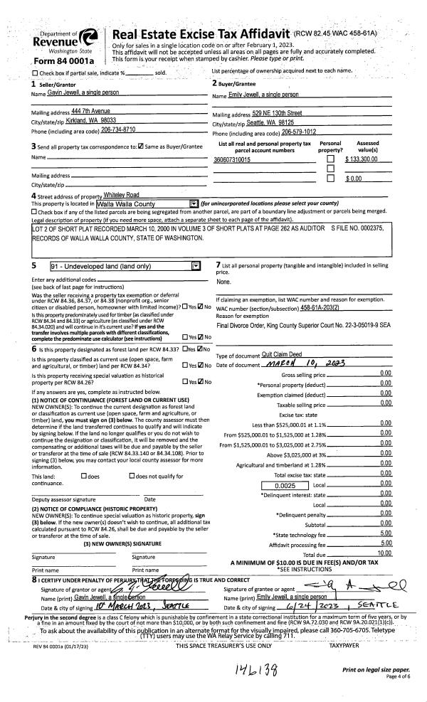
| 1 | 02/27/2003 | QCD | QUIT CLAIM DEED | ALEJANDRE, CLAUDIA ETAL | ALEJANDRE, CLAUDIA | | | | 101482 | 2003-02596 |
| 2 | 12/01/1997 | WARRANTY D | WARRANTY DEED | | | | | $52,000.00 | 89434 | 2609-711695 |
|   | |
Payout Agreement
| No payout information available.. |