Property
Account |
| Property ID: | 7119 | Abbreviated Legal Description: | LANGFORDS TAX 2 BLK 33 |
| Parcel Number: | 360719593317 | Agent Code: | |
| Type: | Real | | |
| Tax Area: | 1 - OL-140-F | Land Use Code | 11 |
| Open Space: | N | DFL | N |
| Historic Property: | N | Remodel Property: | N |
| Multi-Family Redevelopment: | N | | |
| Township: | 7 | Section: | 19 |
| Range: | 36 |
Location |
| Address: | 404 N 6TH AVE WA 99362 | Mapsco: | |
| Neighborhood: | F SFR | Map ID: | |
| Neighborhood CD: | 512011 |
Owner |
| Name: | LEMUS YESENIA | Owner ID: | 60733 |
| Mailing Address: | 404 N 6TH AVE WALLA WALLA, WA 99362 | % Ownership: | 100.0000000000% |
| | | Exemptions: | |
Taxes and Assessment Details
Values
| (+) Improvement Homesite Value: | + | $0 | |
| (+) Improvement Non-Homesite Value: | + | $267,620 | |
| (+) Land Homesite Value: | + | $0 | |
| (+) Land Non-Homesite Value: | + | $25,360 | |
| (+) Curr Use (HS): | + | $0 | $0 |
| (+) Curr Use (NHS): | + | $0 | $0 |
| | | -------------------------- | |
| (=) Market Value: | = | $292,980 | |
| (–) Productivity Loss: | – | $0 | |
| | | -------------------------- | |
| (=) Subtotal: | = | $292,980 | |
| (+) Senior Appraised Value: | + | $0 | |
| (+) Non-Senior Appraised Value: | + | $292,980 | |
| | | -------------------------- | |
| (=) Total Appraised Value: | = | $292,980 | |
| (–) Senior Exemption Loss: | – | $0 | |
| (–) Exemption Loss: | – | $0 | |
| | | -------------------------- | |
| (=) Taxable Value: | = | $292,980 | |
Taxing Jurisdiction
| Owner: | LEMUS YESENIA | | |
| % Ownership: | 100.0000000000% | | |
| Total Value: | $292,980 | | |
| Tax Area: | 1 - OL-140-F |
| CERFD | CURRENT EXPENSE REFUND 010 | 0.0000000000 | $292,980 | $292,980 | $0.00 | | |
| CURREXP | CURRENT EXPENSE 010 | 1.0175366760 | $292,980 | $292,980 | $298.12 | | |
| HUMNSERV | HUMAN SERVICES 119 | 0.0250000000 | $292,980 | $292,980 | $7.32 | | |
| SLDREL | SOLDIERS RELIEF 121 | 0.0155990005 | $292,980 | $292,980 | $4.57 | | |
| EMERGSER | EMS 147 | 0.3792580840 | $292,980 | $292,980 | $111.12 | | |
| EMSRFD | EMS REFUND 147 | 0.0000000000 | $292,980 | $292,980 | $0.00 | | |
| PORTRFD | PORT REFUND 640 | 0.0000000000 | $292,980 | $292,980 | $0.00 | | |
| PORTWWGEN | PORT OF WW 640 | 0.2460186015 | $292,980 | $292,980 | $72.08 | | |
| SD140BOND | SD #140 BOND 764 | 0.8342371393 | $292,980 | $292,980 | $244.41 | | |
| SD140GEN | SD #140 GENERAL 760 | 2.0646500647 | $292,980 | $292,980 | $604.90 | | |
| ST2 | STATE SCHOOL PART 2 600 | 0.8131451643 | $292,980 | $292,980 | $238.24 | | |
| STATESCHL | STATE SCHOOL 600 | 1.5158548041 | $292,980 | $292,980 | $444.12 | | |
| STREFUND | STATE REFUND LEVY 603 | 0.0000000000 | $292,980 | $292,980 | $0.00 | | |
| CWWBOND | C OF WW BOND 643 | 0.2760494372 | $292,980 | $292,980 | $80.88 | | |
| CWWGEN | CITY OF WW 631 | 1.6100204973 | $292,980 | $292,980 | $471.70 | | |
| CWWRFD | CITY OF WALLA WALLA REFUND 631 | 0.0000000000 | $292,980 | $292,980 | $0.00 | | |
| | Total Tax Rate: | 8.7973694689 | | | | | |
| | | | | Taxes w/Current Exemptions: | $2,577.46 | | |
| | | | | Taxes w/o Exemptions: | $2,577.46 | | |
Improvement / Building
| Improvement #1: | RESIDENTIAL | State Code: | 11 | 922.0 sqft | Value: | $267,620 |
| Exterior Wall: | HARDBOARD | Heating/Cooling: | WARM & COOLED AIR | | Number of Bathrooms: | 1 | Number of Bedrooms: | 2 | | Plumbing: | 6 | Roof Covering: | COMP SHINGLE |
|
| | Type | Description | Class CD | Sub Class CD | Year Built | Area |
| | MA | Main Area | 1 | 30 | 1916 | 922.0 |
| | SI1 | SITE IMPROVEMENT | 1 | 30 | 1916 | 1.0 |
| | BASE | BASEMENT | 1 | 30 | 1916 | 520.0 |
| | RPO | OPEN PORCH W/ROOF | 1 | 30 | 1916 | 66.0 |
Sketch
Property Image
Land
| 1 | RES 1 | Converted: Residential | 0.1109 | 4830.00 | 0.00 | 0.00 | 1.00 | $25,360 | $0 |
Roll Value History
| 2026 | N/A | N/A | N/A | N/A | N/A |
| 2025 | $260,060 | $43,470 | $0 | $303,530 | $303,530 |
| 2024 | $208,050 | $43,470 | $0 | $251,520 | $251,520 |
| 2023 | $267,620 | $25,360 | $0 | $292,980 | $292,980 |
| 2022 | $223,020 | $25,360 | $0 | $248,380 | $248,380 |
| 2021 | $159,300 | $25,360 | $0 | $184,660 | $184,660 |
| 2020 | $113,780 | $25,360 | $0 | $139,140 | $139,140 |
| 2019 | $113,780 | $25,360 | $0 | $139,140 | $139,140 |
| 2018 | $103,440 | $25,360 | $0 | $128,800 | $128,800 |
| 2017 | $96,100 | $14,500 | $0 | $110,600 | $110,600 |
| 2016 | $87,360 | $14,500 | $0 | $101,860 | $101,860 |
| 2015 | $87,360 | $14,500 | $0 | $101,860 | $101,860 |
| 2014 | $72,800 | $14,500 | $0 | $87,300 | $87,300 |
| 2013 | $72,800 | $14,500 | $0 | $87,300 | $87,300 |
| 2012 | $72,800 | $14,500 | $0 | $0 | $0 |
| 2011 | $72,800 | $14,500 | $0 | $0 | $0 |
| 2010 | $68,600 | $14,500 | $0 | $0 | $0 |
| 2009 | $77,800 | $14,500 | $0 | $0 | $0 |
| 2008 | $45,900 | $8,500 | $0 | $0 | $0 |
| 2007 | $45,900 | $8,500 | $0 | $0 | $0 |
Deed and Sales History
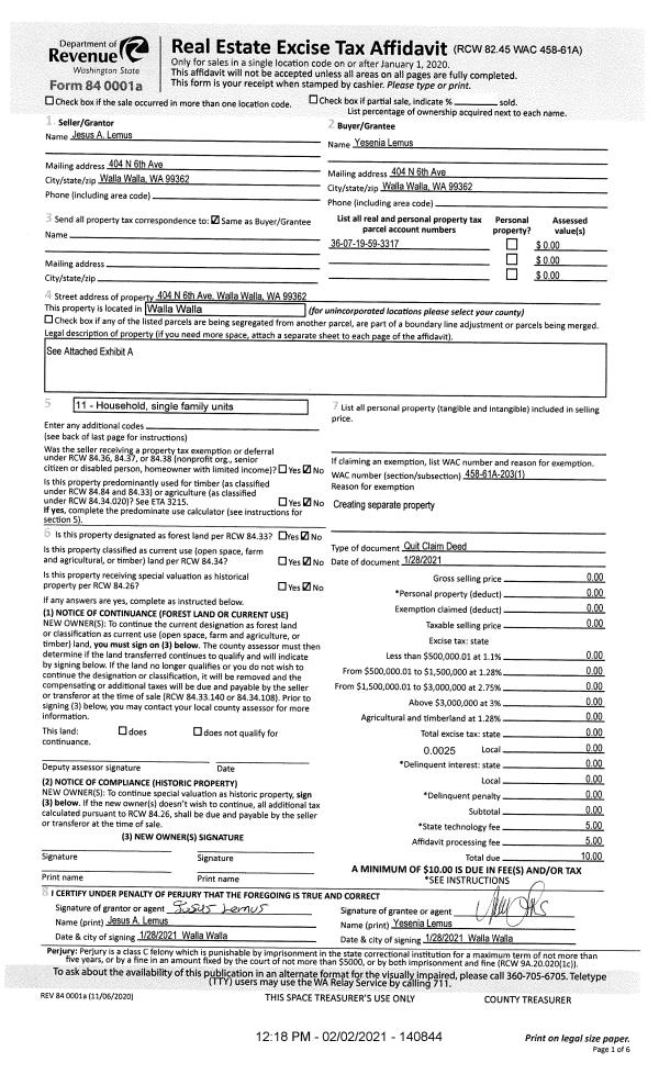
| 1 | 01/28/2021 | QCD | QUIT CLAIM DEED | LEMUS JESUS A | LEMUS YESENIA | | | $0.00 | 140844 | 2021-01287 |
| 2 | 04/20/2017 | SWD | STATUTORY WARRANTY DEED | RUIZ-LEDEZMA RAMON | LEMUS YESENIA | | | $65,000.00 | 132244 | 2017-02990 |
| 3 | 09/30/2008 | QCD | QUIT CLAIM DEED | RUIZ, MARIA C | RUIZ-LEDEZMA, RAMON | | | | 115726 | 2008-10012 |
| 4 | 09/30/2008 | QCD | QUIT CLAIM DEED | RUIZ, RAMON IBARRA | RUIZ-LEDEZMA, RAMON | | | | 115725 | 2008-10011 |
| 5 | 08/21/2008 | QCD | QUIT CLAIM DEED | LEDESMA, MARIA C | RUIZ, RAMON L | | | | 115521 | 2008-08620 |
| 6 | 05/23/2007 | QCD | QUIT CLAIM DEED | RUIZ, RAMON & MARIA IBARRA | LEDEZMA, RAMON RUIZ | | | | 112888 | 2007-05863 |
| 7 | 06/20/2000 | WARRANTY D | WARRANTY DEED | | | | | $32,000.00 | 95300 | 2990-005886 |
Payout Agreement
| No payout information available.. |