Property
Account |
| Property ID: | 7095 | Abbreviated Legal Description: | LANGFORDS W PT OF TAX 2 BLK 30 |
| Parcel Number: | 360719593020 | Agent Code: | |
| Type: | Real | | |
| Tax Area: | 1 - OL-140-F | Land Use Code | 11 |
| Open Space: | N | DFL | N |
| Historic Property: | N | Remodel Property: | N |
| Multi-Family Redevelopment: | N | | |
| Township: | 7 | Section: | 19 |
| Range: | 36 |
Location |
| Address: | 608 N 9TH CT WA 99362 | Mapsco: | |
| Neighborhood: | F SFR | Map ID: | |
| Neighborhood CD: | 512011 |
Owner |
| Name: | MELLISH DAN | Owner ID: | 33884 |
| Mailing Address: | 205 GARDEN DR WALLA WALLA, WA 99362 | % Ownership: | 100.0000000000% |
| | | Exemptions: | |
Taxes and Assessment Details
Property Tax Information as of
02/21/2026
Click on "Statement Details" to expand or collapse a tax statement.
* Please enter a valid date ** Please enter a valid date *
Statement Details |
| | TOTAL: | $0.00 | $0.00 | $0.00 | $0.00 | $0.00 | $0.00 |
|
| | $0.00 | $0.00 | $0.00 | $0.00 | $0.00 | $0.00 |
Values
| (+) Improvement Homesite Value: | + | $0 | |
| (+) Improvement Non-Homesite Value: | + | $57,240 | |
| (+) Land Homesite Value: | + | $0 | |
| (+) Land Non-Homesite Value: | + | $32,580 | |
| (+) Curr Use (HS): | + | $0 | $0 |
| (+) Curr Use (NHS): | + | $0 | $0 |
| | | -------------------------- | |
| (=) Market Value: | = | $89,820 | |
| (–) Productivity Loss: | – | $0 | |
| | | -------------------------- | |
| (=) Subtotal: | = | $89,820 | |
| (+) Senior Appraised Value: | + | $0 | |
| (+) Non-Senior Appraised Value: | + | $89,820 | |
| | | -------------------------- | |
| (=) Total Appraised Value: | = | $89,820 | |
| (–) Senior Exemption Loss: | – | $0 | |
| (–) Exemption Loss: | – | $0 | |
| | | -------------------------- | |
| (=) Taxable Value: | = | $89,820 | |
Taxing Jurisdiction
| Owner: | MELLISH DAN | | |
| % Ownership: | 100.0000000000% | | |
| Total Value: | $89,820 | | |
| Tax Area: | 1 - OL-140-F |
| CERFD | CURRENT EXPENSE REFUND 010 | 0.0000000000 | $89,820 | $89,820 | $0.00 | | |
| CURREXP | CURRENT EXPENSE 010 | 1.0175366760 | $89,820 | $89,820 | $91.40 | | |
| HUMNSERV | HUMAN SERVICES 119 | 0.0250000000 | $89,820 | $89,820 | $2.25 | | |
| SLDREL | SOLDIERS RELIEF 121 | 0.0155990005 | $89,820 | $89,820 | $1.40 | | |
| EMERGSER | EMS 147 | 0.3792580840 | $89,820 | $89,820 | $34.06 | | |
| EMSRFD | EMS REFUND 147 | 0.0000000000 | $89,820 | $89,820 | $0.00 | | |
| PORTRFD | PORT REFUND 640 | 0.0000000000 | $89,820 | $89,820 | $0.00 | | |
| PORTWWGEN | PORT OF WW 640 | 0.2460186015 | $89,820 | $89,820 | $22.10 | | |
| SD140BOND | SD #140 BOND 764 | 0.8342371393 | $89,820 | $89,820 | $74.93 | | |
| SD140GEN | SD #140 GENERAL 760 | 2.0646500647 | $89,820 | $89,820 | $185.45 | | |
| ST2 | STATE SCHOOL PART 2 600 | 0.8131451643 | $89,820 | $89,820 | $73.04 | | |
| STATESCHL | STATE SCHOOL 600 | 1.5158548041 | $89,820 | $89,820 | $136.15 | | |
| STREFUND | STATE REFUND LEVY 603 | 0.0000000000 | $89,820 | $89,820 | $0.00 | | |
| CWWBOND | C OF WW BOND 643 | 0.2760494372 | $89,820 | $89,820 | $24.79 | | |
| CWWGEN | CITY OF WW 631 | 1.6100204973 | $89,820 | $89,820 | $144.61 | | |
| CWWRFD | CITY OF WALLA WALLA REFUND 631 | 0.0000000000 | $89,820 | $89,820 | $0.00 | | |
| | Total Tax Rate: | 8.7973694689 | | | | | |
| | | | | Taxes w/Current Exemptions: | $790.18 | | |
| | | | | Taxes w/o Exemptions: | $790.18 | | |
Improvement / Building
| Improvement #1: | RESIDENTIAL | State Code: | 11 | 1513.0 sqft | Value: | $57,240 |
| Exterior Wall: | STUCCO | Heating/Cooling: | BASEBOARD ELECTRIC | | Number of Bathrooms: | 1 | Number of Bedrooms: | 3 | | Plumbing: | 6 | Roof Covering: | COMP SHINGLE |
|
| | Type | Description | Class CD | Sub Class CD | Year Built | Area |
| | MA | Main Area | 4 | 20 | 1949 | 1513.0 |
| | SI1 | SITE IMPROVEMENT | 4 | 20 | 1949 | 1.0 |
| | DTG | Detached Garage | 4 | 20 | 1949 | 480.0 |
| | RPS | PORCH W/STEPS,ROOF | 4 | 20 | 1949 | 63.0 |
| | RPS | PORCH W/STEPS,ROOF | 4 | 20 | 1949 | 28.0 |
| | S1F | Single One Story Fireplace | 4 | 20 | 1949 | 1.0 |
| | UPFL | Upper Floor (included in main area) | 4 | 20 | 1949 | 501.0 |
Sketch
Property Image
Land
| 1 | RES 1 | Converted: Residential | 0.1424 | 6205.00 | 0.00 | 0.00 | 1.00 | $32,580 | $0 |
Roll Value History
| 2026 | N/A | N/A | N/A | N/A | N/A |
| 2025 | $86,400 | $55,070 | $0 | $141,470 | $141,470 |
| 2024 | $86,400 | $55,850 | $0 | $142,250 | $142,250 |
| 2023 | $57,240 | $32,580 | $0 | $89,820 | $89,820 |
| 2022 | $57,240 | $32,580 | $0 | $89,820 | $89,820 |
| 2021 | $28,620 | $32,580 | $0 | $61,200 | $61,200 |
| 2020 | $28,620 | $32,580 | $0 | $61,200 | $61,200 |
| 2019 | $28,620 | $32,580 | $0 | $61,200 | $61,200 |
| 2018 | $28,620 | $32,580 | $0 | $61,200 | $61,200 |
| 2017 | $31,190 | $18,600 | $0 | $49,790 | $49,790 |
| 2016 | $28,350 | $18,600 | $0 | $46,950 | $46,950 |
| 2015 | $27,000 | $18,600 | $0 | $45,600 | $45,600 |
| 2014 | $27,000 | $18,600 | $0 | $45,600 | $45,600 |
| 2013 | $27,000 | $18,600 | $0 | $45,600 | $45,600 |
| 2012 | $54,500 | $18,600 | $0 | $0 | $0 |
| 2011 | $54,500 | $18,600 | $0 | $0 | $0 |
| 2010 | $54,500 | $18,600 | $0 | $0 | $0 |
| 2009 | $62,600 | $18,600 | $0 | $0 | $0 |
| 2008 | $38,900 | $10,900 | $0 | $0 | $0 |
| 2007 | $38,900 | $10,900 | $0 | $0 | $0 |
Deed and Sales History
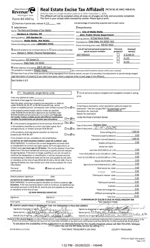
| 1 | 05/28/2025 | WARRANTY D | WARRANTY DEED | MELLISH DAN | WALLA WALLA CITY OF | | | $1,500.00 | 149446 | 2025-02968 |
| 2 | 05/09/2003 | QCD | QUIT CLAIM DEED | EDWARDS, SHANE | MELLISH, DAN | | | $18,332.00 | 102045 | 2003-06787 |
| 3 | 03/24/1999 | WARRANTY D | WARRANTY DEED | | | | | $19,100.00 | 92409 | 2819-903678 |
Payout Agreement
| No payout information available.. |