Property
Account |
| Property ID: | 7069 | Abbreviated Legal Description: | 21-11-35 PTN OF ABAND RR WITHIN SE1/4NW1/4 & WITHIN SW1/4 LESS THEVERY SLY PTN OF THE STRIP IN SW1/4SW1/4 |
| Parcel Number: | 351121240001 | Agent Code: | |
| Type: | Real | | |
| Tax Area: | 365 - 402-1-PR | Land Use Code | 91 |
| Open Space: | N | DFL | N |
| Historic Property: | N | Remodel Property: | N |
| Multi-Family Redevelopment: | N | | |
| Township: | 11 | Section: | 21 |
| Range: | 35 |
Location |
| Address: | WA 99348 | Mapsco: | |
| Neighborhood: | 0 Farm | Map ID: | |
| Neighborhood CD: | 3230 |
Owner |
| Name: | PD INVESTMENT GROUP LLC | Owner ID: | 71285 |
| Mailing Address: | 109 MORO RD WALLA WALLA, WA 99362 | % Ownership: | 100.0000000000% |
| | | Exemptions: | |
Taxes and Assessment Details
Values
| (+) Improvement Homesite Value: | + | N/A | |
| (+) Improvement Non-Homesite Value: | + | N/A | |
| (+) Land Homesite Value: | + | N/A | |
| (+) Land Non-Homesite Value: | + | N/A | Ag / Timber Use Value |
| (+) Curr Use (HS): | + | N/A | N/A |
| (+) Curr Use (NHS): | + | N/A | N/A |
| | | -------------------------- | |
| (=) Market Value: | = | N/A | |
| (–) Productivity Loss: | – | N/A | |
| | | -------------------------- | |
| (=) Subtotal: | = | N/A | |
| (+) Senior Appraised Value: | + | N/A | |
| (+) Non-Senior Appraised Value: | + | N/A | |
| | | -------------------------- | |
| (=) Total Appraised Value: | = | N/A | |
| (–) Senior Exemption Loss: | – | N/A | |
| (–) Exemption Loss: | – | N/A | |
| | | -------------------------- | |
| (=) Taxable Value: | = | N/A | |
Taxing Jurisdiction
| Owner: | PD INVESTMENT GROUP LLC | | |
| % Ownership: | 100.0000000000% | | |
| Total Value: | N/A | | |
| Tax Area: | 365 - 402-1-PR |
| CERFD | CURRENT EXPENSE REFUND 010 | N/A | N/A | N/A | N/A | | |
| CURREXP | CURRENT EXPENSE 010 | N/A | N/A | N/A | N/A | | |
| HUMNSERV | HUMAN SERVICES 119 | N/A | N/A | N/A | N/A | | |
| SLDREL | SOLDIERS RELIEF 121 | N/A | N/A | N/A | N/A | | |
| EMERGSER | EMS 147 | N/A | N/A | N/A | N/A | | |
| EMSRFD | EMS REFUND 147 | N/A | N/A | N/A | N/A | | |
| FD1EXP | FD #1 EXPENSE 680 | N/A | N/A | N/A | N/A | | |
| RLBRFD | RURAL LIBRARY REFUND 623 | N/A | N/A | N/A | N/A | | |
| RURALLIB | RURAL LIBRARY 623 | N/A | N/A | N/A | N/A | | |
| PRESCOTTPR | PRESCOTT P&R 635 | N/A | N/A | N/A | N/A | | |
| PORTRFD | PORT REFUND 640 | N/A | N/A | N/A | N/A | | |
| PORTWWGEN | PORT OF WW 640 | N/A | N/A | N/A | N/A | | |
| PRESCOTTBD | PRESCOTT #402 BOND 814 | N/A | N/A | N/A | N/A | | |
| SD402GEN | SD #402 GENERAL 810 | N/A | N/A | N/A | N/A | | |
| ST2 | STATE SCHOOL PART 2 600 | N/A | N/A | N/A | N/A | | |
| STATESCHL | STATE SCHOOL 600 | N/A | N/A | N/A | N/A | | |
| STREFUND | STATE REFUND LEVY 603 | N/A | N/A | N/A | N/A | | |
| COROAD | COUNTY ROAD 115 | N/A | N/A | N/A | N/A | | |
| CRPRD | COUNTY ROAD REFUND 115 | N/A | N/A | N/A | N/A | | |
| | Total Tax Rate: | N/A | | | | | |
| | | | | Taxes w/Current Exemptions: | N/A | | |
| | | | | Taxes w/o Exemptions: | N/A | | |
Improvement / Building
Sketch
| No sketches available for this property. |
Property Image
Land
| 1 | 55-C2 | Class 2 55 BU | 7.4800 | 0.00 | 0.00 | 0.00 | 1.00 | N/A | N/A |
Roll Value History
| 2026 | N/A | N/A | N/A | N/A | N/A |
| 2025 | $0 | $9,850 | $0 | $9,850 | $9,850 |
| 2024 | $0 | $9,450 | $0 | $9,450 | $9,450 |
| 2023 | $0 | $9,220 | $0 | $9,220 | $9,220 |
| 2022 | $0 | $8,350 | $0 | $8,350 | $8,350 |
| 2021 | $0 | $7,610 | $0 | $7,610 | $7,610 |
| 2020 | $0 | $7,050 | $0 | $7,050 | $7,050 |
| 2019 | $0 | $6,770 | $0 | $6,770 | $6,770 |
| 2018 | $0 | $6,730 | $0 | $6,730 | $6,730 |
| 2017 | $0 | $6,440 | $0 | $6,440 | $6,440 |
| 2016 | $0 | $6,440 | $0 | $6,440 | $6,440 |
| 2015 | $0 | $6,390 | $0 | $6,390 | $6,390 |
| 2014 | $0 | $6,390 | $0 | $6,390 | $6,390 |
| 2013 | $0 | $6,000 | $6,000 | $6,000 | $6,000 |
| 2012 | $0 | $4,400 | $0 | $0 | $0 |
| 2011 | $0 | $4,200 | $0 | $0 | $0 |
| 2010 | $0 | $4,000 | $0 | $0 | $0 |
| 2009 | $0 | $4,000 | $0 | $0 | $0 |
| 2008 | $0 | $3,400 | $0 | $0 | $0 |
| 2007 | $0 | $3,400 | $0 | $0 | $0 |
Deed and Sales History
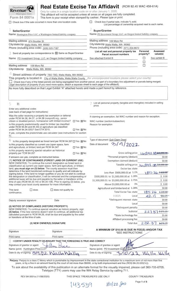
| 1 | 03/09/2022 | QCD | QUIT CLAIM DEED | HUNTINGTON-PRICE LLC | PD INVESTMENT GROUP LLC | | 16-PARCELS | $16,842.00 | 143539 | 2022-02104 |
|   | |
| 2 | 05/12/2005 | WARRANTY D | WARRANTY DEED | "BARNETT GROUP LLC, THE" | HUNTINGTON-PRICE LLC | | | | 107465 | 2005-05690 |
| 3 | 11/10/2003 | WARRANTY D | WARRANTY DEED | BURLINGTON NORTHERN~RAILROAD | ANT LLC | | | | 103480 | 2003-17376 |
| 4 | 11/10/2003 | WARRANTY D | WARRANTY DEED | ANT LLC | BARNETT GROUP LLC THE | | | | 103481 | 2003-17377 |
Payout Agreement
| No payout information available.. |