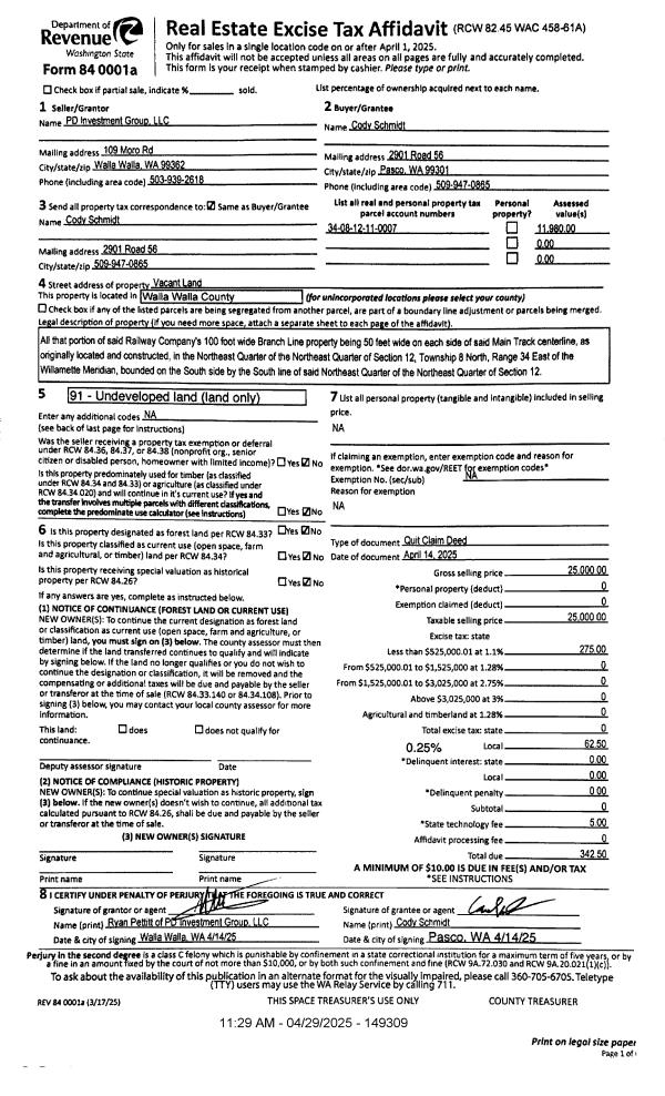
Property
Account |
| Property ID: | 7044 | Abbreviated Legal Description: | 12-8-34 ABAND RR WITHIN NE1/4NE1/4 |
| Parcel Number: | 340812110007 | Agent Code: | |
| Type: | Real | | |
| Tax Area: | 123 - 140-7 | Land Use Code | 91 |
| Open Space: | N | DFL | N |
| Historic Property: | N | Remodel Property: | N |
| Multi-Family Redevelopment: | N | | |
| Township: | 8 | Section: | 12 |
| Range: | 34 |
Location |
| Address: | WA 99362 | Mapsco: | |
| Neighborhood: | F Comm Contig 232640 | Map ID: | |
| Neighborhood CD: | 232610 |
Owner |
| Name: | SCHMIDT CODY | Owner ID: | 77015 |
| Mailing Address: | 2901 ROAD 56 PASCO, WA 99301 | % Ownership: | 100.0000000000% |
| | | Exemptions: | |
Taxes and Assessment Details
Property Tax Information as of
02/21/2026
Click on "Statement Details" to expand or collapse a tax statement.
* Please enter a valid date ** Please enter a valid date *
Statement Details |
| | TOTAL: | $0.00 | $0.00 | $0.00 | $0.00 | $0.00 | $0.00 |
|
| | $0.00 | $0.00 | $0.00 | $0.00 | $0.00 | $0.00 |
Values
| (+) Improvement Homesite Value: | + | $0 | |
| (+) Improvement Non-Homesite Value: | + | $0 | |
| (+) Land Homesite Value: | + | $0 | |
| (+) Land Non-Homesite Value: | + | $11,980 | |
| (+) Curr Use (HS): | + | $0 | $0 |
| (+) Curr Use (NHS): | + | $0 | $0 |
| | | -------------------------- | |
| (=) Market Value: | = | $11,980 | |
| (–) Productivity Loss: | – | $0 | |
| | | -------------------------- | |
| (=) Subtotal: | = | $11,980 | |
| (+) Senior Appraised Value: | + | $0 | |
| (+) Non-Senior Appraised Value: | + | $11,980 | |
| | | -------------------------- | |
| (=) Total Appraised Value: | = | $11,980 | |
| (–) Senior Exemption Loss: | – | $0 | |
| (–) Exemption Loss: | – | $0 | |
| | | -------------------------- | |
| (=) Taxable Value: | = | $11,980 | |
Taxing Jurisdiction
| Owner: | SCHMIDT CODY | | |
| % Ownership: | 100.0000000000% | | |
| Total Value: | $11,980 | | |
| Tax Area: | 123 - 140-7 |
| CERFD | CURRENT EXPENSE REFUND 010 | 0.0000000000 | $11,980 | $11,980 | $0.00 | | |
| CURREXP | CURRENT EXPENSE 010 | 0.9851088983 | $11,980 | $11,980 | $11.80 | | |
| HUMNSERV | HUMAN SERVICES 119 | 0.0250000000 | $11,980 | $11,980 | $0.30 | | |
| SLDREL | SOLDIERS RELIEF 121 | 0.0155990000 | $11,980 | $11,980 | $0.19 | | |
| EMERGSER | EMS 147 | 0.3676811629 | $11,980 | $11,980 | $4.40 | | |
| EMSRFD | EMS REFUND 147 | 0.0000000000 | $11,980 | $11,980 | $0.00 | | |
| FD7EXP | FD #7 EXPENSE 695 | 0.7114681495 | $11,980 | $11,980 | $8.52 | | |
| RLBRFD | RURAL LIBRARY REFUND 623 | 0.0000000000 | $11,980 | $11,980 | $0.00 | | |
| RURALLIB | RURAL LIBRARY 623 | 0.3601547782 | $11,980 | $11,980 | $4.31 | | |
| PORTRFD | PORT REFUND 640 | 0.0000000000 | $11,980 | $11,980 | $0.00 | | |
| PORTWWGEN | PORT OF WW 640 | 0.2344301070 | $11,980 | $11,980 | $2.81 | | |
| SD140BOND | SD #140 BOND 764 | 0.8032434458 | $11,980 | $11,980 | $9.62 | | |
| SD140CAP | SD #140 CAP 762 | 0.3840034221 | $11,980 | $11,980 | $4.60 | | |
| SD140GEN | SD #140 GENERAL 760 | 2.4999999996 | $11,980 | $11,980 | $29.95 | | |
| ST2 | STATE SCHOOL PART 2 600 | 0.8853714103 | $11,980 | $11,980 | $10.61 | | |
| STATESCHL | STATE SCHOOL 600 | 1.6424571473 | $11,980 | $11,980 | $19.68 | | |
| STREFUND | STATE REFUND LEVY 603 | 0.0000000000 | $11,980 | $11,980 | $0.00 | | |
| COROAD | COUNTY ROAD 115 | 1.6137667997 | $11,980 | $11,980 | $19.33 | | |
| CRPRD | COUNTY ROAD REFUND 115 | 0.0000000000 | $11,980 | $11,980 | $0.00 | | |
| | Total Tax Rate: | 10.5282843207 | | | | | |
| | | | | Taxes w/Current Exemptions: | $126.12 | | |
| | | | | Taxes w/o Exemptions: | $126.12 | | |
Improvement / Building
Sketch
| No sketches available for this property. |
Property Image
Land
| 1 | COM 1 | Converted: Commercial | 3.3300 | 0.00 | 0.00 | 0.00 | 1.00 | $11,980 | $0 |
Roll Value History
| 2026 | N/A | N/A | N/A | N/A | N/A |
| 2025 | $0 | $11,980 | $0 | $11,980 | $11,980 |
| 2024 | $0 | $11,980 | $0 | $11,980 | $11,980 |
| 2023 | $0 | $11,980 | $0 | $11,980 | $11,980 |
| 2022 | $0 | $11,980 | $0 | $11,980 | $11,980 |
| 2021 | $0 | $11,980 | $0 | $11,980 | $11,980 |
| 2020 | $0 | $1,500 | $0 | $1,500 | $1,500 |
| 2019 | $0 | $1,500 | $0 | $1,500 | $1,500 |
| 2018 | $0 | $1,500 | $0 | $1,500 | $1,500 |
| 2017 | $0 | $1,500 | $0 | $1,500 | $1,500 |
| 2016 | $0 | $1,500 | $0 | $1,500 | $1,500 |
| 2015 | $0 | $1,500 | $0 | $1,500 | $1,500 |
| 2014 | $0 | $1,500 | $0 | $1,500 | $1,500 |
| 2013 | $0 | $1,500 | $0 | $1,500 | $1,500 |
| 2012 | $0 | $1,500 | $0 | $0 | $0 |
| 2011 | $0 | $1,500 | $0 | $0 | $0 |
| 2010 | $0 | $1,500 | $0 | $0 | $0 |
| 2009 | $0 | $1,500 | $0 | $0 | $0 |
| 2008 | $0 | $1,500 | $0 | $0 | $0 |
| 2007 | $0 | $1,500 | $0 | $0 | $0 |
Deed and Sales History
| 1 | 04/29/2025 | QCD | QUIT CLAIM DEED | PD INVESTMENT GROUP LLC | SCHMIDT CODY | | | $25,000.00 | 149309 | 2025-02298 |
| 2 | 03/09/2022 | QCD | QUIT CLAIM DEED | HUNTINGTON-PRICE LLC | PD INVESTMENT GROUP LLC | | 16-PARCELS | $16,842.00 | 143539 | 2022-02104 |
|   | |
| 3 | 05/12/2005 | WARRANTY D | WARRANTY DEED | "BARNETT GROUP LLC, THE" | HUNTINGTON-PRICE LLC | | | | 107465 | 2005-05690 |
| 4 | 11/10/2003 | WARRANTY D | WARRANTY DEED | ANT LLC | BARNETT GROUP LLC THE | | | | 103481 | 2003-17377 |
| 5 | 11/10/2003 | WARRANTY D | WARRANTY DEED | BURLINGTON NORTHERN~RAILROAD | ANT LLC | | | | 103480 | 2003-17376 |
Payout Agreement
| No payout information available.. |