Property
Account |
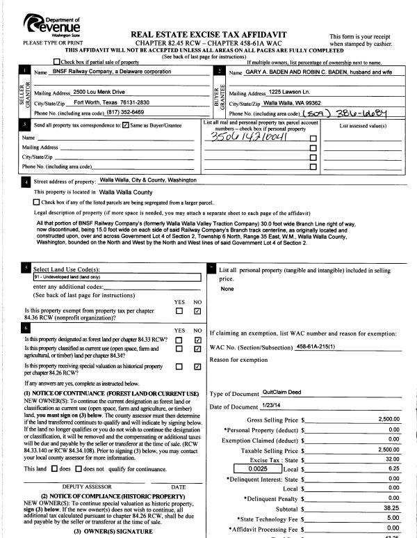
| Property ID: | 7017 | Abbreviated Legal Description: | 14-6-35 GOVT LOT 1 & GOVT LOT 2 ABAND RR WITHIN N1/2 SEC 14 (RUNNING E & W ALONG STATELINE) LESS PTN TO TAX 17; LESS WLY PTN GOV LOT 2 |
| Parcel Number: | 350614210041 | Agent Code: | |
| Type: | Real | | |
| Tax Area: | 311 - 250-4 | Land Use Code | 41 |
| Open Space: | N | DFL | N |
| Historic Property: | N | Remodel Property: | N |
| Multi-Family Redevelopment: | N | | |
| Township: | 6 | Section: | 14 |
| Range: | 35 |
Location |
| Address: | STATELINE RD WA 99324 | Mapsco: | |
| Neighborhood: | A Land Only Ext Rural | Map ID: | |
| Neighborhood CD: | 213094 |
Owner |
| Name: | BNSF RAILWAY COMPANY | Owner ID: | 704 |
| Mailing Address: | DBA BNSF RR PO BOX 961089 FORT WORTH, TX 76161 | % Ownership: | 100.0000000000% |
| | | Exemptions: | |
Taxes and Assessment Details
Property Tax Information as of
02/21/2026
Click on "Statement Details" to expand or collapse a tax statement.
* Please enter a valid date ** Please enter a valid date *
Statement Details |
| | TOTAL: | $0.00 | $0.00 | $0.00 | $0.00 | $0.00 | $0.00 |
|
| | $0.00 | $0.00 | $0.00 | $0.00 | $0.00 | $0.00 |
Values
| (+) Improvement Homesite Value: | + | $0 | |
| (+) Improvement Non-Homesite Value: | + | $0 | |
| (+) Land Homesite Value: | + | $0 | |
| (+) Land Non-Homesite Value: | + | $26,100 | |
| (+) Curr Use (HS): | + | $0 | $0 |
| (+) Curr Use (NHS): | + | $0 | $0 |
| | | -------------------------- | |
| (=) Market Value: | = | $26,100 | |
| (–) Productivity Loss: | – | $0 | |
| | | -------------------------- | |
| (=) Subtotal: | = | $26,100 | |
| (+) Senior Appraised Value: | + | $0 | |
| (+) Non-Senior Appraised Value: | + | $26,100 | |
| | | -------------------------- | |
| (=) Total Appraised Value: | = | $26,100 | |
| (–) Senior Exemption Loss: | – | $0 | |
| (–) Exemption Loss: | – | $0 | |
| | | -------------------------- | |
| (=) Taxable Value: | = | $26,100 | |
Taxing Jurisdiction
| Owner: | BNSF RAILWAY COMPANY | | |
| % Ownership: | 100.0000000000% | | |
| Total Value: | $26,100 | | |
| Tax Area: | 311 - 250-4 |
| CERFD | CURRENT EXPENSE REFUND 010 | 0.0000000000 | $26,100 | $26,100 | $0.00 | | |
| CURREXP | CURRENT EXPENSE 010 | 1.0175366760 | $26,100 | $26,100 | $26.56 | | |
| HUMNSERV | HUMAN SERVICES 119 | 0.0250000000 | $26,100 | $26,100 | $0.65 | | |
| SLDREL | SOLDIERS RELIEF 121 | 0.0155990005 | $26,100 | $26,100 | $0.41 | | |
| EMERGSER | EMS 147 | 0.3792580840 | $26,100 | $26,100 | $9.90 | | |
| EMSRFD | EMS REFUND 147 | 0.0000000000 | $26,100 | $26,100 | $0.00 | | |
| FD4EXP | FD #4 EXPENSE 686 | 0.8836993059 | $26,100 | $26,100 | $23.06 | | |
| RLBRFD | RURAL LIBRARY REFUND 623 | 0.0000000000 | $26,100 | $26,100 | $0.00 | | |
| RURALLIB | RURAL LIBRARY 623 | 0.3710609029 | $26,100 | $26,100 | $9.68 | | |
| PORTRFD | PORT REFUND 640 | 0.0000000000 | $26,100 | $26,100 | $0.00 | | |
| PORTWWGEN | PORT OF WW 640 | 0.2460186015 | $26,100 | $26,100 | $6.42 | | |
| SD250BOND | SD #250 BOND 773 | 1.4560608159 | $26,100 | $26,100 | $38.00 | | |
| SD250GEN | SD #250 GENERAL 770 | 2.3880724087 | $26,100 | $26,100 | $62.33 | | |
| ST2 | STATE SCHOOL PART 2 600 | 0.8131451643 | $26,100 | $26,100 | $21.22 | | |
| STATESCHL | STATE SCHOOL 600 | 1.5158548041 | $26,100 | $26,100 | $39.56 | | |
| STREFUND | STATE REFUND LEVY 603 | 0.0000000000 | $26,100 | $26,100 | $0.00 | | |
| COROAD | COUNTY ROAD 115 | 1.6549953990 | $26,100 | $26,100 | $43.20 | | |
| CRPRD | COUNTY ROAD REFUND 115 | 0.0000000000 | $26,100 | $26,100 | $0.00 | | |
| | Total Tax Rate: | 10.7663011628 | | | | | |
| | | | | Taxes w/Current Exemptions: | $280.99 | | |
| | | | | Taxes w/o Exemptions: | $280.99 | | |
Improvement / Building
Sketch
| No sketches available for this property. |
Property Image
Land
| 1 | RES 1 | Converted: Residential | 0.5000 | 21780.00 | 0.00 | 0.00 | 1.00 | $26,100 | $0 |
Roll Value History
| 2026 | N/A | N/A | N/A | N/A | N/A |
| 2025 | $0 | $26,100 | $0 | $26,100 | $26,100 |
| 2024 | $0 | $26,100 | $0 | $26,100 | $26,100 |
| 2023 | $0 | $26,100 | $0 | $26,100 | $26,100 |
| 2022 | $0 | $26,100 | $0 | $26,100 | $26,100 |
| 2021 | $0 | $26,100 | $0 | $26,100 | $26,100 |
| 2020 | $0 | $37,500 | $0 | $37,500 | $37,500 |
| 2019 | $0 | $37,500 | $0 | $37,500 | $37,500 |
| 2018 | $0 | $37,500 | $0 | $37,500 | $37,500 |
| 2017 | $0 | $37,500 | $0 | $37,500 | $37,500 |
| 2016 | $0 | $37,500 | $0 | $37,500 | $37,500 |
| 2015 | $0 | $37,500 | $0 | $37,500 | $37,500 |
| 2014 | $0 | $75,900 | $0 | $75,900 | $75,900 |
| 2013 | $0 | $76,700 | $0 | $76,700 | $76,700 |
| 2012 | $0 | $76,700 | $0 | $0 | $0 |
| 2011 | $0 | $76,700 | $0 | $0 | $0 |
| 2010 | $0 | $76,700 | $0 | $0 | $0 |
| 2009 | $0 | $5,300 | $0 | $0 | $0 |
| 2008 | $0 | $5,300 | $0 | $0 | $0 |
| 2007 | $0 | $5,300 | $0 | $0 | $0 |
Deed and Sales History
| 1 | 02/14/2014 | QCD | QUIT CLAIM DEED | BNSF RAILWAY COMPANY | BLACKMAN LORNE & AURALEA | | | $2,500.00 | 125434 | 2014-01142 |
|   | |
Payout Agreement
| No payout information available.. |