Property
Account |
| Property ID: | 7005 | Abbreviated Legal Description: | 14-6-35 LOT A2 SHORT PLAT 2/232 1993-08227 (PTN WITHIN SELY PT LOT 2) |
| Parcel Number: | 350614210035 | Agent Code: | |
| Type: | Real | | |
| Tax Area: | 311 - 250-4 | Land Use Code | 11 |
| Open Space: | N | DFL | N |
| Historic Property: | N | Remodel Property: | N |
| Multi-Family Redevelopment: | N | | |
| Township: | 6 | Section: | 14 |
| Range: | 35 |
Location |
| Address: | 794 COUNTY RD #448 WA 99362 | Mapsco: | |
| Neighborhood: | VG SFR RURAL | Map ID: | |
| Neighborhood CD: | 215013 |
Owner |
| Name: | ANDERSON ERIC W & HOLLY H | Owner ID: | 69389 |
| Mailing Address: | 794 COUNTY RD #448 WALLA WALLA, WA 99362 | % Ownership: | 100.0000000000% |
| | | Exemptions: | |
Taxes and Assessment Details
Property Tax Information as of
02/21/2026
Click on "Statement Details" to expand or collapse a tax statement.
* Please enter a valid date ** Please enter a valid date *
Statement Details |
| | TOTAL: | $0.00 | $0.00 | $0.00 | $0.00 | $0.00 | $0.00 |
|
| | $0.00 | $0.00 | $0.00 | $0.00 | $0.00 | $0.00 |
Values
| (+) Improvement Homesite Value: | + | $0 | |
| (+) Improvement Non-Homesite Value: | + | $253,030 | |
| (+) Land Homesite Value: | + | $0 | |
| (+) Land Non-Homesite Value: | + | $150,000 | |
| (+) Curr Use (HS): | + | $0 | $0 |
| (+) Curr Use (NHS): | + | $0 | $0 |
| | | -------------------------- | |
| (=) Market Value: | = | $403,030 | |
| (–) Productivity Loss: | – | $0 | |
| | | -------------------------- | |
| (=) Subtotal: | = | $403,030 | |
| (+) Senior Appraised Value: | + | $0 | |
| (+) Non-Senior Appraised Value: | + | $403,030 | |
| | | -------------------------- | |
| (=) Total Appraised Value: | = | $403,030 | |
| (–) Senior Exemption Loss: | – | $0 | |
| (–) Exemption Loss: | – | $0 | |
| | | -------------------------- | |
| (=) Taxable Value: | = | $403,030 | |
Taxing Jurisdiction
| Owner: | ANDERSON ERIC W & HOLLY H | | |
| % Ownership: | 100.0000000000% | | |
| Total Value: | $403,030 | | |
| Tax Area: | 311 - 250-4 |
| CERFD | CURRENT EXPENSE REFUND 010 | 0.0000000000 | $403,030 | $403,030 | $0.00 | | |
| CURREXP | CURRENT EXPENSE 010 | 1.0175366760 | $403,030 | $403,030 | $410.10 | | |
| HUMNSERV | HUMAN SERVICES 119 | 0.0250000000 | $403,030 | $403,030 | $10.08 | | |
| SLDREL | SOLDIERS RELIEF 121 | 0.0155990005 | $403,030 | $403,030 | $6.29 | | |
| EMERGSER | EMS 147 | 0.3792580840 | $403,030 | $403,030 | $152.85 | | |
| EMSRFD | EMS REFUND 147 | 0.0000000000 | $403,030 | $403,030 | $0.00 | | |
| FD4EXP | FD #4 EXPENSE 686 | 0.8836993059 | $403,030 | $403,030 | $356.16 | | |
| RLBRFD | RURAL LIBRARY REFUND 623 | 0.0000000000 | $403,030 | $403,030 | $0.00 | | |
| RURALLIB | RURAL LIBRARY 623 | 0.3710609029 | $403,030 | $403,030 | $149.55 | | |
| PORTRFD | PORT REFUND 640 | 0.0000000000 | $403,030 | $403,030 | $0.00 | | |
| PORTWWGEN | PORT OF WW 640 | 0.2460186015 | $403,030 | $403,030 | $99.15 | | |
| SD250BOND | SD #250 BOND 773 | 1.4560608159 | $403,030 | $403,030 | $586.84 | | |
| SD250GEN | SD #250 GENERAL 770 | 2.3880724087 | $403,030 | $403,030 | $962.46 | | |
| ST2 | STATE SCHOOL PART 2 600 | 0.8131451643 | $403,030 | $403,030 | $327.72 | | |
| STATESCHL | STATE SCHOOL 600 | 1.5158548041 | $403,030 | $403,030 | $610.93 | | |
| STREFUND | STATE REFUND LEVY 603 | 0.0000000000 | $403,030 | $403,030 | $0.00 | | |
| COROAD | COUNTY ROAD 115 | 1.6549953990 | $403,030 | $403,030 | $667.01 | | |
| CRPRD | COUNTY ROAD REFUND 115 | 0.0000000000 | $403,030 | $403,030 | $0.00 | | |
| | Total Tax Rate: | 10.7663011628 | | | | | |
| | | | | Taxes w/Current Exemptions: | $4,339.14 | | |
| | | | | Taxes w/o Exemptions: | $4,339.14 | | |
Improvement / Building
| Improvement #1: | RESIDENTIAL | State Code: | 11 | 1536.0 sqft | Value: | $253,030 |
| Exterior Wall: | PLYWOOD | Heating/Cooling: | WARM & COOLED AIR | | Number of Bathrooms: | 2 | Number of Bedrooms: | 3 | | Plumbing: | 8 | Roof Covering: | COMP SHINGLE |
|
| | Type | Description | Class CD | Sub Class CD | Year Built | Area |
| | MA | Main Area | 1 | 30 | 2004 | 1536.0 |
| | SI1 | SITE IMPROVEMENT | 1 | 30 | 2004 | 1.5 |
| | RPO | OPEN PORCH W/ROOF | 1 | 30 | 2004 | 288.0 |
| | RPO | OPEN PORCH W/ROOF | 1 | 30 | 2004 | 240.0 |
| | POL3 | POLE BUILDING-CON,ELEC,INSU | 1 | 30 | 2004 | 864.0 |
| | FBAT | FULL BATH | 1 | 30 | 2004 | 1.0 |
| | POL2 | POLE BUILDING-CONCRETE | 1 | 30 | 2022 | 2400.0 |
Sketch
Property Image
Land
| 1 | RES 1 | Converted: Residential | 1.0000 | 0.00 | 0.00 | 0.00 | 1.00 | $150,000 | $0 |
Roll Value History
| 2026 | N/A | N/A | N/A | N/A | N/A |
| 2025 | $348,420 | $150,000 | $0 | $498,420 | $498,420 |
| 2024 | $348,420 | $150,000 | $0 | $498,420 | $498,420 |
| 2023 | $253,030 | $150,000 | $0 | $403,030 | $403,030 |
| 2022 | $230,030 | $150,000 | $0 | $380,030 | $380,030 |
| 2021 | $203,740 | $150,000 | $0 | $353,740 | $353,740 |
| 2020 | $203,740 | $75,000 | $0 | $278,740 | $278,740 |
| 2019 | $203,740 | $75,000 | $0 | $278,740 | $278,740 |
| 2018 | $185,220 | $75,000 | $0 | $260,220 | $260,220 |
| 2017 | $185,220 | $75,000 | $0 | $260,220 | $260,220 |
| 2016 | $176,400 | $75,000 | $0 | $251,400 | $251,400 |
| 2015 | $147,000 | $75,000 | $0 | $222,000 | $222,000 |
| 2014 | $147,000 | $75,000 | $0 | $222,000 | $222,000 |
| 2013 | $147,000 | $75,000 | $0 | $222,000 | $222,000 |
| 2012 | $147,000 | $75,000 | $0 | $0 | $0 |
| 2011 | $147,000 | $75,000 | $0 | $0 | $0 |
| 2010 | $147,000 | $75,000 | $0 | $0 | $0 |
| 2009 | $177,200 | $45,000 | $0 | $0 | $0 |
| 2008 | $140,200 | $45,000 | $0 | $0 | $0 |
| 2007 | $140,200 | $45,000 | $0 | $0 | $0 |
Deed and Sales History
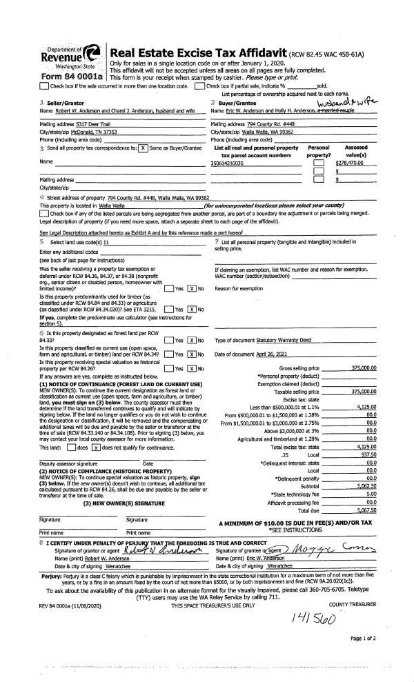
| 1 | 05/14/2021 | SWD | STATUTORY WARRANTY DEED | ANDERSON ROBERT W & CHAREL J | ANDERSON ERIC W & HOLLY H | | | $375,000.00 | 141560 | 2021-05833 |
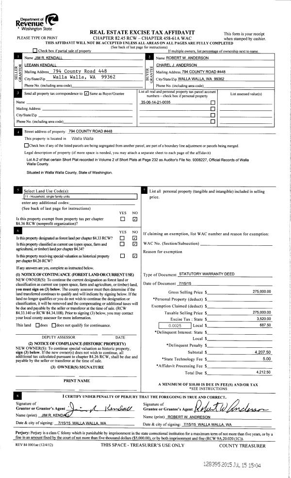
| 2 | 07/15/2015 | SWD | STATUTORY WARRANTY DEED | KENDALL JIM R & LEEANN | ANDERSON ROBERT W & CHAREL J | | | $275,000.00 | 128395 | 2015-06059 |
| 3 | 09/05/2003 | WARRANTY D | WARRANTY DEED | WAGNER, THOMAS D & ADELINE | KENDALL, JIM R & LEEANN | | | $49,500.00 | 102941 | 2003-13517 |
Payout Agreement
| No payout information available.. |