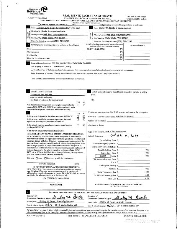
Property
Account |
| Property ID: | 6984 | Abbreviated Legal Description: | MELODY PARK TERRACE TAX 41 LOT 86 |
| Parcel Number: | 360716540086 | Agent Code: | |
| Type: | Real | | |
| Tax Area: | 5 - OL-140 | Land Use Code | 11 |
| Open Space: | N | DFL | N |
| Historic Property: | N | Remodel Property: | N |
| Multi-Family Redevelopment: | N | | |
| Township: | 7 | Section: | 16 |
| Range: | 36 |
Location |
| Address: | 938 BLUE MOUNTAIN DR WA 99362 | Mapsco: | |
| Neighborhood: | A-SFR | Map ID: | |
| Neighborhood CD: | 313011 |
Owner |
| Name: | SCHNEIDER SAMUEL J | Owner ID: | 71509 |
| Mailing Address: | SOPHIA M SCHIEFELBEIN 938 BLUE MOUNTAIN DR WALLA WALLA, WA 99362 | % Ownership: | 100.0000000000% |
| | | Exemptions: | |
Taxes and Assessment Details
Values
| (+) Improvement Homesite Value: | + | $0 | |
| (+) Improvement Non-Homesite Value: | + | $325,200 | |
| (+) Land Homesite Value: | + | $0 | |
| (+) Land Non-Homesite Value: | + | $90,000 | |
| (+) Curr Use (HS): | + | $0 | $0 |
| (+) Curr Use (NHS): | + | $0 | $0 |
| | | -------------------------- | |
| (=) Market Value: | = | $415,200 | |
| (–) Productivity Loss: | – | $0 | |
| | | -------------------------- | |
| (=) Subtotal: | = | $415,200 | |
| (+) Senior Appraised Value: | + | $0 | |
| (+) Non-Senior Appraised Value: | + | $415,200 | |
| | | -------------------------- | |
| (=) Total Appraised Value: | = | $415,200 | |
| (–) Senior Exemption Loss: | – | $0 | |
| (–) Exemption Loss: | – | $0 | |
| | | -------------------------- | |
| (=) Taxable Value: | = | $415,200 | |
Taxing Jurisdiction
| Owner: | SCHNEIDER SAMUEL J | | |
| % Ownership: | 100.0000000000% | | |
| Total Value: | $415,200 | | |
| Tax Area: | 5 - OL-140 |
| CERFD | CURRENT EXPENSE REFUND 010 | 0.0000000000 | $415,200 | $415,200 | $0.00 | | |
| CURREXP | CURRENT EXPENSE 010 | 1.0175366760 | $415,200 | $415,200 | $422.48 | | |
| HUMNSERV | HUMAN SERVICES 119 | 0.0250000000 | $415,200 | $415,200 | $10.38 | | |
| SLDREL | SOLDIERS RELIEF 121 | 0.0155990005 | $415,200 | $415,200 | $6.48 | | |
| EMERGSER | EMS 147 | 0.3792580840 | $415,200 | $415,200 | $157.47 | | |
| EMSRFD | EMS REFUND 147 | 0.0000000000 | $415,200 | $415,200 | $0.00 | | |
| PORTRFD | PORT REFUND 640 | 0.0000000000 | $415,200 | $415,200 | $0.00 | | |
| PORTWWGEN | PORT OF WW 640 | 0.2460186015 | $415,200 | $415,200 | $102.15 | | |
| SD140BOND | SD #140 BOND 764 | 0.8342371393 | $415,200 | $415,200 | $346.38 | | |
| SD140GEN | SD #140 GENERAL 760 | 2.0646500647 | $415,200 | $415,200 | $857.24 | | |
| ST2 | STATE SCHOOL PART 2 600 | 0.8131451643 | $415,200 | $415,200 | $337.62 | | |
| STATESCHL | STATE SCHOOL 600 | 1.5158548041 | $415,200 | $415,200 | $629.38 | | |
| STREFUND | STATE REFUND LEVY 603 | 0.0000000000 | $415,200 | $415,200 | $0.00 | | |
| CWWBOND | C OF WW BOND 643 | 0.2760494372 | $415,200 | $415,200 | $114.62 | | |
| CWWGEN | CITY OF WW 631 | 1.6100204973 | $415,200 | $415,200 | $668.48 | | |
| CWWRFD | CITY OF WALLA WALLA REFUND 631 | 0.0000000000 | $415,200 | $415,200 | $0.00 | | |
| | Total Tax Rate: | 8.7973694689 | | | | | |
| | | | | Taxes w/Current Exemptions: | $3,652.68 | | |
| | | | | Taxes w/o Exemptions: | $3,652.68 | | |
Improvement / Building
| Improvement #1: | RESIDENTIAL | State Code: | 11 | 1334.0 sqft | Value: | $325,200 |
| Exterior Wall: | PLYWOOD | Heating/Cooling: | WARM & COOLED AIR | | Number of Bathrooms: | 2 | Number of Bedrooms: | 3 | | Plumbing: | 11 | Roof Covering: | COMP SHINGLE |
|
| | Type | Description | Class CD | Sub Class CD | Year Built | Area |
| | MA | Main Area | 1 | 35 | 1968 | 1334.0 |
| | SI1 | SITE IMPROVEMENT | 1 | 35 | 1968 | 5.0 |
| | BASE | BASEMENT | 1 | 35 | 1968 | 1334.0 |
| | RPO | OPEN PORCH W/ROOF | 1 | 35 | 1968 | 92.0 |
| | S1F | Single One Story Fireplace | 1 | 35 | 1968 | 1.0 |
| | ATG | Attached Garage | 1 | 35 | 1968 | 862.0 |
| | CPC | COVERED CARPORT/PATIO | 1 | 35 | 1968 | 420.0 |
| | GFP | GAS FIREPLACE | 1 | 35 | 1968 | 1.0 |
Sketch
Property Image
Land
| 1 | RES 1 | Converted: Residential | 0.3844 | 16745.00 | 0.00 | 0.00 | 1.00 | $90,000 | $0 |
Roll Value History
| 2026 | N/A | N/A | N/A | N/A | N/A |
| 2025 | $325,200 | $90,000 | $0 | $415,200 | $415,200 |
| 2024 | $325,200 | $90,000 | $0 | $415,200 | $415,200 |
| 2023 | $325,200 | $90,000 | $0 | $415,200 | $415,200 |
| 2022 | $325,200 | $90,000 | $0 | $415,200 | $415,200 |
| 2021 | $185,200 | $55,000 | $0 | $240,200 | $240,200 |
| 2020 | $176,380 | $55,000 | $0 | $231,380 | $231,380 |
| 2019 | $176,380 | $55,000 | $0 | $231,380 | $231,380 |
| 2018 | $153,370 | $55,000 | $0 | $208,370 | $208,370 |
| 2017 | $146,070 | $55,000 | $0 | $201,070 | $201,070 |
| 2016 | $132,790 | $55,000 | $0 | $187,790 | $187,790 |
| 2015 | $117,100 | $55,000 | $0 | $172,100 | $172,100 |
| 2014 | $117,100 | $55,000 | $0 | $172,100 | $172,100 |
| 2013 | $117,100 | $55,000 | $0 | $172,100 | $172,100 |
| 2012 | $126,200 | $55,000 | $0 | $0 | $0 |
| 2011 | $126,200 | $55,000 | $0 | $0 | $0 |
| 2010 | $131,400 | $40,000 | $0 | $0 | $0 |
| 2009 | $150,400 | $40,000 | $0 | $0 | $0 |
| 2008 | $112,300 | $40,000 | $0 | $0 | $0 |
| 2007 | $112,300 | $40,000 | $0 | $0 | $0 |
Deed and Sales History
| 1 | 04/22/2022 | DPR | DEED OF PERSONAL REPRESENTATIVE | BEALS SHIRLEY M ESTATE OF | SCHNEIDER SAMUEL J | | | $424,000.00 | 143817 | 2022-03442 |
| 2 | 10/10/2019 | LOPA | LACK OF PROBATE AFFIDAVIT | BEALS DALLAS L & SHIRLEY M | BEALS SHIRLEY M ESTATE OF | | | $0.00 | 137858 | 2019-08127 |
| 3 | 04/06/2004 | WARRANTY D | WARRANTY DEED | KLONE, FRANCES | BEALS, DALLAS L & SHIRLEY M | | | $152,550.00 | 103870 | 2004-00143 |
| 4 | 07/23/1985 | WARRANTY D | WARRANTY DEED | | | | | $59,000.00 | 66198 | 1518-504856 |
Payout Agreement
| No payout information available.. |