Property
Account |
| Property ID: | 6958 | Abbreviated Legal Description: | 29-7-35 LOT 4 OF SHORT PLAT (SELY PTN SE1/4SE1/4 LESS RD) |
| Parcel Number: | 350729440007 | Agent Code: | |
| Type: | Real | | |
| Tax Area: | 311 - 250-4 | Land Use Code | 11 |
| Open Space: | N | DFL | N |
| Historic Property: | N | Remodel Property: | N |
| Multi-Family Redevelopment: | N | | |
| Township: | 7 | Section: | 29 |
| Range: | 35 |
Location |
| Address: | 126 LAST CHANCE RD WA 99324 | Mapsco: | |
| Neighborhood: | A SFR Rural/City Infl | Map ID: | |
| Neighborhood CD: | 313012 |
Owner |
| Name: | HINER DIEHL J & JESSICA | Owner ID: | 66254 |
| Mailing Address: | 126 LAST CHANCE RD WALLA WALLA, WA 99362 | % Ownership: | 100.0000000000% |
| | | Exemptions: | |
Taxes and Assessment Details
Values
| (+) Improvement Homesite Value: | + | $0 | |
| (+) Improvement Non-Homesite Value: | + | $277,740 | |
| (+) Land Homesite Value: | + | $0 | |
| (+) Land Non-Homesite Value: | + | $175,000 | |
| (+) Curr Use (HS): | + | $0 | $0 |
| (+) Curr Use (NHS): | + | $0 | $0 |
| | | -------------------------- | |
| (=) Market Value: | = | $452,740 | |
| (–) Productivity Loss: | – | $0 | |
| | | -------------------------- | |
| (=) Subtotal: | = | $452,740 | |
| (+) Senior Appraised Value: | + | $0 | |
| (+) Non-Senior Appraised Value: | + | $452,740 | |
| | | -------------------------- | |
| (=) Total Appraised Value: | = | $452,740 | |
| (–) Senior Exemption Loss: | – | $0 | |
| (–) Exemption Loss: | – | $0 | |
| | | -------------------------- | |
| (=) Taxable Value: | = | $452,740 | |
Taxing Jurisdiction
| Owner: | HINER DIEHL J & JESSICA | | |
| % Ownership: | 100.0000000000% | | |
| Total Value: | $452,740 | | |
| Tax Area: | 311 - 250-4 |
| CERFD | CURRENT EXPENSE REFUND 010 | 0.0000000000 | $452,740 | $452,740 | $0.00 | | |
| CURREXP | CURRENT EXPENSE 010 | 1.0175366760 | $452,740 | $452,740 | $460.68 | | |
| HUMNSERV | HUMAN SERVICES 119 | 0.0250000000 | $452,740 | $452,740 | $11.32 | | |
| SLDREL | SOLDIERS RELIEF 121 | 0.0155990005 | $452,740 | $452,740 | $7.06 | | |
| EMERGSER | EMS 147 | 0.3792580840 | $452,740 | $452,740 | $171.71 | | |
| EMSRFD | EMS REFUND 147 | 0.0000000000 | $452,740 | $452,740 | $0.00 | | |
| FD4EXP | FD #4 EXPENSE 686 | 0.8836993059 | $452,740 | $452,740 | $400.09 | | |
| RLBRFD | RURAL LIBRARY REFUND 623 | 0.0000000000 | $452,740 | $452,740 | $0.00 | | |
| RURALLIB | RURAL LIBRARY 623 | 0.3710609029 | $452,740 | $452,740 | $167.99 | | |
| PORTRFD | PORT REFUND 640 | 0.0000000000 | $452,740 | $452,740 | $0.00 | | |
| PORTWWGEN | PORT OF WW 640 | 0.2460186015 | $452,740 | $452,740 | $111.38 | | |
| SD250BOND | SD #250 BOND 773 | 1.4560608159 | $452,740 | $452,740 | $659.22 | | |
| SD250GEN | SD #250 GENERAL 770 | 2.3880724087 | $452,740 | $452,740 | $1,081.18 | | |
| ST2 | STATE SCHOOL PART 2 600 | 0.8131451643 | $452,740 | $452,740 | $368.14 | | |
| STATESCHL | STATE SCHOOL 600 | 1.5158548041 | $452,740 | $452,740 | $686.29 | | |
| STREFUND | STATE REFUND LEVY 603 | 0.0000000000 | $452,740 | $452,740 | $0.00 | | |
| COROAD | COUNTY ROAD 115 | 1.6549953990 | $452,740 | $452,740 | $749.28 | | |
| CRPRD | COUNTY ROAD REFUND 115 | 0.0000000000 | $452,740 | $452,740 | $0.00 | | |
| | Total Tax Rate: | 10.7663011628 | | | | | |
| | | | | Taxes w/Current Exemptions: | $4,874.34 | | |
| | | | | Taxes w/o Exemptions: | $4,874.34 | | |
Improvement / Building
| Improvement #1: | RESIDENTIAL | State Code: | 11 | 1560.0 sqft | Value: | $277,740 |
| Exterior Wall: | VINYL | Foundation: | SLAB FOUNDATION | | Heating/Cooling: | FORCED AIR | Number of Bathrooms: | 2 | | Number of Bedrooms: | 2 | Plumbing: | 8 | | Roof Covering: | COMP SHINGLE |   |   |
|
| | Type | Description | Class CD | Sub Class CD | Year Built | Area |
| | MA | Main Area | 1 | 30 | 1967 | 1560.0 |
| | CPC | COVERED CARPORT/PATIO | 1 | 30 | 0 | 66.0 |
| | LNTD | LEAN TO DIRT FLOOR | 1 | 30 | 0 | 950.0 |
| | SI1 | SITE IMPROVEMENT | 1 | 30 | 0 | 2.5 |
| | DTG | Detached Garage | 1 | 30 | 1967 | 900.0 |
| | RPO | OPEN PORCH W/ROOF | 1 | 30 | 1967 | 162.0 |
| | HAYSHED | HAYSHED | 1 | 30 | 1967 | 2300.0 |
Sketch
Property Image
Land
| 1 | RES 1 | Converted: Residential | 10.0000 | 0.00 | 0.00 | 0.00 | 1.00 | $175,000 | $0 |
Roll Value History
| 2026 | N/A | N/A | N/A | N/A | N/A |
| 2025 | $305,510 | $175,000 | $0 | $480,510 | $480,510 |
| 2024 | $277,740 | $175,000 | $0 | $452,740 | $452,740 |
| 2023 | $277,740 | $175,000 | $0 | $452,740 | $452,740 |
| 2022 | $264,510 | $175,000 | $0 | $439,510 | $439,510 |
| 2021 | $263,270 | $147,000 | $0 | $410,270 | $410,270 |
| 2020 | $164,550 | $147,000 | $0 | $311,550 | $311,550 |
| 2019 | $164,550 | $147,000 | $0 | $311,550 | $311,550 |
| 2018 | $164,550 | $147,000 | $0 | $311,550 | $311,550 |
| 2017 | $156,710 | $147,000 | $0 | $303,710 | $303,710 |
| 2016 | $156,710 | $147,000 | $0 | $303,710 | $303,710 |
| 2015 | $156,700 | $147,000 | $0 | $303,700 | $303,700 |
| 2014 | $72,900 | $147,000 | $0 | $219,900 | $219,900 |
| 2013 | $72,900 | $147,000 | $0 | $219,900 | $219,900 |
| 2012 | $72,900 | $147,000 | $0 | $0 | $0 |
| 2011 | $111,700 | $147,000 | $0 | $0 | $0 |
| 2010 | $146,000 | $147,000 | $0 | $0 | $0 |
| 2009 | $244,600 | $81,000 | $0 | $0 | $0 |
| 2008 | $122,500 | $81,000 | $0 | $0 | $0 |
| 2007 | $122,500 | $81,000 | $0 | $0 | $0 |
Deed and Sales History
| 1 | 11/13/2019 | SWD | STATUTORY WARRANTY DEED | KILLGORE KELBY & SARAH | HINER DIEHL J & JESSICA | | | $437,500.00 | 138062 | 2019-09313 |
| 2 | 05/06/2015 | BARGAIN & | BARGAIN & SALE DEED | SCOTT SARAH K | KILLGORE KELBY & SARAH | | | $0.00 | 127951 | 2015-04003 |
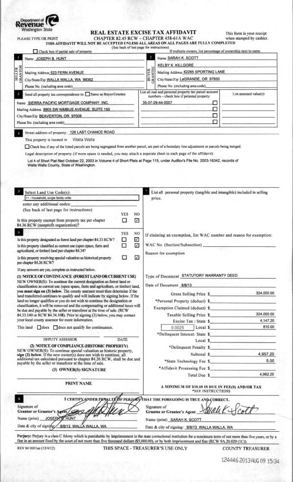
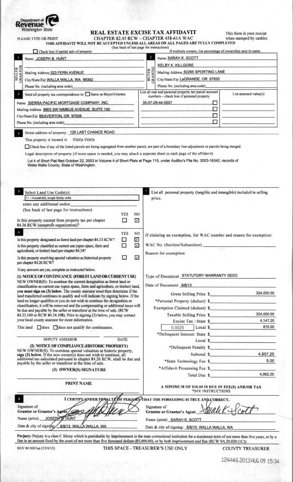
| 3 | 08/09/2013 | WARRANTY D | WARRANTY DEED | HUNT, JOSEPH B | SCOTT, SARAH K | | | $324,000.00 | 124446 | 2013-08145 |
| 4 | 10/14/2008 | WARRANTY D | WARRANTY DEED | HUNT, SALLY J ESTATE OF | HUNT, JOSEPH B | | | | 115810 | 2008-10452 |
| 5 | 12/30/2003 | WARRANTY D | WARRANTY DEED | FRANKLIN, THADDEAUS D | HUNT, JOSEPH B & SALLY J | | | $187,500.00 | 103831 | 2003-19558 |
Payout Agreement
| No payout information available.. |