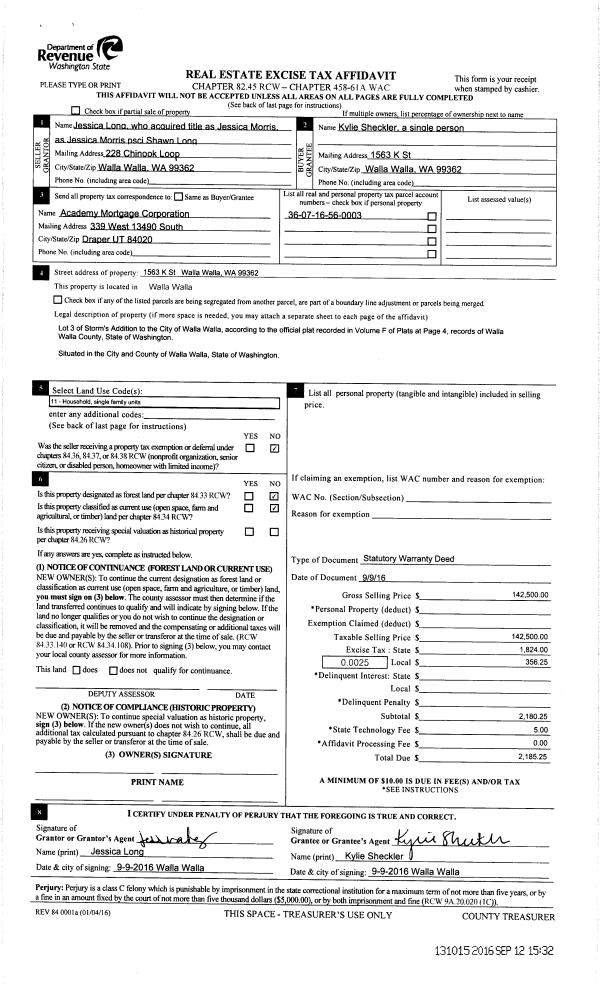
Property
Account |
| Property ID: | 6955 | Abbreviated Legal Description: | STORMS LOT 3 |
| Parcel Number: | 360716560003 | Agent Code: | |
| Type: | Real | | |
| Tax Area: | 5 - OL-140 | Land Use Code | 11 |
| Open Space: | N | DFL | N |
| Historic Property: | N | Remodel Property: | N |
| Multi-Family Redevelopment: | N | | |
| Township: | 7 | Section: | 16 |
| Range: | 36 |
Location |
| Address: | 1563 K ST WA 99362 | Mapsco: | |
| Neighborhood: | A-SFR | Map ID: | |
| Neighborhood CD: | 513011 |
Owner |
| Name: | GWINN BRIAN T | Owner ID: | 15017 |
| Mailing Address: | 1563 K ST WALLA WALLA, WA 99362 | % Ownership: | 100.0000000000% |
| | | Exemptions: | |
Taxes and Assessment Details
Property Tax Information as of
02/21/2026
Click on "Statement Details" to expand or collapse a tax statement.
* Please enter a valid date ** Please enter a valid date *
Statement Details |
| | TOTAL: | $0.00 | $0.00 | $0.00 | $0.00 | $0.00 | $0.00 |
|
| | $0.00 | $0.00 | $0.00 | $0.00 | $0.00 | $0.00 |
Values
| (+) Improvement Homesite Value: | + | $0 | |
| (+) Improvement Non-Homesite Value: | + | $258,180 | |
| (+) Land Homesite Value: | + | $0 | |
| (+) Land Non-Homesite Value: | + | $32,940 | |
| (+) Curr Use (HS): | + | $0 | $0 |
| (+) Curr Use (NHS): | + | $0 | $0 |
| | | -------------------------- | |
| (=) Market Value: | = | $291,120 | |
| (–) Productivity Loss: | – | $0 | |
| | | -------------------------- | |
| (=) Subtotal: | = | $291,120 | |
| (+) Senior Appraised Value: | + | $0 | |
| (+) Non-Senior Appraised Value: | + | $291,120 | |
| | | -------------------------- | |
| (=) Total Appraised Value: | = | $291,120 | |
| (–) Senior Exemption Loss: | – | $0 | |
| (–) Exemption Loss: | – | $0 | |
| | | -------------------------- | |
| (=) Taxable Value: | = | $291,120 | |
Taxing Jurisdiction
| Owner: | GWINN BRIAN T | | |
| % Ownership: | 100.0000000000% | | |
| Total Value: | $291,120 | | |
| Tax Area: | 5 - OL-140 |
| CERFD | CURRENT EXPENSE REFUND 010 | 0.0000000000 | $291,120 | $291,120 | $0.00 | | |
| CURREXP | CURRENT EXPENSE 010 | 1.0175366760 | $291,120 | $291,120 | $296.23 | | |
| HUMNSERV | HUMAN SERVICES 119 | 0.0250000000 | $291,120 | $291,120 | $7.28 | | |
| SLDREL | SOLDIERS RELIEF 121 | 0.0155990005 | $291,120 | $291,120 | $4.54 | | |
| EMERGSER | EMS 147 | 0.3792580840 | $291,120 | $291,120 | $110.41 | | |
| EMSRFD | EMS REFUND 147 | 0.0000000000 | $291,120 | $291,120 | $0.00 | | |
| PORTRFD | PORT REFUND 640 | 0.0000000000 | $291,120 | $291,120 | $0.00 | | |
| PORTWWGEN | PORT OF WW 640 | 0.2460186015 | $291,120 | $291,120 | $71.62 | | |
| SD140BOND | SD #140 BOND 764 | 0.8342371393 | $291,120 | $291,120 | $242.86 | | |
| SD140GEN | SD #140 GENERAL 760 | 2.0646500647 | $291,120 | $291,120 | $601.06 | | |
| ST2 | STATE SCHOOL PART 2 600 | 0.8131451643 | $291,120 | $291,120 | $236.72 | | |
| STATESCHL | STATE SCHOOL 600 | 1.5158548041 | $291,120 | $291,120 | $441.30 | | |
| STREFUND | STATE REFUND LEVY 603 | 0.0000000000 | $291,120 | $291,120 | $0.00 | | |
| CWWBOND | C OF WW BOND 643 | 0.2760494372 | $291,120 | $291,120 | $80.36 | | |
| CWWGEN | CITY OF WW 631 | 1.6100204973 | $291,120 | $291,120 | $468.71 | | |
| CWWRFD | CITY OF WALLA WALLA REFUND 631 | 0.0000000000 | $291,120 | $291,120 | $0.00 | | |
| | Total Tax Rate: | 8.7973694689 | | | | | |
| | | | | Taxes w/Current Exemptions: | $2,561.09 | | |
| | | | | Taxes w/o Exemptions: | $2,561.09 | | |
Improvement / Building
| Improvement #1: | RESIDENTIAL | State Code: | 11 | 852.0 sqft | Value: | $258,180 |
| Exterior Wall: | CONCRETE BLOCK | Foundation: | SLAB FOUNDATION | | Heating/Cooling: | WARM & COOLED AIR | Number of Bathrooms: | 1 | | Number of Bedrooms: | 2 | Plumbing: | 6 | | Roof Covering: | COMP SHINGLE |   |   |
|
| | Type | Description | Class CD | Sub Class CD | Year Built | Area |
| | MA | Main Area | 1 | 30 | 1950 | 852.0 |
| | SI1 | SITE IMPROVEMENT | 1 | 30 | 0 | 1.5 |
| | OSP | Open | 1 | 30 | 1950 | 110.0 |
| | WOD | Wood Deck | 1 | 30 | 1950 | 100.0 |
Sketch
Property Image
Land
| 1 | RES 1 | Converted: Residential | 0.1210 | 5270.00 | 0.00 | 0.00 | 1.00 | $32,940 | $0 |
Roll Value History
| 2026 | N/A | N/A | N/A | N/A | N/A |
| 2025 | $258,350 | $52,700 | $0 | $311,050 | $311,050 |
| 2024 | $258,350 | $52,700 | $0 | $311,050 | $311,050 |
| 2023 | $258,180 | $32,940 | $0 | $291,120 | $291,120 |
| 2022 | $224,500 | $32,940 | $0 | $257,440 | $257,440 |
| 2021 | $172,690 | $32,940 | $0 | $205,630 | $205,630 |
| 2020 | $127,920 | $32,940 | $0 | $160,860 | $160,860 |
| 2019 | $127,920 | $32,940 | $0 | $160,860 | $160,860 |
| 2018 | $106,600 | $32,940 | $0 | $139,540 | $139,540 |
| 2017 | $102,220 | $21,100 | $0 | $123,320 | $123,320 |
| 2016 | $97,350 | $21,100 | $0 | $118,450 | $118,450 |
| 2015 | $92,720 | $21,100 | $0 | $113,820 | $113,820 |
| 2014 | $88,300 | $21,100 | $0 | $109,400 | $109,400 |
| 2013 | $88,300 | $21,100 | $0 | $109,400 | $109,400 |
| 2012 | $92,900 | $21,100 | $0 | $0 | $0 |
| 2011 | $87,500 | $21,100 | $0 | $0 | $0 |
| 2010 | $69,400 | $21,100 | $0 | $0 | $0 |
| 2009 | $79,400 | $21,100 | $0 | $0 | $0 |
| 2008 | $66,300 | $21,100 | $0 | $0 | $0 |
| 2007 | $66,300 | $21,100 | $0 | $0 | $0 |
Deed and Sales History
| 1 | 12/31/2018 | SWD | STATUTORY WARRANTY DEED | SHECKLER KYLIE | GWINN BRIAN T | | | $174,900.00 | 136186 | 2018-10756 |
| 2 | 09/12/2016 | SWD | STATUTORY WARRANTY DEED | MORRIS JESSICA | SHECKLER KYLIE | | | $142,500.00 | 131015 | 2016-07437 |
| 3 | 06/01/2009 | WARRANTY D | WARRANTY DEED | BRADSHAW, DENIS & KANDEE | MORRIS, JESSICA | | | $115,000.00 | 116819 | 2009-05477 |
| 4 | 05/29/2009 | WARRANTY D | WARRANTY DEED | BRADSHAW, FORD & CAROL | BRADSHAW, DENIS & KANDEE | | | | 103709 | 2009-05382 |
| 5 | 12/12/2003 | WARRANTY D | WARRANTY DEED | BRADSHAW, FORD H | BRADSHAW, DENIS & KANDEE | | | $40,000.00 | 103709 | 2003-18828 |
| 6 | 08/03/1994 | WARRANTY D | WARRANTY DEED | | | | | $25,000.00 | 82273 | 2229-409079 |
Payout Agreement
| No payout information available.. |