Property
Account |
| Property ID: | 6952 | Abbreviated Legal Description: | VILLAGES OF GARRISON CREEK P.U.D. PHASE VII LOT 135 |
| Parcel Number: | 350736880022 | Agent Code: | |
| Type: | Real | | |
| Tax Area: | 77 - CP-250-F | Land Use Code | 11 |
| Open Space: | N | DFL | N |
| Historic Property: | N | Remodel Property: | N |
| Multi-Family Redevelopment: | N | | |
| Township: | 7 | Section: | 36 |
| Range: | 35 |
Location |
| Address: | 1012 SE CREEKSIDE DR WA 99324 | Mapsco: | |
| Neighborhood: | G SFR | Map ID: | |
| Neighborhood CD: | 114011 |
Owner |
| Name: | BOND KARYLN M | Owner ID: | 72467 |
| Mailing Address: | 1012 SE CREEKSIDE DR COLLEGE PLACE, WA 99324 | % Ownership: | 100.0000000000% |
| | | Exemptions: | |
Taxes and Assessment Details
Property Tax Information as of
04/17/2026
Click on "Statement Details" to expand or collapse a tax statement.
* Please enter a valid date ** Please enter a valid date *
Statement Details |
| | TOTAL: | $0.00 | $0.00 | $0.00 | $0.00 | $0.00 | $0.00 |
|
| | $0.00 | $0.00 | $0.00 | $0.00 | $0.00 | $0.00 |
Values
| (+) Improvement Homesite Value: | + | $0 | |
| (+) Improvement Non-Homesite Value: | + | $375,030 | |
| (+) Land Homesite Value: | + | $0 | |
| (+) Land Non-Homesite Value: | + | $75,000 | |
| (+) Curr Use (HS): | + | $0 | $0 |
| (+) Curr Use (NHS): | + | $0 | $0 |
| | | -------------------------- | |
| (=) Market Value: | = | $450,030 | |
| (–) Productivity Loss: | – | $0 | |
| | | -------------------------- | |
| (=) Subtotal: | = | $450,030 | |
| (+) Senior Appraised Value: | + | $0 | |
| (+) Non-Senior Appraised Value: | + | $450,030 | |
| | | -------------------------- | |
| (=) Total Appraised Value: | = | $450,030 | |
| (–) Senior Exemption Loss: | – | $0 | |
| (–) Exemption Loss: | – | $0 | |
| | | -------------------------- | |
| (=) Taxable Value: | = | $450,030 | |
Taxing Jurisdiction
| Owner: | BOND KARYLN M | | |
| % Ownership: | 100.0000000000% | | |
| Total Value: | $450,030 | | |
| Tax Area: | 77 - CP-250-F |
| CERFD | CURRENT EXPENSE REFUND 010 | 0.0000000000 | $450,030 | $450,030 | $0.00 | | |
| CURREXP | CURRENT EXPENSE 010 | 1.0175366760 | $450,030 | $450,030 | $457.92 | | |
| HUMNSERV | HUMAN SERVICES 119 | 0.0250000000 | $450,030 | $450,030 | $11.25 | | |
| SLDREL | SOLDIERS RELIEF 121 | 0.0155990005 | $450,030 | $450,030 | $7.02 | | |
| COLLPLBOND | C OF CP BOND 644 | 0.4374241808 | $450,030 | $450,030 | $196.85 | | |
| COLLPLGEN | CITY OF CP 632 | 1.4453819216 | $450,030 | $450,030 | $650.47 | | |
| EMERGSER | EMS 147 | 0.3792580840 | $450,030 | $450,030 | $170.68 | | |
| EMSRFD | EMS REFUND 147 | 0.0000000000 | $450,030 | $450,030 | $0.00 | | |
| RURALLIB | RURAL LIBRARY 623 | 0.3710609029 | $450,030 | $450,030 | $166.99 | | |
| PORTRFD | PORT REFUND 640 | 0.0000000000 | $450,030 | $450,030 | $0.00 | | |
| PORTWWGEN | PORT OF WW 640 | 0.2460186015 | $450,030 | $450,030 | $110.72 | | |
| SD250BOND | SD #250 BOND 773 | 1.4560608159 | $450,030 | $450,030 | $655.27 | | |
| SD250GEN | SD #250 GENERAL 770 | 2.3880724087 | $450,030 | $450,030 | $1,074.70 | | |
| ST2 | STATE SCHOOL PART 2 600 | 0.8131451643 | $450,030 | $450,030 | $365.94 | | |
| STATESCHL | STATE SCHOOL 600 | 1.5158548041 | $450,030 | $450,030 | $682.18 | | |
| STREFUND | STATE REFUND LEVY 603 | 0.0000000000 | $450,030 | $450,030 | $0.00 | | |
| | Total Tax Rate: | 10.1104125603 | | | | | |
| | | | | Taxes w/Current Exemptions: | $4,549.99 | | |
| | | | | Taxes w/o Exemptions: | $4,549.99 | | |
Improvement / Building
| Improvement #1: | RESIDENTIAL | State Code: | 11 | 1660.0 sqft | Value: | $375,030 |
| Exterior Wall: | PLYWOOD | Heating/Cooling: | WARM & COOLED AIR | | Number of Bathrooms: | 2 | Number of Bedrooms: | 2 | | Plumbing: | 13 | Roof Covering: | COMP SHINGLE |
|
| | Type | Description | Class CD | Sub Class CD | Year Built | Area |
| | MA | Main Area | 1 | 40 | 2003 | 1660.0 |
| | SI1 | SITE IMPROVEMENT | 1 | 40 | 2003 | 2.5 |
| | ATG | Attached Garage | 1 | 40 | 2003 | 484.0 |
| | GFP | GAS FIREPLACE | 1 | 40 | 2003 | 1.0 |
| | RPC | OPEN PORCH W/ROOF , CEILED | 1 | 40 | 2003 | 128.0 |
| | RPC | OPEN PORCH W/ROOF , CEILED | 1 | 40 | 2003 | 64.0 |
Sketch
Property Image
Land
| 1 | RES 1 | Converted: Residential | 0.1339 | 5832.00 | 0.00 | 0.00 | 1.00 | $75,000 | $0 |
Roll Value History
| 2026 | N/A | N/A | N/A | N/A | N/A |
| 2025 | $354,410 | $135,000 | $0 | $489,410 | $489,410 |
| 2024 | $393,790 | $75,000 | $0 | $468,790 | $468,790 |
| 2023 | $375,030 | $75,000 | $0 | $450,030 | $450,030 |
| 2022 | $357,180 | $75,000 | $0 | $432,180 | $432,180 |
| 2021 | $285,740 | $75,000 | $0 | $360,740 | $360,740 |
| 2020 | $204,100 | $75,000 | $0 | $279,100 | $279,100 |
| 2019 | $214,100 | $65,000 | $0 | $279,100 | $279,100 |
| 2018 | $214,100 | $65,000 | $0 | $279,100 | $279,100 |
| 2017 | $203,900 | $65,000 | $0 | $268,900 | $268,900 |
| 2016 | $185,370 | $65,000 | $0 | $250,370 | $250,370 |
| 2015 | $142,590 | $65,000 | $0 | $207,590 | $207,590 |
| 2014 | $135,800 | $65,000 | $0 | $200,800 | $200,800 |
| 2013 | $135,800 | $65,000 | $0 | $200,800 | $200,800 |
| 2012 | $160,600 | $65,000 | $0 | $0 | $0 |
| 2011 | $160,600 | $65,000 | $0 | $0 | $0 |
| 2010 | $160,600 | $65,000 | $0 | $0 | $0 |
| 2009 | $172,500 | $65,000 | $0 | $0 | $0 |
| 2008 | $151,600 | $35,000 | $0 | $0 | $0 |
| 2007 | $151,600 | $35,000 | $0 | $0 | $0 |
Deed and Sales History
| 1 | 09/08/2022 | SWD | STATUTORY WARRANTY DEED | TASTULA JOHN J | BOND KARYLN M | | | $450,000.00 | 144655 | 2022-07250 |
| 2 | 09/08/2022 | LOPA | LACK OF PROBATE AFFIDAVIT | ESTATE OF GAIL D TASTULA | TASTULA JOHN J | | | | 144653 | 2022-07519 |
| 3 | 01/14/2022 | COMMUNITY | COMMUNITY PROPERTY AGREEMENT | TASTULA JOHN J & GAIL D | TASTULA JOHN J | | | $0.00 | 143266 | 2022-00589 |
| 4 | 11/06/2018 | SWD | STATUTORY WARRANTY DEED | RIZER JAMES PETER ESTATE OF | TASTULA JOHN J & GAIL D | | | $281,500.00 | 135885 | 2018-09227 |
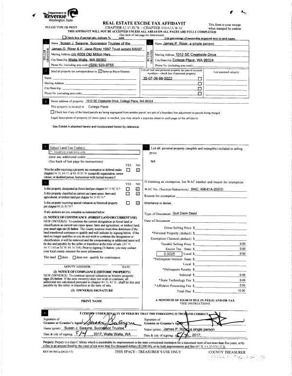
| 5 | 05/04/2017 | QCD | QUIT CLAIM DEED | RIZER E JANE TRUSTEE OF THE | RIZER JAMES PETER ESTATE OF | | | $0.00 | 132339 | 2017-03430 |
| 6 | 05/08/2017 | DEATH CERT | DEATH CERTIFICATE | RIZER ELNA JANE | | | | | 0 | 2017-03429 |
| 7 | 12/08/2003 | WARRANTY D | WARRANTY DEED | RIZER, E JANE | RIZER, E JANE TRUSTEE OF THE | | | | 103676 | 2003-18648 |
| 8 | 10/16/2003 | WARRANTY D | WARRANTY DEED | PHASE FIVE DEVELOPMENT LLC | RIZER, E JANE | | | $189,900.00 | 103279 | 2003-16000 |
Payout Agreement
| No payout information available.. |