Property
Account |
| Property ID: | 6913 | Abbreviated Legal Description: | LANGFORDS LOT 13 BLK 20 |
| Parcel Number: | 360719592013 | Agent Code: | |
| Type: | Real | | |
| Tax Area: | 1 - OL-140-F | Land Use Code | 11 |
| Open Space: | N | DFL | N |
| Historic Property: | N | Remodel Property: | N |
| Multi-Family Redevelopment: | N | | |
| Township: | 7 | Section: | 19 |
| Range: | 36 |
Location |
| Address: | 720 N 9TH AVE WA 99362 | Mapsco: | |
| Neighborhood: | A-SFR | Map ID: | |
| Neighborhood CD: | 313011 |
Owner |
| Name: | SANDOVAL VELIA | Owner ID: | 68489 |
| Mailing Address: | 720 N 9TH AVE WALLA WALLA, WA 99362 | % Ownership: | 100.0000000000% |
| | | Exemptions: | |
Taxes and Assessment Details
Values
| (+) Improvement Homesite Value: | + | $0 | |
| (+) Improvement Non-Homesite Value: | + | $187,140 | |
| (+) Land Homesite Value: | + | $0 | |
| (+) Land Non-Homesite Value: | + | $53,130 | |
| (+) Curr Use (HS): | + | $0 | $0 |
| (+) Curr Use (NHS): | + | $0 | $0 |
| | | -------------------------- | |
| (=) Market Value: | = | $240,270 | |
| (–) Productivity Loss: | – | $0 | |
| | | -------------------------- | |
| (=) Subtotal: | = | $240,270 | |
| (+) Senior Appraised Value: | + | $0 | |
| (+) Non-Senior Appraised Value: | + | $240,270 | |
| | | -------------------------- | |
| (=) Total Appraised Value: | = | $240,270 | |
| (–) Senior Exemption Loss: | – | $0 | |
| (–) Exemption Loss: | – | $0 | |
| | | -------------------------- | |
| (=) Taxable Value: | = | $240,270 | |
Taxing Jurisdiction
| Owner: | SANDOVAL VELIA | | |
| % Ownership: | 100.0000000000% | | |
| Total Value: | $240,270 | | |
| Tax Area: | 1 - OL-140-F |
| CERFD | CURRENT EXPENSE REFUND 010 | 0.0000000000 | $240,270 | $240,270 | $0.00 | | |
| CURREXP | CURRENT EXPENSE 010 | 1.0175366760 | $240,270 | $240,270 | $244.48 | | |
| HUMNSERV | HUMAN SERVICES 119 | 0.0250000000 | $240,270 | $240,270 | $6.01 | | |
| SLDREL | SOLDIERS RELIEF 121 | 0.0155990005 | $240,270 | $240,270 | $3.75 | | |
| EMERGSER | EMS 147 | 0.3792580840 | $240,270 | $240,270 | $91.12 | | |
| EMSRFD | EMS REFUND 147 | 0.0000000000 | $240,270 | $240,270 | $0.00 | | |
| PORTRFD | PORT REFUND 640 | 0.0000000000 | $240,270 | $240,270 | $0.00 | | |
| PORTWWGEN | PORT OF WW 640 | 0.2460186015 | $240,270 | $240,270 | $59.11 | | |
| SD140BOND | SD #140 BOND 764 | 0.8342371393 | $240,270 | $240,270 | $200.44 | | |
| SD140GEN | SD #140 GENERAL 760 | 2.0646500647 | $240,270 | $240,270 | $496.07 | | |
| ST2 | STATE SCHOOL PART 2 600 | 0.8131451643 | $240,270 | $240,270 | $195.37 | | |
| STATESCHL | STATE SCHOOL 600 | 1.5158548041 | $240,270 | $240,270 | $364.21 | | |
| STREFUND | STATE REFUND LEVY 603 | 0.0000000000 | $240,270 | $240,270 | $0.00 | | |
| CWWBOND | C OF WW BOND 643 | 0.2760494372 | $240,270 | $240,270 | $66.33 | | |
| CWWGEN | CITY OF WW 631 | 1.6100204973 | $240,270 | $240,270 | $386.84 | | |
| CWWRFD | CITY OF WALLA WALLA REFUND 631 | 0.0000000000 | $240,270 | $240,270 | $0.00 | | |
| | Total Tax Rate: | 8.7973694689 | | | | | |
| | | | | Taxes w/Current Exemptions: | $2,113.73 | | |
| | | | | Taxes w/o Exemptions: | $2,113.73 | | |
Improvement / Building
| Improvement #1: | RESIDENTIAL | State Code: | 11 | 1263.0 sqft | Value: | $187,140 |
| Exterior Wall: | VINYL | Heating/Cooling: | FORCED AIR | | Number of Bathrooms: | 2 | Number of Bedrooms: | 4 | | Plumbing: | 10 | Roof Covering: | COMP SHINGLE |
|
| | Type | Description | Class CD | Sub Class CD | Year Built | Area |
| | MA | Main Area | 5 | 25 | 1909 | 1263.0 |
| | SI1 | SITE IMPROVEMENT | 5 | 25 | 1909 | 2.0 |
| | BASE | BASEMENT | 5 | 25 | 1909 | 534.0 |
| | BPF | BASEMENT -PARTITIONED FINISH | 5 | 25 | 1909 | 534.0 |
| | DTG | Detached Garage | 5 | 25 | 1909 | 288.0 |
| | SWP | Solid Wall Porch | 5 | 25 | 1909 | 168.0 |
| | ATIC | ATTIC ROOM | 5 | 25 | 1909 | 375.0 |
Sketch
Property Image
Land
| 1 | RES 1 | Converted: Residential | 0.1478 | 6440.00 | 0.00 | 0.00 | 1.00 | $53,130 | $0 |
Roll Value History
| 2026 | N/A | N/A | N/A | N/A | N/A |
| 2025 | $215,210 | $53,130 | $0 | $268,340 | $268,340 |
| 2024 | $187,140 | $53,130 | $0 | $240,270 | $240,270 |
| 2023 | $187,140 | $53,130 | $0 | $240,270 | $240,270 |
| 2022 | $149,710 | $53,130 | $0 | $202,840 | $202,840 |
| 2021 | $174,730 | $24,700 | $0 | $199,430 | $199,430 |
| 2020 | $139,220 | $24,700 | $0 | $163,920 | $163,920 |
| 2019 | $139,220 | $24,700 | $0 | $163,920 | $163,920 |
| 2018 | $126,570 | $24,700 | $0 | $151,270 | $151,270 |
| 2017 | $115,060 | $24,700 | $0 | $139,760 | $139,760 |
| 2016 | $104,600 | $24,700 | $0 | $129,300 | $129,300 |
| 2015 | $71,300 | $24,700 | $0 | $96,000 | $96,000 |
| 2014 | $71,300 | $24,700 | $0 | $96,000 | $96,000 |
| 2013 | $71,300 | $24,700 | $0 | $96,000 | $96,000 |
| 2012 | $71,300 | $24,700 | $0 | $0 | $0 |
| 2011 | $71,300 | $24,700 | $0 | $0 | $0 |
| 2010 | $69,600 | $24,700 | $0 | $0 | $0 |
| 2009 | $88,000 | $11,300 | $0 | $0 | $0 |
| 2008 | $47,100 | $11,300 | $0 | $0 | $0 |
| 2007 | $47,100 | $11,300 | $0 | $0 | $0 |
Deed and Sales History
| 1 | 12/01/2020 | SWD | STATUTORY WARRANTY DEED | CERDA MIGUEL A | SANDOVAL VELIA | | | $200,000.00 | 140455 | 2020-12653 |
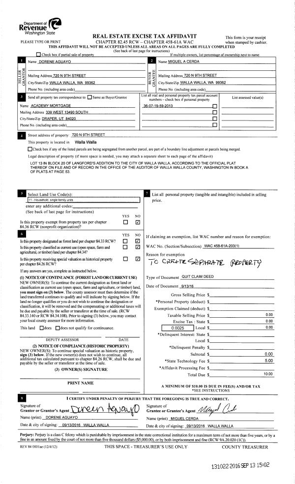
| 2 | 09/13/2016 | QCD | QUIT CLAIM DEED | AGUAYO DOREEN G | CERDA MIGUEL A | | | | 131022 | 2016-07476 |
| 3 | 09/13/2016 | SWD | STATUTORY WARRANTY DEED | DIAZ NOE & MARIAM N | CERDA MIGUEL A | | | $155,000.00 | 131021 | 2016-07475 |
| 4 | 11/15/2007 | WARRANTY D | WARRANTY DEED | SCHNABEL TRUST | DIAZ, NOE & MARIAM N | | | | 86754 | 2007-13155 |
| 5 | 08/28/1996 | WARRANTY D | WARRANTY DEED | | | | | $50,000.00 | 86784 | 2449-608784 |
Payout Agreement
| No payout information available.. |