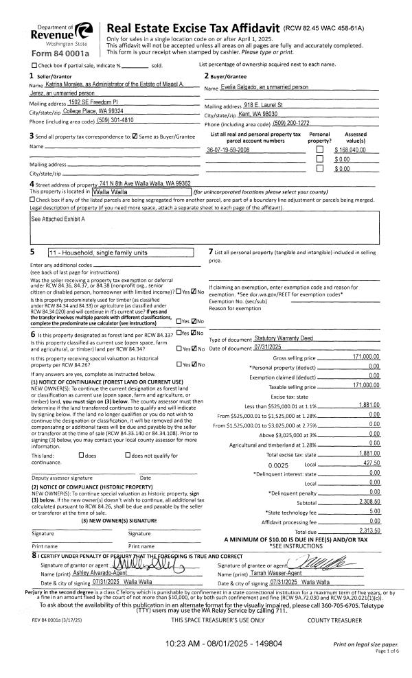
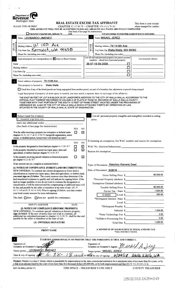
Property
Account |
| Property ID: | 6910 | Abbreviated Legal Description: | LANGFORDS E 68' OF LOT 8 BLK 20 PLUS TRACT |
| Parcel Number: | 360719592008 | Agent Code: | |
| Type: | Real | | |
| Tax Area: | 1 - OL-140-F | Land Use Code | 11 |
| Open Space: | N | DFL | N |
| Historic Property: | N | Remodel Property: | N |
| Multi-Family Redevelopment: | N | | |
| Township: | 7 | Section: | 19 |
| Range: | 36 |
Location |
| Address: | 741 N 8TH AVE WA 99362 | Mapsco: | |
| Neighborhood: | A-SFR | Map ID: | |
| Neighborhood CD: | 313011 |
Owner |
| Name: | JEREZ MISAEL A | Owner ID: | 63394 |
| Mailing Address: | %KATRINA ANN MORALES 1502 SE FREEDOM PL COLLEGE PLACE, WA 99324 | % Ownership: | 100.0000000000% |
| | | Exemptions: | SNR/DSBL |
Taxes and Assessment Details
Values
| (+) Improvement Homesite Value: | + | $129,960 | |
| (+) Improvement Non-Homesite Value: | + | $0 | |
| (+) Land Homesite Value: | + | $31,580 | |
| (+) Land Non-Homesite Value: | + | $0 | |
| (+) Curr Use (HS): | + | $0 | $0 |
| (+) Curr Use (NHS): | + | $0 | $0 |
| | | -------------------------- | |
| (=) Market Value: | = | $161,540 | |
| (–) Productivity Loss: | – | $0 | |
| | | -------------------------- | |
| (=) Subtotal: | = | $161,540 | |
| (+) Senior Appraised Value: | + | $80,850 | |
| (+) Non-Senior Appraised Value: | + | $0 | |
| | | -------------------------- | |
| (=) Total Appraised Value: | = | $80,850 | |
| (–) Senior Exemption Loss: | – | $60,000 | |
| (–) Exemption Loss: | – | $0 | |
| | | -------------------------- | |
| (=) Taxable Value: | = | $20,850 | |
Taxing Jurisdiction
| Owner: | JEREZ MISAEL A | | |
| % Ownership: | 100.0000000000% | | |
| Total Value: | $161,540 | | |
| Tax Area: | 1 - OL-140-F |
| CERFD | CURRENT EXPENSE REFUND 010 | 0.0000000000 | $161,540 | $20,850 | $0.00 | | |
| CURREXP | CURRENT EXPENSE 010 | 1.0175366760 | $161,540 | $20,850 | $21.22 | | |
| HUMNSERV | HUMAN SERVICES 119 | 0.0250000000 | $161,540 | $20,850 | $0.52 | | |
| SLDREL | SOLDIERS RELIEF 121 | 0.0155990005 | $161,540 | $20,850 | $0.33 | | |
| EMERGSER | EMS 147 | 0.3792580840 | $161,540 | $20,850 | $7.91 | | |
| EMSRFD | EMS REFUND 147 | 0.0000000000 | $161,540 | $20,850 | $0.00 | | |
| PORTRFD | PORT REFUND 640 | 0.0000000000 | $161,540 | $20,850 | $0.00 | | |
| PORTWWGEN | PORT OF WW 640 | 0.2460186015 | $161,540 | $20,850 | $5.13 | | |
| SD140BOND | SD #140 BOND 764 | 0.0000000000 | $161,540 | $0 | $0.00 | | |
| SD140GEN | SD #140 GENERAL 760 | 0.0000000000 | $161,540 | $0 | $0.00 | | |
| ST2 | STATE SCHOOL PART 2 600 | 0.0000000000 | $161,540 | $0 | $0.00 | | |
| STATESCHL | STATE SCHOOL 600 | 1.5158548041 | $161,540 | $20,850 | $31.61 | | |
| STREFUND | STATE REFUND LEVY 603 | 0.0000000000 | $161,540 | $20,850 | $0.00 | | |
| CWWBOND | C OF WW BOND 643 | 0.0000000000 | $161,540 | $0 | $0.00 | | |
| CWWGEN | CITY OF WW 631 | 1.6100204973 | $161,540 | $20,850 | $33.57 | | |
| CWWRFD | CITY OF WALLA WALLA REFUND 631 | 0.0000000000 | $161,540 | $20,850 | $0.00 | | |
| | Total Tax Rate: | 4.8092876634 | | | | | |
| | | | | Taxes w/Current Exemptions: | $100.29 | | |
| | | | | Taxes w/o Exemptions: | $1,421.12 | | |
Improvement / Building
| Improvement #1: | RESIDENTIAL | State Code: | 11 | 936.0 sqft | Value: | $129,960 |
| Exterior Wall: | HARDBOARD | Heating/Cooling: | BASEBOARD ELECTRIC | | Number of Bathrooms: | 1 | Number of Bedrooms: | 2 | | Plumbing: | 6 | Roof Covering: | COMP SHINGLE |
|
| | Type | Description | Class CD | Sub Class CD | Year Built | Area |
| | MA | Main Area | 1 | 20 | 1891 | 936.0 |
| | SI1 | SITE IMPROVEMENT | 1 | 20 | 0 | 1.0 |
| | RPO | OPEN PORCH W/ROOF | 1 | 20 | 1891 | 48.0 |
| | RPO | OPEN PORCH W/ROOF | 1 | 20 | 1891 | 64.0 |
| | UTST | Utility Storage Shed | 1 | 20 | 1891 | 120.0 |
Sketch
Property Image
Land
| 1 | RES 1 | Converted: Residential | 0.0879 | 3828.00 | 0.00 | 0.00 | 1.00 | $31,580 | $0 |
Roll Value History
| 2026 | N/A | N/A | N/A | N/A | N/A |
| 2025 | $136,460 | $31,580 | $0 | $168,040 | $168,040 |
| 2024 | $136,460 | $31,580 | $0 | $168,040 | $20,850 |
| 2023 | $129,960 | $31,580 | $0 | $161,540 | $20,850 |
| 2022 | $86,640 | $31,580 | $0 | $118,220 | $20,850 |
| 2021 | $83,920 | $16,300 | $0 | $100,220 | $20,850 |
| 2020 | $64,550 | $16,300 | $0 | $80,850 | $20,850 |
| 2019 | $64,550 | $16,300 | $0 | $80,850 | $20,850 |
| 2018 | $64,550 | $16,300 | $0 | $80,850 | $20,850 |
| 2017 | $58,690 | $16,300 | $0 | $74,990 | $74,990 |
| 2016 | $55,890 | $16,300 | $0 | $72,190 | $72,190 |
| 2015 | $69,500 | $16,300 | $0 | $85,800 | $85,800 |
| 2014 | $69,500 | $16,300 | $0 | $85,800 | $85,800 |
| 2013 | $69,500 | $16,300 | $0 | $85,800 | $85,800 |
| 2012 | $69,500 | $16,300 | $0 | $0 | $0 |
| 2011 | $69,500 | $16,300 | $0 | $0 | $0 |
| 2010 | $68,500 | $16,300 | $0 | $0 | $0 |
| 2009 | $82,600 | $6,700 | $0 | $0 | $0 |
| 2008 | $49,100 | $6,700 | $0 | $0 | $0 |
| 2007 | $49,100 | $6,700 | $0 | $0 | $0 |
Deed and Sales History
| 1 | 08/01/2025 | SWD | STATUTORY WARRANTY DEED | JEREZ MISAEL A | SALGADO EVELIA | | | $171,000.00 | 149804 | 2025-04516 |
| 2 | 06/29/2018 | SWD | STATUTORY WARRANTY DEED | JIMENEZ LEOBARDO | JEREZ MISAEL A | | | $80,000.00 | 135032 | 2018-05262 |
| 3 | 01/19/2001 | WARRANTY D | WARRANTY DEED | | | | | $59,900.00 | 96488 | 3070-100553 |
Payout Agreement
| No payout information available.. |