Property
Account |
| Property ID: | 6906 | Abbreviated Legal Description: | LANGFORDS TAX 4 BLK 19 |
| Parcel Number: | 360719591912 | Agent Code: | |
| Type: | Real | | |
| Tax Area: | 1 - OL-140-F | Land Use Code | 11 |
| Open Space: | N | DFL | N |
| Historic Property: | N | Remodel Property: | N |
| Multi-Family Redevelopment: | N | | |
| Township: | 7 | Section: | 19 |
| Range: | 36 |
Location |
| Address: | 617 N 7TH AVE WA 99362 | Mapsco: | |
| Neighborhood: | A-SFR | Map ID: | |
| Neighborhood CD: | 313011 |
Owner |
| Name: | VENEGAS RAQUEL RAE | Owner ID: | 74136 |
| Mailing Address: | 617 N 7TH AVE WALLA WALLA, WA 99362 | % Ownership: | 100.0000000000% |
| | | Exemptions: | |
Taxes and Assessment Details
Property Tax Information as of
02/21/2026
Click on "Statement Details" to expand or collapse a tax statement.
* Please enter a valid date ** Please enter a valid date *
Statement Details |
| | TOTAL: | $0.00 | $0.00 | $0.00 | $0.00 | $0.00 | $0.00 |
|
| | $0.00 | $0.00 | $0.00 | $0.00 | $0.00 | $0.00 |
Values
| (+) Improvement Homesite Value: | + | $0 | |
| (+) Improvement Non-Homesite Value: | + | $158,580 | |
| (+) Land Homesite Value: | + | $0 | |
| (+) Land Non-Homesite Value: | + | $55,440 | |
| (+) Curr Use (HS): | + | $0 | $0 |
| (+) Curr Use (NHS): | + | $0 | $0 |
| | | -------------------------- | |
| (=) Market Value: | = | $214,020 | |
| (–) Productivity Loss: | – | $0 | |
| | | -------------------------- | |
| (=) Subtotal: | = | $214,020 | |
| (+) Senior Appraised Value: | + | $0 | |
| (+) Non-Senior Appraised Value: | + | $214,020 | |
| | | -------------------------- | |
| (=) Total Appraised Value: | = | $214,020 | |
| (–) Senior Exemption Loss: | – | $0 | |
| (–) Exemption Loss: | – | $0 | |
| | | -------------------------- | |
| (=) Taxable Value: | = | $214,020 | |
Taxing Jurisdiction
| Owner: | VENEGAS RAQUEL RAE | | |
| % Ownership: | 100.0000000000% | | |
| Total Value: | $214,020 | | |
| Tax Area: | 1 - OL-140-F |
| CERFD | CURRENT EXPENSE REFUND 010 | 0.0000000000 | $214,020 | $214,020 | $0.00 | | |
| CURREXP | CURRENT EXPENSE 010 | 1.0175366760 | $214,020 | $214,020 | $217.77 | | |
| HUMNSERV | HUMAN SERVICES 119 | 0.0250000000 | $214,020 | $214,020 | $5.35 | | |
| SLDREL | SOLDIERS RELIEF 121 | 0.0155990005 | $214,020 | $214,020 | $3.34 | | |
| EMERGSER | EMS 147 | 0.3792580840 | $214,020 | $214,020 | $81.17 | | |
| EMSRFD | EMS REFUND 147 | 0.0000000000 | $214,020 | $214,020 | $0.00 | | |
| PORTRFD | PORT REFUND 640 | 0.0000000000 | $214,020 | $214,020 | $0.00 | | |
| PORTWWGEN | PORT OF WW 640 | 0.2460186015 | $214,020 | $214,020 | $52.65 | | |
| SD140BOND | SD #140 BOND 764 | 0.8342371393 | $214,020 | $214,020 | $178.54 | | |
| SD140GEN | SD #140 GENERAL 760 | 2.0646500647 | $214,020 | $214,020 | $441.88 | | |
| ST2 | STATE SCHOOL PART 2 600 | 0.8131451643 | $214,020 | $214,020 | $174.03 | | |
| STATESCHL | STATE SCHOOL 600 | 1.5158548041 | $214,020 | $214,020 | $324.42 | | |
| STREFUND | STATE REFUND LEVY 603 | 0.0000000000 | $214,020 | $214,020 | $0.00 | | |
| CWWBOND | C OF WW BOND 643 | 0.2760494372 | $214,020 | $214,020 | $59.08 | | |
| CWWGEN | CITY OF WW 631 | 1.6100204973 | $214,020 | $214,020 | $344.58 | | |
| CWWRFD | CITY OF WALLA WALLA REFUND 631 | 0.0000000000 | $214,020 | $214,020 | $0.00 | | |
| | Total Tax Rate: | 8.7973694689 | | | | | |
| | | | | Taxes w/Current Exemptions: | $1,882.81 | | |
| | | | | Taxes w/o Exemptions: | $1,882.81 | | |
Improvement / Building
| Improvement #1: | RESIDENTIAL | State Code: | 11 | 928.0 sqft | Value: | $158,580 |
| Exterior Wall: | VINYL | Heating/Cooling: | STOVE-NO HEAT | | Number of Bathrooms: | 1 | Number of Bedrooms: | 2 | | Plumbing: | 6 | Roof Covering: | COMP SHINGLE |
|
| | Type | Description | Class CD | Sub Class CD | Year Built | Area |
| | MA | Main Area | 1 | 30 | 1905 | 928.0 |
| | SI1 | SITE IMPROVEMENT | 1 | 30 | 0 | 1.0 |
| | PRC | PORCH W STEPS, ROOF,CEILED | 1 | 30 | 0 | 84.0 |
| | BASE | BASEMENT | 1 | 30 | 1905 | 252.0 |
| | SWP | Solid Wall Porch | 1 | 30 | 1905 | 66.0 |
| | OPS | OPEN PORCH W/STEPS | 1 | 30 | 1905 | 72.0 |
Sketch
Property Image
Land
| 1 | RES 1 | Converted: Residential | 0.1543 | 6720.00 | 0.00 | 0.00 | 1.00 | $55,440 | $0 |
Roll Value History
| 2026 | N/A | N/A | N/A | N/A | N/A |
| 2025 | $190,300 | $55,440 | $0 | $245,740 | $245,740 |
| 2024 | $190,300 | $55,440 | $0 | $245,740 | $245,740 |
| 2023 | $158,580 | $55,440 | $0 | $214,020 | $214,020 |
| 2022 | $132,150 | $55,440 | $0 | $187,590 | $187,590 |
| 2021 | $156,140 | $24,900 | $0 | $181,040 | $181,040 |
| 2020 | $107,680 | $24,900 | $0 | $132,580 | $132,580 |
| 2019 | $107,680 | $24,900 | $0 | $132,580 | $132,580 |
| 2018 | $97,890 | $24,900 | $0 | $122,790 | $122,790 |
| 2017 | $65,260 | $24,900 | $0 | $90,160 | $90,160 |
| 2016 | $62,150 | $24,900 | $0 | $87,050 | $87,050 |
| 2015 | $64,470 | $24,900 | $0 | $89,370 | $89,370 |
| 2014 | $61,400 | $24,900 | $0 | $86,300 | $86,300 |
| 2013 | $61,400 | $24,900 | $0 | $86,300 | $86,300 |
| 2012 | $61,400 | $24,900 | $0 | $0 | $0 |
| 2011 | $61,400 | $24,900 | $0 | $0 | $0 |
| 2010 | $61,900 | $24,900 | $0 | $0 | $0 |
| 2009 | $79,600 | $11,800 | $0 | $0 | $0 |
| 2008 | $51,200 | $11,800 | $0 | $0 | $0 |
| 2007 | $51,200 | $11,800 | $0 | $0 | $0 |
Deed and Sales History
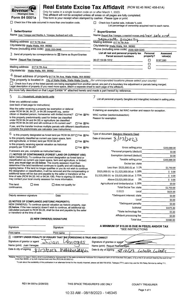
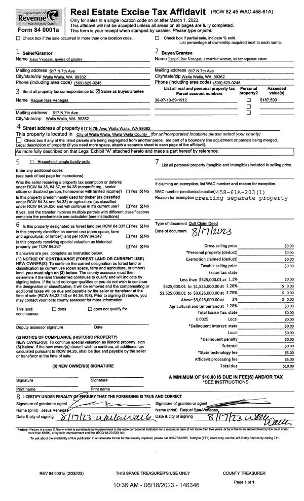
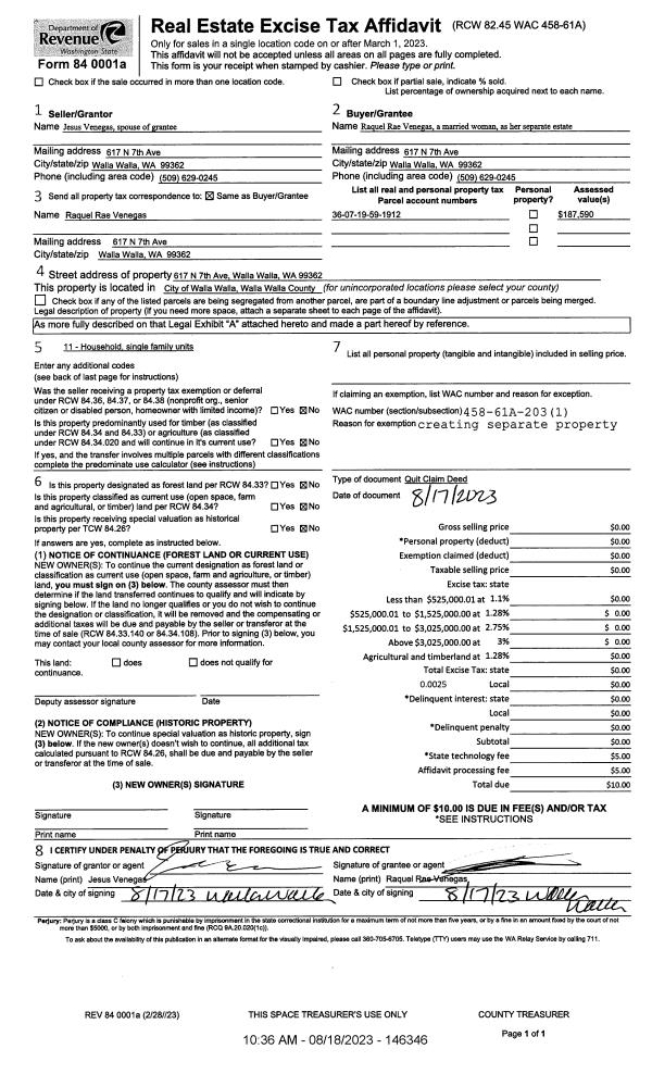
| 1 | 08/18/2023 | QCD | QUIT CLAIM DEED | VENEGAS JESUS | VENEGAS RAQUEL RAE | | | | 146346 | 2023-04789 |
| 2 | 08/18/2023 | SWD | STATUTORY WARRANTY DEED | VENEGAS JUAN & MARTHA A | VENEGAS RAQUEL RAE | | | $250,000.00 | 146345 | 2023-04788 |
| 3 | 06/26/2017 | SWD | STATUTORY WARRANTY DEED | BURROUGH JESSICA | VENEGAS JUAN & MARTHA A | | | $135,000.00 | 132663 | 2017-04864 |
| 4 | 03/09/2006 | QCD | QUIT CLAIM DEED | CORONA, LUIS | BURROUGH, JESSICA | | | | 109813 | 2006-02621 |
| 5 | 03/09/2006 | WARRANTY D | WARRANTY DEED | PALACHUK, ARLAN D & SUSAN F | BURROUGH, JESSICA | | | $82,400.00 | 109814 | 2006-02622 |
| 6 | 06/09/1998 | WARRANTY D | WARRANTY DEED | | | | | $30,000.00 | 90574 | 2689-806360 |
Payout Agreement
| No payout information available.. |