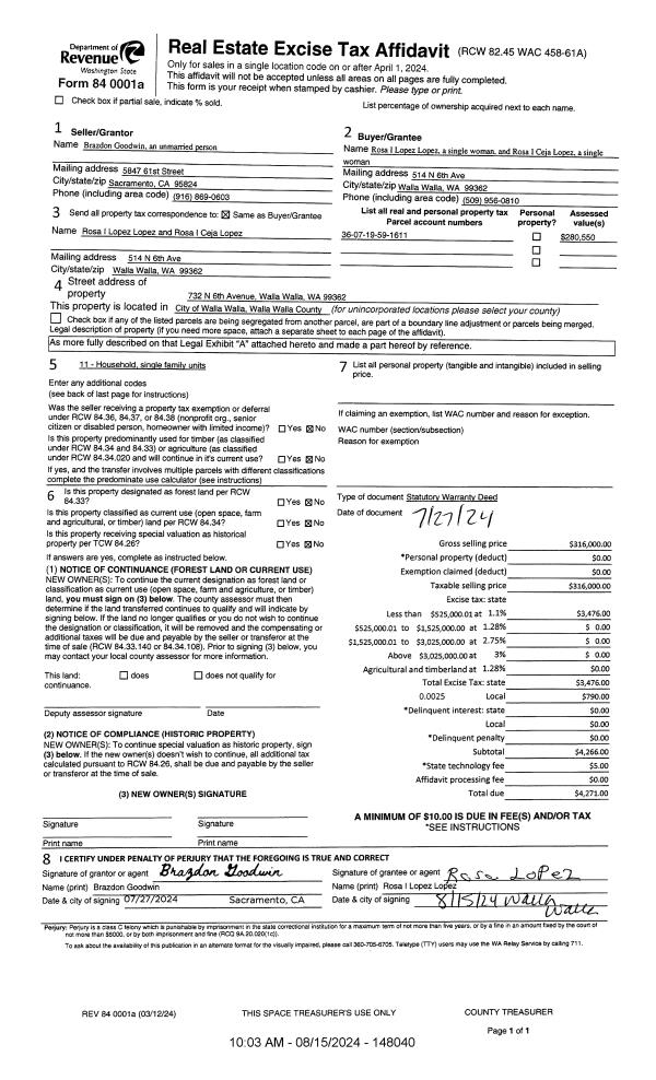
Property
Account |
| Property ID: | 6884 | Abbreviated Legal Description: | LANGFORDS LOT 11 BLK 16 |
| Parcel Number: | 360719591611 | Agent Code: | |
| Type: | Real | | |
| Tax Area: | 1 - OL-140-F | Land Use Code | 11 |
| Open Space: | N | DFL | N |
| Historic Property: | N | Remodel Property: | N |
| Multi-Family Redevelopment: | N | | |
| Township: | 7 | Section: | 19 |
| Range: | 36 |
Location |
| Address: | 732 N 6TH AVE WA 99362 | Mapsco: | |
| Neighborhood: | A-SFR | Map ID: | |
| Neighborhood CD: | 313011 |
Owner |
| Name: | GOODWIN BRAZDON | Owner ID: | 73319 |
| Mailing Address: | 732 N 6TH AVE WALLA WALLA, WA 99362 | % Ownership: | 100.0000000000% |
| | | Exemptions: | |
Taxes and Assessment Details
Property Tax Information as of
02/21/2026
Click on "Statement Details" to expand or collapse a tax statement.
* Please enter a valid date ** Please enter a valid date *
Statement Details |
| | TOTAL: | $0.00 | $0.00 | $0.00 | $0.00 | $0.00 | $0.00 |
|
| | $0.00 | $0.00 | $0.00 | $0.00 | $0.00 | $0.00 |
Values
| (+) Improvement Homesite Value: | + | $0 | |
| (+) Improvement Non-Homesite Value: | + | $242,680 | |
| (+) Land Homesite Value: | + | $0 | |
| (+) Land Non-Homesite Value: | + | $25,740 | |
| (+) Curr Use (HS): | + | $0 | $0 |
| (+) Curr Use (NHS): | + | $0 | $0 |
| | | -------------------------- | |
| (=) Market Value: | = | $268,420 | |
| (–) Productivity Loss: | – | $0 | |
| | | -------------------------- | |
| (=) Subtotal: | = | $268,420 | |
| (+) Senior Appraised Value: | + | $0 | |
| (+) Non-Senior Appraised Value: | + | $268,420 | |
| | | -------------------------- | |
| (=) Total Appraised Value: | = | $268,420 | |
| (–) Senior Exemption Loss: | – | $0 | |
| (–) Exemption Loss: | – | $0 | |
| | | -------------------------- | |
| (=) Taxable Value: | = | $268,420 | |
Taxing Jurisdiction
| Owner: | GOODWIN BRAZDON | | |
| % Ownership: | 100.0000000000% | | |
| Total Value: | $268,420 | | |
| Tax Area: | 1 - OL-140-F |
| CERFD | CURRENT EXPENSE REFUND 010 | 0.0000000000 | $268,420 | $268,420 | $0.00 | | |
| CURREXP | CURRENT EXPENSE 010 | 1.0175366760 | $268,420 | $268,420 | $273.13 | | |
| HUMNSERV | HUMAN SERVICES 119 | 0.0250000000 | $268,420 | $268,420 | $6.71 | | |
| SLDREL | SOLDIERS RELIEF 121 | 0.0155990005 | $268,420 | $268,420 | $4.19 | | |
| EMERGSER | EMS 147 | 0.3792580840 | $268,420 | $268,420 | $101.80 | | |
| EMSRFD | EMS REFUND 147 | 0.0000000000 | $268,420 | $268,420 | $0.00 | | |
| PORTRFD | PORT REFUND 640 | 0.0000000000 | $268,420 | $268,420 | $0.00 | | |
| PORTWWGEN | PORT OF WW 640 | 0.2460186015 | $268,420 | $268,420 | $66.04 | | |
| SD140BOND | SD #140 BOND 764 | 0.8342371393 | $268,420 | $268,420 | $223.93 | | |
| SD140GEN | SD #140 GENERAL 760 | 2.0646500647 | $268,420 | $268,420 | $554.19 | | |
| ST2 | STATE SCHOOL PART 2 600 | 0.8131451643 | $268,420 | $268,420 | $218.26 | | |
| STATESCHL | STATE SCHOOL 600 | 1.5158548041 | $268,420 | $268,420 | $406.89 | | |
| STREFUND | STATE REFUND LEVY 603 | 0.0000000000 | $268,420 | $268,420 | $0.00 | | |
| CWWBOND | C OF WW BOND 643 | 0.2760494372 | $268,420 | $268,420 | $74.10 | | |
| CWWGEN | CITY OF WW 631 | 1.6100204973 | $268,420 | $268,420 | $432.16 | | |
| CWWRFD | CITY OF WALLA WALLA REFUND 631 | 0.0000000000 | $268,420 | $268,420 | $0.00 | | |
| | Total Tax Rate: | 8.7973694689 | | | | | |
| | | | | Taxes w/Current Exemptions: | $2,361.40 | | |
| | | | | Taxes w/o Exemptions: | $2,361.40 | | |
Improvement / Building
| Improvement #1: | RESIDENTIAL | State Code: | 11 | 1178.0 sqft | Value: | $242,680 |
| Exterior Wall: | VINYL | Heating/Cooling: | BASEBOARD ELECTRIC | | Number of Bathrooms: | 2 | Number of Bedrooms: | 2 | | Plumbing: | 9 | Roof Covering: | COMP SHINGLE |
|
| | Type | Description | Class CD | Sub Class CD | Year Built | Area |
| | MA | Main Area | 1 | 30 | 1905 | 1178.0 |
| | SI1 | SITE IMPROVEMENT | 1 | 30 | 0 | 2.0 |
| | RPO | OPEN PORCH W/ROOF | 1 | 30 | 0 | 24.0 |
| | SWP | Solid Wall Porch | 1 | 30 | 1905 | 120.0 |
Sketch
Property Image
Land
| 1 | RES 1 | Converted: Residential | 0.0716 | 3120.00 | 0.00 | 0.00 | 1.00 | $25,740 | $0 |
Roll Value History
| 2026 | N/A | N/A | N/A | N/A | N/A |
| 2025 | $267,560 | $25,740 | $0 | $293,300 | $293,300 |
| 2024 | $254,810 | $25,740 | $0 | $280,550 | $280,550 |
| 2023 | $242,680 | $25,740 | $0 | $268,420 | $268,420 |
| 2022 | $53,720 | $25,740 | $0 | $79,460 | $79,460 |
| 2021 | $59,180 | $13,300 | $0 | $72,480 | $72,480 |
| 2020 | $59,180 | $13,300 | $0 | $72,480 | $72,480 |
| 2019 | $59,180 | $13,300 | $0 | $72,480 | $72,480 |
| 2018 | $59,180 | $13,300 | $0 | $72,480 | $72,480 |
| 2017 | $59,180 | $13,300 | $0 | $72,480 | $72,480 |
| 2016 | $59,180 | $13,300 | $0 | $72,480 | $72,480 |
| 2015 | $66,050 | $13,300 | $0 | $79,350 | $79,350 |
| 2014 | $62,900 | $13,300 | $0 | $76,200 | $76,200 |
| 2013 | $62,900 | $13,300 | $0 | $76,200 | $76,200 |
| 2012 | $62,900 | $13,300 | $0 | $0 | $0 |
| 2011 | $62,900 | $13,300 | $0 | $0 | $0 |
| 2010 | $62,100 | $13,300 | $0 | $0 | $0 |
| 2009 | $93,700 | $5,500 | $0 | $0 | $0 |
| 2008 | $49,600 | $5,500 | $0 | $0 | $0 |
| 2007 | $49,600 | $5,500 | $0 | $0 | $0 |
Deed and Sales History
| 1 | 08/15/2024 | SWD | STATUTORY WARRANTY DEED | GOODWIN BRAZDON | LOPEZ ROSA I LOPEZ | | | $316,000.00 | 148040 | 2024-04542 |
| 2 | 03/24/2023 | SWD | STATUTORY WARRANTY DEED | BURNETT VIRGINIA E | GOODWIN BRAZDON | | | $290,000.00 | 145560 | 2023-01515 |
| 3 | 04/24/2020 | TODD | TRANSFER ON DEATH DEED | BURNETT VIRGINIA E | SOLER ANGELA | | | | 0 | 2020-03526 |
| 4 | 08/17/2018 | QCD | QUIT CLAIM DEED | BURNETT MICHAEL E & VIRGINIA | BURNETT VIRGINIA E | | | $0.00 | 135369 | 2018-06847 |
| 5 | 06/23/1993 | WARRANTY D | WARRANTY DEED | | | | | $31,032.00 | 79377 | 2089-306351 |
Payout Agreement
| No payout information available.. |