Property
Account |
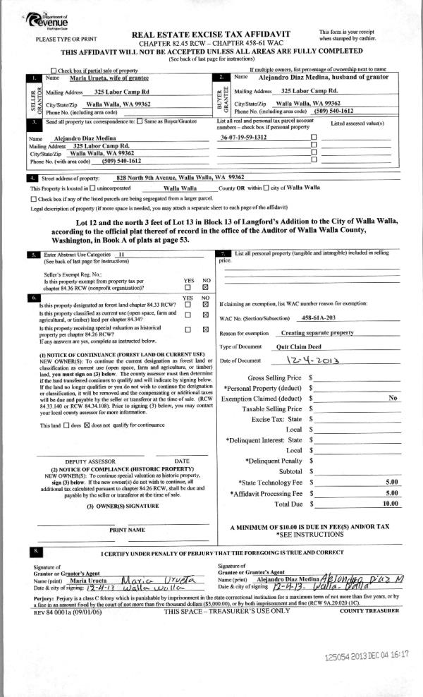
| Property ID: | 6865 | Abbreviated Legal Description: | LANGFORDS LOT 12 AND N 3' OF LOT 13 BLK 13 |
| Parcel Number: | 360719591312 | Agent Code: | |
| Type: | Real | | |
| Tax Area: | 1 - OL-140-F | Land Use Code | 11 |
| Open Space: | N | DFL | N |
| Historic Property: | N | Remodel Property: | N |
| Multi-Family Redevelopment: | N | | |
| Township: | 7 | Section: | 19 |
| Range: | 36 |
Location |
| Address: | 828 N 9TH AVE WA 99362 | Mapsco: | |
| Neighborhood: | A-SFR | Map ID: | |
| Neighborhood CD: | 313011 |
Owner |
| Name: | DIAZ NOEMI RAMOS | Owner ID: | 70076 |
| Mailing Address: | EDGAR OLMOS 804 STURM AVE WALLA WALLA, WA 99362 | % Ownership: | 100.0000000000% |
| | | Exemptions: | |
Taxes and Assessment Details
Property Tax Information as of
02/21/2026
Click on "Statement Details" to expand or collapse a tax statement.
* Please enter a valid date ** Please enter a valid date *
Statement Details |
| | TOTAL: | $0.00 | $0.00 | $0.00 | $0.00 | $0.00 | $0.00 |
|
| | $0.00 | $0.00 | $0.00 | $0.00 | $0.00 | $0.00 |
Values
| (+) Improvement Homesite Value: | + | $0 | |
| (+) Improvement Non-Homesite Value: | + | $236,160 | |
| (+) Land Homesite Value: | + | $0 | |
| (+) Land Non-Homesite Value: | + | $56,930 | |
| (+) Curr Use (HS): | + | $0 | $0 |
| (+) Curr Use (NHS): | + | $0 | $0 |
| | | -------------------------- | |
| (=) Market Value: | = | $293,090 | |
| (–) Productivity Loss: | – | $0 | |
| | | -------------------------- | |
| (=) Subtotal: | = | $293,090 | |
| (+) Senior Appraised Value: | + | $0 | |
| (+) Non-Senior Appraised Value: | + | $293,090 | |
| | | -------------------------- | |
| (=) Total Appraised Value: | = | $293,090 | |
| (–) Senior Exemption Loss: | – | $0 | |
| (–) Exemption Loss: | – | $0 | |
| | | -------------------------- | |
| (=) Taxable Value: | = | $293,090 | |
Taxing Jurisdiction
| Owner: | DIAZ NOEMI RAMOS | | |
| % Ownership: | 100.0000000000% | | |
| Total Value: | $293,090 | | |
| Tax Area: | 1 - OL-140-F |
| CERFD | CURRENT EXPENSE REFUND 010 | 0.0000000000 | $293,090 | $293,090 | $0.00 | | |
| CURREXP | CURRENT EXPENSE 010 | 1.0175366760 | $293,090 | $293,090 | $298.23 | | |
| HUMNSERV | HUMAN SERVICES 119 | 0.0250000000 | $293,090 | $293,090 | $7.33 | | |
| SLDREL | SOLDIERS RELIEF 121 | 0.0155990005 | $293,090 | $293,090 | $4.57 | | |
| EMERGSER | EMS 147 | 0.3792580840 | $293,090 | $293,090 | $111.16 | | |
| EMSRFD | EMS REFUND 147 | 0.0000000000 | $293,090 | $293,090 | $0.00 | | |
| PORTRFD | PORT REFUND 640 | 0.0000000000 | $293,090 | $293,090 | $0.00 | | |
| PORTWWGEN | PORT OF WW 640 | 0.2460186015 | $293,090 | $293,090 | $72.11 | | |
| SD140BOND | SD #140 BOND 764 | 0.8342371393 | $293,090 | $293,090 | $244.51 | | |
| SD140GEN | SD #140 GENERAL 760 | 2.0646500647 | $293,090 | $293,090 | $605.13 | | |
| ST2 | STATE SCHOOL PART 2 600 | 0.8131451643 | $293,090 | $293,090 | $238.32 | | |
| STATESCHL | STATE SCHOOL 600 | 1.5158548041 | $293,090 | $293,090 | $444.28 | | |
| STREFUND | STATE REFUND LEVY 603 | 0.0000000000 | $293,090 | $293,090 | $0.00 | | |
| CWWBOND | C OF WW BOND 643 | 0.2760494372 | $293,090 | $293,090 | $80.91 | | |
| CWWGEN | CITY OF WW 631 | 1.6100204973 | $293,090 | $293,090 | $471.88 | | |
| CWWRFD | CITY OF WALLA WALLA REFUND 631 | 0.0000000000 | $293,090 | $293,090 | $0.00 | | |
| | Total Tax Rate: | 8.7973694689 | | | | | |
| | | | | Taxes w/Current Exemptions: | $2,578.43 | | |
| | | | | Taxes w/o Exemptions: | $2,578.43 | | |
Improvement / Building
| Improvement #1: | RESIDENTIAL | State Code: | 11 | 2101.0 sqft | Value: | $236,160 |
| Exterior Wall: | STUCCO | Heating/Cooling: | FORCED AIR | | Number of Bathrooms: | 2.5 | Number of Bedrooms: | 4 | | Plumbing: | 12 | Roof Covering: | COMP SHINGLE |
|
| | Type | Description | Class CD | Sub Class CD | Year Built | Area |
| | MA | Main Area | 4 | 30 | 1896 | 2101.0 |
| | SI1 | SITE IMPROVEMENT | 4 | 30 | 1896 | 3.0 |
| | BASE | BASEMENT | 4 | 30 | 1896 | 432.0 |
| | BNV | BUILDING NO VALUE | 4 | 30 | 1896 | 360.0 |
| | RPS | PORCH W/STEPS,ROOF | 4 | 30 | 1896 | 147.0 |
| | UPFL | Upper Floor (included in main area) | 4 | 30 | 1896 | 640.0 |
| | EWS | EXT WOOD STAIRS | 4 | 30 | 1896 | 1.0 |
Sketch
Property Image
Land
| 1 | RES 1 | Converted: Residential | 0.1584 | 6900.00 | 0.00 | 0.00 | 1.00 | $56,930 | $0 |
Roll Value History
| 2026 | N/A | N/A | N/A | N/A | N/A |
| 2025 | $236,160 | $56,930 | $0 | $293,090 | $293,090 |
| 2024 | $236,160 | $56,930 | $0 | $293,090 | $293,090 |
| 2023 | $236,160 | $56,930 | $0 | $293,090 | $293,090 |
| 2022 | $214,690 | $56,930 | $0 | $271,620 | $271,620 |
| 2021 | $174,330 | $25,000 | $0 | $199,330 | $199,330 |
| 2020 | $129,130 | $25,000 | $0 | $154,130 | $154,130 |
| 2019 | $129,130 | $25,000 | $0 | $154,130 | $154,130 |
| 2018 | $92,230 | $25,000 | $0 | $117,230 | $117,230 |
| 2017 | $92,230 | $25,000 | $0 | $117,230 | $117,230 |
| 2016 | $87,840 | $25,000 | $0 | $112,840 | $112,840 |
| 2015 | $101,210 | $25,000 | $0 | $126,210 | $126,210 |
| 2014 | $69,800 | $25,000 | $0 | $94,800 | $94,800 |
| 2013 | $69,800 | $25,000 | $0 | $94,800 | $94,800 |
| 2012 | $69,800 | $25,000 | $0 | $0 | $0 |
| 2011 | $69,800 | $25,000 | $0 | $0 | $0 |
| 2010 | $66,500 | $25,000 | $0 | $0 | $0 |
| 2009 | $84,200 | $12,100 | $0 | $0 | $0 |
| 2008 | $64,900 | $12,100 | $0 | $0 | $0 |
| 2007 | $64,900 | $12,100 | $0 | $0 | $0 |
Deed and Sales History
| 1 | 08/12/2021 | SWD | STATUTORY WARRANTY DEED | MEDINA ALEJANDRO DIAZ | DIAZ NOEMI RAMOS | | | $0.00 | 143901 | 2022-03919 |
| 2 | 08/13/2021 | SWD | STATUTORY WARRANTY DEED | MEDINA ALEJANDRO DIAZ | DIAZ NOEMI RAMOS | | | $280,000.00 | 142270 | 2021-09865 |
| 3 | 12/04/2013 | QCD | QUIT CLAIM DEED | MEDINA ALEJANDRO DIAZ | | | | | 125054 | 2013-11707 |
| 4 | 12/04/2013 | WARRANTY D | WARRANTY DEED | WISE TODD W & RUBY | MEDINA ALEJANDRO DIAZ | | | $119,900.00 | 125053 | 2013-11706 |
| 5 | 03/31/2006 | WARRANTY D | WARRANTY DEED | GOFORTH, JEREMY JAMES | WISE, TODD W & RUBY | | | $100,000.00 | 109945 | 2006-03707 |
| 6 | 03/05/2004 | WARRANTY D | WARRANTY DEED | THE CHASE MANHATTAN BANK, TRUS | GOFORTH, JEREMY JAMES | | | $73,000.00 | 104205 | 2004-02403 |
| 7 | 11/13/2003 | WARRANTY D | WARRANTY DEED | NORTHWEST TRUSTEE'S SERVICES | THE CHASE MANHATTAN BANK, TRUS | | | $65,802.00 | 103511 | 2003-17523 |
| 8 | 02/29/1984 | WARRANTY D | WARRANTY DEED | | | | | $48,417.00 | 0 | 1428-401420 |
Payout Agreement
| No payout information available.. |