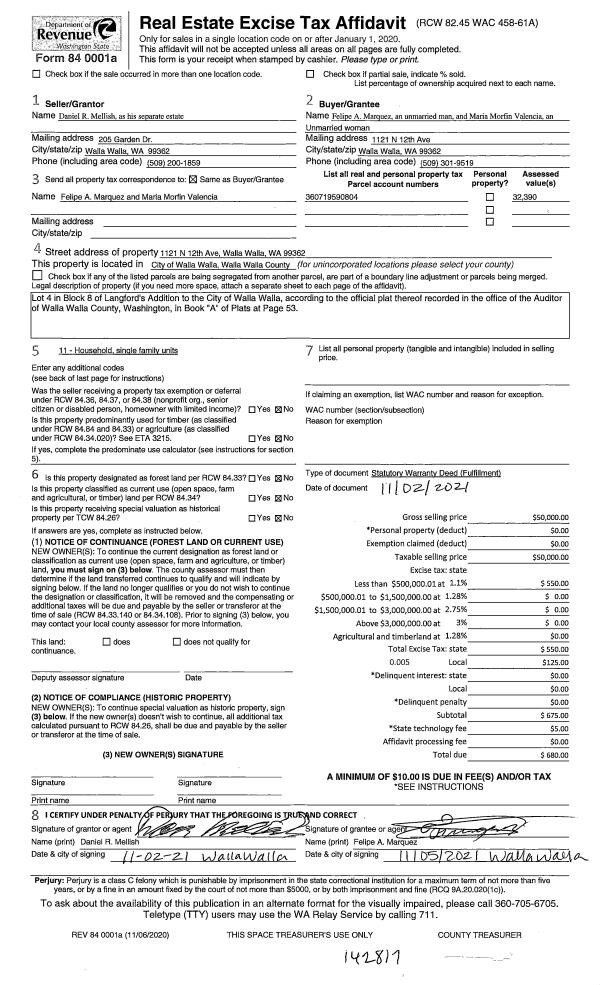
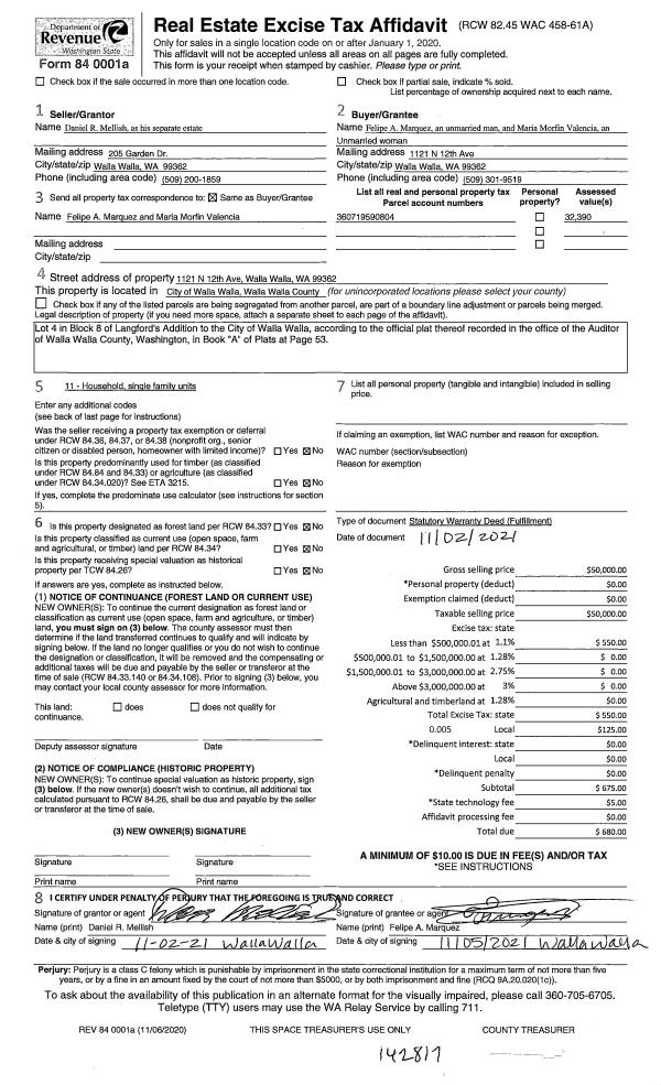
Property
Account |
| Property ID: | 6839 | Abbreviated Legal Description: | LANGFORDS LOT 4 BLK 8 |
| Parcel Number: | 360719590804 | Agent Code: | |
| Type: | Real | | |
| Tax Area: | 1 - OL-140-F | Land Use Code | 11 |
| Open Space: | N | DFL | N |
| Historic Property: | N | Remodel Property: | N |
| Multi-Family Redevelopment: | N | | |
| Township: | 7 | Section: | 19 |
| Range: | 36 |
Location |
| Address: | 1121 N 12TH AVE WA 99362 | Mapsco: | |
| Neighborhood: | A-SFR | Map ID: | |
| Neighborhood CD: | 313011 |
Owner |
| Name: | MARQUEZ FELIPE | Owner ID: | 70580 |
| Mailing Address: | MARIA MORFIN VALENCIA 1121 N 12TH AVE WALLA WALLA, WA 99362 | % Ownership: | 100.0000000000% |
| | | Exemptions: | |
Taxes and Assessment Details
Property Tax Information as of
02/21/2026
Click on "Statement Details" to expand or collapse a tax statement.
* Please enter a valid date ** Please enter a valid date *
Statement Details |
| | TOTAL: | $0.00 | $0.00 | $0.00 | $0.00 | $0.00 | $0.00 |
|
| | $0.00 | $0.00 | $0.00 | $0.00 | $0.00 | $0.00 |
Values
| (+) Improvement Homesite Value: | + | $0 | |
| (+) Improvement Non-Homesite Value: | + | $1,050 | |
| (+) Land Homesite Value: | + | $0 | |
| (+) Land Non-Homesite Value: | + | $53,130 | |
| (+) Curr Use (HS): | + | $0 | $0 |
| (+) Curr Use (NHS): | + | $0 | $0 |
| | | -------------------------- | |
| (=) Market Value: | = | $54,180 | |
| (–) Productivity Loss: | – | $0 | |
| | | -------------------------- | |
| (=) Subtotal: | = | $54,180 | |
| (+) Senior Appraised Value: | + | $0 | |
| (+) Non-Senior Appraised Value: | + | $54,180 | |
| | | -------------------------- | |
| (=) Total Appraised Value: | = | $54,180 | |
| (–) Senior Exemption Loss: | – | $0 | |
| (–) Exemption Loss: | – | $0 | |
| | | -------------------------- | |
| (=) Taxable Value: | = | $54,180 | |
Taxing Jurisdiction
| Owner: | MARQUEZ FELIPE | | |
| % Ownership: | 100.0000000000% | | |
| Total Value: | $54,180 | | |
| Tax Area: | 1 - OL-140-F |
| CERFD | CURRENT EXPENSE REFUND 010 | 0.0000000000 | $54,180 | $54,180 | $0.00 | | |
| CURREXP | CURRENT EXPENSE 010 | 1.0175366760 | $54,180 | $54,180 | $55.13 | | |
| HUMNSERV | HUMAN SERVICES 119 | 0.0250000000 | $54,180 | $54,180 | $1.35 | | |
| SLDREL | SOLDIERS RELIEF 121 | 0.0155990005 | $54,180 | $54,180 | $0.85 | | |
| EMERGSER | EMS 147 | 0.3792580840 | $54,180 | $54,180 | $20.55 | | |
| EMSRFD | EMS REFUND 147 | 0.0000000000 | $54,180 | $54,180 | $0.00 | | |
| PORTRFD | PORT REFUND 640 | 0.0000000000 | $54,180 | $54,180 | $0.00 | | |
| PORTWWGEN | PORT OF WW 640 | 0.2460186015 | $54,180 | $54,180 | $13.33 | | |
| SD140BOND | SD #140 BOND 764 | 0.8342371393 | $54,180 | $54,180 | $45.20 | | |
| SD140GEN | SD #140 GENERAL 760 | 2.0646500647 | $54,180 | $54,180 | $111.86 | | |
| ST2 | STATE SCHOOL PART 2 600 | 0.8131451643 | $54,180 | $54,180 | $44.06 | | |
| STATESCHL | STATE SCHOOL 600 | 1.5158548041 | $54,180 | $54,180 | $82.13 | | |
| STREFUND | STATE REFUND LEVY 603 | 0.0000000000 | $54,180 | $54,180 | $0.00 | | |
| CWWBOND | C OF WW BOND 643 | 0.2760494372 | $54,180 | $54,180 | $14.96 | | |
| CWWGEN | CITY OF WW 631 | 1.6100204973 | $54,180 | $54,180 | $87.23 | | |
| CWWRFD | CITY OF WALLA WALLA REFUND 631 | 0.0000000000 | $54,180 | $54,180 | $0.00 | | |
| | Total Tax Rate: | 8.7973694689 | | | | | |
| | | | | Taxes w/Current Exemptions: | $476.65 | | |
| | | | | Taxes w/o Exemptions: | $476.65 | | |
Improvement / Building
| Improvement #1: | RESIDENTIAL | State Code: | 11 | 652.0 sqft | Value: | $1,050 |
| Exterior Wall: | SIDING | Foundation: | POST & PIER | | Heating/Cooling: | STOVE-NO HEAT | Number of Bathrooms: | 1 | | Number of Bedrooms: | 2 | Plumbing: | 6 | | Roof Covering: | COMP SHINGLE |   |   |
|
| | Type | Description | Class CD | Sub Class CD | Year Built | Area |
| | MA | Main Area | 1 | 20 | 1919 | 652.0 |
| | SI1 | SITE IMPROVEMENT | 1 | 20 | 0 | 1.0 |
Sketch
Property Image
Land
| 1 | RES 1 | Converted: Residential | 0.1478 | 6440.00 | 0.00 | 0.00 | 1.00 | $53,130 | $0 |
Roll Value History
| 2026 | N/A | N/A | N/A | N/A | N/A |
| 2025 | $1,680 | $53,130 | $0 | $54,810 | $54,810 |
| 2024 | $1,050 | $53,130 | $0 | $54,180 | $54,180 |
| 2023 | $1,050 | $53,130 | $0 | $54,180 | $54,180 |
| 2022 | $1,050 | $53,130 | $0 | $54,180 | $54,180 |
| 2021 | $7,690 | $24,700 | $0 | $32,390 | $32,390 |
| 2020 | $7,690 | $24,700 | $0 | $32,390 | $32,390 |
| 2019 | $7,690 | $24,700 | $0 | $32,390 | $32,390 |
| 2018 | $7,330 | $24,700 | $0 | $32,030 | $32,030 |
| 2017 | $7,330 | $24,700 | $0 | $32,030 | $32,030 |
| 2016 | $6,660 | $24,700 | $0 | $31,360 | $31,360 |
| 2015 | $2,500 | $24,700 | $0 | $27,200 | $27,200 |
| 2014 | $2,500 | $24,700 | $0 | $27,200 | $27,200 |
| 2013 | $2,500 | $24,700 | $0 | $27,200 | $27,200 |
| 2012 | $5,500 | $24,700 | $0 | $0 | $0 |
| 2011 | $5,500 | $24,700 | $0 | $0 | $0 |
| 2010 | $2,000 | $24,700 | $0 | $0 | $0 |
| 2009 | $16,800 | $11,300 | $0 | $0 | $0 |
| 2008 | $9,800 | $9,700 | $0 | $0 | $0 |
| 2007 | $9,800 | $9,700 | $0 | $0 | $0 |
Deed and Sales History
| 1 | 11/05/2021 | REAL ESTAT | REAL ESTATE CONTRACT | MELLISH DANIEL R | MARQUEZ FELIPE | | | $50,000.00 | 142817 | 2021-13312 |
| 2 | 08/16/1991 | WARRANTY D | WARRANTY DEED | | | | | $19,500.00 | 0 | 1909-105587 |
Payout Agreement
| No payout information available.. |