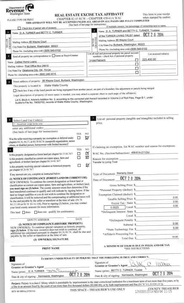
Property
Account |
| Property ID: | 6729 | Abbreviated Legal Description: | ARLENES #3 LOT 5 BLK 4 |
| Parcel Number: | 310807560405 | Agent Code: | |
| Type: | Real | | |
| Tax Area: | 328 - 400-M-5 | Land Use Code | 11 |
| Open Space: | N | DFL | N |
| Historic Property: | N | Remodel Property: | N |
| Multi-Family Redevelopment: | N | | |
| Township: | 8 | Section: | 7 |
| Range: | 31 |
Location |
| Address: | 85 WAYNE CT WA 99323 | Mapsco: | |
| Neighborhood: | G BURBANK SFR | Map ID: | |
| Neighborhood CD: | 214711 |
Owner |
| Name: | TURNER LIVING TRUST | Owner ID: | 55779 |
| Mailing Address: | D A TURNER & BETTY C TURNER TRUSTEES 85 WAYNE COURT BURBANK, WA 99323 | % Ownership: | 100.0000000000% |
| | | Exemptions: | |
Taxes and Assessment Details
Property Tax Information as of
02/21/2026
Click on "Statement Details" to expand or collapse a tax statement.
* Please enter a valid date ** Please enter a valid date *
Statement Details |
| | TOTAL: | $0.00 | $0.00 | $0.00 | $0.00 | $0.00 | $0.00 |
|
| | $0.00 | $0.00 | $0.00 | $0.00 | $0.00 | $0.00 |
Values
| (+) Improvement Homesite Value: | + | $0 | |
| (+) Improvement Non-Homesite Value: | + | $353,800 | |
| (+) Land Homesite Value: | + | $0 | |
| (+) Land Non-Homesite Value: | + | $75,000 | |
| (+) Curr Use (HS): | + | $0 | $0 |
| (+) Curr Use (NHS): | + | $0 | $0 |
| | | -------------------------- | |
| (=) Market Value: | = | $428,800 | |
| (–) Productivity Loss: | – | $0 | |
| | | -------------------------- | |
| (=) Subtotal: | = | $428,800 | |
| (+) Senior Appraised Value: | + | $0 | |
| (+) Non-Senior Appraised Value: | + | $428,800 | |
| | | -------------------------- | |
| (=) Total Appraised Value: | = | $428,800 | |
| (–) Senior Exemption Loss: | – | $0 | |
| (–) Exemption Loss: | – | $0 | |
| | | -------------------------- | |
| (=) Taxable Value: | = | $428,800 | |
Taxing Jurisdiction
| Owner: | TURNER LIVING TRUST | | |
| % Ownership: | 100.0000000000% | | |
| Total Value: | $428,800 | | |
| Tax Area: | 328 - 400-M-5 |
| CERFD | CURRENT EXPENSE REFUND 010 | 0.0000000000 | $428,800 | $428,800 | $0.00 | | |
| CURREXP | CURRENT EXPENSE 010 | 1.0175366760 | $428,800 | $428,800 | $436.32 | | |
| HUMNSERV | HUMAN SERVICES 119 | 0.0250000000 | $428,800 | $428,800 | $10.72 | | |
| SLDREL | SOLDIERS RELIEF 121 | 0.0155990005 | $428,800 | $428,800 | $6.69 | | |
| EMERGSER | EMS 147 | 0.3792580840 | $428,800 | $428,800 | $162.63 | | |
| EMSRFD | EMS REFUND 147 | 0.0000000000 | $428,800 | $428,800 | $0.00 | | |
| FD5EXP | FD #5 EXPENSE 689 | 1.2045331840 | $428,800 | $428,800 | $516.50 | | |
| RLBRFD | RURAL LIBRARY REFUND 623 | 0.0000000000 | $428,800 | $428,800 | $0.00 | | |
| RURALLIB | RURAL LIBRARY 623 | 0.3710609029 | $428,800 | $428,800 | $159.11 | | |
| PORTRFD | PORT REFUND 640 | 0.0000000000 | $428,800 | $428,800 | $0.00 | | |
| PORTWWGEN | PORT OF WW 640 | 0.2460186015 | $428,800 | $428,800 | $105.49 | | |
| SD400BOND | SD #400 BOND 793 | 0.0000000000 | $428,800 | $428,800 | $0.00 | | |
| SD400CAP | SD #400 CP 792 | 0.3443722657 | $428,800 | $428,800 | $147.67 | | |
| SD400GEN | SD #400 GENERAL 790 | 1.9278469916 | $428,800 | $428,800 | $826.66 | | |
| ST2 | STATE SCHOOL PART 2 600 | 0.8131451643 | $428,800 | $428,800 | $348.68 | | |
| STATESCHL | STATE SCHOOL 600 | 1.5158548041 | $428,800 | $428,800 | $650.00 | | |
| STREFUND | STATE REFUND LEVY 603 | 0.0000000000 | $428,800 | $428,800 | $0.00 | | |
| COROAD | COUNTY ROAD 115 | 1.6549953990 | $428,800 | $428,800 | $709.66 | | |
| CRPRD | COUNTY ROAD REFUND 115 | 0.0000000000 | $428,800 | $428,800 | $0.00 | | |
| | Total Tax Rate: | 9.5152210736 | | | | | |
| | | | | Taxes w/Current Exemptions: | $4,080.13 | | |
| | | | | Taxes w/o Exemptions: | $4,080.13 | | |
Improvement / Building
| Improvement #1: | RESIDENTIAL | State Code: | 11 | 1720.0 sqft | Value: | $353,800 |
| Exterior Wall: | HARDBOARD | Heating/Cooling: | WARM & COOLED AIR | | Number of Bathrooms: | 2 | Number of Bedrooms: | 3 | | Plumbing: | 10 | Roof Covering: | COMP SHINGLE |
|
| | Type | Description | Class CD | Sub Class CD | Year Built | Area |
| | MA | Main Area | 1 | 40 | 2004 | 1720.0 |
| | SI1 | SITE IMPROVEMENT | 1 | 40 | 2004 | 2.0 |
| | ATG | Attached Garage | 1 | 40 | 2004 | 688.0 |
| | CPC | COVERED CARPORT/PATIO | 1 | 40 | 2004 | 444.0 |
| | GFP | GAS FIREPLACE | 1 | 40 | 2004 | 1.0 |
| | RPO | OPEN PORCH W/ROOF | 1 | 40 | 2004 | 68.0 |
| | POL2 | POLE BUILDING-CONCRETE | 1 | 40 | 2004 | 1088.0 |
Sketch
Property Image
Land
| 1 | RES 1 | Converted: Residential | 0.5689 | 24780.00 | 0.00 | 0.00 | 1.00 | $75,000 | $0 |
Roll Value History
| 2026 | N/A | N/A | N/A | N/A | N/A |
| 2025 | $389,180 | $75,000 | $0 | $464,180 | $464,180 |
| 2024 | $353,800 | $75,000 | $0 | $428,800 | $428,800 |
| 2023 | $353,800 | $75,000 | $0 | $428,800 | $428,800 |
| 2022 | $294,830 | $75,000 | $0 | $369,830 | $369,830 |
| 2021 | $268,030 | $75,000 | $0 | $343,030 | $343,030 |
| 2020 | $226,080 | $35,000 | $0 | $261,080 | $261,080 |
| 2019 | $226,080 | $35,000 | $0 | $261,080 | $261,080 |
| 2018 | $226,080 | $35,000 | $0 | $261,080 | $261,080 |
| 2017 | $226,080 | $35,000 | $0 | $261,080 | $261,080 |
| 2016 | $226,080 | $35,000 | $0 | $261,080 | $261,080 |
| 2015 | $226,080 | $35,000 | $0 | $261,080 | $261,080 |
| 2014 | $188,400 | $35,000 | $0 | $223,400 | $223,400 |
| 2013 | $188,400 | $35,000 | $0 | $223,400 | $223,400 |
| 2012 | $177,800 | $35,000 | $0 | $0 | $0 |
| 2011 | $177,800 | $35,000 | $0 | $0 | $0 |
| 2010 | $177,800 | $35,000 | $0 | $0 | $0 |
| 2009 | $177,000 | $25,000 | $0 | $0 | $0 |
| 2008 | $177,000 | $25,000 | $0 | $0 | $0 |
| 2007 | $177,000 | $25,000 | $0 | $0 | $0 |
Deed and Sales History
| 1 | 11/04/2014 | QCD | QUIT CLAIM DEED | TURNER DAVID A & BETTY C | TURNER LIVING TRUST | | | | 126888 | 2014-08079 |
| 2 | 09/02/2005 | WARRANTY D | WARRANTY DEED | GORDON, JERRY L & JANELL A | TURNER, DAVID A & BETTY C | | | $204,000.00 | 108413 | 2005-10962 |
| 3 | 10/07/2003 | WARRANTY D | WARRANTY DEED | BENISH, FRANK J | GORDON, JERRY L & JANELL A | | | $27,000.00 | 103202 | 2003-15453 |
| 4 | 07/30/1992 | WARRANTY D | WARRANTY DEED | | | | | $10,000.00 | 77327 | 1999-206680 |
Payout Agreement
| No payout information available.. |