Property
Account |
| Property ID: | 6727 | Abbreviated Legal Description: | REPLAT GARRISON CRK HGTS LOT 1 BLK 3 |
| Parcel Number: | 350736700301 | Agent Code: | |
| Type: | Real | | |
| Tax Area: | 77 - CP-250-F | Land Use Code | 11 |
| Open Space: | N | DFL | N |
| Historic Property: | N | Remodel Property: | N |
| Multi-Family Redevelopment: | N | | |
| Township: | 7 | Section: | 36 |
| Range: | 35 |
Location |
| Address: | 854 SE MARINE DR WA 99324 | Mapsco: | |
| Neighborhood: | G SFR | Map ID: | |
| Neighborhood CD: | 114011 |
Owner |
| Name: | FLUD DANIEL & SAFINA | Owner ID: | 73028 |
| Mailing Address: | 854 SE MARINE DR COLLEGE PLACE, WA 99324 | % Ownership: | 100.0000000000% |
| | | Exemptions: | |
Taxes and Assessment Details
Values
| (+) Improvement Homesite Value: | + | $0 | |
| (+) Improvement Non-Homesite Value: | + | $353,970 | |
| (+) Land Homesite Value: | + | $0 | |
| (+) Land Non-Homesite Value: | + | $75,000 | |
| (+) Curr Use (HS): | + | $0 | $0 |
| (+) Curr Use (NHS): | + | $0 | $0 |
| | | -------------------------- | |
| (=) Market Value: | = | $428,970 | |
| (–) Productivity Loss: | – | $0 | |
| | | -------------------------- | |
| (=) Subtotal: | = | $428,970 | |
| (+) Senior Appraised Value: | + | $0 | |
| (+) Non-Senior Appraised Value: | + | $428,970 | |
| | | -------------------------- | |
| (=) Total Appraised Value: | = | $428,970 | |
| (–) Senior Exemption Loss: | – | $0 | |
| (–) Exemption Loss: | – | $0 | |
| | | -------------------------- | |
| (=) Taxable Value: | = | $428,970 | |
Taxing Jurisdiction
| Owner: | FLUD DANIEL & SAFINA | | |
| % Ownership: | 100.0000000000% | | |
| Total Value: | $428,970 | | |
| Tax Area: | 77 - CP-250-F |
| CERFD | CURRENT EXPENSE REFUND 010 | 0.0000000000 | $428,970 | $428,970 | $0.00 | | |
| CURREXP | CURRENT EXPENSE 010 | 1.0175366760 | $428,970 | $428,970 | $436.49 | | |
| HUMNSERV | HUMAN SERVICES 119 | 0.0250000000 | $428,970 | $428,970 | $10.72 | | |
| SLDREL | SOLDIERS RELIEF 121 | 0.0155990005 | $428,970 | $428,970 | $6.69 | | |
| COLLPLBOND | C OF CP BOND 644 | 0.4374241808 | $428,970 | $428,970 | $187.64 | | |
| COLLPLGEN | CITY OF CP 632 | 1.4453819216 | $428,970 | $428,970 | $620.03 | | |
| EMERGSER | EMS 147 | 0.3792580840 | $428,970 | $428,970 | $162.69 | | |
| EMSRFD | EMS REFUND 147 | 0.0000000000 | $428,970 | $428,970 | $0.00 | | |
| RURALLIB | RURAL LIBRARY 623 | 0.3710609029 | $428,970 | $428,970 | $159.17 | | |
| PORTRFD | PORT REFUND 640 | 0.0000000000 | $428,970 | $428,970 | $0.00 | | |
| PORTWWGEN | PORT OF WW 640 | 0.2460186015 | $428,970 | $428,970 | $105.53 | | |
| SD250BOND | SD #250 BOND 773 | 1.4560608159 | $428,970 | $428,970 | $624.61 | | |
| SD250GEN | SD #250 GENERAL 770 | 2.3880724087 | $428,970 | $428,970 | $1,024.41 | | |
| ST2 | STATE SCHOOL PART 2 600 | 0.8131451643 | $428,970 | $428,970 | $348.81 | | |
| STATESCHL | STATE SCHOOL 600 | 1.5158548041 | $428,970 | $428,970 | $650.26 | | |
| STREFUND | STATE REFUND LEVY 603 | 0.0000000000 | $428,970 | $428,970 | $0.00 | | |
| | Total Tax Rate: | 10.1104125603 | | | | | |
| | | | | Taxes w/Current Exemptions: | $4,337.05 | | |
| | | | | Taxes w/o Exemptions: | $4,337.05 | | |
Improvement / Building
| Improvement #1: | RESIDENTIAL | State Code: | 11 | 1629.0 sqft | Value: | $353,970 |
| Exterior Wall: | PLYWOOD | Heating/Cooling: | HEAT PUMP | | Number of Bathrooms: | 2 | Number of Bedrooms: | 3 | | Plumbing: | 10 | Roof Covering: | COMP SHINGLE |
|
| | Type | Description | Class CD | Sub Class CD | Year Built | Area |
| | MA | Main Area | 1 | 40 | 1991 | 1629.0 |
| | GFP | GAS FIREPLACE | 1 | 40 | 1991 | 1.0 |
| | RPC | OPEN PORCH W/ROOF , CEILED | 1 | 40 | 1991 | 48.0 |
| | SI1 | SITE IMPROVEMENT | 1 | 40 | 1991 | 2.0 |
| | WDR | WOOD DECK W/ROOF | 1 | 40 | 1991 | 170.0 |
| | ATG | Attached Garage | 1 | 40 | 1991 | 440.0 |
Sketch
Property Image
Land
| 1 | RES 1 | Converted: Residential | 0.1728 | 7529.00 | 0.00 | 0.00 | 1.00 | $75,000 | $0 |
Roll Value History
| 2026 | N/A | N/A | N/A | N/A | N/A |
| 2025 | $300,880 | $140,000 | $0 | $440,880 | $440,880 |
| 2024 | $353,970 | $75,000 | $0 | $428,970 | $428,970 |
| 2023 | $353,970 | $75,000 | $0 | $428,970 | $428,970 |
| 2022 | $294,980 | $75,000 | $0 | $369,980 | $369,980 |
| 2021 | $280,930 | $75,000 | $0 | $355,930 | $355,930 |
| 2020 | $216,100 | $75,000 | $0 | $291,100 | $291,100 |
| 2019 | $226,100 | $65,000 | $0 | $291,100 | $291,100 |
| 2018 | $226,100 | $65,000 | $0 | $291,100 | $291,100 |
| 2017 | $142,570 | $65,000 | $0 | $207,570 | $207,570 |
| 2016 | $129,610 | $65,000 | $0 | $194,610 | $194,610 |
| 2015 | $123,440 | $65,000 | $0 | $188,440 | $188,440 |
| 2014 | $154,300 | $65,000 | $0 | $219,300 | $219,300 |
| 2013 | $154,300 | $65,000 | $0 | $219,300 | $219,300 |
| 2012 | $154,300 | $65,000 | $0 | $0 | $0 |
| 2011 | $154,300 | $65,000 | $0 | $0 | $0 |
| 2010 | $154,300 | $65,000 | $0 | $0 | $0 |
| 2009 | $165,800 | $65,000 | $0 | $0 | $0 |
| 2008 | $139,400 | $40,000 | $0 | $0 | $0 |
| 2007 | $139,400 | $40,000 | $0 | $0 | $0 |
Deed and Sales History
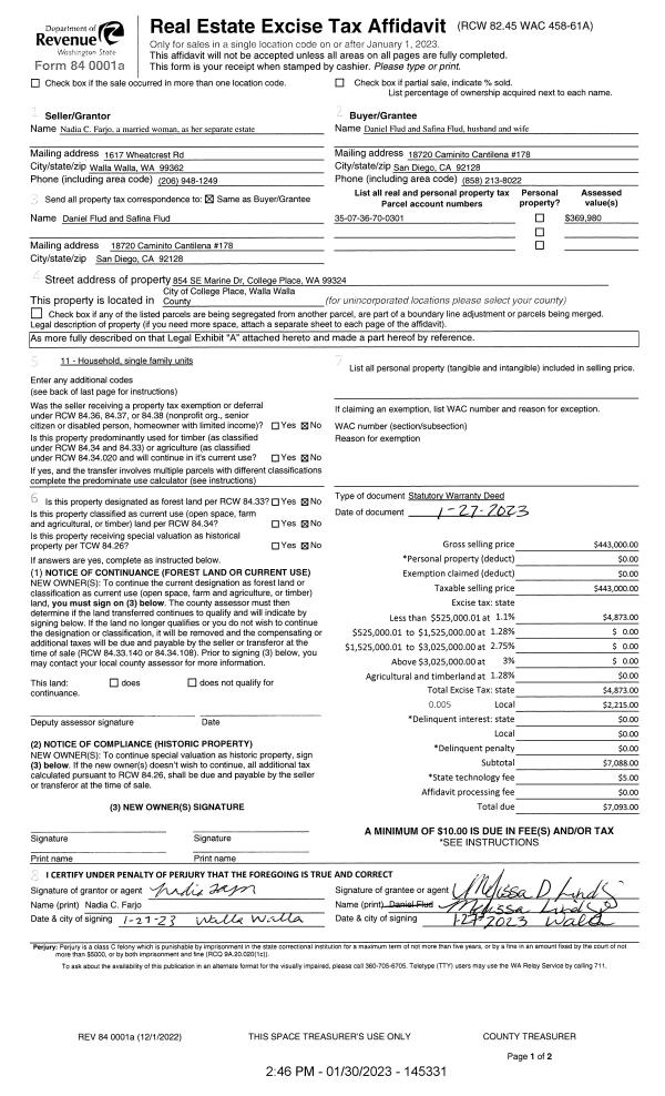
| 1 | 01/30/2023 | SWD | STATUTORY WARRANTY DEED | FARJO NADIA C | FLUD DANIEL & SAFINA | | | $443,000.00 | 145331 | 2023-00464 |
| 2 | 11/29/2017 | QCD | QUIT CLAIM DEED | CARSON COREY | FARJO NADIA C | | | | 133718 | 2017-09601 |
| 3 | 11/30/2017 | SWD | STATUTORY WARRANTY DEED | ARELLANO VERONICA | FARJO NADIA C | | | $298,000.00 | 133716 | 2017-09600 |
| 4 | 11/29/2016 | QCD | QUIT CLAIM DEED | ARELLANO OSCAR | ARELLANO VERONICA | | | | 131491 | 2016-09768 |
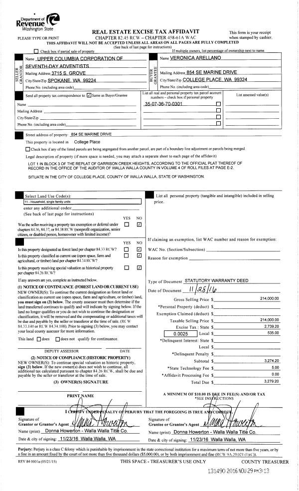
| 5 | 11/29/2016 | SWD | STATUTORY WARRANTY DEED | JONES JOHN V SR LIFE EST UCSDA | ARELLANO VERONICA | | | $214,000.00 | 131490 | 2016-09767 |
| 6 | 03/12/1992 | WARRANTY D | WARRANTY DEED | | | | | $119,995.00 | 76467 | 1959-202198 |
Payout Agreement
| No payout information available.. |