Property
Account |
| Property ID: | 6715 | Abbreviated Legal Description: | 17-7-36 TAX 1A & PTN TAX 1 LY NLY OF TAX 1A ALL IN SE1/4 SE1/4 |
| Parcel Number: | 360717440032 | Agent Code: | |
| Type: | Real | | |
| Tax Area: | 5 - OL-140 | Land Use Code | 81 |
| Open Space: | N | DFL | N |
| Historic Property: | N | Remodel Property: | N |
| Multi-Family Redevelopment: | N | | |
| Township: | 7 | Section: | 17 |
| Range: | 36 |
Location |
| Address: | 1135 E SUMACH ST WA 99362 | Mapsco: | |
| Neighborhood: | A-SFR MultiRes | Map ID: | |
| Neighborhood CD: | 513081 |
Owner |
| Name: | GRAMMS GREG | Owner ID: | 68884 |
| Mailing Address: | 1135 E SUMACH ST WALLA WALLA, WA 99362 | % Ownership: | 100.0000000000% |
| | | Exemptions: | |
Taxes and Assessment Details
Property Tax Information as of
02/21/2026
Click on "Statement Details" to expand or collapse a tax statement.
* Please enter a valid date ** Please enter a valid date *
Statement Details |
| | TOTAL: | $0.00 | $0.00 | $0.00 | $0.00 | $0.00 | $0.00 |
|
| | $0.00 | $0.00 | $0.00 | $0.00 | $0.00 | $0.00 |
Values
| (+) Improvement Homesite Value: | + | $0 | |
| (+) Improvement Non-Homesite Value: | + | $561,020 | |
| (+) Land Homesite Value: | + | $0 | |
| (+) Land Non-Homesite Value: | + | $84,540 | |
| (+) Curr Use (HS): | + | $0 | $0 |
| (+) Curr Use (NHS): | + | $0 | $0 |
| | | -------------------------- | |
| (=) Market Value: | = | $645,560 | |
| (–) Productivity Loss: | – | $0 | |
| | | -------------------------- | |
| (=) Subtotal: | = | $645,560 | |
| (+) Senior Appraised Value: | + | $0 | |
| (+) Non-Senior Appraised Value: | + | $645,560 | |
| | | -------------------------- | |
| (=) Total Appraised Value: | = | $645,560 | |
| (–) Senior Exemption Loss: | – | $0 | |
| (–) Exemption Loss: | – | $0 | |
| | | -------------------------- | |
| (=) Taxable Value: | = | $645,560 | |
Taxing Jurisdiction
| Owner: | GRAMMS GREG | | |
| % Ownership: | 100.0000000000% | | |
| Total Value: | $645,560 | | |
| Tax Area: | 5 - OL-140 |
| CERFD | CURRENT EXPENSE REFUND 010 | 0.0000000000 | $645,560 | $645,560 | $0.00 | | |
| CURREXP | CURRENT EXPENSE 010 | 1.0175366760 | $645,560 | $645,560 | $656.88 | | |
| HUMNSERV | HUMAN SERVICES 119 | 0.0250000000 | $645,560 | $645,560 | $16.14 | | |
| SLDREL | SOLDIERS RELIEF 121 | 0.0155990005 | $645,560 | $645,560 | $10.07 | | |
| EMERGSER | EMS 147 | 0.3792580840 | $645,560 | $645,560 | $244.83 | | |
| EMSRFD | EMS REFUND 147 | 0.0000000000 | $645,560 | $645,560 | $0.00 | | |
| PORTRFD | PORT REFUND 640 | 0.0000000000 | $645,560 | $645,560 | $0.00 | | |
| PORTWWGEN | PORT OF WW 640 | 0.2460186015 | $645,560 | $645,560 | $158.82 | | |
| SD140BOND | SD #140 BOND 764 | 0.8342371393 | $645,560 | $645,560 | $538.55 | | |
| SD140GEN | SD #140 GENERAL 760 | 2.0646500647 | $645,560 | $645,560 | $1,332.86 | | |
| ST2 | STATE SCHOOL PART 2 600 | 0.8131451643 | $645,560 | $645,560 | $524.93 | | |
| STATESCHL | STATE SCHOOL 600 | 1.5158548041 | $645,560 | $645,560 | $978.58 | | |
| STREFUND | STATE REFUND LEVY 603 | 0.0000000000 | $645,560 | $645,560 | $0.00 | | |
| CWWBOND | C OF WW BOND 643 | 0.2760494372 | $645,560 | $645,560 | $178.21 | | |
| CWWGEN | CITY OF WW 631 | 1.6100204973 | $645,560 | $645,560 | $1,039.36 | | |
| CWWRFD | CITY OF WALLA WALLA REFUND 631 | 0.0000000000 | $645,560 | $645,560 | $0.00 | | |
| | Total Tax Rate: | 8.7973694689 | | | | | |
| | | | | Taxes w/Current Exemptions: | $5,679.23 | | |
| | | | | Taxes w/o Exemptions: | $5,679.23 | | |
Improvement / Building
| Improvement #1: | RESIDENTIAL | State Code: | 81 | 1723.0 sqft | Value: | $527,980 |
| Exterior Wall: | MASONRY VENEER | Heating/Cooling: | FORCED AIR | | Number of Bathrooms: | 4 | Number of Bedrooms: | 6 | | Plumbing: | 13 | Roof Covering: | WOOD SHAKE |
|
| | Type | Description | Class CD | Sub Class CD | Year Built | Area |
| | MA | Main Area | 1 | 40 | 1952 | 1723.0 |
| | POL3 | POLE BUILDING-CON,ELEC,INSU | 1 | 40 | 1998 | 1240.0 |
| | SI1 | SITE IMPROVEMENT | 1 | 40 | 1952 | 2.5 |
| | BASE | BASEMENT | 1 | 40 | 1952 | 1684.0 |
| | BPF | BASEMENT -PARTITIONED FINISH | 1 | 40 | 1952 | 1200.0 |
| | ATG | Attached Garage | 1 | 40 | 1952 | 660.0 |
| | S1F | Single One Story Fireplace | 1 | 40 | 1952 | 1.0 |
| | RPS | PORCH W/STEPS,ROOF | 1 | 40 | 1952 | 42.0 |
| | RPO | OPEN PORCH W/ROOF | 1 | 40 | 1952 | 171.0 |
| | WOD | Wood Deck | 1 | 40 | 1952 | 348.0 |
| | UTIL-STOR | UTILITY STORAGE | 1 | 30 | 1998 | 2960.0 |
| Improvement #2: | MANUFACTURED HOME | State Code: | 81 | 408.0 sqft | Value: | $33,040 |
| Exterior Wall: | SIDING | Heating/Cooling: | WARM & COOLED AIR | | Number of Bathrooms: | 1 | Number of Bedrooms: | 1 | | Plumbing: | 6 | Roof Covering: | COMP SHINGLE |
|
| | Type | Description | Class CD | Sub Class CD | Year Built | Area |
| | MOBHOME | MANUFACTURD HOMES | 1 | 20 | 2000 | 408.0 |
| | MI1 | MH SET-UP COSTS | 1 | 20 | 2000 | 1.0 |
| | WOD | Wood Deck | 1 | 20 | 2000 | 340.0 |
Sketch
Property Image
Land
| 1 | RES 1 | Converted: Residential | 1.8400 | 0.00 | 0.00 | 0.00 | 1.00 | $84,540 | $0 |
Roll Value History
| 2026 | N/A | N/A | N/A | N/A | N/A |
| 2025 | $459,080 | $133,040 | $0 | $592,120 | $592,120 |
| 2024 | $178,740 | $133,040 | $0 | $311,780 | $311,780 |
| 2023 | $561,020 | $84,540 | $0 | $645,560 | $645,560 |
| 2022 | $561,020 | $84,540 | $0 | $645,560 | $645,560 |
| 2021 | $510,010 | $84,540 | $0 | $594,550 | $594,550 |
| 2020 | $283,350 | $84,540 | $0 | $367,890 | $367,890 |
| 2019 | $283,350 | $84,540 | $0 | $367,890 | $367,890 |
| 2018 | $269,850 | $84,540 | $0 | $354,390 | $354,390 |
| 2017 | $269,850 | $91,700 | $0 | $361,550 | $361,550 |
| 2016 | $257,000 | $91,700 | $0 | $348,700 | $348,700 |
| 2015 | $257,000 | $91,700 | $0 | $348,700 | $348,700 |
| 2014 | $257,000 | $91,700 | $0 | $348,700 | $348,700 |
| 2013 | $257,000 | $91,700 | $0 | $348,700 | $348,700 |
| 2012 | $260,100 | $91,700 | $0 | $0 | $0 |
| 2011 | $260,100 | $91,700 | $0 | $0 | $0 |
| 2010 | $260,100 | $91,700 | $0 | $0 | $0 |
| 2009 | $260,100 | $91,700 | $0 | $0 | $0 |
| 2008 | $260,100 | $91,700 | $0 | $0 | $0 |
| 2007 | $208,300 | $47,100 | $0 | $0 | $0 |
Deed and Sales History
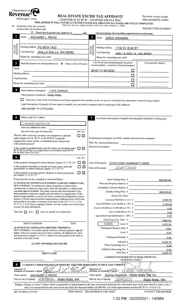
| 1 | 02/25/2021 | SWD | STATUTORY WARRANTY DEED | PEICK RICHARD L | GRAMMS GREG | | | $669,000.00 | 140984 | 2021-02188 |
| 2 | 06/15/2005 | QCD | QUIT CLAIM DEED | PEICK, SHEILA I | PEICK, RICHARD L | | | | 107730 | 2005-07197 |
| 3 | 05/27/2005 | WARRANTY D | WARRANTY DEED | PEICK, SHEILA | PEICK, RICHARD L | | | | 0 | 03-3--00351-9 |
| 4 | 05/12/2003 | QCD | QUIT CLAIM DEED | WENHAM, ANTHONY K | PEICK, RICHARD L & SHEILA I | | | | 102054 | 2003-06867 |
| 5 | 06/30/1999 | WARRANTY D | WARRANTY DEED | | | | | $200,000.00 | 93074 | 2869-907720 |
Payout Agreement
| No payout information available.. |