Property
Account |
| Property ID: | 6714 | Abbreviated Legal Description: | PARKSIDE LOT 22 BLK 3 |
| Parcel Number: | 360727500322 | Agent Code: | |
| Type: | Real | | |
| Tax Area: | 1 - OL-140-F | Land Use Code | 11 |
| Open Space: | N | DFL | N |
| Historic Property: | N | Remodel Property: | N |
| Multi-Family Redevelopment: | N | | |
| Township: | 7 | Section: | 27 |
| Range: | 36 |
Location |
| Address: | 509 HOLLY ST WA 99362 | Mapsco: | |
| Neighborhood: | A Res | Map ID: | |
| Neighborhood CD: | 613011 |
Owner |
| Name: | KOLAR ROBERT D & AMY C | Owner ID: | 57849 |
| Mailing Address: | 509 HOLLY ST WALLA WALLA, WA 99362 | % Ownership: | 100.0000000000% |
| | | Exemptions: | |
Taxes and Assessment Details
Property Tax Information as of
02/21/2026
Click on "Statement Details" to expand or collapse a tax statement.
* Please enter a valid date ** Please enter a valid date *
Statement Details |
| | TOTAL: | $0.00 | $0.00 | $0.00 | $0.00 | $0.00 | $0.00 |
|
| | $0.00 | $0.00 | $0.00 | $0.00 | $0.00 | $0.00 |
Values
| (+) Improvement Homesite Value: | + | $0 | |
| (+) Improvement Non-Homesite Value: | + | $354,410 | |
| (+) Land Homesite Value: | + | $0 | |
| (+) Land Non-Homesite Value: | + | $56,890 | |
| (+) Curr Use (HS): | + | $0 | $0 |
| (+) Curr Use (NHS): | + | $0 | $0 |
| | | -------------------------- | |
| (=) Market Value: | = | $411,300 | |
| (–) Productivity Loss: | – | $0 | |
| | | -------------------------- | |
| (=) Subtotal: | = | $411,300 | |
| (+) Senior Appraised Value: | + | $0 | |
| (+) Non-Senior Appraised Value: | + | $411,300 | |
| | | -------------------------- | |
| (=) Total Appraised Value: | = | $411,300 | |
| (–) Senior Exemption Loss: | – | $0 | |
| (–) Exemption Loss: | – | $0 | |
| | | -------------------------- | |
| (=) Taxable Value: | = | $411,300 | |
Taxing Jurisdiction
| Owner: | KOLAR ROBERT D & AMY C | | |
| % Ownership: | 100.0000000000% | | |
| Total Value: | $411,300 | | |
| Tax Area: | 1 - OL-140-F |
| CERFD | CURRENT EXPENSE REFUND 010 | 0.0000000000 | $411,300 | $411,300 | $0.00 | | |
| CURREXP | CURRENT EXPENSE 010 | 1.0175366760 | $411,300 | $411,300 | $418.51 | | |
| HUMNSERV | HUMAN SERVICES 119 | 0.0250000000 | $411,300 | $411,300 | $10.28 | | |
| SLDREL | SOLDIERS RELIEF 121 | 0.0155990005 | $411,300 | $411,300 | $6.42 | | |
| EMERGSER | EMS 147 | 0.3792580840 | $411,300 | $411,300 | $155.99 | | |
| EMSRFD | EMS REFUND 147 | 0.0000000000 | $411,300 | $411,300 | $0.00 | | |
| PORTRFD | PORT REFUND 640 | 0.0000000000 | $411,300 | $411,300 | $0.00 | | |
| PORTWWGEN | PORT OF WW 640 | 0.2460186015 | $411,300 | $411,300 | $101.19 | | |
| SD140BOND | SD #140 BOND 764 | 0.8342371393 | $411,300 | $411,300 | $343.12 | | |
| SD140GEN | SD #140 GENERAL 760 | 2.0646500647 | $411,300 | $411,300 | $849.19 | | |
| ST2 | STATE SCHOOL PART 2 600 | 0.8131451643 | $411,300 | $411,300 | $334.45 | | |
| STATESCHL | STATE SCHOOL 600 | 1.5158548041 | $411,300 | $411,300 | $623.47 | | |
| STREFUND | STATE REFUND LEVY 603 | 0.0000000000 | $411,300 | $411,300 | $0.00 | | |
| CWWBOND | C OF WW BOND 643 | 0.2760494372 | $411,300 | $411,300 | $113.54 | | |
| CWWGEN | CITY OF WW 631 | 1.6100204973 | $411,300 | $411,300 | $662.20 | | |
| CWWRFD | CITY OF WALLA WALLA REFUND 631 | 0.0000000000 | $411,300 | $411,300 | $0.00 | | |
| | Total Tax Rate: | 8.7973694689 | | | | | |
| | | | | Taxes w/Current Exemptions: | $3,618.36 | | |
| | | | | Taxes w/o Exemptions: | $3,618.36 | | |
Improvement / Building
| Improvement #1: | RESIDENTIAL | State Code: | 11 | 2114.0 sqft | Value: | $354,410 |
| Exterior Wall: | SIDING | Heating/Cooling: | FORCED AIR | | Number of Bathrooms: | 3 | Number of Bedrooms: | 4 | | Plumbing: | 13 | Roof Covering: | COMP SHINGLE |
|
| | Type | Description | Class CD | Sub Class CD | Year Built | Area |
| | MA | Main Area | 2 | 30 | 1956 | 2114.0 |
| | UPFL | Upper Floor (included in main area) | 2 | 30 | 1956 | 982.0 |
| | SI1 | SITE IMPROVEMENT | 2 | 30 | 1956 | 2.0 |
| | BASE | BASEMENT | 2 | 30 | 1956 | 936.0 |
| | BPF | BASEMENT -PARTITIONED FINISH | 2 | 30 | 1956 | 468.0 |
| | RPS | PORCH W/STEPS,ROOF | 2 | 30 | 1956 | 18.0 |
| | DTG | Detached Garage | 2 | 30 | 1956 | 336.0 |
| | CPC | COVERED CARPORT/PATIO | 2 | 30 | 1956 | 220.0 |
Sketch
Property Image
Land
| 1 | RES 1 | Converted: Residential | 0.1451 | 6321.00 | 0.00 | 0.00 | 1.00 | $56,890 | $0 |
Roll Value History
| 2026 | N/A | N/A | N/A | N/A | N/A |
| 2025 | $365,270 | $69,530 | $0 | $434,800 | $434,800 |
| 2024 | $354,410 | $56,890 | $0 | $411,300 | $411,300 |
| 2023 | $354,410 | $56,890 | $0 | $411,300 | $411,300 |
| 2022 | $354,410 | $45,830 | $0 | $400,240 | $400,240 |
| 2021 | $253,150 | $45,830 | $0 | $298,980 | $298,980 |
| 2020 | $210,960 | $45,830 | $0 | $256,790 | $256,790 |
| 2019 | $210,960 | $45,830 | $0 | $256,790 | $256,790 |
| 2018 | $180,200 | $37,900 | $0 | $218,100 | $218,100 |
| 2017 | $150,170 | $37,900 | $0 | $188,070 | $188,070 |
| 2016 | $128,550 | $37,900 | $0 | $166,450 | $166,450 |
| 2015 | $122,430 | $37,900 | $0 | $160,330 | $160,330 |
| 2014 | $116,600 | $37,900 | $0 | $154,500 | $154,500 |
| 2013 | $116,600 | $37,900 | $0 | $154,500 | $154,500 |
| 2012 | $119,600 | $37,900 | $0 | $0 | $0 |
| 2011 | $119,600 | $37,900 | $0 | $0 | $0 |
| 2010 | $119,600 | $37,900 | $0 | $0 | $0 |
| 2009 | $137,100 | $37,900 | $0 | $0 | $0 |
| 2008 | $137,100 | $37,900 | $0 | $0 | $0 |
| 2007 | $89,900 | $19,000 | $0 | $0 | $0 |
Deed and Sales History
| 1 | 11/23/2015 | SWD | STATUTORY WARRANTY DEED | EVANS GARRETT | KOLAR ROBERT D & AMY C | | | $236,000.00 | 129246 | 2015-10146 |
| 2 | 05/15/2015 | SWP | Special Warranty Deed | SECRETARY OF VETERANS AFFAIRS | EVANS GARRETT | | | $125,000.00 | 127993 | 2015-04160 |
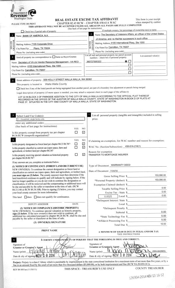
| 3 | 11/13/2014 | WARRANTY D | WARRANTY DEED | BANK OF AMERICA NA | SECRETARY OF VETERANS AFFAIRS | | | $153,090.00 | 126934 | 2014-08259 |
| 4 | 10/20/2014 | TRUSTEES D | TRUSTEE'S DEED | GIES TIMOTHY T | BANK OF AMERICA NA | | | $153,090.00 | 126842 | 2014-07858 |
| 5 | 02/12/2004 | WARRANTY D | WARRANTY DEED | SECRETARY OF HOUSING & URBAN D | GIES, TIMOTHY T | | | $109,800.00 | 104067 | 2004-01574 |
| 6 | 10/02/2003 | WARRANTY D | WARRANTY DEED | MIDFIRST BANK | SECRETARY OF HOUSING & URBAN~D | | | $110,690.00 | 103163 | 2003-15132 |
| 7 | 08/28/2003 | WARRANTY D | WARRANTY DEED | FIDELITY NATIONAL TITLE INS CO | MIDFIRST BANK | | | $110,690.00 | 102881 | 2003-13024 |
| 8 | 04/04/1997 | WARRANTY D | WARRANTY DEED | | | | | $105,000.00 | 87943 | 2509-702992 |
Payout Agreement
| No payout information available.. |