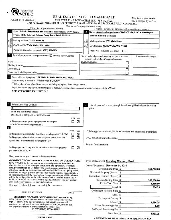
Property
Account |
| Property ID: | 6690 | Abbreviated Legal Description: | WALLA WALLA TAX 15 LOT 9 BLK 2 |
| Parcel Number: | 360720770215 | Agent Code: | |
| Type: | Real | | |
| Tax Area: | 1 - OL-140-F | Land Use Code | 61 |
| Open Space: | N | DFL | N |
| Historic Property: | N | Remodel Property: | N |
| Multi-Family Redevelopment: | N | | |
| Township: | 7 | Section: | 20 |
| Range: | 36 |
Location |
| Address: | 2 W MAIN ST WA 99362 | Mapsco: | |
| Neighborhood: | WW Downtown Core Area #1 | Map ID: | |
| Neighborhood CD: | 5341 |
Owner |
| Name: | ASSOCIATED APPRAISERS OF WALLA WALLA LLC | Owner ID: | 55694 |
| Mailing Address: | 2 W MAIN ST WALLA WALLA, WA 99362 | % Ownership: | 100.0000000000% |
| | | Exemptions: | |
Taxes and Assessment Details
Values
| (+) Improvement Homesite Value: | + | $0 | |
| (+) Improvement Non-Homesite Value: | + | $225,900 | |
| (+) Land Homesite Value: | + | $0 | |
| (+) Land Non-Homesite Value: | + | $55,200 | |
| (+) Curr Use (HS): | + | $0 | $0 |
| (+) Curr Use (NHS): | + | $0 | $0 |
| | | -------------------------- | |
| (=) Market Value: | = | $281,100 | |
| (–) Productivity Loss: | – | $0 | |
| | | -------------------------- | |
| (=) Subtotal: | = | $281,100 | |
| (+) Senior Appraised Value: | + | $0 | |
| (+) Non-Senior Appraised Value: | + | $281,100 | |
| | | -------------------------- | |
| (=) Total Appraised Value: | = | $281,100 | |
| (–) Senior Exemption Loss: | – | $0 | |
| (–) Exemption Loss: | – | $0 | |
| | | -------------------------- | |
| (=) Taxable Value: | = | $281,100 | |
Taxing Jurisdiction
| Owner: | ASSOCIATED APPRAISERS OF WALLA WALLA LLC | | |
| % Ownership: | 100.0000000000% | | |
| Total Value: | $281,100 | | |
| Tax Area: | 1 - OL-140-F |
| CERFD | CURRENT EXPENSE REFUND 010 | 0.0000000000 | $281,100 | $281,100 | $0.00 | | |
| CURREXP | CURRENT EXPENSE 010 | 1.0175366760 | $281,100 | $281,100 | $286.03 | | |
| HUMNSERV | HUMAN SERVICES 119 | 0.0250000000 | $281,100 | $281,100 | $7.03 | | |
| SLDREL | SOLDIERS RELIEF 121 | 0.0155990005 | $281,100 | $281,100 | $4.38 | | |
| EMERGSER | EMS 147 | 0.3792580840 | $281,100 | $281,100 | $106.61 | | |
| EMSRFD | EMS REFUND 147 | 0.0000000000 | $281,100 | $281,100 | $0.00 | | |
| PORTRFD | PORT REFUND 640 | 0.0000000000 | $281,100 | $281,100 | $0.00 | | |
| PORTWWGEN | PORT OF WW 640 | 0.2460186015 | $281,100 | $281,100 | $69.16 | | |
| SD140BOND | SD #140 BOND 764 | 0.8342371393 | $281,100 | $281,100 | $234.50 | | |
| SD140GEN | SD #140 GENERAL 760 | 2.0646500647 | $281,100 | $281,100 | $580.37 | | |
| ST2 | STATE SCHOOL PART 2 600 | 0.8131451643 | $281,100 | $281,100 | $228.58 | | |
| STATESCHL | STATE SCHOOL 600 | 1.5158548041 | $281,100 | $281,100 | $426.11 | | |
| STREFUND | STATE REFUND LEVY 603 | 0.0000000000 | $281,100 | $281,100 | $0.00 | | |
| CWWBOND | C OF WW BOND 643 | 0.2760494372 | $281,100 | $281,100 | $77.60 | | |
| CWWGEN | CITY OF WW 631 | 1.6100204973 | $281,100 | $281,100 | $452.58 | | |
| CWWRFD | CITY OF WALLA WALLA REFUND 631 | 0.0000000000 | $281,100 | $281,100 | $0.00 | | |
| | Total Tax Rate: | 8.7973694689 | | | | | |
| | | | | Taxes w/Current Exemptions: | $2,472.95 | | |
| | | | | Taxes w/o Exemptions: | $2,472.95 | | |
Improvement / Building
| Improvement #1: | COMMERCIAL | State Code: | 61 | 3368.0 sqft | Value: | $225,900 |
| | Type | Description | Class CD | Sub Class CD | Year Built | Area |
| | MA | Main Area | D | * | 1885 | 3368.0 |
| | SI1 | SITE IMPROVEMENT | D | * | 1885 | 4.0 |
| | BASE | BASEMENT | 2 | 30 | 1885 | 1840.0 |
| | RPO | OPEN PORCH W/ROOF | 2 | 30 | 1885 | 428.0 |
Sketch
Property Image
Land
| 1 | COM 1 | Converted: Commercial | 0.0422 | 1840.00 | 0.00 | 0.00 | 1.00 | $55,200 | $0 |
Roll Value History
| 2026 | N/A | N/A | N/A | N/A | N/A |
| 2025 | $233,600 | $55,200 | $0 | $288,800 | $288,800 |
| 2024 | $228,500 | $55,200 | $0 | $283,700 | $283,700 |
| 2023 | $225,900 | $55,200 | $0 | $281,100 | $281,100 |
| 2022 | $214,200 | $55,200 | $0 | $269,400 | $269,400 |
| 2021 | $214,200 | $55,200 | $0 | $269,400 | $269,400 |
| 2020 | $214,200 | $55,200 | $0 | $269,400 | $269,400 |
| 2019 | $214,200 | $55,200 | $0 | $269,400 | $269,400 |
| 2018 | $214,200 | $55,200 | $0 | $269,400 | $269,400 |
| 2017 | $205,100 | $55,200 | $0 | $260,300 | $260,300 |
| 2016 | $205,100 | $55,200 | $0 | $260,300 | $260,300 |
| 2015 | $178,600 | $24,300 | $0 | $202,900 | $202,900 |
| 2014 | $178,600 | $24,300 | $0 | $202,900 | $202,900 |
| 2013 | $178,600 | $24,300 | $0 | $202,900 | $202,900 |
| 2012 | $202,100 | $28,300 | $0 | $0 | $0 |
| 2011 | $202,100 | $28,300 | $0 | $0 | $0 |
| 2010 | $204,600 | $25,800 | $0 | $0 | $0 |
| 2009 | $208,300 | $22,100 | $0 | $0 | $0 |
| 2008 | $208,300 | $22,100 | $0 | $0 | $0 |
| 2007 | $208,300 | $22,100 | $0 | $0 | $0 |
Deed and Sales History
| 1 | 11/24/2014 | SWD | STATUTORY WARRANTY DEED | PEERY PETE & DOLORES TRUST | ASSOCIATED APPRAISERS OF WALLA WALLA LLC | | | $262,500.00 | 127012 | 2014-08574 |
| 2 | 04/02/1986 | WARRANTY D | WARRANTY DEED | | | | | $142,500.00 | 0 | 1989-205789 |
Payout Agreement
| No payout information available.. |