Property
Account |
| Property ID: | 6661 | Abbreviated Legal Description: | SHEILS 2ND PARCEL 49 LOT 40 BLK 21 |
| Parcel Number: | 360720742149 | Agent Code: | |
| Type: | Real | | |
| Tax Area: | 1 - OL-140-F | Land Use Code | 91 |
| Open Space: | N | DFL | N |
| Historic Property: | N | Remodel Property: | N |
| Multi-Family Redevelopment: | N | | |
| Township: | 7 | Section: | 20 |
| Range: | 36 |
Location |
| Address: | 224 BURNS ST WA 99362 | Mapsco: | |
| Neighborhood: | A Land Only | Map ID: | |
| Neighborhood CD: | 313091 |
Owner |
| Name: | GONZALEZ MAXIMO & MARIA GONZALEZ BANALEZ | Owner ID: | 71828 |
| Mailing Address: | 208 W SUMACH ST WALLA WALLA, WA 99362 | % Ownership: | 100.0000000000% |
| | | Exemptions: | |
Taxes and Assessment Details
Values
| (+) Improvement Homesite Value: | + | $0 | |
| (+) Improvement Non-Homesite Value: | + | $0 | |
| (+) Land Homesite Value: | + | $0 | |
| (+) Land Non-Homesite Value: | + | $41,250 | |
| (+) Curr Use (HS): | + | $0 | $0 |
| (+) Curr Use (NHS): | + | $0 | $0 |
| | | -------------------------- | |
| (=) Market Value: | = | $41,250 | |
| (–) Productivity Loss: | – | $0 | |
| | | -------------------------- | |
| (=) Subtotal: | = | $41,250 | |
| (+) Senior Appraised Value: | + | $0 | |
| (+) Non-Senior Appraised Value: | + | $41,250 | |
| | | -------------------------- | |
| (=) Total Appraised Value: | = | $41,250 | |
| (–) Senior Exemption Loss: | – | $0 | |
| (–) Exemption Loss: | – | $0 | |
| | | -------------------------- | |
| (=) Taxable Value: | = | $41,250 | |
Taxing Jurisdiction
| Owner: | GONZALEZ MAXIMO & MARIA GONZALEZ BANALEZ | | |
| % Ownership: | 100.0000000000% | | |
| Total Value: | $41,250 | | |
| Tax Area: | 1 - OL-140-F |
| CERFD | CURRENT EXPENSE REFUND 010 | 0.0000000000 | $41,250 | $41,250 | $0.00 | | |
| CURREXP | CURRENT EXPENSE 010 | 0.9851088983 | $41,250 | $41,250 | $40.64 | | |
| HUMNSERV | HUMAN SERVICES 119 | 0.0250000000 | $41,250 | $41,250 | $1.03 | | |
| SLDREL | SOLDIERS RELIEF 121 | 0.0155990000 | $41,250 | $41,250 | $0.64 | | |
| EMERGSER | EMS 147 | 0.3676811629 | $41,250 | $41,250 | $15.17 | | |
| EMSRFD | EMS REFUND 147 | 0.0000000000 | $41,250 | $41,250 | $0.00 | | |
| PORTRFD | PORT REFUND 640 | 0.0000000000 | $41,250 | $41,250 | $0.00 | | |
| PORTWWGEN | PORT OF WW 640 | 0.2344301070 | $41,250 | $41,250 | $9.67 | | |
| SD140BOND | SD #140 BOND 764 | 0.8032434458 | $41,250 | $41,250 | $33.13 | | |
| SD140CAP | SD #140 CAP 762 | 0.3840034221 | $41,250 | $41,250 | $15.84 | | |
| SD140GEN | SD #140 GENERAL 760 | 2.4999999996 | $41,250 | $41,250 | $103.13 | | |
| ST2 | STATE SCHOOL PART 2 600 | 0.8853714103 | $41,250 | $41,250 | $36.52 | | |
| STATESCHL | STATE SCHOOL 600 | 1.6424571473 | $41,250 | $41,250 | $67.75 | | |
| STREFUND | STATE REFUND LEVY 603 | 0.0000000000 | $41,250 | $41,250 | $0.00 | | |
| CWWBOND | C OF WW BOND 643 | 0.2642134255 | $41,250 | $41,250 | $10.90 | | |
| CWWGEN | CITY OF WW 631 | 1.6110494978 | $41,250 | $41,250 | $66.46 | | |
| CWWRFD | CITY OF WALLA WALLA REFUND 631 | 0.0000000000 | $41,250 | $41,250 | $0.00 | | |
| | Total Tax Rate: | 9.7181575166 | | | | | |
| | | | | Taxes w/Current Exemptions: | $400.88 | | |
| | | | | Taxes w/o Exemptions: | $400.88 | | |
Improvement / Building
Sketch
| No sketches available for this property. |
Property Image
Land
| 1 | RES 1 | Converted: Residential | 0.1148 | 5000.00 | 0.00 | 0.00 | 1.00 | $41,250 | $0 |
Roll Value History
| 2026 | N/A | N/A | N/A | N/A | N/A |
| 2025 | $0 | $41,250 | $0 | $41,250 | $41,250 |
| 2024 | $0 | $41,250 | $0 | $41,250 | $41,250 |
| 2023 | $0 | $41,250 | $0 | $41,250 | $41,250 |
| 2022 | $0 | $41,250 | $0 | $41,250 | $41,250 |
| 2021 | $0 | $21,250 | $0 | $21,250 | $21,250 |
| 2020 | $0 | $21,250 | $0 | $21,250 | $21,250 |
| 2019 | $0 | $21,250 | $0 | $21,250 | $21,250 |
| 2018 | $0 | $21,250 | $0 | $21,250 | $21,250 |
| 2017 | $0 | $21,250 | $0 | $21,250 | $21,250 |
| 2016 | $0 | $21,250 | $0 | $21,250 | $21,250 |
| 2015 | $0 | $5,000 | $0 | $5,000 | $5,000 |
| 2014 | $0 | $5,000 | $0 | $5,000 | $5,000 |
| 2013 | $0 | $5,000 | $0 | $5,000 | $5,000 |
| 2012 | $0 | $5,000 | $0 | $0 | $0 |
| 2011 | $0 | $5,000 | $0 | $0 | $0 |
| 2010 | $5,000 | $10,000 | $0 | $0 | $0 |
| 2009 | $9,000 | $6,000 | $0 | $0 | $0 |
| 2008 | $0 | $15,000 | $0 | $0 | $0 |
| 2007 | $0 | $15,000 | $0 | $0 | $0 |
Deed and Sales History
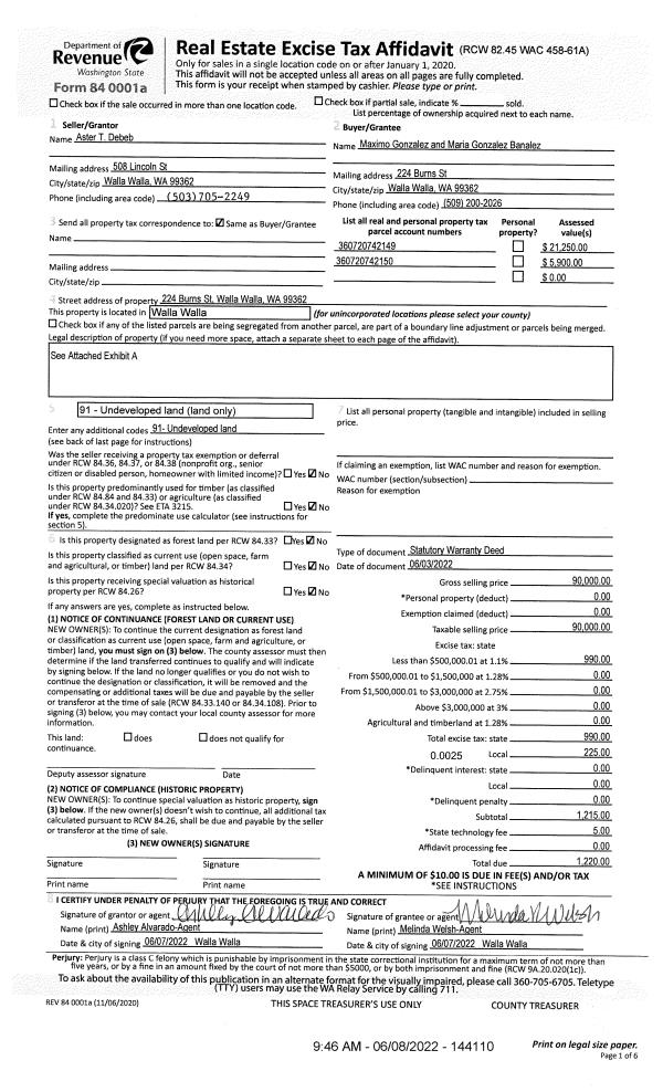
| 1 | 06/03/2022 | SWD | STATUTORY WARRANTY DEED | DEBEB ASTER T | GONZALEZ MAXIMO & MARIA GONZALEZ BANALEZ | | 2-PARCELS | $90,000.00 | 144110 | 2022-04897 |
|   | |
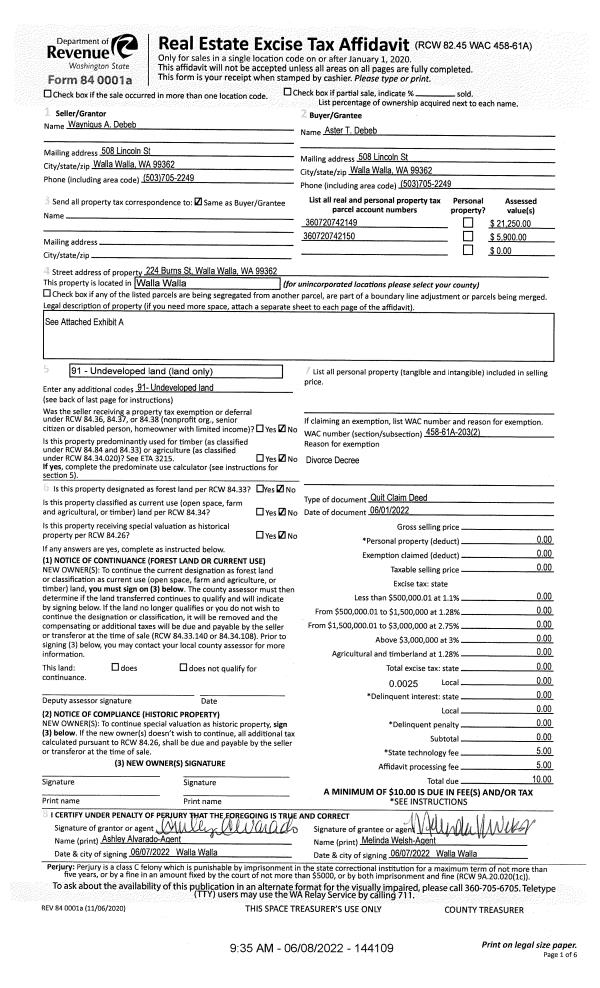
| 2 | 06/01/2022 | QCD | QUIT CLAIM DEED | DEBEB ASTER T | DEBEB ASTER T | | 2-PARCELS | $0.00 | 144109 | 2022-04896 |
| 3 | 04/13/1987 | WARRANTY D | WARRANTY DEED | | | | | $3,500.00 | 0 | 1638-702841 |
Payout Agreement
| No payout information available.. |