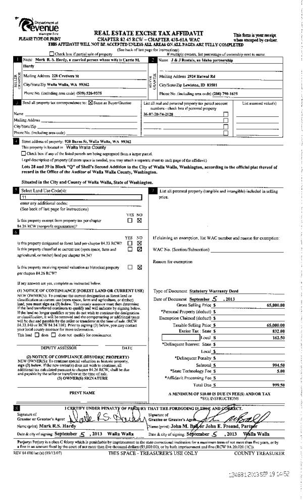
Property
Account |
| Property ID: | 6656 | Abbreviated Legal Description: | SHEILS 2ND LOTS 28 & 39 BLK 21 |
| Parcel Number: | 360720742128 | Agent Code: | |
| Type: | Real | | |
| Tax Area: | 1 - OL-140-F | Land Use Code | 11 |
| Open Space: | N | DFL | N |
| Historic Property: | N | Remodel Property: | N |
| Multi-Family Redevelopment: | N | | |
| Township: | 7 | Section: | 20 |
| Range: | 36 |
Location |
| Address: | 920 BURNS ST WA 99362 | Mapsco: | |
| Neighborhood: | A-SFR | Map ID: | |
| Neighborhood CD: | 313011 |
Owner |
| Name: | J & J RENTALS | Owner ID: | 53138 |
| Mailing Address: | 13605 SPUR RD GENESEE, ID 83832 | % Ownership: | 100.0000000000% |
| | | Exemptions: | |
Taxes and Assessment Details
Property Tax Information as of
02/21/2026
Click on "Statement Details" to expand or collapse a tax statement.
* Please enter a valid date ** Please enter a valid date *
Statement Details |
| | TOTAL: | $0.00 | $0.00 | $0.00 | $0.00 | $0.00 | $0.00 |
|
| | $0.00 | $0.00 | $0.00 | $0.00 | $0.00 | $0.00 |
Values
| (+) Improvement Homesite Value: | + | $0 | |
| (+) Improvement Non-Homesite Value: | + | $14,290 | |
| (+) Land Homesite Value: | + | $0 | |
| (+) Land Non-Homesite Value: | + | $66,600 | |
| (+) Curr Use (HS): | + | $0 | $0 |
| (+) Curr Use (NHS): | + | $0 | $0 |
| | | -------------------------- | |
| (=) Market Value: | = | $80,890 | |
| (–) Productivity Loss: | – | $0 | |
| | | -------------------------- | |
| (=) Subtotal: | = | $80,890 | |
| (+) Senior Appraised Value: | + | $0 | |
| (+) Non-Senior Appraised Value: | + | $80,890 | |
| | | -------------------------- | |
| (=) Total Appraised Value: | = | $80,890 | |
| (–) Senior Exemption Loss: | – | $0 | |
| (–) Exemption Loss: | – | $0 | |
| | | -------------------------- | |
| (=) Taxable Value: | = | $80,890 | |
Taxing Jurisdiction
| Owner: | J & J RENTALS | | |
| % Ownership: | 100.0000000000% | | |
| Total Value: | $80,890 | | |
| Tax Area: | 1 - OL-140-F |
| CERFD | CURRENT EXPENSE REFUND 010 | 0.0000000000 | $80,890 | $80,890 | $0.00 | | |
| CURREXP | CURRENT EXPENSE 010 | 1.0175366760 | $80,890 | $80,890 | $82.31 | | |
| HUMNSERV | HUMAN SERVICES 119 | 0.0250000000 | $80,890 | $80,890 | $2.02 | | |
| SLDREL | SOLDIERS RELIEF 121 | 0.0155990005 | $80,890 | $80,890 | $1.26 | | |
| EMERGSER | EMS 147 | 0.3792580840 | $80,890 | $80,890 | $30.68 | | |
| EMSRFD | EMS REFUND 147 | 0.0000000000 | $80,890 | $80,890 | $0.00 | | |
| PORTRFD | PORT REFUND 640 | 0.0000000000 | $80,890 | $80,890 | $0.00 | | |
| PORTWWGEN | PORT OF WW 640 | 0.2460186015 | $80,890 | $80,890 | $19.90 | | |
| SD140BOND | SD #140 BOND 764 | 0.8342371393 | $80,890 | $80,890 | $67.48 | | |
| SD140GEN | SD #140 GENERAL 760 | 2.0646500647 | $80,890 | $80,890 | $167.01 | | |
| ST2 | STATE SCHOOL PART 2 600 | 0.8131451643 | $80,890 | $80,890 | $65.78 | | |
| STATESCHL | STATE SCHOOL 600 | 1.5158548041 | $80,890 | $80,890 | $122.62 | | |
| STREFUND | STATE REFUND LEVY 603 | 0.0000000000 | $80,890 | $80,890 | $0.00 | | |
| CWWBOND | C OF WW BOND 643 | 0.2760494372 | $80,890 | $80,890 | $22.33 | | |
| CWWGEN | CITY OF WW 631 | 1.6100204973 | $80,890 | $80,890 | $130.23 | | |
| CWWRFD | CITY OF WALLA WALLA REFUND 631 | 0.0000000000 | $80,890 | $80,890 | $0.00 | | |
| | Total Tax Rate: | 8.7973694689 | | | | | |
| | | | | Taxes w/Current Exemptions: | $711.62 | | |
| | | | | Taxes w/o Exemptions: | $711.62 | | |
Improvement / Building
| Improvement #1: | RESIDENTIAL | State Code: | 11 | 528.0 sqft | Value: | $14,290 |
| Exterior Wall: | SHINGLE | Heating/Cooling: | FLOOR FURNACE | | Number of Bathrooms: | 1 | Number of Bedrooms: | 1 | | Plumbing: | 6 | Roof Covering: | COMP SHINGLE |
|
| | Type | Description | Class CD | Sub Class CD | Year Built | Area |
| | MA | Main Area | 1 | 10 | 1910 | 528.0 |
| | SI1 | SITE IMPROVEMENT | 1 | 10 | 0 | 1.0 |
| | BASE | BASEMENT | 1 | 10 | 1910 | 384.0 |
| | OPS | OPEN PORCH W/STEPS | 1 | 10 | 1910 | 24.0 |
Sketch
Property Image
Land
| 1 | RES 1 | Converted: Residential | 0.2296 | 10000.00 | 0.00 | 0.00 | 1.00 | $66,600 | $0 |
Roll Value History
| 2026 | N/A | N/A | N/A | N/A | N/A |
| 2025 | $14,290 | $66,600 | $0 | $80,890 | $80,890 |
| 2024 | $14,290 | $66,600 | $0 | $80,890 | $80,890 |
| 2023 | $14,290 | $66,600 | $0 | $80,890 | $80,890 |
| 2022 | $14,290 | $66,600 | $0 | $80,890 | $80,890 |
| 2021 | $30,180 | $27,100 | $0 | $57,280 | $57,280 |
| 2020 | $30,180 | $27,100 | $0 | $57,280 | $57,280 |
| 2019 | $30,180 | $27,100 | $0 | $57,280 | $57,280 |
| 2018 | $15,090 | $27,100 | $0 | $42,190 | $42,190 |
| 2017 | $15,090 | $27,100 | $0 | $42,190 | $42,190 |
| 2016 | $15,090 | $27,100 | $0 | $42,190 | $42,190 |
| 2015 | $15,100 | $14,100 | $0 | $29,200 | $29,200 |
| 2014 | $15,100 | $14,100 | $0 | $29,200 | $29,200 |
| 2013 | $15,100 | $14,100 | $0 | $29,200 | $29,200 |
| 2012 | $15,100 | $14,100 | $0 | $0 | $0 |
| 2011 | $18,300 | $14,100 | $0 | $0 | $0 |
| 2010 | $7,500 | $27,100 | $0 | $0 | $0 |
| 2009 | $10,600 | $15,000 | $0 | $0 | $0 |
| 2008 | $8,300 | $15,000 | $0 | $0 | $0 |
| 2007 | $8,300 | $15,000 | $0 | $0 | $0 |
Deed and Sales History
| 1 | 01/09/2020 | FUL | FULFILLMENT DEED | HARDY MARK R & CARRIE L | J & J RENTALS | | | | 0 | 2020-00204 |
| 2 | 09/19/2013 | WARRANTY D | WARRANTY DEED | HARDY, MARK R | J & J RENTALS | | | $65,000.00 | 124681 | 2013-09607 |
| 3 | 07/18/1997 | WARRANTY D | WARRANTY DEED | | | | | $16,000.00 | 88529 | 2549-706498 |
Payout Agreement
| No payout information available.. |