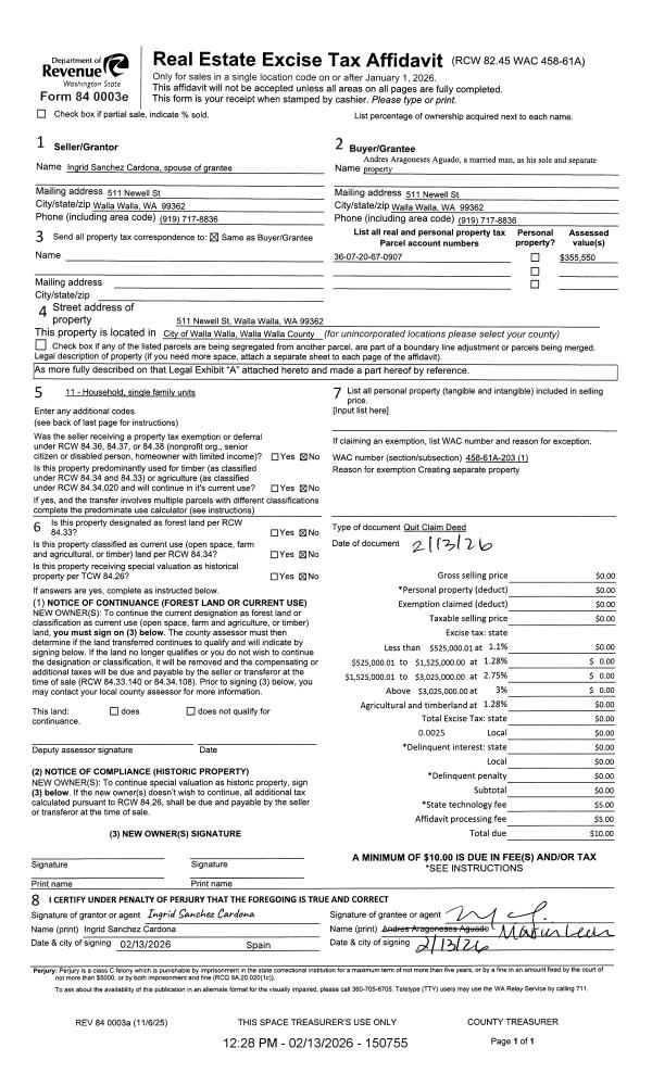
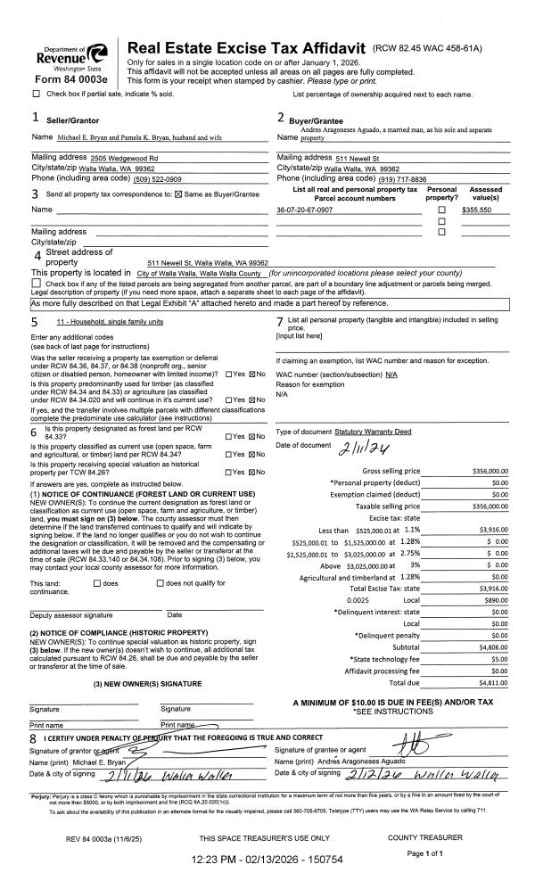
Property
Account |
| Property ID: | 6573 | Abbreviated Legal Description: | PARK TAX 2 LOT 7 BLK 9 |
| Parcel Number: | 360720670907 | Agent Code: | |
| Type: | Real | | |
| Tax Area: | 1 - OL-140-F | Land Use Code | 11 |
| Open Space: | N | DFL | N |
| Historic Property: | N | Remodel Property: | N |
| Multi-Family Redevelopment: | N | | |
| Township: | 7 | Section: | 20 |
| Range: | 36 |
Location |
| Address: | 511 NEWELL ST WA 99362 | Mapsco: | |
| Neighborhood: | G-SFR | Map ID: | |
| Neighborhood CD: | 514011 |
Owner |
| Name: | BRYAN MICHAEL E & PAMELA K | Owner ID: | 7649 |
| Mailing Address: | 2505 WEDGEWOOD RD WALLA WALLA, WA 99362 | % Ownership: | 100.0000000000% |
| | | Exemptions: | |
Taxes and Assessment Details
Property Tax Information as of
02/21/2026
Click on "Statement Details" to expand or collapse a tax statement.
* Please enter a valid date ** Please enter a valid date *
Statement Details |
| | TOTAL: | $0.00 | $0.00 | $0.00 | $0.00 | $0.00 | $0.00 |
|
| | $0.00 | $0.00 | $0.00 | $0.00 | $0.00 | $0.00 |
Values
| (+) Improvement Homesite Value: | + | $0 | |
| (+) Improvement Non-Homesite Value: | + | $294,480 | |
| (+) Land Homesite Value: | + | $0 | |
| (+) Land Non-Homesite Value: | + | $44,230 | |
| (+) Curr Use (HS): | + | $0 | $0 |
| (+) Curr Use (NHS): | + | $0 | $0 |
| | | -------------------------- | |
| (=) Market Value: | = | $338,710 | |
| (–) Productivity Loss: | – | $0 | |
| | | -------------------------- | |
| (=) Subtotal: | = | $338,710 | |
| (+) Senior Appraised Value: | + | $0 | |
| (+) Non-Senior Appraised Value: | + | $338,710 | |
| | | -------------------------- | |
| (=) Total Appraised Value: | = | $338,710 | |
| (–) Senior Exemption Loss: | – | $0 | |
| (–) Exemption Loss: | – | $0 | |
| | | -------------------------- | |
| (=) Taxable Value: | = | $338,710 | |
Taxing Jurisdiction
| Owner: | BRYAN MICHAEL E & PAMELA K | | |
| % Ownership: | 100.0000000000% | | |
| Total Value: | $338,710 | | |
| Tax Area: | 1 - OL-140-F |
| CERFD | CURRENT EXPENSE REFUND 010 | 0.0000000000 | $338,710 | $338,710 | $0.00 | | |
| CURREXP | CURRENT EXPENSE 010 | 1.0175366760 | $338,710 | $338,710 | $344.65 | | |
| HUMNSERV | HUMAN SERVICES 119 | 0.0250000000 | $338,710 | $338,710 | $8.47 | | |
| SLDREL | SOLDIERS RELIEF 121 | 0.0155990005 | $338,710 | $338,710 | $5.28 | | |
| EMERGSER | EMS 147 | 0.3792580840 | $338,710 | $338,710 | $128.46 | | |
| EMSRFD | EMS REFUND 147 | 0.0000000000 | $338,710 | $338,710 | $0.00 | | |
| PORTRFD | PORT REFUND 640 | 0.0000000000 | $338,710 | $338,710 | $0.00 | | |
| PORTWWGEN | PORT OF WW 640 | 0.2460186015 | $338,710 | $338,710 | $83.33 | | |
| SD140BOND | SD #140 BOND 764 | 0.8342371393 | $338,710 | $338,710 | $282.56 | | |
| SD140GEN | SD #140 GENERAL 760 | 2.0646500647 | $338,710 | $338,710 | $699.32 | | |
| ST2 | STATE SCHOOL PART 2 600 | 0.8131451643 | $338,710 | $338,710 | $275.42 | | |
| STATESCHL | STATE SCHOOL 600 | 1.5158548041 | $338,710 | $338,710 | $513.44 | | |
| STREFUND | STATE REFUND LEVY 603 | 0.0000000000 | $338,710 | $338,710 | $0.00 | | |
| CWWBOND | C OF WW BOND 643 | 0.2760494372 | $338,710 | $338,710 | $93.50 | | |
| CWWGEN | CITY OF WW 631 | 1.6100204973 | $338,710 | $338,710 | $545.33 | | |
| CWWRFD | CITY OF WALLA WALLA REFUND 631 | 0.0000000000 | $338,710 | $338,710 | $0.00 | | |
| | Total Tax Rate: | 8.7973694689 | | | | | |
| | | | | Taxes w/Current Exemptions: | $2,979.76 | | |
| | | | | Taxes w/o Exemptions: | $2,979.76 | | |
Improvement / Building
| Improvement #1: | RESIDENTIAL | State Code: | 11 | 1103.0 sqft | Value: | $294,480 |
| Exterior Wall: | METAL/STEEL | Heating/Cooling: | WARM & COOLED AIR | | Number of Bathrooms: | 1 | Number of Bedrooms: | 3 | | Plumbing: | 7 | Roof Covering: | COMP SHINGLE |
|
| | Type | Description | Class CD | Sub Class CD | Year Built | Area |
| | MA | Main Area | 1 | 30 | 1894 | 1103.0 |
| | RCD | WOOD DECK W/ROOF, CEILED | 1 | 30 | 0 | 168.0 |
| | SI1 | SITE IMPROVEMENT | 1 | 30 | 0 | 1.0 |
| | BASE | BASEMENT | 1 | 30 | 1894 | 528.0 |
| | DTG | Detached Garage | 1 | 30 | 1894 | 216.0 |
| | OPS | OPEN PORCH W/STEPS | 1 | | 1894 | 27.0 |
Sketch
Property Image
Land
| 1 | RES 1 | Converted: Residential | 0.1400 | 6100.00 | 0.00 | 0.00 | 1.00 | $44,230 | $0 |
Roll Value History
| 2026 | N/A | N/A | N/A | N/A | N/A |
| 2025 | $288,450 | $67,100 | $0 | $355,550 | $355,550 |
| 2024 | $288,450 | $67,100 | $0 | $355,550 | $355,550 |
| 2023 | $294,480 | $44,230 | $0 | $338,710 | $338,710 |
| 2022 | $267,710 | $44,230 | $0 | $311,940 | $311,940 |
| 2021 | $184,630 | $44,230 | $0 | $228,860 | $228,860 |
| 2020 | $123,080 | $44,230 | $0 | $167,310 | $167,310 |
| 2019 | $123,080 | $44,230 | $0 | $167,310 | $167,310 |
| 2018 | $102,570 | $44,230 | $0 | $146,800 | $146,800 |
| 2017 | $74,180 | $27,500 | $0 | $101,680 | $101,680 |
| 2016 | $64,500 | $27,500 | $0 | $92,000 | $92,000 |
| 2015 | $64,500 | $27,500 | $0 | $92,000 | $92,000 |
| 2014 | $64,500 | $27,500 | $0 | $92,000 | $92,000 |
| 2013 | $64,500 | $27,500 | $0 | $92,000 | $92,000 |
| 2012 | $63,700 | $27,500 | $0 | $0 | $0 |
| 2011 | $63,700 | $27,500 | $0 | $0 | $0 |
| 2010 | $59,400 | $27,500 | $0 | $0 | $0 |
| 2009 | $69,000 | $27,500 | $0 | $0 | $0 |
| 2008 | $69,000 | $27,500 | $0 | $0 | $0 |
| 2007 | $69,000 | $27,500 | $0 | $0 | $0 |
Deed and Sales History
| 1 | 07/31/2002 | WARRANTY D | WARRANTY DEED | | | | | $75,500.00 | 64 | 2002-0008640 |
Payout Agreement
| No payout information available.. |