Property
Account |
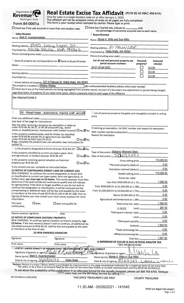
| Property ID: | 6550 | Abbreviated Legal Description: | METCALFS LOT 3 BLK 2 LESS FREEWAY |
| Parcel Number: | 360720640203 | Agent Code: | |
| Type: | Real | | |
| Tax Area: | 1 - OL-140-F | Land Use Code | 55 |
| Open Space: | N | DFL | N |
| Historic Property: | N | Remodel Property: | N |
| Multi-Family Redevelopment: | N | | |
| Township: | 7 | Section: | 20 |
| Range: | 36 |
Location |
| Address: | 521 N PALOUSE ST WA 99362 | Mapsco: | |
| Neighborhood: | F SFR | Map ID: | |
| Neighborhood CD: | 512011 |
Owner |
| Name: | WILLIS MONTE A & SUE C | Owner ID: | 50830 |
| Mailing Address: | 51 TALON LOOP WALLA WALLA, WA 99362 | % Ownership: | 100.0000000000% |
| | | Exemptions: | |
Taxes and Assessment Details
Property Tax Information as of
02/21/2026
Click on "Statement Details" to expand or collapse a tax statement.
* Please enter a valid date ** Please enter a valid date *
Statement Details |
| | TOTAL: | $0.00 | $0.00 | $0.00 | $0.00 | $0.00 | $0.00 |
|
| | $0.00 | $0.00 | $0.00 | $0.00 | $0.00 | $0.00 |
Values
| (+) Improvement Homesite Value: | + | $0 | |
| (+) Improvement Non-Homesite Value: | + | $63,540 | |
| (+) Land Homesite Value: | + | $0 | |
| (+) Land Non-Homesite Value: | + | $24,260 | |
| (+) Curr Use (HS): | + | $0 | $0 |
| (+) Curr Use (NHS): | + | $0 | $0 |
| | | -------------------------- | |
| (=) Market Value: | = | $87,800 | |
| (–) Productivity Loss: | – | $0 | |
| | | -------------------------- | |
| (=) Subtotal: | = | $87,800 | |
| (+) Senior Appraised Value: | + | $0 | |
| (+) Non-Senior Appraised Value: | + | $87,800 | |
| | | -------------------------- | |
| (=) Total Appraised Value: | = | $87,800 | |
| (–) Senior Exemption Loss: | – | $0 | |
| (–) Exemption Loss: | – | $0 | |
| | | -------------------------- | |
| (=) Taxable Value: | = | $87,800 | |
Taxing Jurisdiction
| Owner: | WILLIS MONTE A & SUE C | | |
| % Ownership: | 100.0000000000% | | |
| Total Value: | $87,800 | | |
| Tax Area: | 1 - OL-140-F |
| CERFD | CURRENT EXPENSE REFUND 010 | 0.0000000000 | $87,800 | $87,800 | $0.00 | | |
| CURREXP | CURRENT EXPENSE 010 | 1.0175366760 | $87,800 | $87,800 | $89.34 | | |
| HUMNSERV | HUMAN SERVICES 119 | 0.0250000000 | $87,800 | $87,800 | $2.20 | | |
| SLDREL | SOLDIERS RELIEF 121 | 0.0155990005 | $87,800 | $87,800 | $1.37 | | |
| EMERGSER | EMS 147 | 0.3792580840 | $87,800 | $87,800 | $33.30 | | |
| EMSRFD | EMS REFUND 147 | 0.0000000000 | $87,800 | $87,800 | $0.00 | | |
| PORTRFD | PORT REFUND 640 | 0.0000000000 | $87,800 | $87,800 | $0.00 | | |
| PORTWWGEN | PORT OF WW 640 | 0.2460186015 | $87,800 | $87,800 | $21.60 | | |
| SD140BOND | SD #140 BOND 764 | 0.8342371393 | $87,800 | $87,800 | $73.25 | | |
| SD140GEN | SD #140 GENERAL 760 | 2.0646500647 | $87,800 | $87,800 | $181.28 | | |
| ST2 | STATE SCHOOL PART 2 600 | 0.8131451643 | $87,800 | $87,800 | $71.39 | | |
| STATESCHL | STATE SCHOOL 600 | 1.5158548041 | $87,800 | $87,800 | $133.09 | | |
| STREFUND | STATE REFUND LEVY 603 | 0.0000000000 | $87,800 | $87,800 | $0.00 | | |
| CWWBOND | C OF WW BOND 643 | 0.2760494372 | $87,800 | $87,800 | $24.24 | | |
| CWWGEN | CITY OF WW 631 | 1.6100204973 | $87,800 | $87,800 | $141.36 | | |
| CWWRFD | CITY OF WALLA WALLA REFUND 631 | 0.0000000000 | $87,800 | $87,800 | $0.00 | | |
| | Total Tax Rate: | 8.7973694689 | | | | | |
| | | | | Taxes w/Current Exemptions: | $772.42 | | |
| | | | | Taxes w/o Exemptions: | $772.42 | | |
Improvement / Building
| Improvement #1: | RESIDENTIAL | State Code: | 55 | 1200.0 sqft | Value: | $63,540 |
| | Type | Description | Class CD | Sub Class CD | Year Built | Area |
| | POL3 | POLE BUILDING-CON,ELEC,INSU | 1 | 30 | 1977 | 1200.0 |
| | MA | Main Area | D | 30 | 1989 | 1200.0 |
| | SI1 | SITE IMPROVEMENT | 1 | 30 | 1989 | 1.0 |
Sketch
Property Image
Land
| 1 | RES 1 | Converted: Residential | 0.1061 | 4620.00 | 0.00 | 0.00 | 1.00 | $24,260 | $0 |
Roll Value History
| 2026 | N/A | N/A | N/A | N/A | N/A |
| 2025 | $68,000 | $41,600 | $0 | $109,600 | $109,600 |
| 2024 | $68,000 | $41,600 | $0 | $109,600 | $109,600 |
| 2023 | $63,540 | $24,260 | $0 | $87,800 | $87,800 |
| 2022 | $48,880 | $24,260 | $0 | $73,140 | $73,140 |
| 2021 | $24,440 | $24,260 | $0 | $48,700 | $48,700 |
| 2020 | $11,440 | $24,260 | $0 | $35,700 | $35,700 |
| 2019 | $11,440 | $24,260 | $0 | $35,700 | $35,700 |
| 2018 | $11,440 | $24,260 | $0 | $35,700 | $35,700 |
| 2017 | $11,400 | $13,900 | $0 | $25,300 | $25,300 |
| 2016 | $11,400 | $13,900 | $0 | $25,300 | $25,300 |
| 2015 | $11,400 | $13,900 | $0 | $25,300 | $25,300 |
| 2014 | $11,400 | $13,900 | $0 | $25,300 | $25,300 |
| 2013 | $11,400 | $13,900 | $0 | $25,300 | $25,300 |
| 2012 | $10,900 | $13,900 | $0 | $0 | $0 |
| 2011 | $10,900 | $13,900 | $0 | $0 | $0 |
| 2010 | $10,900 | $13,900 | $0 | $0 | $0 |
| 2009 | $10,900 | $13,900 | $0 | $0 | $0 |
| 2008 | $10,900 | $13,900 | $0 | $0 | $0 |
| 2007 | $10,900 | $13,900 | $0 | $0 | $0 |
Deed and Sales History
| 1 | 05/26/2021 | SWD | STATUTORY WARRANTY DEED | KUECHENMEISTER MARK E | WILLIS MONTE A & SUE C | | | $115,000.00 | 141645 | 2021-06381 |
| 2 | 03/12/2015 | QCD | QUIT CLAIM DEED | | KUECHENMEISTER MARK E | 2 PARCELS | | $0.00 | 127643 | 2015-02391 |
| 3 | 04/28/2015 | COURT CASE | COURT CASE | KUECHENMEISTER MARK E | KUECHENMEISTER MARK E | | | | 0 | CC 14-3-00007-8 |
| 4 | 12/07/1989 | WARRANTY D | WARRANTY DEED | | | | | $28,000.00 | 0 | 6905-69558 |
Payout Agreement
| No payout information available.. |