Property
Account |
| Property ID: | 6548 | Abbreviated Legal Description: | METCALFS LOT 7 BLK 1 |
| Parcel Number: | 360720640107 | Agent Code: | |
| Type: | Real | | |
| Tax Area: | 1 - OL-140-F | Land Use Code | 11 |
| Open Space: | N | DFL | N |
| Historic Property: | N | Remodel Property: | N |
| Multi-Family Redevelopment: | N | | |
| Township: | 7 | Section: | 20 |
| Range: | 36 |
Location |
| Address: | 504 N PALOUSE ST WA 99362 | Mapsco: | |
| Neighborhood: | F SFR | Map ID: | |
| Neighborhood CD: | 512011 |
Owner |
| Name: | HALLOWELL RANDY W & KRISTI A | Owner ID: | 50956 |
| Mailing Address: | PO BOX 1515 WALLA WALLA, WA 99362 | % Ownership: | 100.0000000000% |
| | | Exemptions: | |
Taxes and Assessment Details
Values
| (+) Improvement Homesite Value: | + | N/A | |
| (+) Improvement Non-Homesite Value: | + | N/A | |
| (+) Land Homesite Value: | + | N/A | |
| (+) Land Non-Homesite Value: | + | N/A | Ag / Timber Use Value |
| (+) Curr Use (HS): | + | N/A | N/A |
| (+) Curr Use (NHS): | + | N/A | N/A |
| | | -------------------------- | |
| (=) Market Value: | = | N/A | |
| (–) Productivity Loss: | – | N/A | |
| | | -------------------------- | |
| (=) Subtotal: | = | N/A | |
| (+) Senior Appraised Value: | + | N/A | |
| (+) Non-Senior Appraised Value: | + | N/A | |
| | | -------------------------- | |
| (=) Total Appraised Value: | = | N/A | |
| (–) Senior Exemption Loss: | – | N/A | |
| (–) Exemption Loss: | – | N/A | |
| | | -------------------------- | |
| (=) Taxable Value: | = | N/A | |
Taxing Jurisdiction
| Owner: | HALLOWELL RANDY W & KRISTI A | | |
| % Ownership: | 100.0000000000% | | |
| Total Value: | N/A | | |
| Tax Area: | 1 - OL-140-F |
| CERFD | CURRENT EXPENSE REFUND 010 | N/A | N/A | N/A | N/A | | |
| CURREXP | CURRENT EXPENSE 010 | N/A | N/A | N/A | N/A | | |
| HUMNSERV | HUMAN SERVICES 119 | N/A | N/A | N/A | N/A | | |
| SLDREL | SOLDIERS RELIEF 121 | N/A | N/A | N/A | N/A | | |
| EMERGSER | EMS 147 | N/A | N/A | N/A | N/A | | |
| EMSRFD | EMS REFUND 147 | N/A | N/A | N/A | N/A | | |
| PORTRFD | PORT REFUND 640 | N/A | N/A | N/A | N/A | | |
| PORTWWGEN | PORT OF WW 640 | N/A | N/A | N/A | N/A | | |
| SD140BOND | SD #140 BOND 764 | N/A | N/A | N/A | N/A | | |
| SD140GEN | SD #140 GENERAL 760 | N/A | N/A | N/A | N/A | | |
| ST2 | STATE SCHOOL PART 2 600 | N/A | N/A | N/A | N/A | | |
| STATESCHL | STATE SCHOOL 600 | N/A | N/A | N/A | N/A | | |
| STREFUND | STATE REFUND LEVY 603 | N/A | N/A | N/A | N/A | | |
| CWWBOND | C OF WW BOND 643 | N/A | N/A | N/A | N/A | | |
| CWWGEN | CITY OF WW 631 | N/A | N/A | N/A | N/A | | |
| CWWRFD | CITY OF WALLA WALLA REFUND 631 | N/A | N/A | N/A | N/A | | |
| | Total Tax Rate: | N/A | | | | | |
| | | | | Taxes w/Current Exemptions: | N/A | | |
| | | | | Taxes w/o Exemptions: | N/A | | |
Improvement / Building
| Improvement #1: | RESIDENTIAL | State Code: | 11 | 699.0 sqft | Value: | N/A |
| Exterior Wall: | SIDING | Foundation: | POST & PIER | | Heating/Cooling: | FORCED AIR | Number of Bathrooms: | 1 | | Number of Bedrooms: | 2 | Plumbing: | 6 | | Roof Covering: | COMP SHINGLE |   |   |
|
| | Type | Description | Class CD | Sub Class CD | Year Built | Area |
| | MA | Main Area | 1 | 20 | 1920 | 699.0 |
| | SI1 | SITE IMPROVEMENT | 1 | 20 | 0 | 1.0 |
| | BASE | BASEMENT | 1 | 20 | 1920 | 100.0 |
| | SWP | Solid Wall Porch | 1 | 20 | 1920 | 120.0 |
Sketch
Property Image
Land
| 1 | RES 1 | Converted: Residential | 0.0870 | 3788.00 | 0.00 | 0.00 | 1.00 | N/A | N/A |
Roll Value History
| 2026 | N/A | N/A | N/A | N/A | N/A |
| 2025 | $95,540 | $34,090 | $0 | $129,630 | $129,630 |
| 2024 | $95,540 | $34,090 | $0 | $129,630 | $129,630 |
| 2023 | $108,500 | $19,890 | $0 | $128,390 | $128,390 |
| 2022 | $108,500 | $19,890 | $0 | $128,390 | $128,390 |
| 2021 | $54,250 | $19,890 | $0 | $74,140 | $74,140 |
| 2020 | $54,250 | $19,890 | $0 | $74,140 | $74,140 |
| 2019 | $54,250 | $19,890 | $0 | $74,140 | $74,140 |
| 2018 | $45,210 | $19,890 | $0 | $65,100 | $65,100 |
| 2017 | $54,910 | $11,400 | $0 | $66,310 | $66,310 |
| 2016 | $54,910 | $11,400 | $0 | $66,310 | $66,310 |
| 2015 | $54,910 | $11,400 | $0 | $66,310 | $66,310 |
| 2014 | $64,600 | $11,400 | $0 | $76,000 | $76,000 |
| 2013 | $64,600 | $11,400 | $0 | $76,000 | $76,000 |
| 2012 | $64,600 | $11,400 | $0 | $0 | $0 |
| 2011 | $64,600 | $11,400 | $0 | $0 | $0 |
| 2010 | $61,000 | $11,400 | $0 | $0 | $0 |
| 2009 | $69,000 | $11,400 | $0 | $0 | $0 |
| 2008 | $39,500 | $11,400 | $0 | $0 | $0 |
| 2007 | $39,500 | $11,400 | $0 | $0 | $0 |
Deed and Sales History
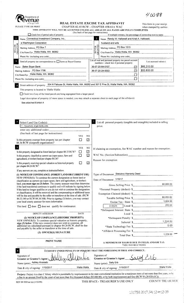
| 1 | 01/12/2017 | SWD | STATUTORY WARRANTY DEED | CONNECTICUT INVESTMENT CO | HALLOWELL RANDY W & KRISTI A | | 2-PARCLES | $80,000.00 | 131758 | 2017-00328 |
|   | |
| 2 | 11/19/1969 | WARRANTY D | WARRANTY DEED | | | | | $4,000.00 | 0 | 3340-505026 |
Payout Agreement
| No payout information available.. |