Property
Account |
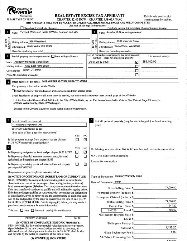
| Property ID: | 6521 | Abbreviated Legal Description: | GREENS 1ST LOT 5 BLK 4 |
| Parcel Number: | 360720620405 | Agent Code: | |
| Type: | Real | | |
| Tax Area: | 1 - OL-140-F | Land Use Code | 11 |
| Open Space: | N | DFL | N |
| Historic Property: | N | Remodel Property: | N |
| Multi-Family Redevelopment: | N | | |
| Township: | 7 | Section: | 20 |
| Range: | 36 |
Location |
| Address: | 1032 VALENCIA ST WA 99362 | Mapsco: | |
| Neighborhood: | A-SFR | Map ID: | |
| Neighborhood CD: | 513011 |
Owner |
| Name: | MC DOW JENNIFER | Owner ID: | 54492 |
| Mailing Address: | 1032 VALENCIA ST WALLA WALLA, WA 99362 | % Ownership: | 100.0000000000% |
| | | Exemptions: | |
Taxes and Assessment Details
Property Tax Information as of
02/21/2026
Click on "Statement Details" to expand or collapse a tax statement.
* Please enter a valid date ** Please enter a valid date *
Statement Details |
| | TOTAL: | $0.00 | $0.00 | $0.00 | $0.00 | $0.00 | $0.00 |
|
| | $0.00 | $0.00 | $0.00 | $0.00 | $0.00 | $0.00 |
Values
| (+) Improvement Homesite Value: | + | $0 | |
| (+) Improvement Non-Homesite Value: | + | $170,730 | |
| (+) Land Homesite Value: | + | $0 | |
| (+) Land Non-Homesite Value: | + | $21,880 | |
| (+) Curr Use (HS): | + | $0 | $0 |
| (+) Curr Use (NHS): | + | $0 | $0 |
| | | -------------------------- | |
| (=) Market Value: | = | $192,610 | |
| (–) Productivity Loss: | – | $0 | |
| | | -------------------------- | |
| (=) Subtotal: | = | $192,610 | |
| (+) Senior Appraised Value: | + | $0 | |
| (+) Non-Senior Appraised Value: | + | $192,610 | |
| | | -------------------------- | |
| (=) Total Appraised Value: | = | $192,610 | |
| (–) Senior Exemption Loss: | – | $0 | |
| (–) Exemption Loss: | – | $0 | |
| | | -------------------------- | |
| (=) Taxable Value: | = | $192,610 | |
Taxing Jurisdiction
| Owner: | MC DOW JENNIFER | | |
| % Ownership: | 100.0000000000% | | |
| Total Value: | $192,610 | | |
| Tax Area: | 1 - OL-140-F |
| CERFD | CURRENT EXPENSE REFUND 010 | 0.0000000000 | $192,610 | $192,610 | $0.00 | | |
| CURREXP | CURRENT EXPENSE 010 | 1.0175366760 | $192,610 | $192,610 | $195.99 | | |
| HUMNSERV | HUMAN SERVICES 119 | 0.0250000000 | $192,610 | $192,610 | $4.82 | | |
| SLDREL | SOLDIERS RELIEF 121 | 0.0155990005 | $192,610 | $192,610 | $3.00 | | |
| EMERGSER | EMS 147 | 0.3792580840 | $192,610 | $192,610 | $73.05 | | |
| EMSRFD | EMS REFUND 147 | 0.0000000000 | $192,610 | $192,610 | $0.00 | | |
| PORTRFD | PORT REFUND 640 | 0.0000000000 | $192,610 | $192,610 | $0.00 | | |
| PORTWWGEN | PORT OF WW 640 | 0.2460186015 | $192,610 | $192,610 | $47.39 | | |
| SD140BOND | SD #140 BOND 764 | 0.8342371393 | $192,610 | $192,610 | $160.68 | | |
| SD140GEN | SD #140 GENERAL 760 | 2.0646500647 | $192,610 | $192,610 | $397.67 | | |
| ST2 | STATE SCHOOL PART 2 600 | 0.8131451643 | $192,610 | $192,610 | $156.62 | | |
| STATESCHL | STATE SCHOOL 600 | 1.5158548041 | $192,610 | $192,610 | $291.97 | | |
| STREFUND | STATE REFUND LEVY 603 | 0.0000000000 | $192,610 | $192,610 | $0.00 | | |
| CWWBOND | C OF WW BOND 643 | 0.2760494372 | $192,610 | $192,610 | $53.17 | | |
| CWWGEN | CITY OF WW 631 | 1.6100204973 | $192,610 | $192,610 | $310.11 | | |
| CWWRFD | CITY OF WALLA WALLA REFUND 631 | 0.0000000000 | $192,610 | $192,610 | $0.00 | | |
| | Total Tax Rate: | 8.7973694689 | | | | | |
| | | | | Taxes w/Current Exemptions: | $1,694.47 | | |
| | | | | Taxes w/o Exemptions: | $1,694.47 | | |
Improvement / Building
| Improvement #1: | RESIDENTIAL | State Code: | 11 | 851.0 sqft | Value: | $170,730 |
| Exterior Wall: | SIDING | Heating/Cooling: | BASEBOARD ELECTRIC | | Number of Bathrooms: | 1 | Number of Bedrooms: | 2 | | Plumbing: | 7 | Roof Covering: | COMP SHINGLE |
|
| | Type | Description | Class CD | Sub Class CD | Year Built | Area |
| | MA | Main Area | 1 | 20 | 1900 | 851.0 |
| | SI1 | SITE IMPROVEMENT | 1 | 20 | 1900 | 1.0 |
| | CPC | COVERED CARPORT/PATIO | 1 | 20 | 1900 | 216.0 |
Sketch
Property Image
Land
| 1 | RES 1 | Converted: Residential | 0.0803 | 3500.00 | 0.00 | 0.00 | 1.00 | $21,880 | $0 |
Roll Value History
| 2026 | N/A | N/A | N/A | N/A | N/A |
| 2025 | $165,480 | $35,000 | $0 | $200,480 | $200,480 |
| 2024 | $165,480 | $35,000 | $0 | $200,480 | $200,480 |
| 2023 | $170,730 | $21,880 | $0 | $192,610 | $192,610 |
| 2022 | $170,730 | $21,880 | $0 | $192,610 | $192,610 |
| 2021 | $121,950 | $21,880 | $0 | $143,830 | $143,830 |
| 2020 | $87,110 | $21,880 | $0 | $108,990 | $108,990 |
| 2019 | $87,110 | $21,880 | $0 | $108,990 | $108,990 |
| 2018 | $62,220 | $21,880 | $0 | $84,100 | $84,100 |
| 2017 | $62,710 | $14,000 | $0 | $76,710 | $76,710 |
| 2016 | $59,720 | $14,000 | $0 | $73,720 | $73,720 |
| 2015 | $56,880 | $14,000 | $0 | $70,880 | $70,880 |
| 2014 | $71,100 | $14,000 | $0 | $85,100 | $85,100 |
| 2013 | $71,100 | $14,000 | $0 | $85,100 | $85,100 |
| 2012 | $71,100 | $14,000 | $0 | $0 | $0 |
| 2011 | $71,100 | $14,000 | $0 | $0 | $0 |
| 2010 | $51,500 | $14,000 | $0 | $0 | $0 |
| 2009 | $58,800 | $14,000 | $0 | $0 | $0 |
| 2008 | $42,000 | $14,000 | $0 | $0 | $0 |
| 2007 | $42,000 | $14,000 | $0 | $0 | $0 |
Deed and Sales History
| 1 | 04/07/2014 | WARRANTY D | WARRANTY DEED | WATTS TYRONE L | MC DOW JENNIFER | | | $74,000.00 | 125688 | 2014-02379 |
| 2 | 12/19/1989 | WARRANTY D | WARRANTY DEED | | | | | $29,500.00 | 0 | 1808-908493 |
Payout Agreement
| No payout information available.. |