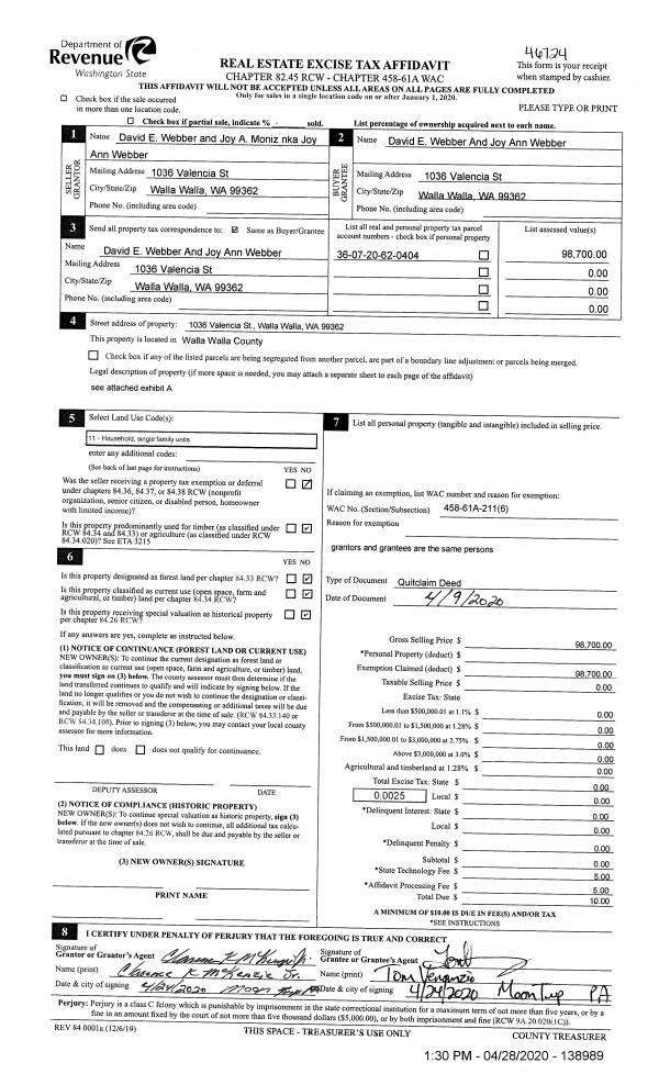
Property
Account |
| Property ID: | 6520 | Abbreviated Legal Description: | GREENS 1ST LOT 4 BLK 4 |
| Parcel Number: | 360720620404 | Agent Code: | |
| Type: | Real | | |
| Tax Area: | 1 - OL-140-F | Land Use Code | 11 |
| Open Space: | N | DFL | N |
| Historic Property: | N | Remodel Property: | N |
| Multi-Family Redevelopment: | N | | |
| Township: | 7 | Section: | 20 |
| Range: | 36 |
Location |
| Address: | 1036 VALENCIA ST WA 99362 | Mapsco: | |
| Neighborhood: | A-SFR | Map ID: | |
| Neighborhood CD: | 513011 |
Owner |
| Name: | WEBBER DAVID E & JOY ANN | Owner ID: | 67049 |
| Mailing Address: | 1036 VALENCIA ST WALLA WALLA, WA 99362 | % Ownership: | 100.0000000000% |
| | | Exemptions: | |
Taxes and Assessment Details
Values
| (+) Improvement Homesite Value: | + | $0 | |
| (+) Improvement Non-Homesite Value: | + | $121,200 | |
| (+) Land Homesite Value: | + | $0 | |
| (+) Land Non-Homesite Value: | + | $26,560 | |
| (+) Curr Use (HS): | + | $0 | $0 |
| (+) Curr Use (NHS): | + | $0 | $0 |
| | | -------------------------- | |
| (=) Market Value: | = | $147,760 | |
| (–) Productivity Loss: | – | $0 | |
| | | -------------------------- | |
| (=) Subtotal: | = | $147,760 | |
| (+) Senior Appraised Value: | + | $0 | |
| (+) Non-Senior Appraised Value: | + | $147,760 | |
| | | -------------------------- | |
| (=) Total Appraised Value: | = | $147,760 | |
| (–) Senior Exemption Loss: | – | $0 | |
| (–) Exemption Loss: | – | $0 | |
| | | -------------------------- | |
| (=) Taxable Value: | = | $147,760 | |
Taxing Jurisdiction
| Owner: | WEBBER DAVID E & JOY ANN | | |
| % Ownership: | 100.0000000000% | | |
| Total Value: | $147,760 | | |
| Tax Area: | 1 - OL-140-F |
| CERFD | CURRENT EXPENSE REFUND 010 | 0.0000000000 | $147,760 | $147,760 | $0.00 | | |
| CURREXP | CURRENT EXPENSE 010 | 1.0175366760 | $147,760 | $147,760 | $150.35 | | |
| HUMNSERV | HUMAN SERVICES 119 | 0.0250000000 | $147,760 | $147,760 | $3.69 | | |
| SLDREL | SOLDIERS RELIEF 121 | 0.0155990005 | $147,760 | $147,760 | $2.30 | | |
| EMERGSER | EMS 147 | 0.3792580840 | $147,760 | $147,760 | $56.04 | | |
| EMSRFD | EMS REFUND 147 | 0.0000000000 | $147,760 | $147,760 | $0.00 | | |
| PORTRFD | PORT REFUND 640 | 0.0000000000 | $147,760 | $147,760 | $0.00 | | |
| PORTWWGEN | PORT OF WW 640 | 0.2460186015 | $147,760 | $147,760 | $36.35 | | |
| SD140BOND | SD #140 BOND 764 | 0.8342371393 | $147,760 | $147,760 | $123.27 | | |
| SD140GEN | SD #140 GENERAL 760 | 2.0646500647 | $147,760 | $147,760 | $305.07 | | |
| ST2 | STATE SCHOOL PART 2 600 | 0.8131451643 | $147,760 | $147,760 | $120.15 | | |
| STATESCHL | STATE SCHOOL 600 | 1.5158548041 | $147,760 | $147,760 | $223.98 | | |
| STREFUND | STATE REFUND LEVY 603 | 0.0000000000 | $147,760 | $147,760 | $0.00 | | |
| CWWBOND | C OF WW BOND 643 | 0.2760494372 | $147,760 | $147,760 | $40.79 | | |
| CWWGEN | CITY OF WW 631 | 1.6100204973 | $147,760 | $147,760 | $237.90 | | |
| CWWRFD | CITY OF WALLA WALLA REFUND 631 | 0.0000000000 | $147,760 | $147,760 | $0.00 | | |
| | Total Tax Rate: | 8.7973694689 | | | | | |
| | | | | Taxes w/Current Exemptions: | $1,299.89 | | |
| | | | | Taxes w/o Exemptions: | $1,299.89 | | |
Improvement / Building
| Improvement #1: | RESIDENTIAL | State Code: | 11 | 1526.0 sqft | Value: | $121,200 |
| Exterior Wall: | SIDING | Heating/Cooling: | FORCED AIR | | Number of Bathrooms: | 1 | Number of Bedrooms: | 3 | | Plumbing: | 6 | Roof Covering: | COMP SHINGLE |
|
| | Type | Description | Class CD | Sub Class CD | Year Built | Area |
| | MA | Main Area | 4 | 20 | 1900 | 1526.0 |
| | SI1 | SITE IMPROVEMENT | 4 | 20 | 1900 | 1.0 |
| | BASE | BASEMENT | 4 | 20 | 1900 | 899.0 |
| | UPFL | Upper Floor (included in main area) | 4 | 20 | 1900 | 627.0 |
| | BPF | BASEMENT -PARTITIONED FINISH | 4 | 20 | 1900 | 500.0 |
| | WOD | Wood Deck | 4 | 20 | 1900 | 60.0 |
Sketch
Property Image
Land
| 1 | RES 1 | Converted: Residential | 0.0976 | 4250.00 | 0.00 | 0.00 | 1.00 | $26,560 | $0 |
Roll Value History
| 2026 | N/A | N/A | N/A | N/A | N/A |
| 2025 | $106,170 | $42,500 | $0 | $148,670 | $148,670 |
| 2024 | $106,170 | $42,500 | $0 | $148,670 | $148,670 |
| 2023 | $121,200 | $26,560 | $0 | $147,760 | $147,760 |
| 2022 | $121,200 | $26,560 | $0 | $147,760 | $147,760 |
| 2021 | $86,570 | $26,560 | $0 | $113,130 | $113,130 |
| 2020 | $72,140 | $26,560 | $0 | $98,700 | $98,700 |
| 2019 | $72,140 | $26,560 | $0 | $98,700 | $98,700 |
| 2018 | $72,140 | $26,560 | $0 | $98,700 | $98,700 |
| 2017 | $81,680 | $17,000 | $0 | $98,680 | $98,680 |
| 2016 | $74,250 | $17,000 | $0 | $91,250 | $91,250 |
| 2015 | $67,500 | $17,000 | $0 | $84,500 | $84,500 |
| 2014 | $67,500 | $17,000 | $0 | $84,500 | $84,500 |
| 2013 | $67,500 | $17,000 | $0 | $84,500 | $84,500 |
| 2012 | $67,500 | $17,000 | $0 | $0 | $0 |
| 2011 | $67,500 | $17,000 | $0 | $0 | $0 |
| 2010 | $63,500 | $17,000 | $0 | $0 | $0 |
| 2009 | $72,400 | $17,000 | $0 | $0 | $0 |
| 2008 | $57,500 | $17,000 | $0 | $0 | $0 |
| 2007 | $57,500 | $17,000 | $0 | $0 | $0 |
Deed and Sales History
| 1 | 04/09/2020 | QCD | QUIT CLAIM DEED | WEBBER DAVID E | WEBBER DAVID E & JOY ANN | | | $0.00 | 138989 | 2020-03633 |
| 2 | 06/27/2018 | QCD | QUIT CLAIM DEED | WEBBER DAVID E | WEBBER DAVID E | | | $76,058.00 | 135007 | 2018-05162 |
| 3 | 05/04/1999 | WARRANTY D | WARRANTY DEED | | | | | $56,500.00 | 92687 | 2839-905425 |
Payout Agreement
| No payout information available.. |