Property
Account |
| Property ID: | 6430 | Abbreviated Legal Description: | CAINS LOT 8 BLK 31 |
| Parcel Number: | 360720573108 | Agent Code: | |
| Type: | Real | | |
| Tax Area: | 1 - OL-140-F | Land Use Code | 11 |
| Open Space: | N | DFL | N |
| Historic Property: | N | Remodel Property: | N |
| Multi-Family Redevelopment: | N | | |
| Township: | 7 | Section: | 20 |
| Range: | 36 |
Location |
| Address: | 313 E OAK ST WA 99362 | Mapsco: | |
| Neighborhood: | F SFR | Map ID: | |
| Neighborhood CD: | 512011 |
Owner |
| Name: | SCHREINER TIMOTHY | Owner ID: | 62821 |
| Mailing Address: | 313 E OAK ST WALLA WALLA, WA 99362 | % Ownership: | 100.0000000000% |
| | | Exemptions: | |
Taxes and Assessment Details
Property Tax Information as of
02/21/2026
Click on "Statement Details" to expand or collapse a tax statement.
* Please enter a valid date ** Please enter a valid date *
Statement Details |
| | TOTAL: | $0.00 | $0.00 | $0.00 | $0.00 | $0.00 | $0.00 |
|
| | $0.00 | $0.00 | $0.00 | $0.00 | $0.00 | $0.00 |
Values
| (+) Improvement Homesite Value: | + | $0 | |
| (+) Improvement Non-Homesite Value: | + | $202,190 | |
| (+) Land Homesite Value: | + | $0 | |
| (+) Land Non-Homesite Value: | + | $37,800 | |
| (+) Curr Use (HS): | + | $0 | $0 |
| (+) Curr Use (NHS): | + | $0 | $0 |
| | | -------------------------- | |
| (=) Market Value: | = | $239,990 | |
| (–) Productivity Loss: | – | $0 | |
| | | -------------------------- | |
| (=) Subtotal: | = | $239,990 | |
| (+) Senior Appraised Value: | + | $0 | |
| (+) Non-Senior Appraised Value: | + | $239,990 | |
| | | -------------------------- | |
| (=) Total Appraised Value: | = | $239,990 | |
| (–) Senior Exemption Loss: | – | $0 | |
| (–) Exemption Loss: | – | $0 | |
| | | -------------------------- | |
| (=) Taxable Value: | = | $239,990 | |
Taxing Jurisdiction
| Owner: | SCHREINER TIMOTHY | | |
| % Ownership: | 100.0000000000% | | |
| Total Value: | $239,990 | | |
| Tax Area: | 1 - OL-140-F |
| CERFD | CURRENT EXPENSE REFUND 010 | 0.0000000000 | $239,990 | $239,990 | $0.00 | | |
| CURREXP | CURRENT EXPENSE 010 | 1.0175366760 | $239,990 | $239,990 | $244.20 | | |
| HUMNSERV | HUMAN SERVICES 119 | 0.0250000000 | $239,990 | $239,990 | $6.00 | | |
| SLDREL | SOLDIERS RELIEF 121 | 0.0155990005 | $239,990 | $239,990 | $3.74 | | |
| EMERGSER | EMS 147 | 0.3792580840 | $239,990 | $239,990 | $91.02 | | |
| EMSRFD | EMS REFUND 147 | 0.0000000000 | $239,990 | $239,990 | $0.00 | | |
| PORTRFD | PORT REFUND 640 | 0.0000000000 | $239,990 | $239,990 | $0.00 | | |
| PORTWWGEN | PORT OF WW 640 | 0.2460186015 | $239,990 | $239,990 | $59.04 | | |
| SD140BOND | SD #140 BOND 764 | 0.8342371393 | $239,990 | $239,990 | $200.21 | | |
| SD140GEN | SD #140 GENERAL 760 | 2.0646500647 | $239,990 | $239,990 | $495.50 | | |
| ST2 | STATE SCHOOL PART 2 600 | 0.8131451643 | $239,990 | $239,990 | $195.15 | | |
| STATESCHL | STATE SCHOOL 600 | 1.5158548041 | $239,990 | $239,990 | $363.79 | | |
| STREFUND | STATE REFUND LEVY 603 | 0.0000000000 | $239,990 | $239,990 | $0.00 | | |
| CWWBOND | C OF WW BOND 643 | 0.2760494372 | $239,990 | $239,990 | $66.25 | | |
| CWWGEN | CITY OF WW 631 | 1.6100204973 | $239,990 | $239,990 | $386.39 | | |
| CWWRFD | CITY OF WALLA WALLA REFUND 631 | 0.0000000000 | $239,990 | $239,990 | $0.00 | | |
| | Total Tax Rate: | 8.7973694689 | | | | | |
| | | | | Taxes w/Current Exemptions: | $2,111.29 | | |
| | | | | Taxes w/o Exemptions: | $2,111.29 | | |
Improvement / Building
| Improvement #1: | RESIDENTIAL | State Code: | 11 | 1867.0 sqft | Value: | $202,190 |
| Exterior Wall: | SIDING | Heating/Cooling: | FORCED AIR | | Number of Bathrooms: | 2 | Number of Bedrooms: | 3 | | Plumbing: | 9 | Roof Covering: | COMP SHINGLE |
|
| | Type | Description | Class CD | Sub Class CD | Year Built | Area |
| | MA | Main Area | 1 | 20 | 1912 | 1867.0 |
| | CPC | COVERED CARPORT/PATIO | 1 | 20 | 0 | 150.0 |
| | CPC | COVERED CARPORT/PATIO | 1 | 20 | 0 | 208.0 |
| | DTG | Detached Garage | 1 | 20 | 0 | 480.0 |
| | SI1 | SITE IMPROVEMENT | 1 | 20 | 0 | 1.0 |
| | OPS | OPEN PORCH W/STEPS | 1 | 20 | 1912 | 30.0 |
Sketch
Property Image
Land
| 1 | RES 1 | Converted: Residential | 0.1653 | 7200.00 | 0.00 | 0.00 | 1.00 | $37,800 | $0 |
Roll Value History
| 2026 | N/A | N/A | N/A | N/A | N/A |
| 2025 | $185,600 | $64,800 | $0 | $250,400 | $250,400 |
| 2024 | $185,600 | $64,800 | $0 | $250,400 | $250,400 |
| 2023 | $202,190 | $37,800 | $0 | $239,990 | $239,990 |
| 2022 | $202,190 | $37,800 | $0 | $239,990 | $239,990 |
| 2021 | $161,750 | $37,800 | $0 | $199,550 | $199,550 |
| 2020 | $124,430 | $37,800 | $0 | $162,230 | $162,230 |
| 2019 | $124,430 | $37,800 | $0 | $162,230 | $162,230 |
| 2018 | $118,500 | $37,800 | $0 | $156,300 | $156,300 |
| 2017 | $76,310 | $21,600 | $0 | $97,910 | $97,910 |
| 2016 | $72,680 | $21,600 | $0 | $94,280 | $94,280 |
| 2015 | $72,680 | $21,600 | $0 | $94,280 | $94,280 |
| 2014 | $76,500 | $21,600 | $0 | $98,100 | $98,100 |
| 2013 | $76,500 | $21,600 | $0 | $98,100 | $98,100 |
| 2012 | $70,700 | $21,600 | $0 | $0 | $0 |
| 2011 | $75,600 | $21,600 | $0 | $0 | $0 |
| 2010 | $43,000 | $21,600 | $0 | $0 | $0 |
| 2009 | $50,200 | $21,600 | $0 | $0 | $0 |
| 2008 | $50,300 | $21,600 | $0 | $0 | $0 |
| 2007 | $50,300 | $21,600 | $0 | $0 | $0 |
Deed and Sales History
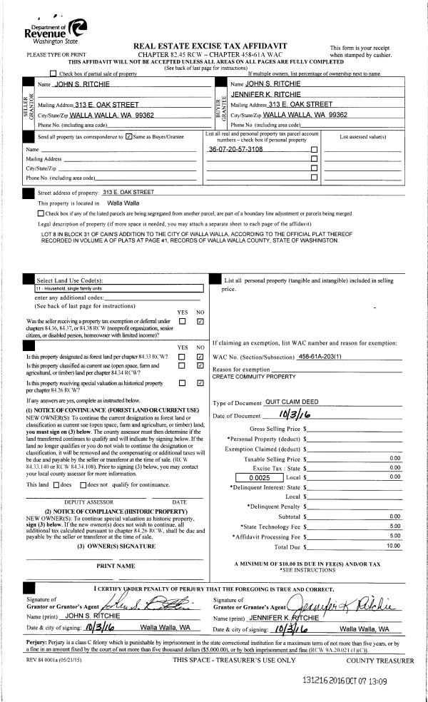
| 1 | 03/29/2018 | SWD | STATUTORY WARRANTY DEED | RITCHIE JOHN S & JENNIFER K | SCHREINER TIMOTHY | | | $165,000.00 | 134390 | 2018-02413 |
| 2 | 10/03/2016 | QCD | QUIT CLAIM DEED | RITCHIE JOHN S | RITCHIE JOHN S & JENNIFER K | | | | 131216 | 2016-08289 |
| 3 | 06/18/2007 | WARRANTY D | WARRANTY DEED | SHAW, N BERNARD ET UX | RITCHIE, JOHN S & LISA N | | | | 82713 | 2007-06961 |
| 4 | 10/03/1994 | WARRANTY D | WARRANTY DEED | | | | | $27,500.00 | 82713 | 2239-411540 |
Payout Agreement
| No payout information available.. |