Property
Account |
| Property ID: | 6392 | Abbreviated Legal Description: | CAINS LOT 4 BLK 19 LESS TAX 1 PLUS TRACT |
| Parcel Number: | 360720571904 | Agent Code: | |
| Type: | Real | | |
| Tax Area: | 1 - OL-140-F | Land Use Code | 11 |
| Open Space: | N | DFL | N |
| Historic Property: | N | Remodel Property: | N |
| Multi-Family Redevelopment: | N | | |
| Township: | 7 | Section: | 20 |
| Range: | 36 |
Location |
| Address: | 508 E ROSE ST WA 99362 | Mapsco: | |
| Neighborhood: | F SFR | Map ID: | |
| Neighborhood CD: | 512011 |
Owner |
| Name: | WHITAKER NICHOLAS M | Owner ID: | 59037 |
| Mailing Address: | 508 E ROSE ST WALLA WALLA, WA 99362 | % Ownership: | 100.0000000000% |
| | | Exemptions: | |
Taxes and Assessment Details
Property Tax Information as of
02/21/2026
Click on "Statement Details" to expand or collapse a tax statement.
* Please enter a valid date ** Please enter a valid date *
Statement Details |
| | TOTAL: | $0.00 | $0.00 | $0.00 | $0.00 | $0.00 | $0.00 |
|
| | $0.00 | $0.00 | $0.00 | $0.00 | $0.00 | $0.00 |
Values
| (+) Improvement Homesite Value: | + | $0 | |
| (+) Improvement Non-Homesite Value: | + | $247,460 | |
| (+) Land Homesite Value: | + | $0 | |
| (+) Land Non-Homesite Value: | + | $37,010 | |
| (+) Curr Use (HS): | + | $0 | $0 |
| (+) Curr Use (NHS): | + | $0 | $0 |
| | | -------------------------- | |
| (=) Market Value: | = | $284,470 | |
| (–) Productivity Loss: | – | $0 | |
| | | -------------------------- | |
| (=) Subtotal: | = | $284,470 | |
| (+) Senior Appraised Value: | + | $0 | |
| (+) Non-Senior Appraised Value: | + | $284,470 | |
| | | -------------------------- | |
| (=) Total Appraised Value: | = | $284,470 | |
| (–) Senior Exemption Loss: | – | $0 | |
| (–) Exemption Loss: | – | $0 | |
| | | -------------------------- | |
| (=) Taxable Value: | = | $284,470 | |
Taxing Jurisdiction
| Owner: | WHITAKER NICHOLAS M | | |
| % Ownership: | 100.0000000000% | | |
| Total Value: | $284,470 | | |
| Tax Area: | 1 - OL-140-F |
| CERFD | CURRENT EXPENSE REFUND 010 | 0.0000000000 | $284,470 | $284,470 | $0.00 | | |
| CURREXP | CURRENT EXPENSE 010 | 1.0175366760 | $284,470 | $284,470 | $289.46 | | |
| HUMNSERV | HUMAN SERVICES 119 | 0.0250000000 | $284,470 | $284,470 | $7.11 | | |
| SLDREL | SOLDIERS RELIEF 121 | 0.0155990005 | $284,470 | $284,470 | $4.44 | | |
| EMERGSER | EMS 147 | 0.3792580840 | $284,470 | $284,470 | $107.89 | | |
| EMSRFD | EMS REFUND 147 | 0.0000000000 | $284,470 | $284,470 | $0.00 | | |
| PORTRFD | PORT REFUND 640 | 0.0000000000 | $284,470 | $284,470 | $0.00 | | |
| PORTWWGEN | PORT OF WW 640 | 0.2460186015 | $284,470 | $284,470 | $69.98 | | |
| SD140BOND | SD #140 BOND 764 | 0.8342371393 | $284,470 | $284,470 | $237.32 | | |
| SD140GEN | SD #140 GENERAL 760 | 2.0646500647 | $284,470 | $284,470 | $587.33 | | |
| ST2 | STATE SCHOOL PART 2 600 | 0.8131451643 | $284,470 | $284,470 | $231.32 | | |
| STATESCHL | STATE SCHOOL 600 | 1.5158548041 | $284,470 | $284,470 | $431.22 | | |
| STREFUND | STATE REFUND LEVY 603 | 0.0000000000 | $284,470 | $284,470 | $0.00 | | |
| CWWBOND | C OF WW BOND 643 | 0.2760494372 | $284,470 | $284,470 | $78.53 | | |
| CWWGEN | CITY OF WW 631 | 1.6100204973 | $284,470 | $284,470 | $458.00 | | |
| CWWRFD | CITY OF WALLA WALLA REFUND 631 | 0.0000000000 | $284,470 | $284,470 | $0.00 | | |
| | Total Tax Rate: | 8.7973694689 | | | | | |
| | | | | Taxes w/Current Exemptions: | $2,502.60 | | |
| | | | | Taxes w/o Exemptions: | $2,502.60 | | |
Improvement / Building
| Improvement #1: | RESIDENTIAL | State Code: | 11 | 1743.0 sqft | Value: | $247,460 |
| Exterior Wall: | SIDING | Heating/Cooling: | WARM & COOLED AIR | | Number of Bathrooms: | 2 | Number of Bedrooms: | 4 | | Plumbing: | 9 | Roof Covering: | COMP SHINGLE |
|
| | Type | Description | Class CD | Sub Class CD | Year Built | Area |
| | MA | Main Area | 4 | 30 | 1910 | 1743.0 |
| | UPFL | Upper Floor (included in main area) | 4 | 30 | 0 | 558.0 |
| | SI1 | SITE IMPROVEMENT | 4 | 30 | 1910 | 1.5 |
| | SWP | Solid Wall Porch | 4 | 30 | 0 | 80.0 |
| | RPC | OPEN PORCH W/ROOF , CEILED | 4 | 30 | 0 | 192.0 |
| | DTG | Detached Garage | 4 | 30 | 0 | 216.0 |
Sketch
Property Image
Land
| 1 | RES 1 | Converted: Residential | 0.1618 | 7050.00 | 0.00 | 0.00 | 1.00 | $37,010 | $0 |
Roll Value History
| 2026 | N/A | N/A | N/A | N/A | N/A |
| 2025 | $380,270 | $63,450 | $0 | $443,720 | $443,720 |
| 2024 | $259,550 | $63,450 | $0 | $323,000 | $323,000 |
| 2023 | $247,460 | $37,010 | $0 | $284,470 | $284,470 |
| 2022 | $197,970 | $37,010 | $0 | $234,980 | $234,980 |
| 2021 | $197,970 | $37,010 | $0 | $234,980 | $234,980 |
| 2020 | $188,540 | $37,010 | $0 | $225,550 | $225,550 |
| 2019 | $188,540 | $37,010 | $0 | $225,550 | $225,550 |
| 2018 | $76,890 | $37,010 | $0 | $113,900 | $113,900 |
| 2017 | $69,760 | $21,200 | $0 | $90,960 | $90,960 |
| 2016 | $63,420 | $21,200 | $0 | $84,620 | $84,620 |
| 2015 | $60,400 | $21,200 | $0 | $81,600 | $81,600 |
| 2014 | $60,400 | $21,200 | $0 | $81,600 | $81,600 |
| 2013 | $60,400 | $21,200 | $0 | $81,600 | $81,600 |
| 2012 | $60,400 | $21,200 | $0 | $0 | $0 |
| 2011 | $60,400 | $21,200 | $0 | $0 | $0 |
| 2010 | $60,400 | $21,200 | $0 | $0 | $0 |
| 2009 | $69,500 | $21,200 | $0 | $0 | $0 |
| 2008 | $69,500 | $21,200 | $0 | $0 | $0 |
| 2007 | $69,500 | $21,200 | $0 | $0 | $0 |
Deed and Sales History
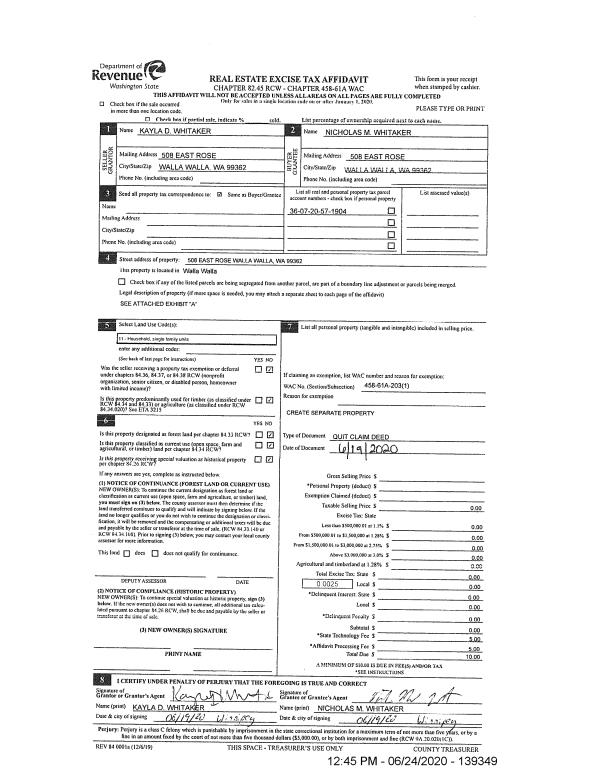
| 1 | 06/19/2020 | QCD | QUIT CLAIM DEED | WHITAKER KAYLA D | WHITAKER NICHOLAS M | | | $0.00 | 139349 | 2020-05807 |
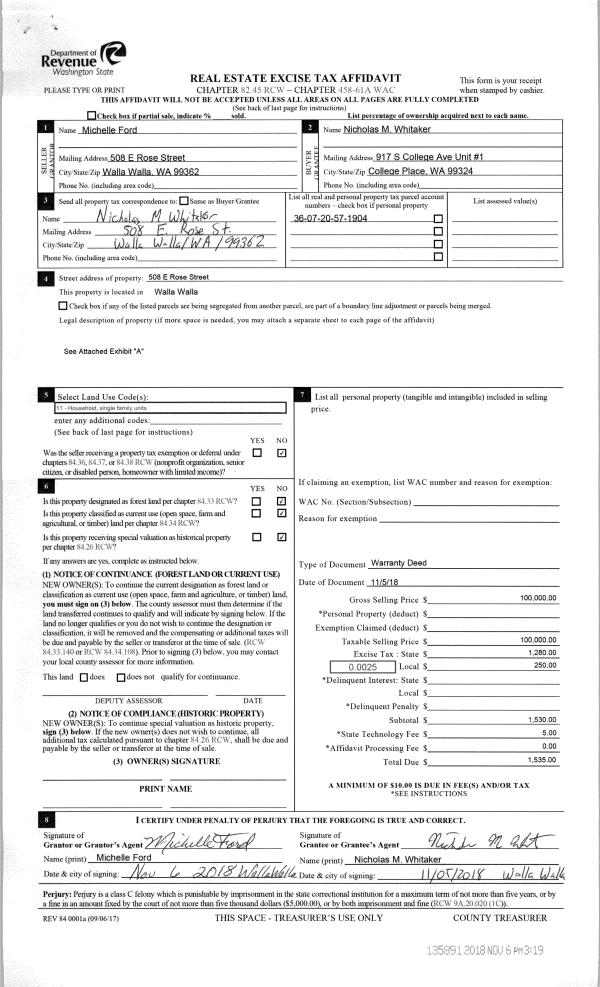
| 2 | 11/06/2018 | WARRANTY D | WARRANTY DEED | FORD MICHELLE | WHITAKER NICHOLAS M | | | $100,000.00 | 135891 | 2018-09239 |
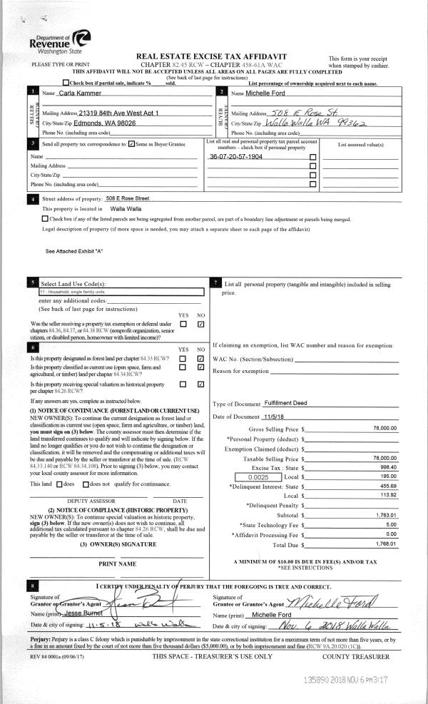
| 3 | 11/06/2018 | FUL | FULFILLMENT DEED | KAMMER CARLA J | FORD MICHELLE | | | $78,000.00 | 135890 | 2018-09238 |
| 4 | 01/04/1996 | WARRANTY D | WARRANTY DEED | | | | | $77,900.00 | 85415 | 2379-600155 |
Payout Agreement
| No payout information available.. |