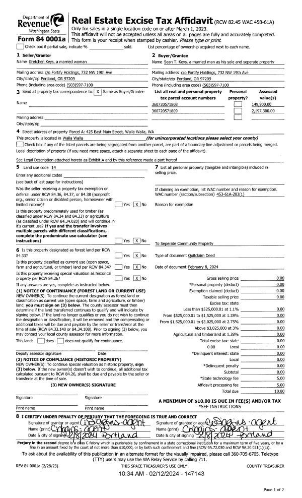
Property
Account |
| Property ID: | 6389 | Abbreviated Legal Description: | CAINS LOT 8 BLK 18 AND TRACTS |
| Parcel Number: | 360720571808 | Agent Code: | |
| Type: | Real | | |
| Tax Area: | 1 - OL-140-F | Land Use Code | 16 |
| Open Space: | N | DFL | N |
| Historic Property: | N | Remodel Property: | N |
| Multi-Family Redevelopment: | N | | |
| Township: | 7 | Section: | 20 |
| Range: | 36 |
Location |
| Address: | 425 E MAIN ST WA 99362 | Mapsco: | |
| Neighborhood: | WW Downtown Core Area #2 | Map ID: | |
| Neighborhood CD: | 5342 |
Owner |
| Name: | KEYS SEAN T | Owner ID: | 70837 |
| Mailing Address: | 17933 NW EVERGREEN PL SUITE 131 BEAVERTON, OR 97006 | % Ownership: | 100.0000000000% |
| | | Exemptions: | |
Taxes and Assessment Details
Property Tax Information as of
02/21/2026
Click on "Statement Details" to expand or collapse a tax statement.
* Please enter a valid date ** Please enter a valid date *
Statement Details |
| | TOTAL: | $0.00 | $0.00 | $0.00 | $0.00 | $0.00 | $0.00 |
|
| | $0.00 | $0.00 | $0.00 | $0.00 | $0.00 | $0.00 |
Values
| (+) Improvement Homesite Value: | + | $0 | |
| (+) Improvement Non-Homesite Value: | + | $0 | |
| (+) Land Homesite Value: | + | $0 | |
| (+) Land Non-Homesite Value: | + | $149,400 | |
| (+) Curr Use (HS): | + | $0 | $0 |
| (+) Curr Use (NHS): | + | $0 | $0 |
| | | -------------------------- | |
| (=) Market Value: | = | $149,400 | |
| (–) Productivity Loss: | – | $0 | |
| | | -------------------------- | |
| (=) Subtotal: | = | $149,400 | |
| (+) Senior Appraised Value: | + | $0 | |
| (+) Non-Senior Appraised Value: | + | $149,400 | |
| | | -------------------------- | |
| (=) Total Appraised Value: | = | $149,400 | |
| (–) Senior Exemption Loss: | – | $0 | |
| (–) Exemption Loss: | – | $0 | |
| | | -------------------------- | |
| (=) Taxable Value: | = | $149,400 | |
Taxing Jurisdiction
| Owner: | KEYS SEAN T | | |
| % Ownership: | 100.0000000000% | | |
| Total Value: | $149,400 | | |
| Tax Area: | 1 - OL-140-F |
| CERFD | CURRENT EXPENSE REFUND 010 | 0.0000000000 | $149,400 | $149,400 | $0.00 | | |
| CURREXP | CURRENT EXPENSE 010 | 1.0175366760 | $149,400 | $149,400 | $152.02 | | |
| HUMNSERV | HUMAN SERVICES 119 | 0.0250000000 | $149,400 | $149,400 | $3.74 | | |
| SLDREL | SOLDIERS RELIEF 121 | 0.0155990005 | $149,400 | $149,400 | $2.33 | | |
| EMERGSER | EMS 147 | 0.3792580840 | $149,400 | $149,400 | $56.66 | | |
| EMSRFD | EMS REFUND 147 | 0.0000000000 | $149,400 | $149,400 | $0.00 | | |
| PORTRFD | PORT REFUND 640 | 0.0000000000 | $149,400 | $149,400 | $0.00 | | |
| PORTWWGEN | PORT OF WW 640 | 0.2460186015 | $149,400 | $149,400 | $36.76 | | |
| SD140BOND | SD #140 BOND 764 | 0.8342371393 | $149,400 | $149,400 | $124.64 | | |
| SD140GEN | SD #140 GENERAL 760 | 2.0646500647 | $149,400 | $149,400 | $308.46 | | |
| ST2 | STATE SCHOOL PART 2 600 | 0.8131451643 | $149,400 | $149,400 | $121.48 | | |
| STATESCHL | STATE SCHOOL 600 | 1.5158548041 | $149,400 | $149,400 | $226.47 | | |
| STREFUND | STATE REFUND LEVY 603 | 0.0000000000 | $149,400 | $149,400 | $0.00 | | |
| CWWBOND | C OF WW BOND 643 | 0.2760494372 | $149,400 | $149,400 | $41.24 | | |
| CWWGEN | CITY OF WW 631 | 1.6100204973 | $149,400 | $149,400 | $240.54 | | |
| CWWRFD | CITY OF WALLA WALLA REFUND 631 | 0.0000000000 | $149,400 | $149,400 | $0.00 | | |
| | Total Tax Rate: | 8.7973694689 | | | | | |
| | | | | Taxes w/Current Exemptions: | $1,314.34 | | |
| | | | | Taxes w/o Exemptions: | $1,314.34 | | |
Improvement / Building
Sketch
| No sketches available for this property. |
Property Image
Land
| 1 | COM 1 | Converted: Commercial | 0.1715 | 7470.00 | 0.00 | 0.00 | 1.00 | $149,400 | $0 |
Roll Value History
| 2026 | N/A | N/A | N/A | N/A | N/A |
| 2025 | $0 | $149,400 | $0 | $149,400 | $149,400 |
| 2024 | $0 | $149,400 | $0 | $149,400 | $149,400 |
| 2023 | $0 | $149,400 | $0 | $149,400 | $149,400 |
| 2022 | $0 | $74,700 | $0 | $74,700 | $74,700 |
| 2021 | $0 | $74,700 | $0 | $74,700 | $74,700 |
| 2020 | $0 | $74,700 | $0 | $74,700 | $74,700 |
| 2019 | $0 | $74,700 | $0 | $74,700 | $74,700 |
| 2018 | $0 | $74,700 | $0 | $74,700 | $74,700 |
| 2017 | $0 | $74,700 | $0 | $74,700 | $74,700 |
| 2016 | $0 | $74,700 | $0 | $74,700 | $74,700 |
| 2015 | $0 | $74,700 | $0 | $74,700 | $74,700 |
| 2014 | $0 | $74,700 | $0 | $74,700 | $74,700 |
| 2013 | $0 | $74,700 | $0 | $74,700 | $74,700 |
| 2012 | $0 | $37,400 | $0 | $0 | $0 |
| 2011 | $0 | $37,400 | $0 | $0 | $0 |
| 2010 | $0 | $37,400 | $0 | $0 | $0 |
| 2009 | $0 | $37,400 | $0 | $0 | $0 |
| 2008 | $0 | $37,400 | $0 | $0 | $0 |
| 2007 | $0 | $37,400 | $0 | $0 | $0 |
Deed and Sales History
| 1 | 02/09/2024 | QCD | QUIT CLAIM DEED | KEYS GRETCHEN | KEYS SEAN T | | | | 147143 | 2024-00749 |
| 2 | 12/28/2021 | DEED | DEED | CV THE VINTAGE LLC | KEYS SEAN T | | | $0.00 | 143138 | 2021-15084 |
| 3 | 12/07/2021 | SWD | STATUTORY WARRANTY DEED | SHREEJI INC | CV THE VINTAGE LLC | | 2-PARCELS | $3,131,730.00 | 143012 | 2021-14406 |
|   | |
| 4 | 11/15/2001 | WARRANTY D | WARRANTY DEED | | | | | $405,000.00 | 98347 | 3230-112417 |
|   | |
Payout Agreement
| No payout information available.. |