Property
Account |
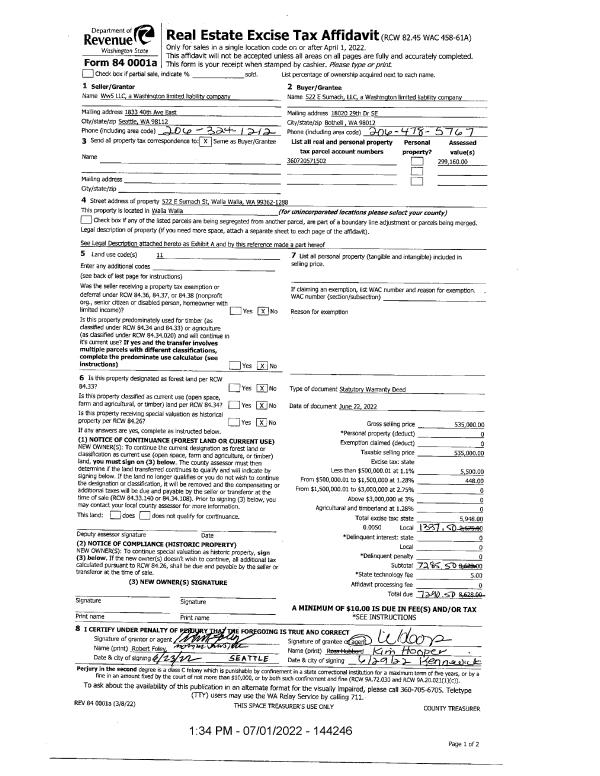
| Property ID: | 6383 | Abbreviated Legal Description: | CAINS LOT 2 BLK 15 AND VAC ALLEY |
| Parcel Number: | 360720571502 | Agent Code: | |
| Type: | Real | | |
| Tax Area: | 1 - OL-140-F | Land Use Code | 13 |
| Open Space: | N | DFL | N |
| Historic Property: | N | Remodel Property: | N |
| Multi-Family Redevelopment: | N | | |
| Township: | 7 | Section: | 20 |
| Range: | 36 |
Location |
| Address: | 522 E SUMACH ST WA 99362 | Mapsco: | |
| Neighborhood: | F Apartment | Map ID: | |
| Neighborhood CD: | 512021 |
Owner |
| Name: | 522 E SUMACH LLC | Owner ID: | 71884 |
| Mailing Address: | 18020 29TH DR SE BOTHELL, WA 98012 | % Ownership: | 100.0000000000% |
| | | Exemptions: | |
Taxes and Assessment Details
Property Tax Information as of
02/21/2026
Click on "Statement Details" to expand or collapse a tax statement.
* Please enter a valid date ** Please enter a valid date *
Statement Details |
| | TOTAL: | $0.00 | $0.00 | $0.00 | $0.00 | $0.00 | $0.00 |
|
| | $0.00 | $0.00 | $0.00 | $0.00 | $0.00 | $0.00 |
Values
| (+) Improvement Homesite Value: | + | $0 | |
| (+) Improvement Non-Homesite Value: | + | $488,740 | |
| (+) Land Homesite Value: | + | $0 | |
| (+) Land Non-Homesite Value: | + | $37,800 | |
| (+) Curr Use (HS): | + | $0 | $0 |
| (+) Curr Use (NHS): | + | $0 | $0 |
| | | -------------------------- | |
| (=) Market Value: | = | $526,540 | |
| (–) Productivity Loss: | – | $0 | |
| | | -------------------------- | |
| (=) Subtotal: | = | $526,540 | |
| (+) Senior Appraised Value: | + | $0 | |
| (+) Non-Senior Appraised Value: | + | $526,540 | |
| | | -------------------------- | |
| (=) Total Appraised Value: | = | $526,540 | |
| (–) Senior Exemption Loss: | – | $0 | |
| (–) Exemption Loss: | – | $0 | |
| | | -------------------------- | |
| (=) Taxable Value: | = | $526,540 | |
Taxing Jurisdiction
| Owner: | 522 E SUMACH LLC | | |
| % Ownership: | 100.0000000000% | | |
| Total Value: | $526,540 | | |
| Tax Area: | 1 - OL-140-F |
| CERFD | CURRENT EXPENSE REFUND 010 | 0.0000000000 | $526,540 | $526,540 | $0.00 | | |
| CURREXP | CURRENT EXPENSE 010 | 1.0175366760 | $526,540 | $526,540 | $535.77 | | |
| HUMNSERV | HUMAN SERVICES 119 | 0.0250000000 | $526,540 | $526,540 | $13.16 | | |
| SLDREL | SOLDIERS RELIEF 121 | 0.0155990005 | $526,540 | $526,540 | $8.21 | | |
| EMERGSER | EMS 147 | 0.3792580840 | $526,540 | $526,540 | $199.69 | | |
| EMSRFD | EMS REFUND 147 | 0.0000000000 | $526,540 | $526,540 | $0.00 | | |
| PORTRFD | PORT REFUND 640 | 0.0000000000 | $526,540 | $526,540 | $0.00 | | |
| PORTWWGEN | PORT OF WW 640 | 0.2460186015 | $526,540 | $526,540 | $129.54 | | |
| SD140BOND | SD #140 BOND 764 | 0.8342371393 | $526,540 | $526,540 | $439.26 | | |
| SD140GEN | SD #140 GENERAL 760 | 2.0646500647 | $526,540 | $526,540 | $1,087.12 | | |
| ST2 | STATE SCHOOL PART 2 600 | 0.8131451643 | $526,540 | $526,540 | $428.15 | | |
| STATESCHL | STATE SCHOOL 600 | 1.5158548041 | $526,540 | $526,540 | $798.16 | | |
| STREFUND | STATE REFUND LEVY 603 | 0.0000000000 | $526,540 | $526,540 | $0.00 | | |
| CWWBOND | C OF WW BOND 643 | 0.2760494372 | $526,540 | $526,540 | $145.35 | | |
| CWWGEN | CITY OF WW 631 | 1.6100204973 | $526,540 | $526,540 | $847.74 | | |
| CWWRFD | CITY OF WALLA WALLA REFUND 631 | 0.0000000000 | $526,540 | $526,540 | $0.00 | | |
| | Total Tax Rate: | 8.7973694689 | | | | | |
| | | | | Taxes w/Current Exemptions: | $4,632.15 | | |
| | | | | Taxes w/o Exemptions: | $4,632.15 | | |
Improvement / Building
| Improvement #1: | RESIDENTIAL | State Code: | 13 | 3650.0 sqft | Value: | $488,740 |
| Exterior Wall: | SIDING | Heating/Cooling: | GRAVITY FURNACE | | Number of Bathrooms: | 5 | Number of Bedrooms: | 5 | | Plumbing: | 15 | Roof Covering: | COMP SHINGLE |
|
| | Type | Description | Class CD | Sub Class CD | Year Built | Area |
| | MA | Main Area | 2 | 30 | 1915 | 3650.0 |
| | UPFL | Upper Floor (included in main area) | 2 | 30 | 1915 | 1599.0 |
| | WOD | Wood Deck | 2 | 30 | 0 | 168.0 |
| | DTG | Detached Garage | 2 | 30 | 0 | 320.0 |
| | GIF | GARAGE INTERIOR FINISH | 2 | 30 | 0 | 320.0 |
| | FBAT | FULL BATH | 2 | 30 | 0 | 1.0 |
| | FIXT | AVERAGE FIXTURE | 2 | 30 | 0 | 2.0 |
| | SI1 | SITE IMPROVEMENT | 2 | 30 | 0 | 2.5 |
Sketch
Property Image
Land
| 1 | RES 1 | Converted: Residential | 0.1653 | 7200.00 | 0.00 | 0.00 | 1.00 | $37,800 | $0 |
Roll Value History
| 2026 | N/A | N/A | N/A | N/A | N/A |
| 2025 | $476,600 | $64,800 | $0 | $541,400 | $541,400 |
| 2024 | $476,600 | $57,600 | $0 | $534,200 | $534,200 |
| 2023 | $488,740 | $37,800 | $0 | $526,540 | $526,540 |
| 2022 | $444,310 | $37,800 | $0 | $482,110 | $482,110 |
| 2021 | $261,360 | $37,800 | $0 | $299,160 | $299,160 |
| 2020 | $237,600 | $37,800 | $0 | $275,400 | $275,400 |
| 2019 | $237,600 | $37,800 | $0 | $275,400 | $275,400 |
| 2018 | $198,000 | $37,800 | $0 | $235,800 | $235,800 |
| 2017 | $214,200 | $21,600 | $0 | $235,800 | $235,800 |
| 2016 | $214,200 | $21,600 | $0 | $235,800 | $235,800 |
| 2015 | $214,200 | $21,600 | $0 | $235,800 | $235,800 |
| 2014 | $214,200 | $21,600 | $0 | $235,800 | $235,800 |
| 2013 | $214,200 | $21,600 | $0 | $235,800 | $235,800 |
| 2012 | $214,200 | $21,600 | $0 | $0 | $0 |
| 2011 | $214,200 | $21,600 | $0 | $0 | $0 |
| 2010 | $214,200 | $21,600 | $0 | $0 | $0 |
| 2009 | $214,200 | $21,600 | $0 | $0 | $0 |
| 2008 | $159,800 | $28,800 | $0 | $0 | $0 |
| 2007 | $159,800 | $28,800 | $0 | $0 | $0 |
Deed and Sales History
| 1 | 07/01/2022 | SWD | STATUTORY WARRANTY DEED | WW5 LLC | 522 E SUMACH LLC | | | $535,000.00 | 144246 | 2022-05611 |
| 2 | 12/19/2007 | WARRANTY D | WARRANTY DEED | CORBIN, PATRICIA A | WW5, LLC | | | $252,000.00 | 114253 | 2007-14434 |
| 3 | 03/24/2005 | WARRANTY D | WARRANTY DEED | GREINER, WILLIAM C ET UX | CORBIN, PATRICIA A | | | $189,000.00 | 107056 | 2005-03330 |
| 4 | 08/01/1979 | WARRANTY D | WARRANTY DEED | | | | | $39,000.00 | 52214 | 1127-909330 |
Payout Agreement
| No payout information available.. |