Property
Account |
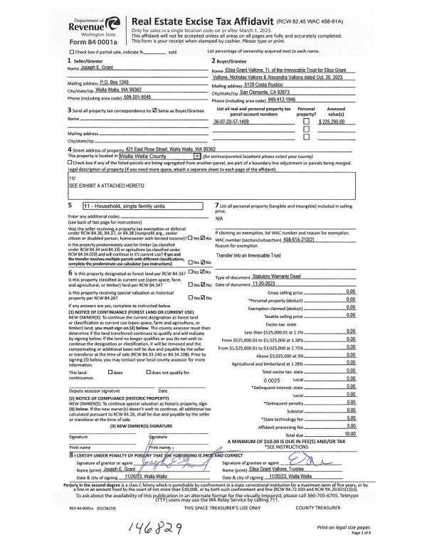
| Property ID: | 6382 | Abbreviated Legal Description: | CAINS TAX 1 LOT 9 BLK 14 PLUS VAC STRIP |
| Parcel Number: | 360720571409 | Agent Code: | |
| Type: | Real | | |
| Tax Area: | 1 - OL-140-F | Land Use Code | 11 |
| Open Space: | N | DFL | N |
| Historic Property: | N | Remodel Property: | N |
| Multi-Family Redevelopment: | N | | |
| Township: | 7 | Section: | 20 |
| Range: | 36 |
Location |
| Address: | 421 E ROSE ST WA 99362 | Mapsco: | |
| Neighborhood: | F SFR | Map ID: | |
| Neighborhood CD: | 512011 |
Owner |
| Name: | GRANT JOSEPH E REVOCABLE LIVING TRUST | Owner ID: | 73972 |
| Mailing Address: | C/O JOSEPH E GRANT PO BOX 1245 WALLA WALLA, WA 99362 | % Ownership: | 100.0000000000% |
| | | Exemptions: | |
Taxes and Assessment Details
Values
| (+) Improvement Homesite Value: | + | $0 | |
| (+) Improvement Non-Homesite Value: | + | $238,840 | |
| (+) Land Homesite Value: | + | $0 | |
| (+) Land Non-Homesite Value: | + | $26,250 | |
| (+) Curr Use (HS): | + | $0 | $0 |
| (+) Curr Use (NHS): | + | $0 | $0 |
| | | -------------------------- | |
| (=) Market Value: | = | $265,090 | |
| (–) Productivity Loss: | – | $0 | |
| | | -------------------------- | |
| (=) Subtotal: | = | $265,090 | |
| (+) Senior Appraised Value: | + | $0 | |
| (+) Non-Senior Appraised Value: | + | $265,090 | |
| | | -------------------------- | |
| (=) Total Appraised Value: | = | $265,090 | |
| (–) Senior Exemption Loss: | – | $0 | |
| (–) Exemption Loss: | – | $0 | |
| | | -------------------------- | |
| (=) Taxable Value: | = | $265,090 | |
Taxing Jurisdiction
| Owner: | GRANT JOSEPH E REVOCABLE LIVING TRUST | | |
| % Ownership: | 100.0000000000% | | |
| Total Value: | $265,090 | | |
| Tax Area: | 1 - OL-140-F |
| CERFD | CURRENT EXPENSE REFUND 010 | 0.0000000000 | $265,090 | $265,090 | $0.00 | | |
| CURREXP | CURRENT EXPENSE 010 | 1.0175366760 | $265,090 | $265,090 | $269.74 | | |
| HUMNSERV | HUMAN SERVICES 119 | 0.0250000000 | $265,090 | $265,090 | $6.63 | | |
| SLDREL | SOLDIERS RELIEF 121 | 0.0155990005 | $265,090 | $265,090 | $4.14 | | |
| EMERGSER | EMS 147 | 0.3792580840 | $265,090 | $265,090 | $100.54 | | |
| EMSRFD | EMS REFUND 147 | 0.0000000000 | $265,090 | $265,090 | $0.00 | | |
| PORTRFD | PORT REFUND 640 | 0.0000000000 | $265,090 | $265,090 | $0.00 | | |
| PORTWWGEN | PORT OF WW 640 | 0.2460186015 | $265,090 | $265,090 | $65.22 | | |
| SD140BOND | SD #140 BOND 764 | 0.8342371393 | $265,090 | $265,090 | $221.15 | | |
| SD140GEN | SD #140 GENERAL 760 | 2.0646500647 | $265,090 | $265,090 | $547.32 | | |
| ST2 | STATE SCHOOL PART 2 600 | 0.8131451643 | $265,090 | $265,090 | $215.56 | | |
| STATESCHL | STATE SCHOOL 600 | 1.5158548041 | $265,090 | $265,090 | $401.84 | | |
| STREFUND | STATE REFUND LEVY 603 | 0.0000000000 | $265,090 | $265,090 | $0.00 | | |
| CWWBOND | C OF WW BOND 643 | 0.2760494372 | $265,090 | $265,090 | $73.18 | | |
| CWWGEN | CITY OF WW 631 | 1.6100204973 | $265,090 | $265,090 | $426.80 | | |
| CWWRFD | CITY OF WALLA WALLA REFUND 631 | 0.0000000000 | $265,090 | $265,090 | $0.00 | | |
| | Total Tax Rate: | 8.7973694689 | | | | | |
| | | | | Taxes w/Current Exemptions: | $2,332.12 | | |
| | | | | Taxes w/o Exemptions: | $2,332.12 | | |
Improvement / Building
| Improvement #1: | RESIDENTIAL | State Code: | 11 | 1033.0 sqft | Value: | $238,840 |
| Exterior Wall: | STUCCO | Heating/Cooling: | HEAT PUMP | | Number of Bathrooms: | 2 | Number of Bedrooms: | 2 | | Plumbing: | 9 | Roof Covering: | BUILT-UP ROCK |
|
| | Type | Description | Class CD | Sub Class CD | Year Built | Area |
| | MA | Main Area | 1 | 30 | 1940 | 1033.0 |
| | SI1 | SITE IMPROVEMENT | 1 | 30 | 0 | 1.0 |
| | BASE | BASEMENT | 1 | 30 | 1940 | 1033.0 |
| | BPF | BASEMENT -PARTITIONED FINISH | 1 | 30 | 1940 | 1033.0 |
| | DTG | Detached Garage | 1 | 30 | 1940 | 400.0 |
| | OPS | OPEN PORCH W/STEPS | 1 | 30 | 1940 | 16.0 |
Sketch
Property Image
Land
| 1 | RES 1 | Converted: Residential | 0.1148 | 5000.00 | 0.00 | 0.00 | 1.00 | $26,250 | $0 |
Roll Value History
| 2026 | N/A | N/A | N/A | N/A | N/A |
| 2025 | $274,880 | $45,000 | $0 | $319,880 | $319,880 |
| 2024 | $219,900 | $45,000 | $0 | $264,900 | $264,900 |
| 2023 | $238,840 | $26,250 | $0 | $265,090 | $265,090 |
| 2022 | $199,040 | $26,250 | $0 | $225,290 | $225,290 |
| 2021 | $159,230 | $26,250 | $0 | $185,480 | $185,480 |
| 2020 | $122,480 | $26,250 | $0 | $148,730 | $148,730 |
| 2019 | $122,480 | $26,250 | $0 | $148,730 | $148,730 |
| 2018 | $116,650 | $26,250 | $0 | $142,900 | $142,900 |
| 2017 | $119,730 | $15,000 | $0 | $134,730 | $134,730 |
| 2016 | $119,730 | $15,000 | $0 | $134,730 | $134,730 |
| 2015 | $114,030 | $15,000 | $0 | $129,030 | $129,030 |
| 2014 | $108,600 | $15,000 | $0 | $123,600 | $123,600 |
| 2013 | $108,600 | $15,000 | $0 | $123,600 | $123,600 |
| 2012 | $108,700 | $15,000 | $0 | $0 | $0 |
| 2011 | $92,600 | $15,000 | $0 | $0 | $0 |
| 2010 | $92,600 | $15,000 | $0 | $0 | $0 |
| 2009 | $104,500 | $15,000 | $0 | $0 | $0 |
| 2008 | $104,500 | $15,000 | $0 | $0 | $0 |
| 2007 | $104,500 | $15,000 | $0 | $0 | $0 |
Deed and Sales History
| 1 | 03/21/2024 | WARRANTY D | WARRANTY DEED | GRANT JOSEPH E | VALLONE ELISA GRANT & NICHOLAS VALLONE & | | | | 147274 | 2024-01368 |
| 2 | 11/20/2023 | WARRANTY D | WARRANTY DEED | GRANT JOSEPH E | VALLONE ELISA GRANT & NICHOLAS VALLONE & | | | | 146829 | 2023-06802 |
| 3 | 11/16/2023 | WARRANTY D | WARRANTY DEED | GRANT JOSEPH E | GRANT JOSEPH E IRREVOCABLE TRUST | | | | 146809 | 2023-06726 |
| 4 | 10/24/2023 | WARRANTY D | WARRANTY DEED | GRANT JOSEPH E REVOCABLE LIVING TRUST | GRANT JOSEPH E | | | | 146682 | 2023-06247 |
| 5 | 07/27/2023 | WARRANTY D | WARRANTY DEED | GRANT JOSEPH E | GRANT JOSEPH E REVOCABLE LIVING TRUST | | | | 146224 | 2023-04266 |
| 6 | 06/17/2015 | SWD | STATUTORY WARRANTY DEED | WENDLER LESLIE D ESTATE OF | GRANT JOSEPH E | | | $139,900.00 | 128190 | 2015-05089 |
| 7 | 01/01/1957 | WARRANTY D | WARRANTY DEED | | | | | $0.00 | 0 | 2743-799000 |
Payout Agreement
| No payout information available.. |