Property
Account |
| Property ID: | 6375 | Abbreviated Legal Description: | CAINS LOT 6 BLK 11 |
| Parcel Number: | 360720571106 | Agent Code: | |
| Type: | Real | | |
| Tax Area: | 1 - OL-140-F | Land Use Code | 11 |
| Open Space: | N | DFL | N |
| Historic Property: | N | Remodel Property: | N |
| Multi-Family Redevelopment: | N | | |
| Township: | 7 | Section: | 20 |
| Range: | 36 |
Location |
| Address: | 503 E SUMACH ST WA 99362 | Mapsco: | |
| Neighborhood: | F SFR | Map ID: | |
| Neighborhood CD: | 512011 |
Owner |
| Name: | MIC PROPERTIES LLC | Owner ID: | 69529 |
| Mailing Address: | 503 E SUMACH ST WALLA WALLA, WA 99362 | % Ownership: | 100.0000000000% |
| | | Exemptions: | |
Taxes and Assessment Details
Property Tax Information as of
02/21/2026
Click on "Statement Details" to expand or collapse a tax statement.
* Please enter a valid date ** Please enter a valid date *
Statement Details |
| | TOTAL: | $0.00 | $0.00 | $0.00 | $0.00 | $0.00 | $0.00 |
|
| | $0.00 | $0.00 | $0.00 | $0.00 | $0.00 | $0.00 |
Values
| (+) Improvement Homesite Value: | + | $0 | |
| (+) Improvement Non-Homesite Value: | + | $287,200 | |
| (+) Land Homesite Value: | + | $0 | |
| (+) Land Non-Homesite Value: | + | $37,800 | |
| (+) Curr Use (HS): | + | $0 | $0 |
| (+) Curr Use (NHS): | + | $0 | $0 |
| | | -------------------------- | |
| (=) Market Value: | = | $325,000 | |
| (–) Productivity Loss: | – | $0 | |
| | | -------------------------- | |
| (=) Subtotal: | = | $325,000 | |
| (+) Senior Appraised Value: | + | $0 | |
| (+) Non-Senior Appraised Value: | + | $325,000 | |
| | | -------------------------- | |
| (=) Total Appraised Value: | = | $325,000 | |
| (–) Senior Exemption Loss: | – | $0 | |
| (–) Exemption Loss: | – | $0 | |
| | | -------------------------- | |
| (=) Taxable Value: | = | $325,000 | |
Taxing Jurisdiction
| Owner: | MIC PROPERTIES LLC | | |
| % Ownership: | 100.0000000000% | | |
| Total Value: | $325,000 | | |
| Tax Area: | 1 - OL-140-F |
| CERFD | CURRENT EXPENSE REFUND 010 | 0.0000000000 | $325,000 | $325,000 | $0.00 | | |
| CURREXP | CURRENT EXPENSE 010 | 1.0175366760 | $325,000 | $325,000 | $330.70 | | |
| HUMNSERV | HUMAN SERVICES 119 | 0.0250000000 | $325,000 | $325,000 | $8.13 | | |
| SLDREL | SOLDIERS RELIEF 121 | 0.0155990005 | $325,000 | $325,000 | $5.07 | | |
| EMERGSER | EMS 147 | 0.3792580840 | $325,000 | $325,000 | $123.26 | | |
| EMSRFD | EMS REFUND 147 | 0.0000000000 | $325,000 | $325,000 | $0.00 | | |
| PORTRFD | PORT REFUND 640 | 0.0000000000 | $325,000 | $325,000 | $0.00 | | |
| PORTWWGEN | PORT OF WW 640 | 0.2460186015 | $325,000 | $325,000 | $79.96 | | |
| SD140BOND | SD #140 BOND 764 | 0.8342371393 | $325,000 | $325,000 | $271.13 | | |
| SD140GEN | SD #140 GENERAL 760 | 2.0646500647 | $325,000 | $325,000 | $671.01 | | |
| ST2 | STATE SCHOOL PART 2 600 | 0.8131451643 | $325,000 | $325,000 | $264.27 | | |
| STATESCHL | STATE SCHOOL 600 | 1.5158548041 | $325,000 | $325,000 | $492.65 | | |
| STREFUND | STATE REFUND LEVY 603 | 0.0000000000 | $325,000 | $325,000 | $0.00 | | |
| CWWBOND | C OF WW BOND 643 | 0.2760494372 | $325,000 | $325,000 | $89.72 | | |
| CWWGEN | CITY OF WW 631 | 1.6100204973 | $325,000 | $325,000 | $523.26 | | |
| CWWRFD | CITY OF WALLA WALLA REFUND 631 | 0.0000000000 | $325,000 | $325,000 | $0.00 | | |
| | Total Tax Rate: | 8.7973694689 | | | | | |
| | | | | Taxes w/Current Exemptions: | $2,859.16 | | |
| | | | | Taxes w/o Exemptions: | $2,859.16 | | |
Improvement / Building
| Improvement #1: | RESIDENTIAL | State Code: | 11 | 1615.0 sqft | Value: | $287,200 |
| Exterior Wall: | SIDING | Heating/Cooling: | FLOOR FURNACE | | Number of Bathrooms: | 3 | Number of Bedrooms: | 3 | | Plumbing: | 15 | Roof Covering: | COMP SHINGLE |
|
| | Type | Description | Class CD | Sub Class CD | Year Built | Area |
| | MA | Main Area | 4 | 35 | 1910 | 1615.0 |
| | CPC | COVERED CARPORT/PATIO | 4 | 35 | 2004 | 288.0 |
| | RCD | WOOD DECK W/ROOF, CEILED | 4 | 35 | 0 | 521.0 |
| | SI1 | SITE IMPROVEMENT | 4 | 35 | 0 | 1.5 |
| | UPFL | Upper Floor (included in main area) | 4 | 35 | 0 | 604.0 |
Sketch
Property Image
Land
| 1 | RES 1 | Converted: Residential | 0.1653 | 7200.00 | 0.00 | 0.00 | 1.00 | $37,800 | $0 |
Roll Value History
| 2026 | N/A | N/A | N/A | N/A | N/A |
| 2025 | $331,250 | $64,800 | $0 | $396,050 | $396,050 |
| 2024 | $331,250 | $64,800 | $0 | $396,050 | $396,050 |
| 2023 | $287,200 | $37,800 | $0 | $325,000 | $325,000 |
| 2022 | $287,200 | $37,800 | $0 | $325,000 | $325,000 |
| 2021 | $239,330 | $37,800 | $0 | $277,130 | $277,130 |
| 2020 | $184,100 | $37,800 | $0 | $221,900 | $221,900 |
| 2019 | $184,100 | $37,800 | $0 | $221,900 | $221,900 |
| 2018 | $184,100 | $37,800 | $0 | $221,900 | $221,900 |
| 2017 | $187,600 | $21,600 | $0 | $209,200 | $209,200 |
| 2016 | $187,600 | $21,600 | $0 | $209,200 | $209,200 |
| 2015 | $187,600 | $21,600 | $0 | $209,200 | $209,200 |
| 2014 | $134,000 | $21,600 | $0 | $155,600 | $155,600 |
| 2013 | $134,000 | $21,600 | $0 | $155,600 | $155,600 |
| 2012 | $134,000 | $21,600 | $0 | $0 | $0 |
| 2011 | $134,000 | $21,600 | $0 | $0 | $0 |
| 2010 | $142,200 | $21,600 | $0 | $0 | $0 |
| 2009 | $160,400 | $21,600 | $0 | $0 | $0 |
| 2008 | $148,400 | $21,600 | $0 | $0 | $0 |
| 2007 | $148,400 | $21,600 | $0 | $0 | $0 |
Deed and Sales History
| 1 | 06/01/2021 | QCD | QUIT CLAIM DEED | CARROLL RYAN J & JESSICA GRAHAM | MIC PROPERTIES LLC | | | $0.00 | 141680 | 2021-06599 |
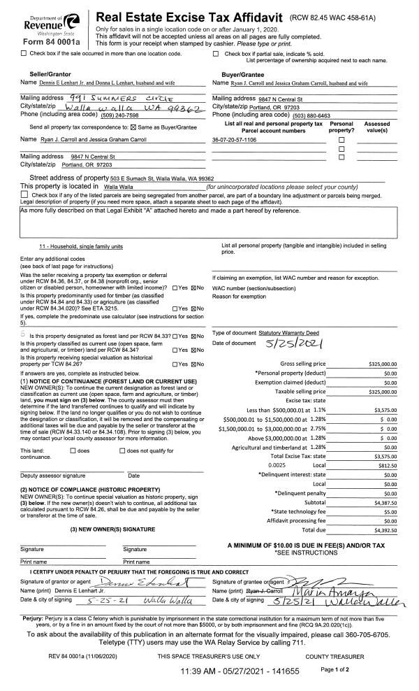
| 2 | 05/27/2021 | SWD | STATUTORY WARRANTY DEED | LENHART DENNIS E JR & DONNA L | CARROLL RYAN J & JESSICA GRAHAM | | | $325,000.00 | 141655 | 2021-06468 |
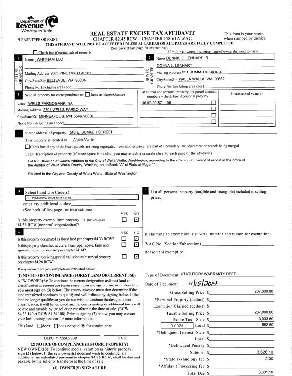
| 3 | 11/20/2014 | SWD | STATUTORY WARRANTY DEED | WHITHAM LLC | LENHART DENNIS E JR & DONNA L | | | $237,000.00 | 126976 | 2014-08436 |
| 4 | 01/13/2005 | WARRANTY D | WARRANTY DEED | ARCEO, CARLOS | WHITHAM LLC | | | $179,900.00 | 106594 | 2005-00513 |
| 5 | 03/23/2004 | WARRANTY D | WARRANTY DEED | HOPSON, DALE LEON | ARCEO, CARLOS | | | $38,000.00 | 104331 | 2004-03037 |
| 6 | 07/21/1981 | QCD | QUIT CLAIM DEED | | | | | $25,000.00 | 0 | 1298-105404 |
Payout Agreement
| No payout information available.. |