Property
Account |
| Property ID: | 6356 | Abbreviated Legal Description: | CAINS TAX 4 LOT 8 BLK 1 |
| Parcel Number: | 360720570114 | Agent Code: | |
| Type: | Real | | |
| Tax Area: | 1 - OL-140-F | Land Use Code | 54 |
| Open Space: | N | DFL | N |
| Historic Property: | N | Remodel Property: | N |
| Multi-Family Redevelopment: | N | | |
| Township: | 7 | Section: | 20 |
| Range: | 36 |
Location |
| Address: | 113 E MAIN ST WA 99362 | Mapsco: | |
| Neighborhood: | WW Downtown Core Area #1 | Map ID: | |
| Neighborhood CD: | 5341 |
Owner |
| Name: | BLOCK HOLDINGS LLC | Owner ID: | 68040 |
| Mailing Address: | 117 E ROSE ST WALLA WALLA, WA 99362 | % Ownership: | 100.0000000000% |
| | | Exemptions: | |
Taxes and Assessment Details
Values
| (+) Improvement Homesite Value: | + | $0 | |
| (+) Improvement Non-Homesite Value: | + | $106,900 | |
| (+) Land Homesite Value: | + | $0 | |
| (+) Land Non-Homesite Value: | + | $44,800 | |
| (+) Curr Use (HS): | + | $0 | $0 |
| (+) Curr Use (NHS): | + | $0 | $0 |
| | | -------------------------- | |
| (=) Market Value: | = | $151,700 | |
| (–) Productivity Loss: | – | $0 | |
| | | -------------------------- | |
| (=) Subtotal: | = | $151,700 | |
| (+) Senior Appraised Value: | + | $0 | |
| (+) Non-Senior Appraised Value: | + | $151,700 | |
| | | -------------------------- | |
| (=) Total Appraised Value: | = | $151,700 | |
| (–) Senior Exemption Loss: | – | $0 | |
| (–) Exemption Loss: | – | $0 | |
| | | -------------------------- | |
| (=) Taxable Value: | = | $151,700 | |
Taxing Jurisdiction
| Owner: | BLOCK HOLDINGS LLC | | |
| % Ownership: | 100.0000000000% | | |
| Total Value: | $151,700 | | |
| Tax Area: | 1 - OL-140-F |
| CERFD | CURRENT EXPENSE REFUND 010 | 0.0000000000 | $151,700 | $151,700 | $0.00 | | |
| CURREXP | CURRENT EXPENSE 010 | 1.0175366760 | $151,700 | $151,700 | $154.36 | | |
| HUMNSERV | HUMAN SERVICES 119 | 0.0250000000 | $151,700 | $151,700 | $3.79 | | |
| SLDREL | SOLDIERS RELIEF 121 | 0.0155990005 | $151,700 | $151,700 | $2.37 | | |
| EMERGSER | EMS 147 | 0.3792580840 | $151,700 | $151,700 | $57.53 | | |
| EMSRFD | EMS REFUND 147 | 0.0000000000 | $151,700 | $151,700 | $0.00 | | |
| PORTRFD | PORT REFUND 640 | 0.0000000000 | $151,700 | $151,700 | $0.00 | | |
| PORTWWGEN | PORT OF WW 640 | 0.2460186015 | $151,700 | $151,700 | $37.32 | | |
| SD140BOND | SD #140 BOND 764 | 0.8342371393 | $151,700 | $151,700 | $126.55 | | |
| SD140GEN | SD #140 GENERAL 760 | 2.0646500647 | $151,700 | $151,700 | $313.21 | | |
| ST2 | STATE SCHOOL PART 2 600 | 0.8131451643 | $151,700 | $151,700 | $123.35 | | |
| STATESCHL | STATE SCHOOL 600 | 1.5158548041 | $151,700 | $151,700 | $229.96 | | |
| STREFUND | STATE REFUND LEVY 603 | 0.0000000000 | $151,700 | $151,700 | $0.00 | | |
| CWWBOND | C OF WW BOND 643 | 0.2760494372 | $151,700 | $151,700 | $41.88 | | |
| CWWGEN | CITY OF WW 631 | 1.6100204973 | $151,700 | $151,700 | $244.24 | | |
| CWWRFD | CITY OF WALLA WALLA REFUND 631 | 0.0000000000 | $151,700 | $151,700 | $0.00 | | |
| | Total Tax Rate: | 8.7973694689 | | | | | |
| | | | | Taxes w/Current Exemptions: | $1,334.56 | | |
| | | | | Taxes w/o Exemptions: | $1,334.56 | | |
Improvement / Building
| Improvement #1: | COMMERCIAL | State Code: | 54 | 2400.0 sqft | Value: | $106,900 |
| | Type | Description | Class CD | Sub Class CD | Year Built | Area |
| | MA | Main Area | D | | 1930 | 2400.0 |
| | CPC | COVERED CARPORT/PATIO | D | * | 1930 | 160.0 |
| | SI1 | SITE IMPROVEMENT | D | * | 1930 | 4.0 |
| | UPFL | Upper Floor (included in main area) | D | * | 1930 | 600.0 |
Sketch
Property Image
Land
| 1 | COM 1 | Converted: Commercial | 0.0572 | 2490.00 | 0.00 | 0.00 | 1.00 | $44,800 | $0 |
Roll Value History
| 2026 | N/A | N/A | N/A | N/A | N/A |
| 2025 | $351,820 | $44,800 | $0 | $396,620 | $396,620 |
| 2024 | $106,900 | $44,800 | $0 | $151,700 | $151,700 |
| 2023 | $106,900 | $44,800 | $0 | $151,700 | $151,700 |
| 2022 | $106,900 | $44,800 | $0 | $151,700 | $151,700 |
| 2021 | $255,180 | $44,800 | $0 | $299,980 | $299,980 |
| 2020 | $255,180 | $44,800 | $0 | $299,980 | $299,980 |
| 2019 | $255,180 | $44,800 | $0 | $299,980 | $299,980 |
| 2018 | $255,180 | $44,800 | $0 | $299,980 | $299,980 |
| 2017 | $255,180 | $44,820 | $0 | $300,000 | $300,000 |
| 2016 | $255,180 | $44,820 | $0 | $300,000 | $300,000 |
| 2015 | $202,500 | $29,900 | $0 | $232,400 | $232,400 |
| 2014 | $202,500 | $29,900 | $0 | $232,400 | $232,400 |
| 2013 | $202,500 | $29,900 | $0 | $232,400 | $232,400 |
| 2012 | $202,000 | $24,900 | $0 | $0 | $0 |
| 2011 | $202,000 | $24,900 | $0 | $0 | $0 |
| 2010 | $202,000 | $24,900 | $0 | $0 | $0 |
| 2009 | $204,500 | $22,400 | $0 | $0 | $0 |
| 2008 | $204,500 | $22,400 | $0 | $0 | $0 |
| 2007 | $204,500 | $22,400 | $0 | $0 | $0 |
Deed and Sales History
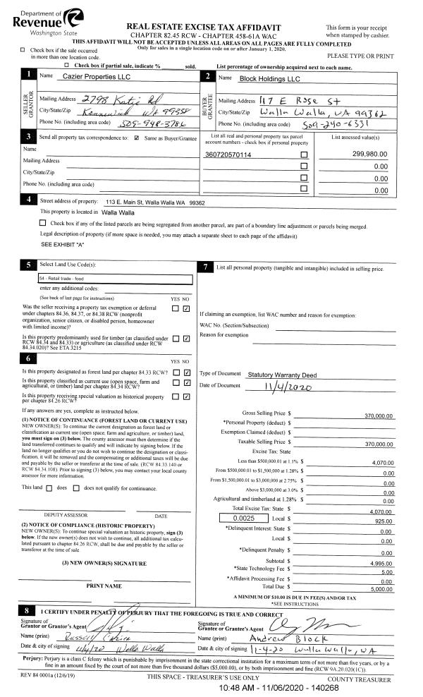
| 1 | 11/06/2020 | SWD | STATUTORY WARRANTY DEED | CAZIER PROPERTIES LLC | BLOCK HOLDINGS LLC | | | $370,000.00 | 140268 | 2020-11642 |
| 2 | 04/27/2017 | QCD | QUIT CLAIM DEED | CAZIER RUSSELL L & JOY | CAZIER PROPERTIES LLC | | | $0.00 | 132665 | 2017-04869 |
| 3 | 06/13/2017 | QCD | QUIT CLAIM DEED | CAZIER ENTERPRISES | CAZIER PROPERTIES LLC | | | $60,634.00 | 132590 | 2017-04514 |
| 4 | 12/06/2013 | FUL | FULFILLMENT DEED | CAZIER ENTERPRISES | | | | | 0 | 2013-11759 |
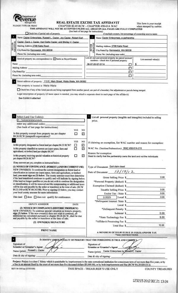
| 5 | 12/21/2012 | QCD | QUIT CLAIM DEED | CAZIER, RUSSELL & JOY | CAZIER ENTERPRISES | | | $0.00 | 123215 | 2012-11458 |
| 6 | 04/05/2005 | WARRANTY D | WARRANTY DEED | SCHREINDL LIVING TRUST | CAZIER ENTERPRISES | | | $250,000.00 | 107163 | 2005-03828 |
| 7 | 07/01/1997 | WARRANTY D | WARRANTY DEED | | | | | $150,000.00 | 88437 | 2539-705944 |
Payout Agreement
| No payout information available.. |