Property
Account |
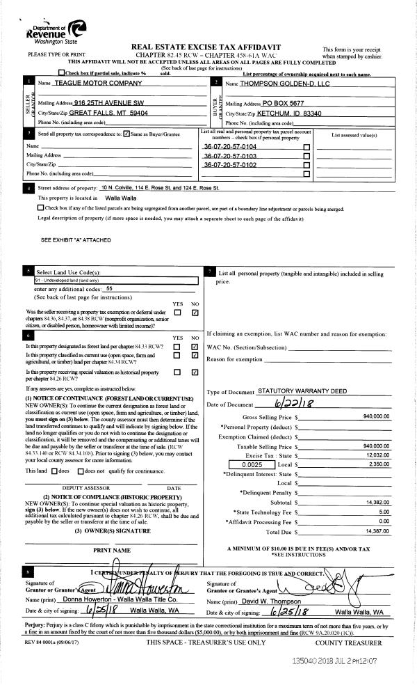
| Property ID: | 6354 | Abbreviated Legal Description: | CAINS LOTS 4 AND 5 BLK 1 PLUS STRIP ON S |
| Parcel Number: | 360720570104 | Agent Code: | |
| Type: | Real | | |
| Tax Area: | 1 - OL-140-F | Land Use Code | 52 |
| Open Space: | N | DFL | N |
| Historic Property: | N | Remodel Property: | N |
| Multi-Family Redevelopment: | N | | |
| Township: | 7 | Section: | 20 |
| Range: | 36 |
Location |
| Address: | 60 N COLVILLE ST WALLA WALLA, WA 99362 | Mapsco: | |
| Neighborhood: | WW Downtown Core Area #2 | Map ID: | |
| Neighborhood CD: | 5342 |
Owner |
| Name: | THOMPSON GOLDEN-D LLC | Owner ID: | 63441 |
| Mailing Address: | PO BOX 398 WALLA WALLA, WA 99362 | % Ownership: | 100.0000000000% |
| | | Exemptions: | |
Taxes and Assessment Details
Values
| (+) Improvement Homesite Value: | + | $0 | |
| (+) Improvement Non-Homesite Value: | + | $1,234,200 | |
| (+) Land Homesite Value: | + | $0 | |
| (+) Land Non-Homesite Value: | + | $164,300 | |
| (+) Curr Use (HS): | + | $0 | $0 |
| (+) Curr Use (NHS): | + | $0 | $0 |
| | | -------------------------- | |
| (=) Market Value: | = | $1,398,500 | |
| (–) Productivity Loss: | – | $0 | |
| | | -------------------------- | |
| (=) Subtotal: | = | $1,398,500 | |
| (+) Senior Appraised Value: | + | $0 | |
| (+) Non-Senior Appraised Value: | + | $1,398,500 | |
| | | -------------------------- | |
| (=) Total Appraised Value: | = | $1,398,500 | |
| (–) Senior Exemption Loss: | – | $0 | |
| (–) Exemption Loss: | – | $0 | |
| | | -------------------------- | |
| (=) Taxable Value: | = | $1,398,500 | |
Taxing Jurisdiction
| Owner: | THOMPSON GOLDEN-D LLC | | |
| % Ownership: | 100.0000000000% | | |
| Total Value: | $1,398,500 | | |
| Tax Area: | 1 - OL-140-F |
| CERFD | CURRENT EXPENSE REFUND 010 | 0.0000000000 | $1,398,500 | $1,398,500 | $0.00 | | |
| CURREXP | CURRENT EXPENSE 010 | 0.9851088983 | $1,398,500 | $1,398,500 | $1,377.67 | | |
| HUMNSERV | HUMAN SERVICES 119 | 0.0250000000 | $1,398,500 | $1,398,500 | $34.96 | | |
| SLDREL | SOLDIERS RELIEF 121 | 0.0155990000 | $1,398,500 | $1,398,500 | $21.82 | | |
| EMERGSER | EMS 147 | 0.3676811629 | $1,398,500 | $1,398,500 | $514.20 | | |
| EMSRFD | EMS REFUND 147 | 0.0000000000 | $1,398,500 | $1,398,500 | $0.00 | | |
| PORTRFD | PORT REFUND 640 | 0.0000000000 | $1,398,500 | $1,398,500 | $0.00 | | |
| PORTWWGEN | PORT OF WW 640 | 0.2344301070 | $1,398,500 | $1,398,500 | $327.85 | | |
| SD140BOND | SD #140 BOND 764 | 0.8032434458 | $1,398,500 | $1,398,500 | $1,123.34 | | |
| SD140CAP | SD #140 CAP 762 | 0.3840034221 | $1,398,500 | $1,398,500 | $537.03 | | |
| SD140GEN | SD #140 GENERAL 760 | 2.4999999996 | $1,398,500 | $1,398,500 | $3,496.25 | | |
| ST2 | STATE SCHOOL PART 2 600 | 0.8853714103 | $1,398,500 | $1,398,500 | $1,238.19 | | |
| STATESCHL | STATE SCHOOL 600 | 1.6424571473 | $1,398,500 | $1,398,500 | $2,296.98 | | |
| STREFUND | STATE REFUND LEVY 603 | 0.0000000000 | $1,398,500 | $1,398,500 | $0.00 | | |
| CWWBOND | C OF WW BOND 643 | 0.2642134255 | $1,398,500 | $1,398,500 | $369.50 | | |
| CWWGEN | CITY OF WW 631 | 1.6110494978 | $1,398,500 | $1,398,500 | $2,253.05 | | |
| CWWRFD | CITY OF WALLA WALLA REFUND 631 | 0.0000000000 | $1,398,500 | $1,398,500 | $0.00 | | |
| | Total Tax Rate: | 9.7181575166 | | | | | |
| | | | | Taxes w/Current Exemptions: | $13,590.84 | | |
| | | | | Taxes w/o Exemptions: | $13,590.84 | | |
Improvement / Building
| Improvement #1: | COMMERCIAL | State Code: | 52 | 14400.0 sqft | Value: | $1,234,200 |
| | Type | Description | Class CD | Sub Class CD | Year Built | Area |
| | MA | Main Area | D | | 1945 | 14400.0 |
| | SI1 | SITE IMPROVEMENT | D | * | 1945 | 6.0 |
Sketch
Property Image
Land
| 1 | COM 1 | Converted: Commercial | 0.3430 | 14940.00 | 0.00 | 0.00 | 1.00 | $164,300 | $0 |
Roll Value History
| 2026 | N/A | N/A | N/A | N/A | N/A |
| 2025 | $1,234,200 | $164,300 | $0 | $1,398,500 | $1,398,500 |
| 2024 | $915,700 | $164,300 | $0 | $1,080,000 | $1,080,000 |
| 2023 | $916,000 | $164,300 | $0 | $1,080,300 | $1,080,300 |
| 2022 | $916,000 | $164,300 | $0 | $1,080,300 | $1,080,300 |
| 2021 | $916,000 | $164,300 | $0 | $1,080,300 | $1,080,300 |
| 2020 | $916,000 | $164,300 | $0 | $1,080,300 | $1,080,300 |
| 2019 | $780,200 | $164,300 | $0 | $944,500 | $944,500 |
| 2018 | $480,200 | $164,300 | $0 | $644,500 | $644,500 |
| 2017 | $423,860 | $164,340 | $0 | $588,200 | $588,200 |
| 2016 | $423,860 | $164,340 | $0 | $588,200 | $588,200 |
| 2015 | $423,900 | $164,300 | $0 | $588,200 | $588,200 |
| 2014 | $423,900 | $164,300 | $0 | $588,200 | $588,200 |
| 2013 | $423,900 | $164,300 | $0 | $588,200 | $588,200 |
| 2012 | $420,200 | $164,300 | $0 | $0 | $0 |
| 2011 | $420,200 | $164,300 | $0 | $0 | $0 |
| 2010 | $121,000 | $164,300 | $0 | $0 | $0 |
| 2009 | $180,700 | $104,600 | $0 | $0 | $0 |
| 2008 | $180,700 | $104,600 | $0 | $0 | $0 |
| 2007 | $180,700 | $104,600 | $0 | $0 | $0 |
Deed and Sales History
| 1 | 07/02/2018 | SWD | STATUTORY WARRANTY DEED | TEAGUE MOTOR CO | THOMPSON GOLDEN-D LLC | | 3-PARCELS | $940,000.00 | 135040 | 2018-05292 |
|   | |
| 2 | 02/27/2018 | SURVEY | SURVEY | | | 13 | 69 | | 0 | 2018-01582 |
| 3 | 12/30/1983 | WARRANTY D | WARRANTY DEED | | | | | $150,000.00 | 0 | 1418-400024 |
|   | |
Payout Agreement
| No payout information available.. |