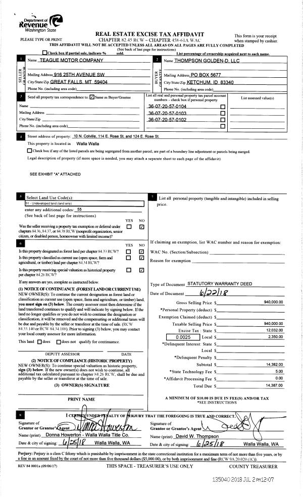
Property
Account |
| Property ID: | 6353 | Abbreviated Legal Description: | CAINS PLUS STRIP ON S LOT 3 BLK 1 |
| Parcel Number: | 360720570103 | Agent Code: | |
| Type: | Real | | |
| Tax Area: | 1 - OL-140-F | Land Use Code | 46 |
| Open Space: | N | DFL | N |
| Historic Property: | N | Remodel Property: | N |
| Multi-Family Redevelopment: | N | | |
| Township: | 7 | Section: | 20 |
| Range: | 36 |
Location |
| Address: | 114 E ROSE ST WA 99362 | Mapsco: | |
| Neighborhood: | WW Downtown Core Area #2 | Map ID: | |
| Neighborhood CD: | 5342 |
Owner |
| Name: | THOMPSON GOLDEN-D LLC | Owner ID: | 63441 |
| Mailing Address: | PO BOX 398 WALLA WALLA, WA 99362 | % Ownership: | 100.0000000000% |
| | | Exemptions: | |
Taxes and Assessment Details
Property Tax Information as of
02/21/2026
Click on "Statement Details" to expand or collapse a tax statement.
* Please enter a valid date ** Please enter a valid date *
Statement Details |
| | TOTAL: | $0.00 | $0.00 | $0.00 | $0.00 | $0.00 | $0.00 |
|
| | $0.00 | $0.00 | $0.00 | $0.00 | $0.00 | $0.00 |
Values
| (+) Improvement Homesite Value: | + | $0 | |
| (+) Improvement Non-Homesite Value: | + | $6,000 | |
| (+) Land Homesite Value: | + | $0 | |
| (+) Land Non-Homesite Value: | + | $82,170 | |
| (+) Curr Use (HS): | + | $0 | $0 |
| (+) Curr Use (NHS): | + | $0 | $0 |
| | | -------------------------- | |
| (=) Market Value: | = | $88,170 | |
| (–) Productivity Loss: | – | $0 | |
| | | -------------------------- | |
| (=) Subtotal: | = | $88,170 | |
| (+) Senior Appraised Value: | + | $0 | |
| (+) Non-Senior Appraised Value: | + | $88,170 | |
| | | -------------------------- | |
| (=) Total Appraised Value: | = | $88,170 | |
| (–) Senior Exemption Loss: | – | $0 | |
| (–) Exemption Loss: | – | $0 | |
| | | -------------------------- | |
| (=) Taxable Value: | = | $88,170 | |
Taxing Jurisdiction
| Owner: | THOMPSON GOLDEN-D LLC | | |
| % Ownership: | 100.0000000000% | | |
| Total Value: | $88,170 | | |
| Tax Area: | 1 - OL-140-F |
| CERFD | CURRENT EXPENSE REFUND 010 | 0.0000000000 | $88,170 | $88,170 | $0.00 | | |
| CURREXP | CURRENT EXPENSE 010 | 1.0175366760 | $88,170 | $88,170 | $89.72 | | |
| HUMNSERV | HUMAN SERVICES 119 | 0.0250000000 | $88,170 | $88,170 | $2.20 | | |
| SLDREL | SOLDIERS RELIEF 121 | 0.0155990005 | $88,170 | $88,170 | $1.38 | | |
| EMERGSER | EMS 147 | 0.3792580840 | $88,170 | $88,170 | $33.44 | | |
| EMSRFD | EMS REFUND 147 | 0.0000000000 | $88,170 | $88,170 | $0.00 | | |
| PORTRFD | PORT REFUND 640 | 0.0000000000 | $88,170 | $88,170 | $0.00 | | |
| PORTWWGEN | PORT OF WW 640 | 0.2460186015 | $88,170 | $88,170 | $21.69 | | |
| SD140BOND | SD #140 BOND 764 | 0.8342371393 | $88,170 | $88,170 | $73.55 | | |
| SD140GEN | SD #140 GENERAL 760 | 2.0646500647 | $88,170 | $88,170 | $182.04 | | |
| ST2 | STATE SCHOOL PART 2 600 | 0.8131451643 | $88,170 | $88,170 | $71.70 | | |
| STATESCHL | STATE SCHOOL 600 | 1.5158548041 | $88,170 | $88,170 | $133.65 | | |
| STREFUND | STATE REFUND LEVY 603 | 0.0000000000 | $88,170 | $88,170 | $0.00 | | |
| CWWBOND | C OF WW BOND 643 | 0.2760494372 | $88,170 | $88,170 | $24.34 | | |
| CWWGEN | CITY OF WW 631 | 1.6100204973 | $88,170 | $88,170 | $141.96 | | |
| CWWRFD | CITY OF WALLA WALLA REFUND 631 | 0.0000000000 | $88,170 | $88,170 | $0.00 | | |
| | Total Tax Rate: | 8.7973694689 | | | | | |
| | | | | Taxes w/Current Exemptions: | $775.67 | | |
| | | | | Taxes w/o Exemptions: | $775.67 | | |
Improvement / Building
| Improvement #1: | COMMERCIAL | State Code: | 46 | 0.0 sqft | Value: | $6,000 |
Sketch
| No sketches available for this property. |
Property Image
Land
| 1 | COM 1 | Converted: Commercial | 0.1715 | 7470.00 | 0.00 | 0.00 | 1.00 | $82,170 | $0 |
Roll Value History
| 2026 | N/A | N/A | N/A | N/A | N/A |
| 2025 | $7,600 | $82,200 | $0 | $89,800 | $89,800 |
| 2024 | $7,600 | $82,200 | $0 | $89,800 | $89,800 |
| 2023 | $6,000 | $82,170 | $0 | $88,170 | $88,170 |
| 2022 | $6,000 | $82,170 | $0 | $88,170 | $88,170 |
| 2021 | $6,000 | $82,170 | $0 | $88,170 | $88,170 |
| 2020 | $6,000 | $82,170 | $0 | $88,170 | $88,170 |
| 2019 | $6,000 | $82,170 | $0 | $88,170 | $88,170 |
| 2018 | $14,300 | $82,170 | $0 | $96,470 | $96,470 |
| 2017 | $0 | $82,170 | $0 | $82,170 | $82,170 |
| 2016 | $0 | $82,170 | $0 | $82,170 | $82,170 |
| 2015 | $0 | $74,700 | $0 | $74,700 | $74,700 |
| 2014 | $0 | $74,700 | $0 | $74,700 | $74,700 |
| 2013 | $0 | $74,700 | $0 | $74,700 | $74,700 |
| 2012 | $10,000 | $74,700 | $0 | $0 | $0 |
| 2011 | $10,000 | $74,700 | $0 | $0 | $0 |
| 2010 | $10,000 | $74,700 | $0 | $0 | $0 |
| 2009 | $10,800 | $52,300 | $0 | $0 | $0 |
| 2008 | $10,800 | $52,300 | $0 | $0 | $0 |
| 2007 | $10,800 | $52,300 | $0 | $0 | $0 |
Deed and Sales History
| 1 | 07/02/2018 | SWD | STATUTORY WARRANTY DEED | TEAGUE MOTOR CO | THOMPSON GOLDEN-D LLC | | 3-PARCELS | $940,000.00 | 135040 | 2018-05292 |
|   | |
| 2 | 06/01/1979 | WARRANTY D | WARRANTY DEED | | | | | $25,000.00 | 0 | 1057-905117 |
Payout Agreement
| No payout information available.. |