Property
Account |
| Property ID: | 6346 | Abbreviated Legal Description: | BOYER GROVE W 40' OF LOT 4 BLK 1 |
| Parcel Number: | 360720550104 | Agent Code: | |
| Type: | Real | | |
| Tax Area: | 1 - OL-140-F | Land Use Code | 11 |
| Open Space: | N | DFL | N |
| Historic Property: | N | Remodel Property: | N |
| Multi-Family Redevelopment: | N | | |
| Township: | 7 | Section: | 20 |
| Range: | 36 |
Location |
| Address: | 341 E ALDER ST WA 99362 | Mapsco: | |
| Neighborhood: | G-SFR | Map ID: | |
| Neighborhood CD: | 514011 |
Owner |
| Name: | HOFEDITZ MICHAEL J | Owner ID: | 62807 |
| Mailing Address: | PATTY L MARTIN 2245 CROSSHAVEN DR WALLA WALLA, WA 99362 | % Ownership: | 100.0000000000% |
| | | Exemptions: | |
Taxes and Assessment Details
Values
| (+) Improvement Homesite Value: | + | $0 | |
| (+) Improvement Non-Homesite Value: | + | $641,240 | |
| (+) Land Homesite Value: | + | $0 | |
| (+) Land Non-Homesite Value: | + | $33,930 | |
| (+) Curr Use (HS): | + | $0 | $0 |
| (+) Curr Use (NHS): | + | $0 | $0 |
| | | -------------------------- | |
| (=) Market Value: | = | $675,170 | |
| (–) Productivity Loss: | – | $0 | |
| | | -------------------------- | |
| (=) Subtotal: | = | $675,170 | |
| (+) Senior Appraised Value: | + | $0 | |
| (+) Non-Senior Appraised Value: | + | $675,170 | |
| | | -------------------------- | |
| (=) Total Appraised Value: | = | $675,170 | |
| (–) Senior Exemption Loss: | – | $0 | |
| (–) Exemption Loss: | – | $0 | |
| | | -------------------------- | |
| (=) Taxable Value: | = | $675,170 | |
Taxing Jurisdiction
| Owner: | HOFEDITZ MICHAEL J | | |
| % Ownership: | 100.0000000000% | | |
| Total Value: | $675,170 | | |
| Tax Area: | 1 - OL-140-F |
| CERFD | CURRENT EXPENSE REFUND 010 | 0.0000000000 | $675,170 | $675,170 | $0.00 | | |
| CURREXP | CURRENT EXPENSE 010 | 1.0175366760 | $675,170 | $675,170 | $687.01 | | |
| HUMNSERV | HUMAN SERVICES 119 | 0.0250000000 | $675,170 | $675,170 | $16.88 | | |
| SLDREL | SOLDIERS RELIEF 121 | 0.0155990005 | $675,170 | $675,170 | $10.53 | | |
| EMERGSER | EMS 147 | 0.3792580840 | $675,170 | $675,170 | $256.06 | | |
| EMSRFD | EMS REFUND 147 | 0.0000000000 | $675,170 | $675,170 | $0.00 | | |
| PORTRFD | PORT REFUND 640 | 0.0000000000 | $675,170 | $675,170 | $0.00 | | |
| PORTWWGEN | PORT OF WW 640 | 0.2460186015 | $675,170 | $675,170 | $166.10 | | |
| SD140BOND | SD #140 BOND 764 | 0.8342371393 | $675,170 | $675,170 | $563.25 | | |
| SD140GEN | SD #140 GENERAL 760 | 2.0646500647 | $675,170 | $675,170 | $1,393.99 | | |
| ST2 | STATE SCHOOL PART 2 600 | 0.8131451643 | $675,170 | $675,170 | $549.01 | | |
| STATESCHL | STATE SCHOOL 600 | 1.5158548041 | $675,170 | $675,170 | $1,023.46 | | |
| STREFUND | STATE REFUND LEVY 603 | 0.0000000000 | $675,170 | $675,170 | $0.00 | | |
| CWWBOND | C OF WW BOND 643 | 0.2760494372 | $675,170 | $675,170 | $186.38 | | |
| CWWGEN | CITY OF WW 631 | 1.6100204973 | $675,170 | $675,170 | $1,087.04 | | |
| CWWRFD | CITY OF WALLA WALLA REFUND 631 | 0.0000000000 | $675,170 | $675,170 | $0.00 | | |
| | Total Tax Rate: | 8.7973694689 | | | | | |
| | | | | Taxes w/Current Exemptions: | $5,939.71 | | |
| | | | | Taxes w/o Exemptions: | $5,939.71 | | |
Improvement / Building
| Improvement #1: | RESIDENTIAL | State Code: | 11 | 1940.0 sqft | Value: | $641,240 |
| Exterior Wall: | SIDING | Heating/Cooling: | WARM & COOLED AIR | | Number of Bathrooms: | 2.5 | Number of Bedrooms: | 3 | | Plumbing: | 12 | Roof Covering: | COMP SHINGLE |
|
| | Type | Description | Class CD | Sub Class CD | Year Built | Area |
| | MA | Main Area | 2 | 40 | 1920 | 1940.0 |
| | SI1 | SITE IMPROVEMENT | 2 | 40 | 0 | 2.5 |
| | SMP | SWIMMING POOL | 2 | 40 | 0 | 1.0 |
| | BASE | BASEMENT | 2 | 40 | 1920 | 870.0 |
| | S2F | Single 2S Fireplace | 2 | 40 | 1920 | 1.0 |
| | RPS | PORCH W/STEPS,ROOF | 2 | 40 | 1920 | 30.0 |
| | UPFL | Upper Floor (included in main area) | 2 | 40 | 1920 | 870.0 |
Sketch
Property Image
Land
| 1 | RES 1 | Converted: Residential | 0.1194 | 5200.00 | 0.00 | 0.00 | 1.00 | $33,930 | $0 |
Roll Value History
| 2026 | N/A | N/A | N/A | N/A | N/A |
| 2025 | $593,680 | $51,480 | $0 | $645,160 | $645,160 |
| 2024 | $593,680 | $51,480 | $0 | $645,160 | $645,160 |
| 2023 | $641,240 | $33,930 | $0 | $675,170 | $675,170 |
| 2022 | $582,950 | $33,930 | $0 | $616,880 | $616,880 |
| 2021 | $448,420 | $33,930 | $0 | $482,350 | $482,350 |
| 2020 | $298,950 | $33,930 | $0 | $332,880 | $332,880 |
| 2019 | $298,950 | $33,930 | $0 | $332,880 | $332,880 |
| 2018 | $271,770 | $33,930 | $0 | $305,700 | $305,700 |
| 2017 | $263,500 | $23,400 | $0 | $286,900 | $286,900 |
| 2016 | $263,500 | $23,400 | $0 | $286,900 | $286,900 |
| 2015 | $263,500 | $23,400 | $0 | $286,900 | $286,900 |
| 2014 | $263,500 | $23,400 | $0 | $286,900 | $286,900 |
| 2013 | $263,500 | $23,400 | $0 | $286,900 | $286,900 |
| 2012 | $266,100 | $20,800 | $0 | $0 | $0 |
| 2011 | $228,700 | $20,800 | $0 | $0 | $0 |
| 2010 | $256,200 | $20,800 | $0 | $0 | $0 |
| 2009 | $256,200 | $20,800 | $0 | $0 | $0 |
| 2008 | $113,200 | $20,800 | $0 | $0 | $0 |
| 2007 | $113,200 | $20,800 | $0 | $0 | $0 |
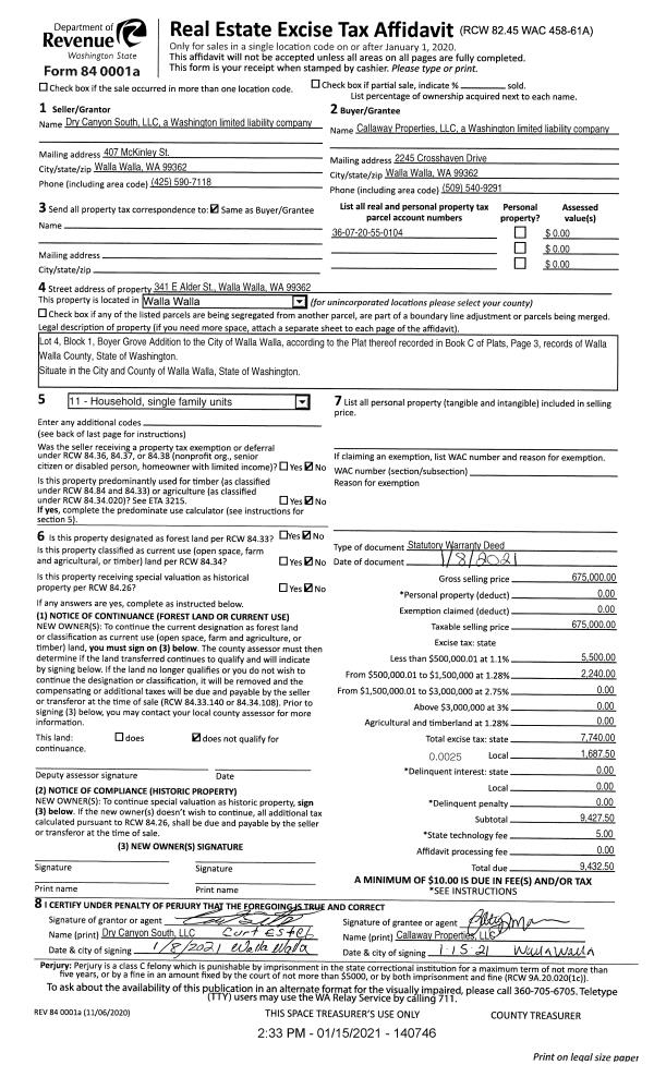
Deed and Sales History
| 1 | 01/29/2021 | QCD | QUIT CLAIM DEED | CALLAWAY PROPERTIES LLC | HOFEDITZ MICHAEL J | | 2-PARCELS | $0.00 | 140818 | 2021-01127 |
| 2 | 01/08/2021 | SWD | STATUTORY WARRANTY DEED | DRY CANYON SOUTH LLC | CALLAWAY PROPERTIES LLC | | 2-PARCLES | $675,000.00 | 140746 | 2021-00623 |
|   | |
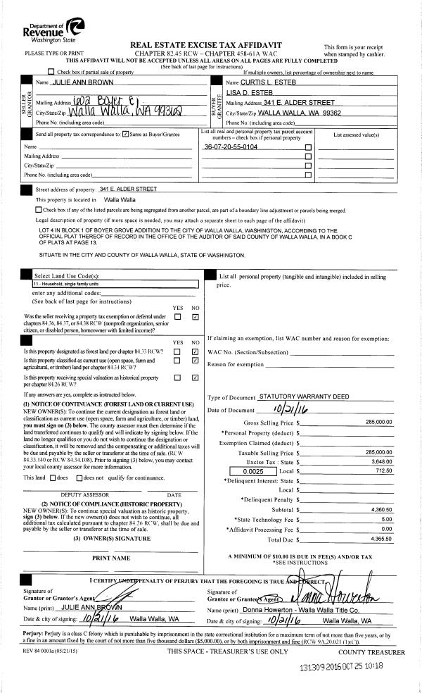
| 3 | 01/03/2018 | QCD | QUIT CLAIM DEED | ESTEB CURTIS L & LISA D | DRY CANYON SOUTH LLC | | 2 PARCELS | $0.00 | 133968 | 2018-00255 |
| 4 | 10/25/2016 | SWD | STATUTORY WARRANTY DEED | BROWN JULIE ANN | ESTEB CURTIS L & LISA D | | 2-PARCELS | $285,000.00 | 131309 | 2016-08832 |
|   | |
| 5 | 03/26/2014 | QCD | QUIT CLAIM DEED | OVENS BRYAN MICHAEL SPENCER | BROWN JULIE ANN | | 2-PARCELS | | 125623 | 2014-02048 |
| 6 | 12/14/2007 | WARRANTY D | WARRANTY DEED | RICHMOND TIMOTHY J & JEANETTE | CARLSON OVENS JULIE A | | | $290,000.00 | 114225 | 2007-14247 |
|   | |
| 7 | 05/29/1992 | WARRANTY D | WARRANTY DEED | | | | | $105,000.00 | 76925 | 1979-204652 |
|   | |
Payout Agreement
| No payout information available.. |