Property
Account |
| Property ID: | 6333 | Abbreviated Legal Description: | BARDSLEYS LOTS 12 THRU 17 BLK X VAC 1/2 ALLEY AND TRACTS |
| Parcel Number: | 360720530112 | Agent Code: | |
| Type: | Real | | |
| Tax Area: | 1 - OL-140-F | Land Use Code | 55 |
| Open Space: | N | DFL | N |
| Historic Property: | N | Remodel Property: | N |
| Multi-Family Redevelopment: | N | | |
| Township: | 7 | Section: | 20 |
| Range: | 36 |
Location |
| Address: | 1002 N 4TH AVE WA 99362 | Mapsco: | |
| Neighborhood: | COMMERCIAL | Map ID: | |
| Neighborhood CD: | 3319 |
Owner |
| Name: | ARREOLA BRAYAN | Owner ID: | 73419 |
| Mailing Address: | SCARLETE ARREOLA 1221 RUTH ST WALLA WALLA, WA 99362 | % Ownership: | 100.0000000000% |
| | | Exemptions: | |
Taxes and Assessment Details
Values
| (+) Improvement Homesite Value: | + | N/A | |
| (+) Improvement Non-Homesite Value: | + | N/A | |
| (+) Land Homesite Value: | + | N/A | |
| (+) Land Non-Homesite Value: | + | N/A | Ag / Timber Use Value |
| (+) Curr Use (HS): | + | N/A | N/A |
| (+) Curr Use (NHS): | + | N/A | N/A |
| | | -------------------------- | |
| (=) Market Value: | = | N/A | |
| (–) Productivity Loss: | – | N/A | |
| | | -------------------------- | |
| (=) Subtotal: | = | N/A | |
| (+) Senior Appraised Value: | + | N/A | |
| (+) Non-Senior Appraised Value: | + | N/A | |
| | | -------------------------- | |
| (=) Total Appraised Value: | = | N/A | |
| (–) Senior Exemption Loss: | – | N/A | |
| (–) Exemption Loss: | – | N/A | |
| | | -------------------------- | |
| (=) Taxable Value: | = | N/A | |
Taxing Jurisdiction
| Owner: | ARREOLA BRAYAN | | |
| % Ownership: | 100.0000000000% | | |
| Total Value: | N/A | | |
| Tax Area: | 1 - OL-140-F |
| CERFD | CURRENT EXPENSE REFUND 010 | N/A | N/A | N/A | N/A | | |
| CURREXP | CURRENT EXPENSE 010 | N/A | N/A | N/A | N/A | | |
| HUMNSERV | HUMAN SERVICES 119 | N/A | N/A | N/A | N/A | | |
| SLDREL | SOLDIERS RELIEF 121 | N/A | N/A | N/A | N/A | | |
| EMERGSER | EMS 147 | N/A | N/A | N/A | N/A | | |
| EMSRFD | EMS REFUND 147 | N/A | N/A | N/A | N/A | | |
| PORTRFD | PORT REFUND 640 | N/A | N/A | N/A | N/A | | |
| PORTWWGEN | PORT OF WW 640 | N/A | N/A | N/A | N/A | | |
| SD140BOND | SD #140 BOND 764 | N/A | N/A | N/A | N/A | | |
| SD140GEN | SD #140 GENERAL 760 | N/A | N/A | N/A | N/A | | |
| ST2 | STATE SCHOOL PART 2 600 | N/A | N/A | N/A | N/A | | |
| STATESCHL | STATE SCHOOL 600 | N/A | N/A | N/A | N/A | | |
| STREFUND | STATE REFUND LEVY 603 | N/A | N/A | N/A | N/A | | |
| CWWBOND | C OF WW BOND 643 | N/A | N/A | N/A | N/A | | |
| CWWGEN | CITY OF WW 631 | N/A | N/A | N/A | N/A | | |
| CWWRFD | CITY OF WALLA WALLA REFUND 631 | N/A | N/A | N/A | N/A | | |
| | Total Tax Rate: | N/A | | | | | |
| | | | | Taxes w/Current Exemptions: | N/A | | |
| | | | | Taxes w/o Exemptions: | N/A | | |
Improvement / Building
| Improvement #1: | COMMERCIAL | State Code: | 55 | 1972.0 sqft | Value: | N/A |
| | Type | Description | Class CD | Sub Class CD | Year Built | Area |
| | MA | Main Area | D | * | 0 | 1972.0 |
| | BNV | BUILDING NO VALUE | D | * | 0 | 1064.0 |
| | BNV | BUILDING NO VALUE | D | * | 0 | 908.0 |
Sketch
Property Image
Land
| 1 | COM 1 | Converted: Commercial | 0.8884 | 38700.00 | 0.00 | 0.00 | 1.00 | N/A | N/A |
Roll Value History
| 2026 | N/A | N/A | N/A | N/A | N/A |
| 2025 | $0 | $120,740 | $0 | $120,740 | $120,740 |
| 2024 | $0 | $44,400 | $0 | $44,400 | $44,400 |
| 2023 | $0 | $44,400 | $0 | $44,400 | $44,400 |
| 2022 | $0 | $44,400 | $0 | $44,400 | $44,400 |
| 2021 | $0 | $26,600 | $0 | $26,600 | $26,600 |
| 2020 | $0 | $26,600 | $0 | $26,600 | $26,600 |
| 2019 | $0 | $26,600 | $0 | $26,600 | $26,600 |
| 2018 | $0 | $26,600 | $0 | $26,600 | $26,600 |
| 2017 | $0 | $26,600 | $0 | $26,600 | $26,600 |
| 2016 | $0 | $26,600 | $0 | $26,600 | $26,600 |
| 2015 | $0 | $14,500 | $0 | $14,500 | $14,500 |
| 2014 | $0 | $14,500 | $0 | $14,500 | $14,500 |
| 2013 | $0 | $14,500 | $0 | $14,500 | $14,500 |
| 2012 | $0 | $14,500 | $0 | $0 | $0 |
| 2011 | $0 | $14,500 | $0 | $0 | $0 |
| 2010 | $0 | $14,600 | $0 | $0 | $0 |
| 2009 | $0 | $14,600 | $0 | $0 | $0 |
| 2008 | $0 | $14,600 | $0 | $0 | $0 |
| 2007 | $0 | $14,600 | $0 | $0 | $0 |
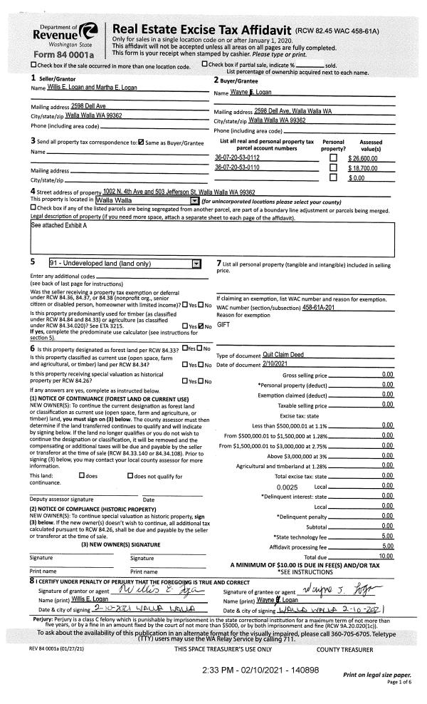
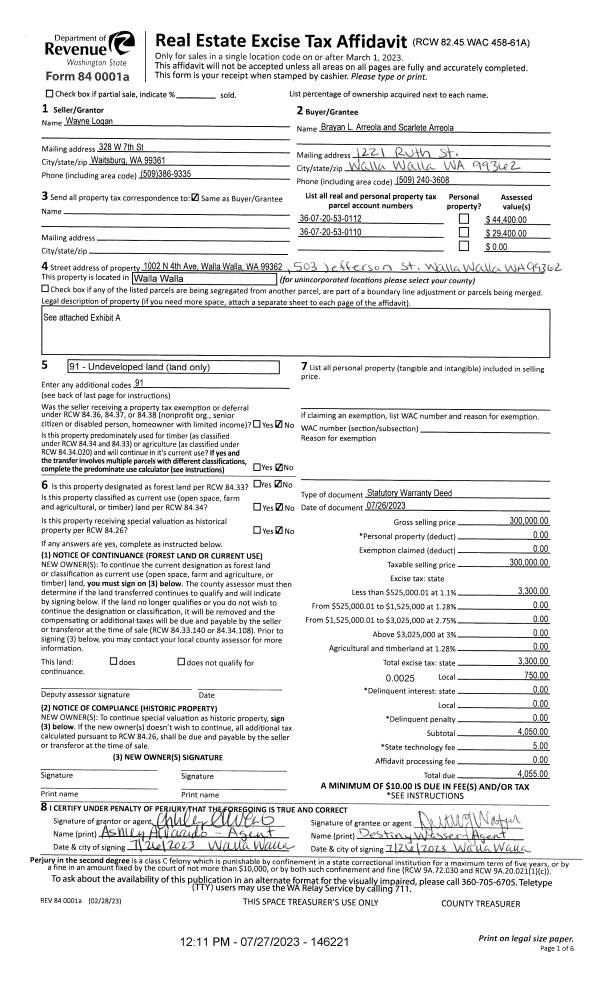
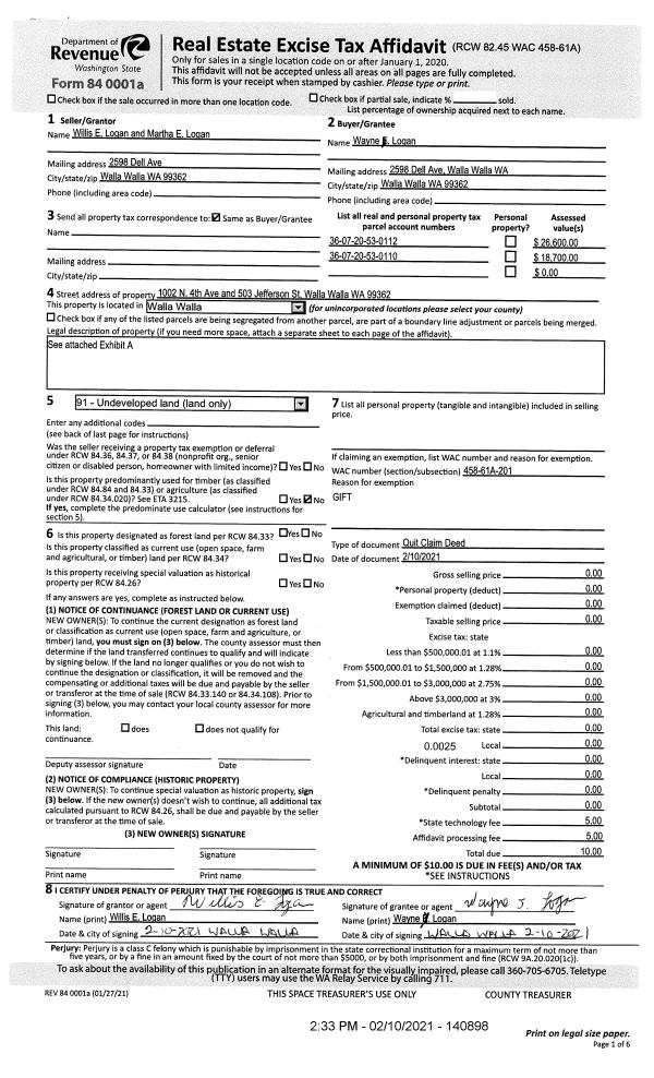
Deed and Sales History
| 1 | 07/27/2023 | SWD | STATUTORY WARRANTY DEED | LOGAN WAYNE J | ARREOLA BRAYAN | | 2-PARCELS | $300,000.00 | 146221 | 2023-04254 |
|   | |
| 2 | 02/10/2021 | QCD | QUIT CLAIM DEED | LOGAN WILLIS E | LOGAN WAYNE J | | | $0.00 | 140898 | 2021-01623 |
| 3 | 06/27/1974 | WARRANTY D | WARRANTY DEED | | | | | $2,600.00 | 0 | 1705-37942 |
Payout Agreement
| No payout information available.. |