Property
Account |
| Property ID: | 6325 | Abbreviated Legal Description: | GREEN PARK LOTS 1 AND 2 BLK 11 LESS TAX 1 & 7 |
| Parcel Number: | 360720511101 | Agent Code: | |
| Type: | Real | | |
| Tax Area: | 1 - OL-140-F | Land Use Code | 11 |
| Open Space: | N | DFL | N |
| Historic Property: | N | Remodel Property: | N |
| Multi-Family Redevelopment: | N | | |
| Township: | 7 | Section: | 20 |
| Range: | 36 |
Location |
| Address: | 720 VALENCIA ST WA 99362 | Mapsco: | |
| Neighborhood: | G-SFR | Map ID: | |
| Neighborhood CD: | 514011 |
Owner |
| Name: | FERRARO TYLER J | Owner ID: | 57101 |
| Mailing Address: | 720 VALENCIA ST WALLA WALLA, WA 99362 | % Ownership: | 100.0000000000% |
| | | Exemptions: | |
Taxes and Assessment Details
Values
| (+) Improvement Homesite Value: | + | $0 | |
| (+) Improvement Non-Homesite Value: | + | $771,240 | |
| (+) Land Homesite Value: | + | $0 | |
| (+) Land Non-Homesite Value: | + | $67,820 | |
| (+) Curr Use (HS): | + | $0 | $0 |
| (+) Curr Use (NHS): | + | $0 | $0 |
| | | -------------------------- | |
| (=) Market Value: | = | $839,060 | |
| (–) Productivity Loss: | – | $0 | |
| | | -------------------------- | |
| (=) Subtotal: | = | $839,060 | |
| (+) Senior Appraised Value: | + | $0 | |
| (+) Non-Senior Appraised Value: | + | $839,060 | |
| | | -------------------------- | |
| (=) Total Appraised Value: | = | $839,060 | |
| (–) Senior Exemption Loss: | – | $0 | |
| (–) Exemption Loss: | – | $0 | |
| | | -------------------------- | |
| (=) Taxable Value: | = | $839,060 | |
Taxing Jurisdiction
| Owner: | FERRARO TYLER J | | |
| % Ownership: | 100.0000000000% | | |
| Total Value: | $839,060 | | |
| Tax Area: | 1 - OL-140-F |
| CERFD | CURRENT EXPENSE REFUND 010 | 0.0000000000 | $839,060 | $839,060 | $0.00 | | |
| CURREXP | CURRENT EXPENSE 010 | 1.0175366760 | $839,060 | $839,060 | $853.77 | | |
| HUMNSERV | HUMAN SERVICES 119 | 0.0250000000 | $839,060 | $839,060 | $20.98 | | |
| SLDREL | SOLDIERS RELIEF 121 | 0.0155990005 | $839,060 | $839,060 | $13.09 | | |
| EMERGSER | EMS 147 | 0.3792580840 | $839,060 | $839,060 | $318.22 | | |
| EMSRFD | EMS REFUND 147 | 0.0000000000 | $839,060 | $839,060 | $0.00 | | |
| PORTRFD | PORT REFUND 640 | 0.0000000000 | $839,060 | $839,060 | $0.00 | | |
| PORTWWGEN | PORT OF WW 640 | 0.2460186015 | $839,060 | $839,060 | $206.42 | | |
| SD140BOND | SD #140 BOND 764 | 0.8342371393 | $839,060 | $839,060 | $699.98 | | |
| SD140GEN | SD #140 GENERAL 760 | 2.0646500647 | $839,060 | $839,060 | $1,732.37 | | |
| ST2 | STATE SCHOOL PART 2 600 | 0.8131451643 | $839,060 | $839,060 | $682.28 | | |
| STATESCHL | STATE SCHOOL 600 | 1.5158548041 | $839,060 | $839,060 | $1,271.89 | | |
| STREFUND | STATE REFUND LEVY 603 | 0.0000000000 | $839,060 | $839,060 | $0.00 | | |
| CWWBOND | C OF WW BOND 643 | 0.2760494372 | $839,060 | $839,060 | $231.62 | | |
| CWWGEN | CITY OF WW 631 | 1.6100204973 | $839,060 | $839,060 | $1,350.90 | | |
| CWWRFD | CITY OF WALLA WALLA REFUND 631 | 0.0000000000 | $839,060 | $839,060 | $0.00 | | |
| | Total Tax Rate: | 8.7973694689 | | | | | |
| | | | | Taxes w/Current Exemptions: | $7,381.52 | | |
| | | | | Taxes w/o Exemptions: | $7,381.52 | | |
Improvement / Building
| Improvement #1: | RESIDENTIAL | State Code: | 11 | 2888.0 sqft | Value: | $771,240 |
| Exterior Wall: | SIDING | Heating/Cooling: | WARM & COOLED AIR | | Number of Bathrooms: | 3 | Number of Bedrooms: | 6 | | Plumbing: | 14 | Roof Covering: | COMP SHINGLE |
|
| | Type | Description | Class CD | Sub Class CD | Year Built | Area |
| | MA | Main Area | 4 | 50 | 1905 | 2888.0 |
| | SI1 | SITE IMPROVEMENT | 4 | 50 | 0 | 4.0 |
| | BASE | BASEMENT | 4 | 50 | 1905 | 1183.0 |
| | BPF | BASEMENT -PARTITIONED FINISH | 4 | 50 | 1905 | 591.0 |
| | DTG | Detached Garage | 4 | 50 | 1905 | 560.0 |
| | WOD | Wood Deck | 4 | 50 | 1905 | 320.0 |
| | WOD | Wood Deck | 4 | 50 | 1905 | 56.0 |
| | RPS | PORCH W/STEPS,ROOF | 4 | 50 | 1905 | 99.0 |
| | S1F | Single One Story Fireplace | 4 | 50 | 1905 | 1.0 |
| | SPO | SCREENED PORCH | 4 | 50 | 1905 | 210.0 |
| | UPFL | Upper Floor (included in main area) | 4 | 50 | 1905 | 1272.0 |
Sketch
Property Image
Land
| 1 | RES 1 | Converted: Residential | 0.2147 | 9354.00 | 0.00 | 0.00 | 1.00 | $67,820 | $0 |
Roll Value History
| 2026 | N/A | N/A | N/A | N/A | N/A |
| 2025 | $740,680 | $102,890 | $0 | $843,570 | $843,570 |
| 2024 | $740,680 | $102,890 | $0 | $843,570 | $843,570 |
| 2023 | $771,240 | $67,820 | $0 | $839,060 | $839,060 |
| 2022 | $670,650 | $67,820 | $0 | $738,470 | $738,470 |
| 2021 | $447,100 | $67,820 | $0 | $514,920 | $514,920 |
| 2020 | $388,780 | $67,820 | $0 | $456,600 | $456,600 |
| 2019 | $388,780 | $67,820 | $0 | $456,600 | $456,600 |
| 2018 | $388,780 | $67,820 | $0 | $456,600 | $456,600 |
| 2017 | $337,120 | $42,100 | $0 | $379,220 | $379,220 |
| 2016 | $337,120 | $42,100 | $0 | $379,220 | $379,220 |
| 2015 | $337,120 | $42,100 | $0 | $379,220 | $379,220 |
| 2014 | $421,400 | $42,100 | $0 | $463,500 | $463,500 |
| 2013 | $421,400 | $42,100 | $0 | $463,500 | $463,500 |
| 2012 | $421,400 | $42,100 | $0 | $0 | $0 |
| 2011 | $421,400 | $42,100 | $0 | $0 | $0 |
| 2010 | $399,300 | $42,100 | $0 | $0 | $0 |
| 2009 | $425,000 | $42,100 | $0 | $0 | $0 |
| 2008 | $364,100 | $42,100 | $0 | $0 | $0 |
| 2007 | $364,100 | $42,100 | $0 | $0 | $0 |
Deed and Sales History
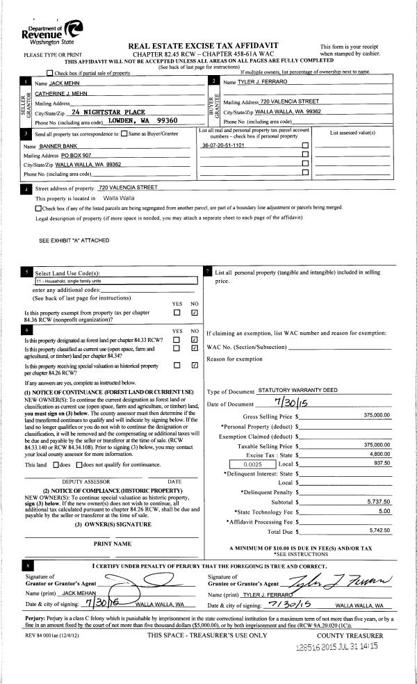
| 1 | 07/31/2015 | SWD | STATUTORY WARRANTY DEED | MEHN JACK & CATHERINE J | FERRARO TYLER J | | | $375,000.00 | 128516 | 2015-06602 |
| 2 | 08/20/2001 | WARRANTY D | WARRANTY DEED | | | | | $245,000.00 | 97863 | 3180-109055 |
Payout Agreement
| No payout information available.. |