Property
Account |
| Property ID: | 6313 | Abbreviated Legal Description: | GREEN PARK LOT 7 BLK 9 |
| Parcel Number: | 360720510907 | Agent Code: | |
| Type: | Real | | |
| Tax Area: | 1 - OL-140-F | Land Use Code | 11 |
| Open Space: | N | DFL | N |
| Historic Property: | N | Remodel Property: | N |
| Multi-Family Redevelopment: | N | | |
| Township: | 7 | Section: | 20 |
| Range: | 36 |
Location |
| Address: | 915 ALVARADO TER WALLA WALLA, WA 99362 | Mapsco: | |
| Neighborhood: | G Superior SFR | Map ID: | |
| Neighborhood CD: | 514211 |
Owner |
| Name: | PLUNKETT SUSAN M | Owner ID: | 58326 |
| Mailing Address: | EMIL H DOYLE 915 ALVARADO TERRACE WALLA WALLA, WA 99362 | % Ownership: | 100.0000000000% |
| | | Exemptions: | |
Taxes and Assessment Details
Property Tax Information as of
02/21/2026
Click on "Statement Details" to expand or collapse a tax statement.
* Please enter a valid date ** Please enter a valid date *
Statement Details |
| | TOTAL: | $0.00 | $0.00 | $0.00 | $0.00 | $0.00 | $0.00 |
|
| | $0.00 | $0.00 | $0.00 | $0.00 | $0.00 | $0.00 |
Values
| (+) Improvement Homesite Value: | + | $0 | |
| (+) Improvement Non-Homesite Value: | + | $458,710 | |
| (+) Land Homesite Value: | + | $0 | |
| (+) Land Non-Homesite Value: | + | $75,290 | |
| (+) Curr Use (HS): | + | $0 | $0 |
| (+) Curr Use (NHS): | + | $0 | $0 |
| | | -------------------------- | |
| (=) Market Value: | = | $534,000 | |
| (–) Productivity Loss: | – | $0 | |
| | | -------------------------- | |
| (=) Subtotal: | = | $534,000 | |
| (+) Senior Appraised Value: | + | $0 | |
| (+) Non-Senior Appraised Value: | + | $534,000 | |
| | | -------------------------- | |
| (=) Total Appraised Value: | = | $534,000 | |
| (–) Senior Exemption Loss: | – | $0 | |
| (–) Exemption Loss: | – | $0 | |
| | | -------------------------- | |
| (=) Taxable Value: | = | $534,000 | |
Taxing Jurisdiction
| Owner: | PLUNKETT SUSAN M | | |
| % Ownership: | 100.0000000000% | | |
| Total Value: | $534,000 | | |
| Tax Area: | 1 - OL-140-F |
| CERFD | CURRENT EXPENSE REFUND 010 | 0.0000000000 | $534,000 | $534,000 | $0.00 | | |
| CURREXP | CURRENT EXPENSE 010 | 1.0175366760 | $534,000 | $534,000 | $543.36 | | |
| HUMNSERV | HUMAN SERVICES 119 | 0.0250000000 | $534,000 | $534,000 | $13.35 | | |
| SLDREL | SOLDIERS RELIEF 121 | 0.0155990005 | $534,000 | $534,000 | $8.33 | | |
| EMERGSER | EMS 147 | 0.3792580840 | $534,000 | $534,000 | $202.52 | | |
| EMSRFD | EMS REFUND 147 | 0.0000000000 | $534,000 | $534,000 | $0.00 | | |
| PORTRFD | PORT REFUND 640 | 0.0000000000 | $534,000 | $534,000 | $0.00 | | |
| PORTWWGEN | PORT OF WW 640 | 0.2460186015 | $534,000 | $534,000 | $131.37 | | |
| SD140BOND | SD #140 BOND 764 | 0.8342371393 | $534,000 | $534,000 | $445.48 | | |
| SD140GEN | SD #140 GENERAL 760 | 2.0646500647 | $534,000 | $534,000 | $1,102.52 | | |
| ST2 | STATE SCHOOL PART 2 600 | 0.8131451643 | $534,000 | $534,000 | $434.22 | | |
| STATESCHL | STATE SCHOOL 600 | 1.5158548041 | $534,000 | $534,000 | $809.47 | | |
| STREFUND | STATE REFUND LEVY 603 | 0.0000000000 | $534,000 | $534,000 | $0.00 | | |
| CWWBOND | C OF WW BOND 643 | 0.2760494372 | $534,000 | $534,000 | $147.41 | | |
| CWWGEN | CITY OF WW 631 | 1.6100204973 | $534,000 | $534,000 | $859.75 | | |
| CWWRFD | CITY OF WALLA WALLA REFUND 631 | 0.0000000000 | $534,000 | $534,000 | $0.00 | | |
| | Total Tax Rate: | 8.7973694689 | | | | | |
| | | | | Taxes w/Current Exemptions: | $4,697.78 | | |
| | | | | Taxes w/o Exemptions: | $4,697.78 | | |
Improvement / Building
| Improvement #1: | RESIDENTIAL | State Code: | 11 | 2480.0 sqft | Value: | $458,710 |
| Exterior Wall: | SIDING | Heating/Cooling: | WARM & COOLED AIR | | Number of Bathrooms: | 3 | Number of Bedrooms: | 6 | | Plumbing: | 13 | Roof Covering: | COMP SHINGLE |
|
| | Type | Description | Class CD | Sub Class CD | Year Built | Area |
| | MA | Main Area | 4 | 45 | 1937 | 2480.0 |
| | SI1 | SITE IMPROVEMENT | 4 | 45 | 0 | 4.0 |
| | BASE | BASEMENT | 4 | 45 | 1937 | 1656.0 |
| | BPF | BASEMENT -PARTITIONED FINISH | 4 | 45 | 1937 | 180.0 |
| | OPS | OPEN PORCH W/STEPS | 4 | 45 | 1937 | 12.0 |
| | S1F | Single One Story Fireplace | 4 | 45 | 1937 | 1.0 |
| | STG1 | Sub Terrain Garage Single | 4 | 45 | 1937 | 1.0 |
| | UPFL | Upper Floor (included in main area) | 4 | 45 | 1937 | 800.0 |
Sketch
Property Image
Land
| 1 | RES 1 | Converted: Residential | 0.3416 | 14880.00 | 0.00 | 0.00 | 1.00 | $75,290 | $0 |
Roll Value History
| 2026 | N/A | N/A | N/A | N/A | N/A |
| 2025 | $401,830 | $134,520 | $0 | $536,350 | $536,350 |
| 2024 | $401,830 | $134,520 | $0 | $536,350 | $536,350 |
| 2023 | $458,710 | $75,290 | $0 | $534,000 | $534,000 |
| 2022 | $458,710 | $75,290 | $0 | $534,000 | $534,000 |
| 2021 | $382,260 | $75,290 | $0 | $457,550 | $457,550 |
| 2020 | $347,510 | $75,290 | $0 | $422,800 | $422,800 |
| 2019 | $347,510 | $75,290 | $0 | $422,800 | $422,800 |
| 2018 | $347,510 | $75,290 | $0 | $422,800 | $422,800 |
| 2017 | $354,310 | $47,900 | $0 | $402,210 | $402,210 |
| 2016 | $354,310 | $47,900 | $0 | $402,210 | $402,210 |
| 2015 | $354,310 | $47,900 | $0 | $402,210 | $402,210 |
| 2014 | $322,100 | $47,900 | $0 | $370,000 | $370,000 |
| 2013 | $322,100 | $47,900 | $0 | $370,000 | $370,000 |
| 2012 | $363,200 | $47,900 | $0 | $0 | $0 |
| 2011 | $363,200 | $47,900 | $0 | $0 | $0 |
| 2010 | $343,600 | $47,900 | $0 | $0 | $0 |
| 2009 | $366,400 | $47,900 | $0 | $0 | $0 |
| 2008 | $312,400 | $47,900 | $0 | $0 | $0 |
| 2007 | $312,400 | $47,900 | $0 | $0 | $0 |
Deed and Sales History
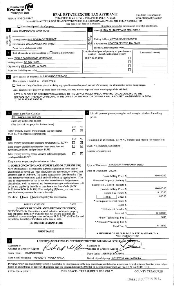
| 1 | 02/16/2016 | SWD | STATUTORY WARRANTY DEED | MOSS RICHARD & MARY | PLUNKETT SUSAN M | | | $400,000.00 | 129691 | 2016-01164 |
| 2 | 06/15/1990 | WARRANTY D | WARRANTY DEED | | | | | $87,000.00 | 68722 | 1839-004036 |
Payout Agreement
| No payout information available.. |