Property
Account |
| Property ID: | 6274 | Abbreviated Legal Description: | HEADLEY LESS ALLEY LOT 11 BLK 2 |
| Parcel Number: | 360719580211 | Agent Code: | |
| Type: | Real | | |
| Tax Area: | 1 - OL-140-F | Land Use Code | 11 |
| Open Space: | N | DFL | N |
| Historic Property: | N | Remodel Property: | N |
| Multi-Family Redevelopment: | N | | |
| Township: | 7 | Section: | 19 |
| Range: | 36 |
Location |
| Address: | 1012 W CHERRY ST WA 99362 | Mapsco: | |
| Neighborhood: | COMMERCIAL INDUSTRIAL | Map ID: | |
| Neighborhood CD: | 3303 |
Owner |
| Name: | SHSF HOLDINGS LLC | Owner ID: | 58146 |
| Mailing Address: | PO BOX 214 WALLA WALLA, WA 99362 | % Ownership: | 100.0000000000% |
| | | Exemptions: | |
Taxes and Assessment Details
Property Tax Information as of
04/19/2026
Click on "Statement Details" to expand or collapse a tax statement.
* Please enter a valid date ** Please enter a valid date *
Statement Details |
| | TOTAL: | $0.00 | $0.00 | $0.00 | $0.00 | $0.00 | $0.00 |
|
| | $0.00 | $0.00 | $0.00 | $0.00 | $0.00 | $0.00 |
Values
| (+) Improvement Homesite Value: | + | $0 | |
| (+) Improvement Non-Homesite Value: | + | $11,400 | |
| (+) Land Homesite Value: | + | $0 | |
| (+) Land Non-Homesite Value: | + | $29,100 | |
| (+) Curr Use (HS): | + | $0 | $0 |
| (+) Curr Use (NHS): | + | $0 | $0 |
| | | -------------------------- | |
| (=) Market Value: | = | $40,500 | |
| (–) Productivity Loss: | – | $0 | |
| | | -------------------------- | |
| (=) Subtotal: | = | $40,500 | |
| (+) Senior Appraised Value: | + | $0 | |
| (+) Non-Senior Appraised Value: | + | $40,500 | |
| | | -------------------------- | |
| (=) Total Appraised Value: | = | $40,500 | |
| (–) Senior Exemption Loss: | – | $0 | |
| (–) Exemption Loss: | – | $0 | |
| | | -------------------------- | |
| (=) Taxable Value: | = | $40,500 | |
Taxing Jurisdiction
| Owner: | SHSF HOLDINGS LLC | | |
| % Ownership: | 100.0000000000% | | |
| Total Value: | $40,500 | | |
| Tax Area: | 1 - OL-140-F |
| CERFD | CURRENT EXPENSE REFUND 010 | 0.0000000000 | $40,500 | $40,500 | $0.00 | | |
| CURREXP | CURRENT EXPENSE 010 | 1.0175366760 | $40,500 | $40,500 | $41.21 | | |
| HUMNSERV | HUMAN SERVICES 119 | 0.0250000000 | $40,500 | $40,500 | $1.01 | | |
| SLDREL | SOLDIERS RELIEF 121 | 0.0155990005 | $40,500 | $40,500 | $0.63 | | |
| EMERGSER | EMS 147 | 0.3792580840 | $40,500 | $40,500 | $15.36 | | |
| EMSRFD | EMS REFUND 147 | 0.0000000000 | $40,500 | $40,500 | $0.00 | | |
| PORTRFD | PORT REFUND 640 | 0.0000000000 | $40,500 | $40,500 | $0.00 | | |
| PORTWWGEN | PORT OF WW 640 | 0.2460186015 | $40,500 | $40,500 | $9.96 | | |
| SD140BOND | SD #140 BOND 764 | 0.8342371393 | $40,500 | $40,500 | $33.79 | | |
| SD140GEN | SD #140 GENERAL 760 | 2.0646500647 | $40,500 | $40,500 | $83.62 | | |
| ST2 | STATE SCHOOL PART 2 600 | 0.8131451643 | $40,500 | $40,500 | $32.93 | | |
| STATESCHL | STATE SCHOOL 600 | 1.5158548041 | $40,500 | $40,500 | $61.39 | | |
| STREFUND | STATE REFUND LEVY 603 | 0.0000000000 | $40,500 | $40,500 | $0.00 | | |
| CWWBOND | C OF WW BOND 643 | 0.2760494372 | $40,500 | $40,500 | $11.18 | | |
| CWWGEN | CITY OF WW 631 | 1.6100204973 | $40,500 | $40,500 | $65.21 | | |
| CWWRFD | CITY OF WALLA WALLA REFUND 631 | 0.0000000000 | $40,500 | $40,500 | $0.00 | | |
| | Total Tax Rate: | 8.7973694689 | | | | | |
| | | | | Taxes w/Current Exemptions: | $356.29 | | |
| | | | | Taxes w/o Exemptions: | $356.29 | | |
Improvement / Building
| Improvement #1: | RESIDENTIAL | State Code: | 11 | 688.0 sqft | Value: | $11,400 |
| Exterior Wall: | SIDING | Foundation: | POST & PIER | | Heating/Cooling: | BASEBOARD ELECTRIC | Number of Bathrooms: | 1 | | Number of Bedrooms: | 1 | Plumbing: | 6 | | Roof Covering: | COMP SHINGLE |   |   |
|
| | Type | Description | Class CD | Sub Class CD | Year Built | Area |
| | MA | Main Area | 1 | 20 | 1916 | 688.0 |
| | CPC | COVERED CARPORT/PATIO | 1 | 20 | 0 | 425.0 |
| | DTG | Detached Garage | 1 | 20 | 1916 | 264.0 |
| | SWP | Solid Wall Porch | 1 | 20 | 1916 | 112.0 |
| | RPO | OPEN PORCH W/ROOF | 1 | 20 | 1916 | 72.0 |
Sketch
Property Image
Land
| 1 | RES 1 | Converted: Residential | 0.1723 | 7505.39 | 0.00 | 0.00 | 1.00 | $29,100 | $0 |
Roll Value History
| 2026 | N/A | N/A | N/A | N/A | N/A |
| 2025 | $173,930 | $29,100 | $0 | $203,030 | $203,030 |
| 2024 | $0 | $29,100 | $0 | $29,100 | $29,100 |
| 2023 | $11,400 | $29,100 | $0 | $40,500 | $40,500 |
| 2022 | $11,400 | $29,100 | $0 | $40,500 | $40,500 |
| 2021 | $8,590 | $26,300 | $0 | $34,890 | $34,890 |
| 2020 | $8,590 | $26,300 | $0 | $34,890 | $34,890 |
| 2019 | $8,590 | $26,300 | $0 | $34,890 | $34,890 |
| 2018 | $8,590 | $26,300 | $0 | $34,890 | $34,890 |
| 2017 | $8,590 | $26,300 | $0 | $34,890 | $34,890 |
| 2016 | $8,590 | $26,300 | $0 | $34,890 | $34,890 |
| 2015 | $9,900 | $25,400 | $0 | $35,300 | $35,300 |
| 2014 | $27,900 | $25,400 | $0 | $53,300 | $53,300 |
| 2013 | $27,900 | $25,400 | $0 | $53,300 | $53,300 |
| 2012 | $33,800 | $25,400 | $0 | $0 | $0 |
| 2011 | $33,800 | $25,400 | $0 | $0 | $0 |
| 2010 | $32,300 | $25,400 | $0 | $0 | $0 |
| 2009 | $48,000 | $12,700 | $0 | $0 | $0 |
| 2008 | $21,000 | $12,700 | $0 | $0 | $0 |
| 2007 | $21,000 | $12,700 | $0 | $0 | $0 |
Deed and Sales History
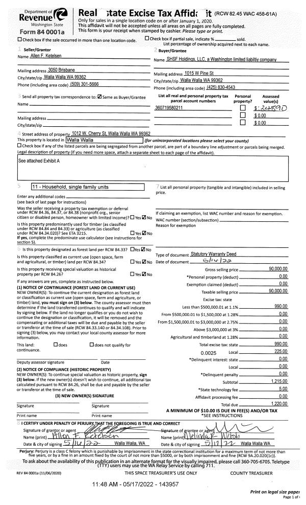
| 1 | 05/17/2022 | SWD | STATUTORY WARRANTY DEED | KETELSEN ALLEN | SHSF HOLDINGS LLC | | | $90,000.00 | 143957 | 2022-04208 |
| 2 | 03/27/2014 | SWD | STATUTORY WARRANTY DEED | PALMER JOHN D & MARY ANN | KETELSEN ALLEN | | | $35,000.00 | 125632 | 2014-02084 |
| 3 | 02/28/2002 | WARRANTY D | WARRANTY DEED | | | | | $35,000.00 | 99007 | 3290-202500 |
Payout Agreement
| No payout information available.. |