Property
Account |
| Property ID: | 6272 | Abbreviated Legal Description: | HEADLEY LOT 3 BLK 2 |
| Parcel Number: | 360719580203 | Agent Code: | |
| Type: | Real | | |
| Tax Area: | 1 - OL-140-F | Land Use Code | 11 |
| Open Space: | N | DFL | N |
| Historic Property: | N | Remodel Property: | N |
| Multi-Family Redevelopment: | N | | |
| Township: | 7 | Section: | 19 |
| Range: | 36 |
Location |
| Address: | 737 N 12TH AVE WA 99362 | Mapsco: | |
| Neighborhood: | A-SFR | Map ID: | |
| Neighborhood CD: | 313011 |
Owner |
| Name: | HENDER STEVE & BARBARA | Owner ID: | 63021 |
| Mailing Address: | 737 N 12TH AVE WALLA WALLA, WA 99362 | % Ownership: | 100.0000000000% |
| | | Exemptions: | SNR/DSBL |
Taxes and Assessment Details
Values
| (+) Improvement Homesite Value: | + | $103,640 | |
| (+) Improvement Non-Homesite Value: | + | $0 | |
| (+) Land Homesite Value: | + | $57,750 | |
| (+) Land Non-Homesite Value: | + | $0 | |
| (+) Curr Use (HS): | + | $0 | $0 |
| (+) Curr Use (NHS): | + | $0 | $0 |
| | | -------------------------- | |
| (=) Market Value: | = | $161,390 | |
| (–) Productivity Loss: | – | $0 | |
| | | -------------------------- | |
| (=) Subtotal: | = | $161,390 | |
| (+) Senior Appraised Value: | + | $72,660 | |
| (+) Non-Senior Appraised Value: | + | $0 | |
| | | -------------------------- | |
| (=) Total Appraised Value: | = | $72,660 | |
| (–) Senior Exemption Loss: | – | $50,000 | |
| (–) Exemption Loss: | – | $0 | |
| | | -------------------------- | |
| (=) Taxable Value: | = | $22,660 | |
Taxing Jurisdiction
| Owner: | HENDER STEVE & BARBARA | | |
| % Ownership: | 100.0000000000% | | |
| Total Value: | $161,390 | | |
| Tax Area: | 1 - OL-140-F |
| CERFD | CURRENT EXPENSE REFUND 010 | 0.0000000000 | $161,390 | $22,660 | $0.00 | | |
| CURREXP | CURRENT EXPENSE 010 | 1.0175366760 | $161,390 | $22,660 | $23.06 | | |
| HUMNSERV | HUMAN SERVICES 119 | 0.0250000000 | $161,390 | $22,660 | $0.57 | | |
| SLDREL | SOLDIERS RELIEF 121 | 0.0155990005 | $161,390 | $22,660 | $0.35 | | |
| EMERGSER | EMS 147 | 0.3792580840 | $161,390 | $22,660 | $8.59 | | |
| EMSRFD | EMS REFUND 147 | 0.0000000000 | $161,390 | $22,660 | $0.00 | | |
| PORTRFD | PORT REFUND 640 | 0.0000000000 | $161,390 | $22,660 | $0.00 | | |
| PORTWWGEN | PORT OF WW 640 | 0.2460186015 | $161,390 | $22,660 | $5.57 | | |
| SD140BOND | SD #140 BOND 764 | 0.0000000000 | $161,390 | $0 | $0.00 | | |
| SD140GEN | SD #140 GENERAL 760 | 0.0000000000 | $161,390 | $0 | $0.00 | | |
| ST2 | STATE SCHOOL PART 2 600 | 0.0000000000 | $161,390 | $0 | $0.00 | | |
| STATESCHL | STATE SCHOOL 600 | 1.5158548041 | $161,390 | $22,660 | $34.35 | | |
| STREFUND | STATE REFUND LEVY 603 | 0.0000000000 | $161,390 | $22,660 | $0.00 | | |
| CWWBOND | C OF WW BOND 643 | 0.0000000000 | $161,390 | $0 | $0.00 | | |
| CWWGEN | CITY OF WW 631 | 1.6100204973 | $161,390 | $22,660 | $36.48 | | |
| CWWRFD | CITY OF WALLA WALLA REFUND 631 | 0.0000000000 | $161,390 | $22,660 | $0.00 | | |
| | Total Tax Rate: | 4.8092876634 | | | | | |
| | | | | Taxes w/Current Exemptions: | $108.97 | | |
| | | | | Taxes w/o Exemptions: | $1,419.79 | | |
Improvement / Building
| Improvement #1: | RESIDENTIAL | State Code: | 11 | 624.0 sqft | Value: | $103,640 |
| Exterior Wall: | SIDING | Heating/Cooling: | BASEBOARD ELECTRIC | | Number of Bathrooms: | 1 | Number of Bedrooms: | 1 | | Plumbing: | 6 | Roof Covering: | COMP SHINGLE |
|
| | Type | Description | Class CD | Sub Class CD | Year Built | Area |
| | MA | Main Area | 1 | 30 | 1918 | 624.0 |
| | SI1 | SITE IMPROVEMENT | 1 | 30 | 0 | 1.0 |
| | SWP | Solid Wall Porch | 1 | 30 | 1918 | 72.0 |
| | DTG | Detached Garage | 1 | 30 | 1918 | 440.0 |
| | RPS | PORCH W/STEPS,ROOF | 1 | 30 | 1918 | 72.0 |
Sketch
Property Image
Land
| 1 | RES 1 | Converted: Residential | 0.1607 | 7000.00 | 0.00 | 0.00 | 1.00 | $57,750 | $0 |
Roll Value History
| 2026 | N/A | N/A | N/A | N/A | N/A |
| 2025 | $149,250 | $57,750 | $0 | $207,000 | $22,660 |
| 2024 | $124,370 | $57,750 | $0 | $182,120 | $22,660 |
| 2023 | $103,640 | $57,750 | $0 | $161,390 | $22,660 |
| 2022 | $86,370 | $57,750 | $0 | $144,120 | $72,660 |
| 2021 | $93,210 | $25,100 | $0 | $118,310 | $72,660 |
| 2020 | $66,580 | $25,100 | $0 | $91,680 | $72,660 |
| 2019 | $66,580 | $25,100 | $0 | $91,680 | $72,660 |
| 2018 | $47,560 | $25,100 | $0 | $72,660 | $72,660 |
| 2017 | $47,560 | $25,100 | $0 | $72,660 | $72,660 |
| 2016 | $45,290 | $25,100 | $0 | $70,390 | $70,390 |
| 2015 | $45,360 | $25,100 | $0 | $70,460 | $70,460 |
| 2014 | $25,200 | $25,100 | $0 | $50,300 | $50,300 |
| 2013 | $25,200 | $25,100 | $0 | $50,300 | $50,300 |
| 2012 | $25,200 | $25,100 | $0 | $0 | $0 |
| 2011 | $25,200 | $25,100 | $0 | $0 | $0 |
| 2010 | $21,400 | $25,100 | $0 | $0 | $0 |
| 2009 | $36,600 | $12,300 | $0 | $0 | $0 |
| 2008 | $25,300 | $12,300 | $0 | $0 | $0 |
| 2007 | $25,300 | $12,300 | $0 | $0 | $0 |
Deed and Sales History
| 1 | 04/30/2018 | SWD | STATUTORY WARRANTY DEED | HERMANNS MERRY D | HENDER STEVE & BARBARA | | | $98,500.00 | 134611 | 2018-03405 |
| 2 | 04/30/2018 | QCD | QUIT CLAIM DEED | SMITH ROBERT H | SMITH MERRY J | | | | 134612 | 2018-03406 |
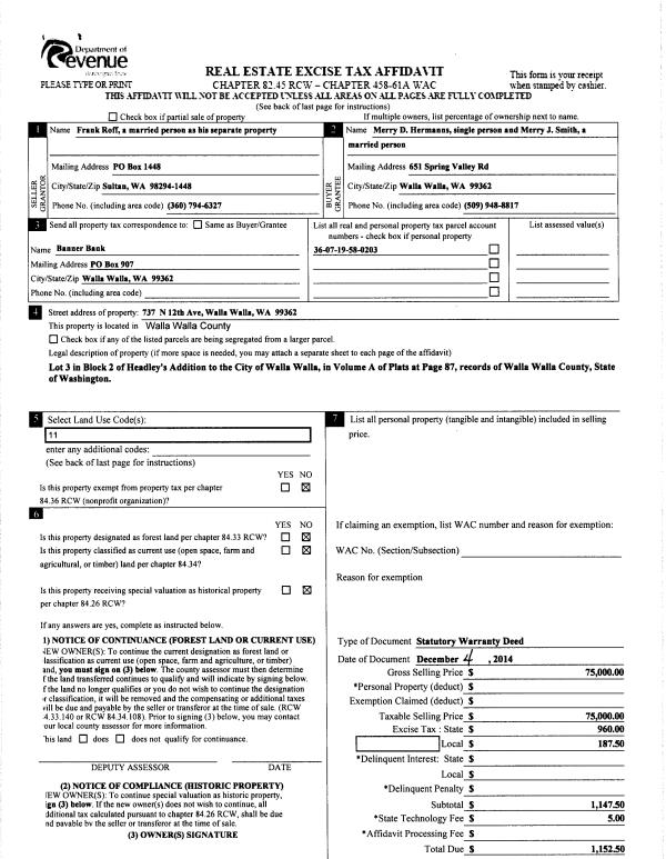
| 3 | 12/09/2014 | SWD | STATUTORY WARRANTY DEED | ROFF FRANK A | HERMANNS MERRY D | | | $75,000.00 | 127075 | 2014-08900 |
| 4 | 03/19/1984 | WARRANTY D | WARRANTY DEED | | | | | $0.00 | 0 | 1428-401874 |
Payout Agreement
| No payout information available.. |