Property
Account |
| Property ID: | 6152 | Abbreviated Legal Description: | BOWMANS W1/2 OF W1/2 OF BLK 6 |
| Parcel Number: | 360719510602 | Agent Code: | |
| Type: | Real | | |
| Tax Area: | 1 - OL-140-F | Land Use Code | 11 |
| Open Space: | N | DFL | N |
| Historic Property: | N | Remodel Property: | N |
| Multi-Family Redevelopment: | N | | |
| Township: | 7 | Section: | 19 |
| Range: | 36 |
Location |
| Address: | 1114 W ELM ST WA 99362 | Mapsco: | |
| Neighborhood: | A-SFR | Map ID: | |
| Neighborhood CD: | 313011 |
Owner |
| Name: | RODRIGUEZ FERNANDO | Owner ID: | 71587 |
| Mailing Address: | DANIEL OSORIO 1114 W ELM ST WALLA WALLA, WA 99362 | % Ownership: | 100.0000000000% |
| | | Exemptions: | |
Taxes and Assessment Details
Property Tax Information as of
02/21/2026
Click on "Statement Details" to expand or collapse a tax statement.
* Please enter a valid date ** Please enter a valid date *
Statement Details |
| | TOTAL: | $0.00 | $0.00 | $0.00 | $0.00 | $0.00 | $0.00 |
|
| | $0.00 | $0.00 | $0.00 | $0.00 | $0.00 | $0.00 |
Values
| (+) Improvement Homesite Value: | + | $0 | |
| (+) Improvement Non-Homesite Value: | + | $188,090 | |
| (+) Land Homesite Value: | + | $0 | |
| (+) Land Non-Homesite Value: | + | $68,270 | |
| (+) Curr Use (HS): | + | $0 | $0 |
| (+) Curr Use (NHS): | + | $0 | $0 |
| | | -------------------------- | |
| (=) Market Value: | = | $256,360 | |
| (–) Productivity Loss: | – | $0 | |
| | | -------------------------- | |
| (=) Subtotal: | = | $256,360 | |
| (+) Senior Appraised Value: | + | $0 | |
| (+) Non-Senior Appraised Value: | + | $256,360 | |
| | | -------------------------- | |
| (=) Total Appraised Value: | = | $256,360 | |
| (–) Senior Exemption Loss: | – | $0 | |
| (–) Exemption Loss: | – | $0 | |
| | | -------------------------- | |
| (=) Taxable Value: | = | $256,360 | |
Taxing Jurisdiction
| Owner: | RODRIGUEZ FERNANDO | | |
| % Ownership: | 100.0000000000% | | |
| Total Value: | $256,360 | | |
| Tax Area: | 1 - OL-140-F |
| CERFD | CURRENT EXPENSE REFUND 010 | 0.0000000000 | $256,360 | $256,360 | $0.00 | | |
| CURREXP | CURRENT EXPENSE 010 | 1.0175366760 | $256,360 | $256,360 | $260.86 | | |
| HUMNSERV | HUMAN SERVICES 119 | 0.0250000000 | $256,360 | $256,360 | $6.41 | | |
| SLDREL | SOLDIERS RELIEF 121 | 0.0155990005 | $256,360 | $256,360 | $4.00 | | |
| EMERGSER | EMS 147 | 0.3792580840 | $256,360 | $256,360 | $97.23 | | |
| EMSRFD | EMS REFUND 147 | 0.0000000000 | $256,360 | $256,360 | $0.00 | | |
| PORTRFD | PORT REFUND 640 | 0.0000000000 | $256,360 | $256,360 | $0.00 | | |
| PORTWWGEN | PORT OF WW 640 | 0.2460186015 | $256,360 | $256,360 | $63.07 | | |
| SD140BOND | SD #140 BOND 764 | 0.8342371393 | $256,360 | $256,360 | $213.87 | | |
| SD140GEN | SD #140 GENERAL 760 | 2.0646500647 | $256,360 | $256,360 | $529.29 | | |
| ST2 | STATE SCHOOL PART 2 600 | 0.8131451643 | $256,360 | $256,360 | $208.46 | | |
| STATESCHL | STATE SCHOOL 600 | 1.5158548041 | $256,360 | $256,360 | $388.60 | | |
| STREFUND | STATE REFUND LEVY 603 | 0.0000000000 | $256,360 | $256,360 | $0.00 | | |
| CWWBOND | C OF WW BOND 643 | 0.2760494372 | $256,360 | $256,360 | $70.77 | | |
| CWWGEN | CITY OF WW 631 | 1.6100204973 | $256,360 | $256,360 | $412.74 | | |
| CWWRFD | CITY OF WALLA WALLA REFUND 631 | 0.0000000000 | $256,360 | $256,360 | $0.00 | | |
| | Total Tax Rate: | 8.7973694689 | | | | | |
| | | | | Taxes w/Current Exemptions: | $2,255.30 | | |
| | | | | Taxes w/o Exemptions: | $2,255.30 | | |
Improvement / Building
| Improvement #1: | RESIDENTIAL | State Code: | 11 | 1600.0 sqft | Value: | $188,090 |
| Exterior Wall: | HARDBOARD | Heating/Cooling: | FLOOR FURNACE | | Number of Bathrooms: | 2 | Number of Bedrooms: | 2 | | Plumbing: | 9 | Roof Covering: | COMP SHINGLE |
|
| | Type | Description | Class CD | Sub Class CD | Year Built | Area |
| | MA | Main Area | 1 | 20 | 1940 | 1600.0 |
| | SI1 | SITE IMPROVEMENT | 1 | 20 | 1940 | 1.5 |
| | BASE | BASEMENT | 1 | 20 | 1940 | 108.0 |
| | RPC | OPEN PORCH W/ROOF , CEILED | 1 | 20 | 1940 | 80.0 |
Sketch
Property Image
Land
| 1 | RES 1 | Converted: Residential | 0.2500 | 10889.00 | 0.00 | 0.00 | 1.00 | $68,270 | $0 |
Roll Value History
| 2026 | N/A | N/A | N/A | N/A | N/A |
| 2025 | $188,090 | $68,270 | $0 | $256,360 | $256,360 |
| 2024 | $188,090 | $68,270 | $0 | $256,360 | $256,360 |
| 2023 | $188,090 | $68,270 | $0 | $256,360 | $256,360 |
| 2022 | $156,740 | $68,270 | $0 | $225,010 | $225,010 |
| 2021 | $137,170 | $27,800 | $0 | $164,970 | $164,970 |
| 2020 | $124,700 | $27,800 | $0 | $152,500 | $152,500 |
| 2019 | $124,700 | $27,800 | $0 | $152,500 | $152,500 |
| 2018 | $113,360 | $27,800 | $0 | $141,160 | $141,160 |
| 2017 | $94,470 | $27,800 | $0 | $122,270 | $122,270 |
| 2016 | $89,970 | $27,800 | $0 | $117,770 | $117,770 |
| 2015 | $100,540 | $27,800 | $0 | $128,340 | $128,340 |
| 2014 | $91,400 | $27,800 | $0 | $119,200 | $119,200 |
| 2013 | $91,400 | $27,800 | $0 | $119,200 | $119,200 |
| 2012 | $91,400 | $27,800 | $0 | $0 | $0 |
| 2011 | $91,400 | $27,800 | $0 | $0 | $0 |
| 2010 | $112,800 | $27,800 | $0 | $0 | $0 |
| 2009 | $159,700 | $14,400 | $0 | $0 | $0 |
| 2008 | $74,900 | $14,400 | $0 | $0 | $0 |
| 2007 | $74,900 | $14,400 | $0 | $0 | $0 |
Deed and Sales History
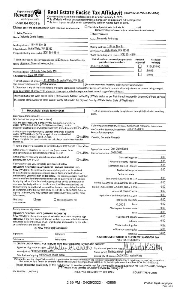
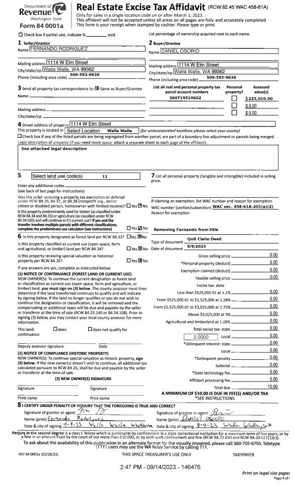
| 1 | 09/19/2023 | QCD | QUIT CLAIM DEED | RODRIGUEZ FERNANDO | OSORIO DANIEL | | | | 146476 | 2023-05473 |
| 2 | 04/29/2022 | QCD | QUIT CLAIM DEED | ROSAS YOLANDA OSORIO | RODRIGUEZ FERNANDO | | | | 143866 | 2022-03688 |
| 3 | 04/29/2022 | SWD | STATUTORY WARRANTY DEED | CORNEJO JUAN MANUEL | RODRIGUEZ FERNANDO | | | $266,000.00 | 143865 | 2022-03687 |
| 4 | 01/06/2020 | QCD | QUIT CLAIM DEED | CORNEJO JUAN & JUANITA | CORNEJO JUAN MANUEL | | | $0.00 | 138372 | 2020-00116 |
| 5 | 11/03/2005 | QCD | QUIT CLAIM DEED | CORNEJO, LINDA ARACELI | CORNEJO, JUAN & JUANITA | | | | 108934 | 2005-13853 |
| 6 | 08/01/2001 | QCD | QUIT CLAIM DEED | | | | | $20,000.00 | 97737 | 3170-108259 |
Payout Agreement
| No payout information available.. |